賃貸アパート
メゾンサンワDの賃貸物件情報(1LDK/2階)
| 家賃 | 管理費等 | 敷金 | 礼金 | 間取り | 専有面積 |
|---|---|---|---|---|---|
| 8.8万円 | 5,000円 | 8.8万円 | なし | 1LDK | 29.96m2 |
入居決定でお祝い金最大100,000円
- 保証金
- -
- 償却・敷引
- -
- 築年数
- 新築
- 所在階
- 2階
- 向き
- -
Point
まずはお問い合わせ!
不動産会社は街のプロ、あなたに合った物件がきっと見つかります。
提供:令和ハウジング (株)さくらスタイル令和ハウジング(SUUMO経由)

詳細情報 メゾンサンワD
物件紹介
メゾンサンワDはJR横須賀線新川崎駅から徒歩27分にあるアパートです。
このお部屋は2階以上に位置しているので、通行人や周囲の住人からの視線が気になりにくく、防犯面でも安心。建物のエントランスはオートロックがついており、インターホンにはTVモニタもついているため、相手の顔を確認してから来客対応することができます。
人気の角部屋で周囲の居住者の生活音も気になりにくく、また、フローリングのお部屋なのでお掃除もラクラク。キッチンはシステムキッチン仕様になっていますので、お料理好きの方にもぴったり。バス・トイレは別なので、のんびりお風呂タイムも楽しめるでしょう。また、雨の日でも浴室乾燥機を使えば、お洗濯も問題ありません。
通信設備面では、インターネットが無料で使えるので、月々の出費を抑えられるのも魅力です(別途工事等が必要な場合あり)。
共用部には宅配ボックスが設定されているので、不在の時にも荷物を受け取ることができます。
このお部屋は2階以上に位置しているので、通行人や周囲の住人からの視線が気になりにくく、防犯面でも安心。建物のエントランスはオートロックがついており、インターホンにはTVモニタもついているため、相手の顔を確認してから来客対応することができます。
人気の角部屋で周囲の居住者の生活音も気になりにくく、また、フローリングのお部屋なのでお掃除もラクラク。キッチンはシステムキッチン仕様になっていますので、お料理好きの方にもぴったり。バス・トイレは別なので、のんびりお風呂タイムも楽しめるでしょう。また、雨の日でも浴室乾燥機を使えば、お洗濯も問題ありません。
通信設備面では、インターネットが無料で使えるので、月々の出費を抑えられるのも魅力です(別途工事等が必要な場合あり)。
共用部には宅配ボックスが設定されているので、不在の時にも荷物を受け取ることができます。
お金・契約の情報
※「-」と表示されているものは、実際は料金が発生するものもございます。詳細はお問い合わせください。
| 家賃 | 8.8万円 | 管理費・共益費 | 5,000円 |
|---|---|---|---|
| 敷金 | 8.8万円 | 礼金 | なし |
| 入居決定でお祝い金最大100,000円 | |||
| 保証金 | - | 償却・敷引 | - |
| 住宅保険料 | - | 更新料 | - |
| 保証会社利用 | 必須 | 保証会社名 | - |
| 保証会社費用 | - | 保証会社備考 | 保証会社利用必 [契約時]総賃料の50%、[更新/年]1.3万円 |
| 契約形態 | - | 契約期間 | - |
| 入居・引渡期間 | - | 現況 | - |
| 契約備考 | 駐輪場 月額330円 1LDK 普通借家2年 損保【要】 バストイレ別、バルコニー、エアコン、クロゼット、フローリング、TVインターホン、浴室乾燥機、オートロック、室内洗濯置、シューズボックス、システムキッチン、追焚機能浴室、温水洗浄便座、脱衣所、洗面所独立、洗面化粧台、2口コンロ、駐輪場、礼金不要、対面式キッチン、IHクッキングヒーター、保証人不要、2沿線利用可、ネット専用回線、ネット使用料不要、2駅利用可、築5年以内、都市ガス、IT重説対応物件、初期費用カード決済可 入居日:'26年3月下旬 | ||
部屋の情報
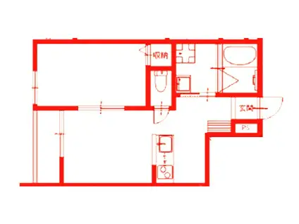
| 間取り | 1LDK | 専有面積 | 29.96m2 |
|---|---|---|---|
| 所在階 / 向き | 2階 / - | バルコニー面積 | - |
| 水道 / ガス | - | ||
| 設備 | バス・トイレ別、2階以上、オートロック、テレビドアホン、浴室乾燥機、追い焚き、インターネット対応、システムキッチン、エアコン、温水洗浄便座、バルコニー、フローリング、洗髪洗面化粧台、2口コンロ、コンロ:IH、インターネット使用料無料、洗濯機:室内 | ||
| 当社物件ID | 160381797 | ||
建物の情報
| 建物名 | メゾンサンワD | ||
|---|---|---|---|
| 所在地 | 神奈川県川崎市幸区南加瀬 | ||
| 交通 | JR横須賀線 新川崎駅 徒歩27分 JR南武線 鹿島田駅 徒歩30分 東急東横線 日吉駅(神奈川) 徒歩32分 | ||
| 階数 | 3階建 | 総戸数 | - |
| 築年月 | 2026年03月 / 新築 | エレベーター | - |
| 駐車場 | なし | バイク置き場 | - |
| 駐輪場 | あり | 管理人/管理会社 | - |
| 周辺環境 | その他 夢庵 南加瀬店(飲食店)まで210m その他 ケンタッキーフライドチキン南加瀬店(飲食店)まで249m その他 ほっともっと南加瀬4丁目店(飲食店)まで235m その他 シャトレーゼ 南加瀬店(飲食店)まで297m その他 クリエイトS・D 川崎南加瀬店(ドラッグストア)まで418m その他 サミットストア 南加瀬店(スーパー)まで533m | ||
| 建物種別 | アパート | 建物構造 | 木造 |
この部屋の取扱い不動産会社
| 会社名 | 令和ハウジング (株)さくらスタイル令和ハウジング(SUUMO経由) | ||
|---|---|---|---|
| 所在地 | 神奈川県横浜市港北区新横浜2-5-4 京浜建物第2ビル | 交通 | - |
| 営業時間 | AM10時~PM19時 | 定休日 | なし |
| 免許番号 | 神奈川県知事28256 | 取引態様 | 仲介 |
| 不動産会社管理番号 | 100487798715 | 当社管理番号 | 89 |
| 所属団体 | (公社)全日本不動産協会神奈川県本部会員 | ||
| 公正取引協議会 | (公社)首都圏不動産公正取引協議会加盟 | ||
| 取扱い物件情報 | 物件詳細へ | ||
※各種情報と現状に差異がある場合は、現状優先となります。問い合わせをすることで、より詳しい条件、情報を確認する事ができます。
提供:令和ハウジング (株)さくらスタイル令和ハウジング(SUUMO経由)
この物件が気になったら掲載期限まであと10日
メゾンサンワDに条件(家賃・エリア)が近い物件一覧
| 写真 | 家賃 管理費等 | 敷金 礼金 | 間取り 専有面積 | 築年数 | 最寄り駅 所在地 | キープ | 詳細 |
|---|---|---|---|---|---|---|---|
マンション ヒルサイドヤマキビル(3LDK/3階) | |||||||
![]() | 12.3万円 5,000円 | 12.3万円 12.3万円 | 3LDK 61.5m2 | 築45年 | JR横浜線 十日市場駅(神奈川) 徒歩20分 神奈川県横浜市緑区霧が丘 | 詳細を見る | |
マンション 東急田園都市線 田奈駅 徒歩8分 築21年(2SLDK/3階) | |||||||
![]() | 10万円 3,000円 | 10万円 10万円 | 2SLDK 55.96m2 | 築21年 | 東急田園都市線 田奈駅 徒歩8分 東急田園都市線 長津田駅 徒歩13分 神奈川県横浜市緑区長津田 | 詳細を見る | |
マンション PLイーストYLE川崎(1K/3階) | |||||||
![]() | 9万円 5,000円 | なし 9万円 | 1K 20.19m2 | 築17年 | JR京浜東北線 川崎駅 徒歩8分 京急本線 京急川崎駅 徒歩11分 JR南武線 尻手駅 徒歩12分 神奈川県川崎市幸区中幸町 | 詳細を見る | |
マンション メルシーハイムⅡ(2LDK/2階) | |||||||
![]() | 10.5万円 5,000円 | 21万円 なし | 2LDK 57.75m2 | 築32年 | 横浜市グリーンL 北山田駅(神奈川) 徒歩12分 横浜市ブルーライン センター北駅 徒歩15分 神奈川県横浜市都筑区南山田2丁目 | 詳細を見る | |
アパート レオパレスきらり(1K/1階) | |||||||
![]() | 7.9万円 5,500円 | なし なし | 1K 19.87m2 | 築20年 | JR横須賀線 新川崎駅 徒歩21分 JR南武線 鹿島田駅 徒歩24分 神奈川県川崎市幸区南加瀬 | 詳細を見る | |
アパート ユナイト上大岡パルフェット(ワンルーム/1階) | |||||||
![]() | 5.3万円 5,500円 | なし なし | ワンルーム 12.05m2 | 築5年 | 京急本線 上大岡駅 徒歩8分 ブルーライン 港南中央駅 徒歩21分 京急本線 弘明寺駅(京急) 徒歩23分 神奈川県横浜市港南区最戸 | 詳細を見る | |
マンション LEXE 横濱関内(1K/6階) | |||||||
![]() | 8.45万円 1.2万円 | なし なし | 1K 22.1m2 | 築1年 | 京急本線 日ノ出町駅 徒歩5分 JR京浜東北線 関内駅 徒歩9分 JR京浜東北線 桜木町駅 徒歩10分 神奈川県横浜市中区福富町西通 | 詳細を見る | |
マンション クレド新横浜(1K/7階) | |||||||
![]() | 9.5万円 6,000円 | 9.5万円 9.5万円 | 1K 25.36m2 | 築4年 | ブルーライン 新横浜駅 徒歩1分 ブルーライン 北新横浜駅 徒歩17分 東急東横線 菊名駅 徒歩24分 神奈川県横浜市港北区新横浜 | 詳細を見る | |








