賃貸マンション
エルフォルテ品川フェリスの賃貸物件情報(ワンルーム/3階)
| 家賃 | 管理費等 | 敷金 | 礼金 | 間取り | 専有面積 |
|---|---|---|---|---|---|
| 10万円 | 1万円 | なし | なし | ワンルーム | 20.94m2 |
入居決定でお祝い金最大100,000円
Point
新生活を失敗せず、スタートさせたいならこちらの「エルフォルテ品川フェリス」はいかがでしょうか。収納はクロゼット・シューズボックスなど豊富なので、衣類や履き物の整理がしやすく便利です。駅から徒歩8分に立
提供:(株)クレアスレント五反田店(SUUMO経由)

詳細情報 エルフォルテ品川フェリス
物件紹介
エルフォルテ品川フェリスはJR京浜東北線大井町駅から徒歩8分にあり、駅近で通勤通学に便利なマンションです。
このお部屋は2階以上に位置しているので、通行人や周囲の住人からの視線が気になりにくく、防犯面でも安心。建物のエントランスはオートロックがついており、インターホンにはTVモニタもついているため、相手の顔を確認してから来客対応することができます。
フローリングのお部屋なのでお掃除もラクラク。キッチンはシステムキッチン仕様になっていますので、お料理好きの方にもぴったり。バス・トイレは別なので、のんびりお風呂タイムも楽しめるでしょう。また、雨の日でも浴室乾燥機を使えば、お洗濯も問題ありません。
通信設備面では、インターネットが無料で使えるので、月々の出費を抑えられるのも魅力です。また、BSアンテナ・CSアンテナがありCATVにも対応しているので、おうち時間も充実するでしょう(別途工事、BS・CS・CATVの契約料等が必要な場合あり)。
建物にはエレベーターがついているので、重い荷物があっても安心。共用部には宅配ボックスが設定されているので、不在の時にも荷物を受け取ることができます。また、ペット飼育の相談ができますので、あなたの大切な家族の一員も快適に暮らせるか、ぜひ確認してみてください。
このお部屋は2階以上に位置しているので、通行人や周囲の住人からの視線が気になりにくく、防犯面でも安心。建物のエントランスはオートロックがついており、インターホンにはTVモニタもついているため、相手の顔を確認してから来客対応することができます。
フローリングのお部屋なのでお掃除もラクラク。キッチンはシステムキッチン仕様になっていますので、お料理好きの方にもぴったり。バス・トイレは別なので、のんびりお風呂タイムも楽しめるでしょう。また、雨の日でも浴室乾燥機を使えば、お洗濯も問題ありません。
通信設備面では、インターネットが無料で使えるので、月々の出費を抑えられるのも魅力です。また、BSアンテナ・CSアンテナがありCATVにも対応しているので、おうち時間も充実するでしょう(別途工事、BS・CS・CATVの契約料等が必要な場合あり)。
建物にはエレベーターがついているので、重い荷物があっても安心。共用部には宅配ボックスが設定されているので、不在の時にも荷物を受け取ることができます。また、ペット飼育の相談ができますので、あなたの大切な家族の一員も快適に暮らせるか、ぜひ確認してみてください。
お金・契約の情報
※「-」と表示されているものは、実際は料金が発生するものもございます。詳細はお問い合わせください。
| 家賃 | 10万円 | 管理費・共益費 | 1万円 |
|---|---|---|---|
| 敷金 | なし | 礼金 | なし |
| 入居決定でお祝い金最大100,000円 | |||
| 保証金 | - | 償却・敷引 | - |
| 住宅保険料 | - | 更新料 | - |
| 契約形態 | - | 契約期間 | - |
| 入居・引渡期間 | - | 現況 | - |
| 入居可能条件 | ペット相談 | ||
| 契約備考 | 巡回管理 合計5.5万円(内訳:事務手数料1.1万円鍵交換代4.4万円) 更新料 新賃料1.50ヶ月分 安心サポート 月額1100円 ワンルーム 単身者可/子供不可/ペット相談/事務所利用不可/ルームシェア不可 普通借家2年 損保【要】 バストイレ別、バルコニー、エアコン、ガスコンロ対応、クロゼット、フローリング、TVインターホン、浴室乾燥機、オートロック、室内洗濯置、シューズボックス、システムキッチン、温水洗浄便座、エレベーター、洗面所独立、洗面化粧台、2口コンロ、駐輪場、宅配ボックス、外壁タイル張り、礼金不要、敷金不要、防犯カメラ、ペット相談、分譲賃貸、保証人不要、単身者相談、2沿線利用可、ディンプルキー、ネット使用料不要、保証金不要、24時間換気システム、人感照明センサー、2駅利用可、駅徒歩10分以内、都市ガス、年内入居可、敷金・礼金不要、保証会社利用可 敷金積み増し【ペット飼育の場合敷金1ヶ月(総額)】 入居日:'26年4月下旬 | ||
部屋の情報
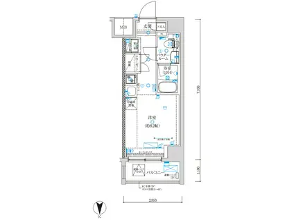
| 間取り | ワンルーム | 専有面積 | 20.94m2 |
|---|---|---|---|
| 所在階 / 向き | 3階 / 北 | バルコニー面積 | - |
| 水道 / ガス | - | ||
| 設備 | バス・トイレ別、2階以上、オートロック、テレビドアホン、宅配ボックス、浴室乾燥機、インターネット対応、システムキッチン、エアコン、エレベーター、温水洗浄便座、バルコニー、フローリング、洗髪洗面化粧台、2口コンロ、コンロ:ガス、インターネット使用料無料、洗濯機:室内 | ||
| 当社物件ID | 31821968 | ||
建物の情報
| 建物名 | エルフォルテ品川フェリス | ||
|---|---|---|---|
| 所在地 | 東京都品川区南品川 | ||
| 交通 | JR京浜東北線 大井町駅 徒歩8分 京急本線 青物横丁駅 徒歩9分 | ||
| 階数 | 8階建 | 総戸数 | - |
| 築年月 | 2019年09月 / 築7年 | エレベーター | あり |
| 駐車場 | なし | バイク置き場 | - |
| 駐輪場 | あり | 管理人/管理会社 | - |
| 建物種別 | マンション | 建物構造 | RC(鉄筋コンクリート) |
この部屋の取扱い不動産会社
| 会社名 | (株)LOHOUSE三田店(SUUMO経由) | ||
|---|---|---|---|
| 所在地 | 東京都港区三田3-1-19 第12シグマビルディング三田5階 | 交通 | - |
| 営業時間 | 10:00~18:30 | 定休日 | 水曜日 |
| 免許番号 | 東京都知事99461 | 取引態様 | 仲介 |
| 不動産会社管理番号 | 100487180286 | 当社管理番号 | 89 |
| 所属団体 | (公社)全日本不動産協会東京都本部会員 | ||
| 公正取引協議会 | (公社)首都圏不動産公正取引協議会加盟 | ||
| 取扱い物件情報 | 物件詳細へ | ||
※各種情報と現状に差異がある場合は、現状優先となります。問い合わせをすることで、より詳しい条件、情報を確認する事ができます。
提供:(株)LOHOUSE三田店(SUUMO経由)
この物件が気になったら掲載期限まであと10日
エルフォルテ品川フェリスに条件(家賃・エリア)が近い物件一覧
| 写真 | 家賃 管理費等 | 敷金 礼金 | 間取り 専有面積 | 築年数 | 最寄り駅 所在地 | キープ | 詳細 |
|---|---|---|---|---|---|---|---|
マンション SEED JUST B-BASE Ⅱ(1LDK/3階) | |||||||
![]() | 10.1万円 1.5万円 | 10.1万円 10.1万円 | 1LDK 27.92m2 | 築1年 | 東京モノレール羽田 昭和島駅 徒歩11分 京浜急行電鉄本線 梅屋敷駅(東京) 徒歩19分 東京都大田区大森南4丁目 | 詳細を見る | |
マンション リヴシティ亀戸(1K/8階) | |||||||
![]() | 11.85万円 1.5万円 | なし なし | 1K 26.61m2 | 築1年 | 東武鉄道亀戸線 小村井駅 徒歩11分 総武・中央緩行線 亀戸駅 徒歩14分 東京都江東区亀戸3丁目 | 詳細を見る | |
マンション ザ・パークハビオ木場(1K/11階) | |||||||
![]() | 13.1万円 1.5万円 | 13.1万円 なし | 1K 25.18m2 | 築8年 | 東京メトロ東西線 木場駅 徒歩5分 東京メトロ東西線 門前仲町駅 徒歩18分 東京メトロ東西線 東陽町駅 徒歩21分 東京都江東区木場 | 詳細を見る | |
一戸建て 東京地下鉄有楽町線 豊洲駅 徒歩12分 築51年(3DK) | |||||||
![]() | 13.8万円 なし | 13.8万円 13.8万円 | 3DK 64.71m2 | 築51年 | 東京地下鉄有楽町線 豊洲駅 徒歩12分 京葉線 潮見駅 徒歩20分 東京地下鉄東西線 木場駅 徒歩24分 東京都江東区枝川1丁目 | 詳細を見る | |
一戸建て 東京都新宿線 大島駅(東京) 徒歩7分 築77年(1DK) | |||||||
![]() | 15.8万円 なし | 15.8万円 15.8万円 | 1DK 27.91m2 | 築77年 | 東京都新宿線 大島駅(東京) 徒歩7分 東京都新宿線 西大島駅 徒歩7分 総武・中央緩行線 亀戸駅 徒歩11分 東京都江東区大島3丁目 | 詳細を見る | |
マンション マレオドゥール(2K/5階) | |||||||
![]() | 7万円 2,000円 | なし なし | 2K 29.16m2 | 築40年 | 京葉線 潮見駅 徒歩8分 東京地下鉄東西線 木場駅 徒歩24分 東京地下鉄有楽町線 辰巳駅 徒歩24分 東京都江東区潮見1丁目 | 詳細を見る | |
アパート ル・トレフル(ワンルーム/2階) | |||||||
![]() | 8.9万円 2,000円 | 8.9万円 17.8万円 | ワンルーム 28.63m2 | 築13年 | 京浜急行電鉄本線 大森町駅 徒歩12分 京浜急行電鉄本線 平和島駅 徒歩16分 東京都大田区大森東3丁目 | 詳細を見る | |







