賃貸マンション
ディオ梅田の賃貸物件情報(1LDK/7階)
| 家賃 | 管理費等 | 敷金 | 礼金 | 間取り | 専有面積 |
|---|---|---|---|---|---|
| 16.5万円 | 1万円 | なし | 16.5万円 | 1LDK | 46.27m2 |
入居決定でお祝い金最大100,000円
- 保証金
- -
- 償却・敷引
- -
- 築年数
- 築12年
- 所在階
- 7階
- 向き
- 南東
- 交通
- 地下鉄谷町線 中崎町駅 徒歩2分
地下鉄御堂筋線 梅田駅 徒歩8分
地下鉄御堂筋線 中津駅(大阪メトロ) 徒歩16分
- 所在地
- 大阪府大阪市北区中崎西
ディオ梅田
[地図を表示]
Point
他社様のインターネット掲載物件はどの物件でもまとめてご案内可能です。もちろん割引サービス適用可能です。【当日ご内覧・オンライン案内・クレジット決済】などどんなことでもご相談下さい。
提供:(株)エーポジション谷町店(SUUMO経由)

詳細情報 ディオ梅田
物件紹介
ディオ梅田は地下鉄谷町線中崎町駅から徒歩2分にあり、駅近で通勤通学に便利なマンションです。
このお部屋は2階以上に位置しているので、通行人や周囲の住人からの視線が気になりにくく、防犯面でも安心。建物のエントランスはオートロックがついており、インターホンにはTVモニタもついているため、相手の顔を確認してから来客対応することができます。
人気の南向き・フローリングのお部屋。室内にはウォークインクローゼットがありますので、たくさんの荷物も効率的に収納ができます。キッチンはシステムキッチン仕様になっていますので、お料理好きの方にもぴったり。バス・トイレは別なので、のんびりお風呂タイムも楽しめるでしょう。また、雨の日でも浴室乾燥機を使えば、お洗濯も問題ありません。
通信設備面では、インターネット接続が可能です。また、BSアンテナ・CSアンテナがありCATVにも対応しているので、おうち時間も充実するでしょう(別途工事、契約料が必要な場合あり)。
床暖房があり、冬も足元から暖かく快適に過ごすことができます。建物にはエレベーターがついているので、重い荷物があっても安心。共用部には宅配ボックスが設定されているので、不在の時にも荷物を受け取ることができます。
このお部屋は2階以上に位置しているので、通行人や周囲の住人からの視線が気になりにくく、防犯面でも安心。建物のエントランスはオートロックがついており、インターホンにはTVモニタもついているため、相手の顔を確認してから来客対応することができます。
人気の南向き・フローリングのお部屋。室内にはウォークインクローゼットがありますので、たくさんの荷物も効率的に収納ができます。キッチンはシステムキッチン仕様になっていますので、お料理好きの方にもぴったり。バス・トイレは別なので、のんびりお風呂タイムも楽しめるでしょう。また、雨の日でも浴室乾燥機を使えば、お洗濯も問題ありません。
通信設備面では、インターネット接続が可能です。また、BSアンテナ・CSアンテナがありCATVにも対応しているので、おうち時間も充実するでしょう(別途工事、契約料が必要な場合あり)。
床暖房があり、冬も足元から暖かく快適に過ごすことができます。建物にはエレベーターがついているので、重い荷物があっても安心。共用部には宅配ボックスが設定されているので、不在の時にも荷物を受け取ることができます。
お金・契約の情報
※「-」と表示されているものは、実際は料金が発生するものもございます。詳細はお問い合わせください。
| 家賃 | 16.5万円 | 管理費・共益費 | 1万円 |
|---|---|---|---|
| 敷金 | なし | 礼金 | 16.5万円 |
| 入居決定でお祝い金最大100,000円 | |||
| 保証金 | - | 償却・敷引 | - |
| 住宅保険料 | - | 更新料 | - |
| 保証会社利用 | 必須 | 保証会社名 | - |
| 保証会社費用 | - | 保証会社備考 | 保証会社利用必 初回保証料:月額総賃料の80% 1年更新:10 000円 |
| 契約形態 | - | 契約期間 | - |
| 入居・引渡期間 | 即時 | 現況 | - |
| 契約備考 | 巡回管理/大阪府内全域どこでもお探し可能です。経験豊富なスタッフがご対応させて頂きますので、ご納得行くまでトコトンお探しさせていただきます。お部屋探しについて何でもご相談下さい。尚、引越業者も多数提携しております。お部屋探しはエーポジションへお任せ下さい。 合計6.05万円(内訳:退去時ハウスクリーニング代3.85万円鍵交換代2.2万円) 1LDK 二人入居可 普通借家2年 損保【2万円2年】 バストイレ別、バルコニー、ガスコンロ対応、クロゼット、フローリング、シャワー付洗面台、TVインターホン、浴室乾燥機、オートロック、室内洗濯置、シューズボックス、システムキッチン、追焚機能浴室、温水洗浄便座、脱衣所、エレベーター、洗面所独立、洗面化粧台、駐輪場、宅配ボックス、光ファイバー、外壁タイル張り、即入居可、閑静な住宅地、BS・CS、敷金不要、3口以上コンロ、全居室収納、分譲賃貸、全居室洋室、CATVインターネット、二人入居相談、全居室フローリング、2面バルコニー、2沿線利用可、CS、ネット専用回線、駅まで平坦、床暖房、食器洗乾燥機、保証金不要、24時間換気システム、高温差湯式、クロゼット2ヶ所、人感照明センサー、耐震構造、2駅利用可、3駅以上利用可、3沿線以上利用可、24時間ゴミ出し可、敷地内ごみ置き場、東南向き、都市ガス、浴室床暖房、三面鏡付洗面化粧台、玄関収納、BS、礼金1ヶ月、高齢者歓迎、初期費用カード決済可 | ||
部屋の情報
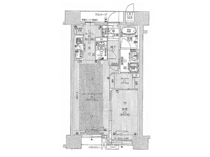
| 間取り | 1LDK | 専有面積 | 46.27m2 |
|---|---|---|---|
| 所在階 / 向き | 7階 / 南東 | バルコニー面積 | 5m2 |
| 水道 / ガス | - | ||
| 設備 | バス・トイレ別、2階以上、オートロック、テレビドアホン、宅配ボックス、浴室乾燥機、追い焚き、インターネット対応、システムキッチン、エレベーター、温水洗浄便座、南向き、バルコニー、フローリング、洗髪洗面化粧台、床暖房、2口コンロ、コンロ:ガス、CATV、CSアンテナ、BSアンテナ、洗濯機:室内 | ||
| 当社物件ID | 14045813 | ||
建物の情報
| 建物名 | ディオ梅田 | ||
|---|---|---|---|
| 所在地 | 大阪府大阪市北区中崎西 | ||
| 交通 | 地下鉄谷町線 中崎町駅 徒歩2分 地下鉄御堂筋線 梅田駅 徒歩8分 地下鉄御堂筋線 中津駅(大阪メトロ) 徒歩16分 | ||
| 階数 | 15階建 | 総戸数 | - |
| 築年月 | 2014年03月 / 築12年 | エレベーター | あり |
| 駐車場 | 近隣 150m38500円 | バイク置き場 | - |
| 駐輪場 | あり | 管理人/管理会社 | - |
| 周辺環境 | その他 HEP(その他)まで297m その他 ライフ 中崎町駅前店(スーパー)まで231m その他 E-ma(ショッピングセンター)まで813m その他 ドン・キホーテ梅田本店(その他)まで338m その他 ローソン 梅田センタービル(コンビニ)まで218m その他 コーナンPRO WORK&TOOL本庄西店(ホームセンター)まで1236m | ||
| 建物種別 | マンション | 建物構造 | RC(鉄筋コンクリート) |
この部屋の取扱い不動産会社
| 会社名 | (株)エーポジション中崎町店(SUUMO経由) | ||
|---|---|---|---|
| 所在地 | 大阪府大阪市北区中崎1-5-21 | 交通 | - |
| 営業時間 | 10:00~19:00 | 定休日 | 年末年始 |
| 免許番号 | 大阪府知事58754 | 取引態様 | 仲介 |
| 不動産会社管理番号 | 100454516243 | 当社管理番号 | 89 |
| 所属団体 | (公社)全日本不動産協会大阪府本部会員 | ||
| 公正取引協議会 | (公社)近畿地区不動産公正取引協議会加盟 | ||
| 取扱い物件情報 | 物件詳細へ | ||
※各種情報と現状に差異がある場合は、現状優先となります。問い合わせをすることで、より詳しい条件、情報を確認する事ができます。
提供:(株)エーポジション中崎町店(SUUMO経由)
この物件が気になったら掲載期限まであと11日
ディオ梅田に条件(家賃・エリア)が近い物件一覧
| 写真 | 家賃 管理費等 | 敷金 礼金 | 間取り 専有面積 | 築年数 | 最寄り駅 所在地 | キープ | 詳細 |
|---|---|---|---|---|---|---|---|
マンション セレニテ東梅田アリエ(2K/15階) | |||||||
| 10.5万円 7,100円 | なし なし | 2K 25.19m2 | 新築 | 大阪市谷町線 東梅田駅 徒歩8分 大阪市堺筋線 南森町駅 徒歩11分 JR東西線 北新地駅 徒歩12分 大阪府大阪市北区兎我野町6 | 詳細を見る | ||
マンション スプランディッド梅田グランノース(1LDK/2階) | |||||||
| 13.3万円 1.2万円 | なし なし | 1LDK 40.4m2 | 築1年 | 大阪環状線 福島駅(JR西日本) 徒歩17分 阪急電鉄神戸線 中津駅(阪急) 徒歩17分 大阪環状線 大阪駅 徒歩22分 大阪府大阪市北区大淀中5丁目12-43 | 詳細を見る | ||
マンション ソルテラス本庄西クレアスト(1DK/2階) | |||||||
| 10.3万円 1万円 | なし なし | 1DK 28.53m2 | 築1年 | 大阪市谷町線 天神橋筋六丁目駅 徒歩10分 大阪市堺筋線 天神橋筋六丁目駅 徒歩10分 大阪市御堂筋線 中津駅(大阪メトロ) 徒歩12分 大阪府大阪市北区本庄西3丁目1-9 | 詳細を見る | ||
マンション シーズンフラッツ中崎(1LDK/8階) | |||||||
| 13.2万円 1万円 | なし 13.2万円 | 1LDK 32.03m2 | 築1年 | 大阪市谷町線 中崎町駅 徒歩2分 大阪市堺筋線 扇町駅(大阪) 徒歩9分 阪急電鉄神戸線 大阪梅田駅(阪急) 徒歩10分 大阪府大阪市北区中崎1丁目4-8 | 詳細を見る | ||
アパート 南海電鉄泉北線 深井駅 徒歩20分 新築(2LDK/2階) | |||||||
![]() | 11.3万円 7,000円 | なし 16万円 | 2LDK 65.88m2 | 新築 | 南海電鉄泉北線 深井駅 徒歩20分 阪和線 上野芝駅 徒歩51分 阪和線 津久野駅 徒歩64分 大阪府堺市中区土塔町 | 詳細を見る | |
一戸建て 南海電鉄南海本線 石津川駅 徒歩6分 築20年(3LDK) | |||||||
![]() | 11.9万円 なし | なし 23.8万円 | 3LDK 76.5m2 | 築20年 | 南海電鉄南海本線 石津川駅 徒歩6分 南海電鉄南海本線 諏訪ノ森駅 徒歩16分 南海電鉄南海本線 湊駅 徒歩26分 大阪府堺市西区浜寺石津町中3丁 | 詳細を見る | |
マンション カルムフォーレ千里山(3LDK/5階) | |||||||
| 11万円 8,000円 | なし 22万円 | 3LDK 71.4m2 | 築30年 | 阪急電鉄千里線 千里山駅 徒歩20分 阪急電鉄千里線 関大前駅 徒歩22分 阪急電鉄千里線 南千里駅 徒歩25分 大阪府吹田市佐井寺南が丘8-17 | 詳細を見る | ||


