賃貸マンション
エンクレスト天神MODEの賃貸物件情報(1LDK/10階)
| 家賃 | 管理費等 | 敷金 | 礼金 | 間取り | 専有面積 |
|---|---|---|---|---|---|
| 10.7万円 | なし | なし | 21.4万円 | 1LDK | 32.85m2 |
入居決定でお祝い金最大100,000円
Point
物件の見学をもっと便利に!
提供:アパマンショップ福岡大学前店

詳細情報 エンクレスト天神MODE
物件紹介
エンクレスト天神MODEは福岡市七隈線天神南駅から徒歩6分にあり、駅近で通勤通学に便利なマンションです。
このお部屋は2階以上に位置しているので、通行人や周囲の住人からの視線が気になりにくく、防犯面でも安心。建物のエントランスはオートロックがついており、インターホンにはTVモニタもついているため、相手の顔を確認してから来客対応することができます。
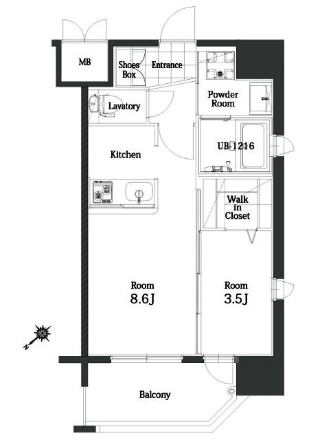
おしゃれなデザイナーズ物件!人気の角部屋で周囲の居住者の生活音も気になりにくく、また、フローリングのお部屋なのでお掃除もラクラク。室内にはウォークインクローゼットがありますので、たくさんの荷物も効率的に収納ができます。キッチンはシステムキッチン仕様になっていますので、お料理好きの方にもぴったり。バス・トイレは別なので、のんびりお風呂タイムも楽しめるでしょう。また、雨の日でも浴室乾燥機を使えば、お洗濯も問題ありません。
通信設備面では、インターネットが無料で使えるので、月々の出費を抑えられるのも魅力です。また、BSアンテナ・CSアンテナがありCATVにも対応しているので、おうち時間も充実するでしょう(別途工事、BS・CS・CATVの契約料等が必要な場合あり)。
建物にはエレベーターがついているので、重い荷物があっても安心。共用部には宅配ボックスが設定されているので、不在の時にも荷物を受け取ることができます。
このお部屋は2階以上に位置しているので、通行人や周囲の住人からの視線が気になりにくく、防犯面でも安心。建物のエントランスはオートロックがついており、インターホンにはTVモニタもついているため、相手の顔を確認してから来客対応することができます。
おしゃれなデザイナーズ物件!人気の角部屋で周囲の居住者の生活音も気になりにくく、また、フローリングのお部屋なのでお掃除もラクラク。室内にはウォークインクローゼットがありますので、たくさんの荷物も効率的に収納ができます。キッチンはシステムキッチン仕様になっていますので、お料理好きの方にもぴったり。バス・トイレは別なので、のんびりお風呂タイムも楽しめるでしょう。また、雨の日でも浴室乾燥機を使えば、お洗濯も問題ありません。
通信設備面では、インターネットが無料で使えるので、月々の出費を抑えられるのも魅力です。また、BSアンテナ・CSアンテナがありCATVにも対応しているので、おうち時間も充実するでしょう(別途工事、BS・CS・CATVの契約料等が必要な場合あり)。
建物にはエレベーターがついているので、重い荷物があっても安心。共用部には宅配ボックスが設定されているので、不在の時にも荷物を受け取ることができます。
お金・契約の情報
※「-」と表示されているものは、実際は料金が発生するものもございます。詳細はお問い合わせください。
| 家賃 | 10.7万円 | 管理費・共益費 | なし |
|---|---|---|---|
| 敷金 | なし | 礼金 | 21.4万円 |
| 入居決定でお祝い金最大100,000円 | |||
| 保証金 | - | 償却・敷引 | - |
| 住宅保険料 | - | 更新料 | - |
| 契約形態 | - | 契約期間 | 2年 |
| 入居・引渡期間 | 2026年02月上旬 | 現況 | - |
| 契約備考 | パ/サイト内間取りは反転になります。(※現状優先)/ステッカー代:空き要確認/契約更新・・・事務手数料あり【2年毎に家賃及び共益費の16.5%(税込)】/短期解約違約金・・・契約日より1年未満に解約した場合は家賃及び共益費の1ヶ月分 | ||
部屋の情報
| 間取り | 1LDK | 専有面積 | 32.85m2 |
|---|---|---|---|
| 所在階 / 向き | 10階 / - | バルコニー面積 | - |
| 水道 / ガス | ガス【プロパン】 | ||
| 設備 | バス・トイレ別、オートロック、テレビドアホン、宅配ボックス、浴室乾燥機、ウォークインクローゼット、追い焚き、光ファイバー対応、システムキッチン、エレベーター、温水洗浄便座、バルコニー、フローリング、デザイナーズ、BSアンテナ、インターネット使用料無料、シャワー、給湯、冷房、洗濯機:室内、閑静な住宅街 | ||
| 当社物件ID | 16121893 | ||
建物の情報
| 建物名 | エンクレスト天神MODE | ||
|---|---|---|---|
| 所在地 | 福岡県福岡市中央区春吉2丁目 | ||
| 交通 | 福岡市七隈線 天神南駅 徒歩6分 | ||
| 階数 | 14階建 | 総戸数 | - |
| 築年月 | 2015年02月 / 築11年 | エレベーター | あり |
| 駐車場 | - | バイク置き場 | - |
| 駐輪場 | あり | 管理人/管理会社 | - |
| 周辺環境 | 病院 ★済生会福岡総合病院 徒歩6分(427m) その他 ★福岡県中央警察署 徒歩7分(527m) その他 ★西鉄天神駅 徒歩9分(657m) その他 ★サニー渡辺通店 徒歩9分(692m) その他 ★警固神社社務所 徒歩11分(849m) その他 ★ワシントンホテル 徒歩11分(841m) その他 ★西鉄 薬院駅(大牟田線) 徒歩10分(755m) その他 ★櫛田神社前駅 徒歩13分(987m) | ||
| 建物種別 | マンション | 建物構造 | RC(鉄筋コンクリート) |
この部屋の取扱い不動産会社
| 会社名 | アパマンショップ西新店 | ||
|---|---|---|---|
| 所在地 | 福岡県福岡市早良区西新4丁目 3-9アポロ西新1F | 交通 | 福岡市空港線西新から徒歩1分 |
| 営業時間 | 10:00〜18:00(12/29〜1/2年末年始休暇) | 定休日 | - |
| 免許番号 | 福岡県知事(3)17731 | 取引態様 | 仲介 |
| 不動産会社管理番号 | 89344526 | 当社管理番号 | 4 |
| 所属団体 | (公社)福岡県宅地建物取引業協会会員 | ||
| 公正取引協議会 | (一社) 九州不動産公正取引協議会加盟 | ||
| 取扱い物件情報 | 物件詳細へ | ||
※各種情報と現状に差異がある場合は、現状優先となります。問い合わせをすることで、より詳しい条件、情報を確認する事ができます。
提供:アパマンショップ西新店
この物件が気になったら掲載期限まであと13日
エンクレスト天神MODEに条件(家賃・エリア)が近い物件一覧
| 写真 | 家賃 管理費等 | 敷金 礼金 | 間取り 専有面積 | 築年数 | 最寄り駅 所在地 | キープ | 詳細 |
|---|---|---|---|---|---|---|---|
アパート グレイス ケイ(1LDK/1階) | |||||||
![]() | 7.35万円 3,500円 | なし 7.35万円 | 1LDK 45.44m2 | 新築 | 西鉄天神大牟田線 雑餉隈駅 徒歩16分 西鉄天神大牟田線 桜並木駅 徒歩17分 西鉄天神大牟田線 春日原駅 徒歩28分 福岡県大野城市仲畑4丁目 | 詳細を見る | |
マンション レジデンス宮原(3DK/2階) | |||||||
![]() | 7.3万円 3,000円 | なし 14.6万円 | 3DK 62.13m2 | 築38年 | 西鉄天神大牟田線 下大利駅 徒歩8分 鹿児島本線 大野城駅 徒歩9分 西鉄天神大牟田線 白木原駅 徒歩10分 福岡県大野城市中央2丁目 | 詳細を見る | |
マンション ファミール春日(3LDK/3階) | |||||||
![]() | 7.3万円 3,000円 | なし 7.3万円 | 3LDK 75.18m2 | 築33年 | 鹿児島本線 大野城駅 徒歩23分 西鉄天神大牟田線 白木原駅 徒歩26分 福岡県春日市 | 詳細を見る | |
マンション ファーストハイツ95(3LDK/2階) | |||||||
![]() | 7万円 2,500円 | なし 14万円 | 3LDK 72m2 | 築31年 | 西鉄天神大牟田線 井尻駅 徒歩19分 鹿児島本線 笹原駅 徒歩23分 鹿児島本線 南福岡駅 徒歩24分 福岡県春日市須玖南3丁目 | 詳細を見る | |
マンション CAVANA天神(1K/6階) | |||||||
| 7.1万円 4,000円 | なし なし | 1K 24.68m2 | 築19年 | 福岡市七隈線 天神南駅 徒歩3分 福岡市七隈線 渡辺通駅 徒歩4分 福岡市七隈線 薬院駅 徒歩8分 福岡県福岡市中央区渡辺通5丁目15-33 | 詳細を見る | ||
マンション レジディア薬院大通(1LDK/13階) | |||||||
| 8.3万円 5,300円 | 8.3万円 8.3万円 | 1LDK 35.4m2 | 築19年 | 福岡市七隈線 薬院大通駅 徒歩2分 福岡市七隈線 薬院駅 徒歩5分 福岡市七隈線 渡辺通駅 徒歩10分 福岡県福岡市中央区 | 詳細を見る | ||
マンション グラヴィス平尾(1LDK/7階) | |||||||
| 6.5万円 5,000円 | なし なし | 1LDK 32.06m2 | 築25年 | 西鉄天神大牟田線 西鉄平尾駅 徒歩6分 福岡市七隈線 薬院大通駅 徒歩12分 福岡市七隈線 薬院駅 徒歩13分 福岡県福岡市中央区 | 詳細を見る | ||
マンション ラフォーレ春日Ⅱ(3DK/3階) | |||||||
![]() | 6.5万円 なし | なし 13万円 | 3DK 64.1m2 | 築33年 | 鹿児島本線 春日駅(福岡) 徒歩16分 西鉄天神大牟田線 春日原駅 徒歩22分 鹿児島本線 南福岡駅 徒歩34分 福岡県春日市原町2丁目 | 詳細を見る | |





