賃貸マンション
サンコーラフィーネ三宮の賃貸物件情報(1LDK/9階)
| 家賃 | 管理費等 | 敷金 | 礼金 | 間取り | 専有面積 |
|---|---|---|---|---|---|
| 9.3万円 | 1万円 | なし | 25万円 | 1LDK | 45m2 |
入居決定でお祝い金最大100,000円
- 保証金
- -
- 償却・敷引
- -
- 築年数
- 築37年
- 所在階
- 9階
- 向き
- 西
Point
☆三宮徒歩圏内で交通・生活便利!当社であれば仲介手数料0.55ヶ月です!初期費用クレジット決済OK!
提供:センチュリー21 (株)リライフ神戸三宮店(SUUMO経由)

詳細情報 サンコーラフィーネ三宮
物件紹介
サンコーラフィーネ三宮はJR東海道本線三ノ宮駅から徒歩4分にあり、駅近で通勤通学に便利なマンションです。
このお部屋は2階以上に位置しているので、通行人や周囲の住人からの視線が気になりにくく、防犯面でも安心。インターホンにはTVモニタもついているため、相手の顔を確認してから来客対応することができます。
こちらは楽器相談が可能な物件。楽器演奏をお考えの方はぜひ相談してみてください。人気の角部屋で周囲の居住者の生活音も気になりにくく、また、フローリングのお部屋なのでお掃除もラクラク。キッチンはシステムキッチン仕様になっていますので、お料理好きの方にもぴったり。また、バス・トイレは別で、のんびりお風呂タイムも楽しめるでしょう。
通信設備面では、インターネット接続が可能です。また、BSアンテナ・CSアンテナがありCATVにも対応しているので、おうち時間も充実するでしょう(別途工事、契約料が必要な場合あり)。
建物にはエレベーターがついているので、重い荷物があっても安心。また、ペット飼育の相談ができますので、あなたの大切な家族の一員も快適に暮らせるか、ぜひ確認してみてください。
このお部屋は2階以上に位置しているので、通行人や周囲の住人からの視線が気になりにくく、防犯面でも安心。インターホンにはTVモニタもついているため、相手の顔を確認してから来客対応することができます。
こちらは楽器相談が可能な物件。楽器演奏をお考えの方はぜひ相談してみてください。人気の角部屋で周囲の居住者の生活音も気になりにくく、また、フローリングのお部屋なのでお掃除もラクラク。キッチンはシステムキッチン仕様になっていますので、お料理好きの方にもぴったり。また、バス・トイレは別で、のんびりお風呂タイムも楽しめるでしょう。
通信設備面では、インターネット接続が可能です。また、BSアンテナ・CSアンテナがありCATVにも対応しているので、おうち時間も充実するでしょう(別途工事、契約料が必要な場合あり)。
建物にはエレベーターがついているので、重い荷物があっても安心。また、ペット飼育の相談ができますので、あなたの大切な家族の一員も快適に暮らせるか、ぜひ確認してみてください。
お金・契約の情報
※「-」と表示されているものは、実際は料金が発生するものもございます。詳細はお問い合わせください。
| 家賃 | 9.3万円 | 管理費・共益費 | 1万円 |
|---|---|---|---|
| 敷金 | なし | 礼金 | 25万円 |
| 入居決定でお祝い金最大100,000円 | |||
| 保証金 | - | 償却・敷引 | - |
| 住宅保険料 | - | 更新料 | - |
| 契約形態 | - | 契約期間 | - |
| 入居・引渡期間 | 相談 | 現況 | - |
| 入居可能条件 | 楽器相談 | ||
| 契約備考 | 阪神電鉄本線/神戸三宮駅徒歩7分/阪急オアシス神戸旭通店まで507m/グルメシティ新神戸店まで729m/巡回管理/☆三宮徒歩圏内で交通・生活便利!!当社であれば仲介手数料0.55ヶ月です!初期費用クレジット決済OK! 1LDK 楽器相談 普通借家2年 損保【2.2万円2年】 バストイレ別、バルコニー、ガスコンロ対応、フローリング、TVインターホン、室内洗濯置、陽当り良好、シューズボックス、システムキッチン、角住戸、脱衣所、エレベーター、駐輪場、押入、光ファイバー、2面採光、BS・CS、敷金不要、3口以上コンロ、防犯カメラ、照明付、全居室洋室、保証人不要、単身者相談、二人入居相談、24時間緊急通報システム、仲手0.55ヶ月、24時間換気システム、楽器相談、学生相談、耐震構造、3駅以上利用可、3沿線以上利用可、駅徒歩5分以内、LDK12畳以上、全居室6畳以上、都市ガス、高速ネット対応、LAN、保証会社利用可、IT重説対応物件、高齢者歓迎、初期費用カード決済可、通風良好 | ||
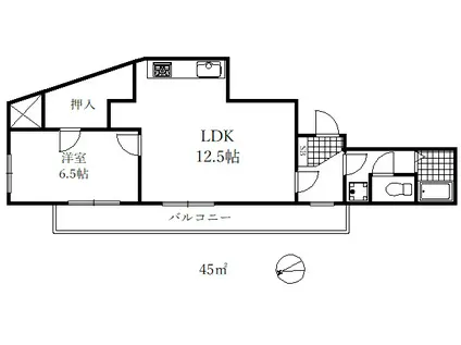
部屋の情報
| 間取り | 1LDK | 専有面積 | 45m2 |
|---|---|---|---|
| 所在階 / 向き | 9階 / 西 | バルコニー面積 | - |
| 水道 / ガス | - | ||
| 設備 | バス・トイレ別、2階以上、テレビドアホン、インターネット対応、システムキッチン、エレベーター、角部屋、バルコニー、フローリング、2口コンロ、コンロ:ガス、CSアンテナ、BSアンテナ、洗濯機:室内 | ||
| 当社物件ID | 118847320 | ||
建物の情報
| 建物名 | サンコーラフィーネ三宮 | ||
|---|---|---|---|
| 所在地 | 兵庫県神戸市中央区二宮町 | ||
| 交通 | JR東海道本線 三ノ宮駅(JR) 徒歩4分 山陽新幹線 新神戸駅 徒歩5分 阪急神戸線 神戸三宮駅(阪急) 徒歩7分 | ||
| 階数 | 9階建 | 総戸数 | - |
| 築年月 | 1989年02月 / 築37年 | エレベーター | あり |
| 駐車場 | 近隣 100m25000円 | バイク置き場 | - |
| 駐輪場 | あり | 管理人/管理会社 | - |
| 周辺環境 | その他 阪急オアシス神戸旭通店(スーパー)まで387m その他 ダイエー神戸三宮店(スーパー)まで487m その他 ローソン神戸布引町二丁目店(コンビニ)まで138m その他 ファミリーマート柳屋加納町二丁目店(コンビニ)まで167m その他 セブンイレブン神戸琴ノ緒町店(コンビニ)まで192m その他 スギ薬局三宮旭通店(ドラッグストア)まで391m | ||
| 建物種別 | マンション | 建物構造 | RC(鉄筋コンクリート) |
この部屋の取扱い不動産会社
| 会社名 | センチュリー21(株)リライフ不動産販売元町店(SUUMO経由) | ||
|---|---|---|---|
| 所在地 | 兵庫県神戸市中央区北長狭通3-3-6 元町商工ビル1階 | 交通 | - |
| 営業時間 | - | 定休日 | 年末年始 |
| 免許番号 | 兵庫県知事11911 | 取引態様 | 仲介 |
| 不動産会社管理番号 | 100477468691 | 当社管理番号 | 89 |
| 所属団体 | (公社)全日本不動産協会兵庫県本部会員 | ||
| 公正取引協議会 | (公社)近畿地区不動産公正取引協議会加盟 | ||
| 取扱い物件情報 | 物件詳細へ | ||
※各種情報と現状に差異がある場合は、現状優先となります。問い合わせをすることで、より詳しい条件、情報を確認する事ができます。
提供:センチュリー21(株)リライフ不動産販売元町店(SUUMO経由)
この物件が気になったら掲載期限まであと10日
サンコーラフィーネ三宮に条件(家賃・エリア)が近い物件一覧
| 写真 | 家賃 管理費等 | 敷金 礼金 | 間取り 専有面積 | 築年数 | 最寄り駅 所在地 | キープ | 詳細 |
|---|---|---|---|---|---|---|---|
アパート SHAMAISON雅あさぎり(2LDK/2階) | |||||||
![]() | 10.3万円 6,500円 | 5万円 なし | 2LDK 65.08m2 | 築1年 | 山陽電鉄本線 大蔵谷駅 徒歩12分 JR山陽本線 朝霧駅 徒歩17分 山陽電鉄本線 人丸前駅 徒歩21分 兵庫県明石市朝霧町 | 詳細を見る | |
アパート ヒカルサ稲美天満Ⅰ(1LDK/1階) | |||||||
![]() | 7.35万円 3,900円 | なし 7.35万円 | 1LDK 44.7m2 | 新築 | 兵庫県加古郡稲美町六分一 | 詳細を見る | |
一戸建て 神戸電鉄粟生線 三木駅(神戸電鉄) 徒歩6分 築49年(3LDK) | |||||||
![]() | 6.8万円 5,000円 | なし 13.6万円 | 3LDK 100m2 | 築49年 | 神戸電鉄粟生線 三木駅(神戸電鉄) 徒歩6分 神戸電鉄粟生線 三木上の丸駅 徒歩11分 神戸電鉄粟生線 恵比須駅 徒歩23分 兵庫県三木市本町3 | 詳細を見る | |
一戸建て 神戸電鉄粟生線 三木上の丸駅 徒歩2分 築53年(2DK) | |||||||
![]() | 7万円 なし | なし 14万円 | 2DK 52.99m2 | 築53年 | 神戸電鉄粟生線 三木上の丸駅 徒歩2分 神戸電鉄粟生線 三木駅(神戸電鉄) 徒歩12分 神戸電鉄粟生線 恵比須駅 徒歩14分 兵庫県三木市上の丸町 | 詳細を見る | |
マンション ビレッジハウス志染(3DK/5階) | |||||||
![]() | 5.71万円 なし | なし なし | 3DK 58.35m2 | 築47年 | 神戸電鉄粟生線 志染駅 徒歩12分 神戸電鉄粟生線 恵比須駅 徒歩29分 神戸電鉄粟生線 広野ゴルフ場前駅 徒歩29分 兵庫県三木市志染町西自由が丘2丁目 | 詳細を見る | |
アパート グランドールⅡ(1LDK/1階) | |||||||
![]() | 7.5万円 3,000円 | なし 7.5万円 | 1LDK 44.2m2 | 新築 | 神戸電鉄粟生線 広野ゴルフ場前駅 徒歩10分 神戸電鉄粟生線 志染駅 徒歩19分 兵庫県三木市志染町東自由が丘1丁目 | 詳細を見る | |
アパート ルナパレスD(1LDK/1階) | |||||||
![]() | 6.5万円 2,300円 | なし 6.5万円 | 1LDK 48.39m2 | 築19年 | 山陽電鉄本線 人丸前駅 徒歩17分 JR山陽本線 明石駅 徒歩24分 JR山陽本線 朝霧駅 徒歩28分 兵庫県明石市荷山町 | 詳細を見る | |
アパート ソフィア ルミエールⅡ(2DK/2階) | |||||||
![]() | 7.9万円 6,000円 | 2万円 15万円 | 2DK 58.88m2 | 築10年 | 神戸電鉄粟生線 志染駅 徒歩4分 神戸電鉄粟生線 広野ゴルフ場前駅 徒歩27分 兵庫県三木市志染町西自由が丘1丁目 | 詳細を見る | |








