賃貸マンション
ハイセレサ田無本町シティタワーの賃貸物件情報(3LDK/12階)
| 家賃 | 管理費等 | 敷金 | 礼金 | 間取り | 専有面積 |
|---|---|---|---|---|---|
| 18万円 | なし | 36万円 | 18万円 | 3LDK | 68.37m2 |
入居決定でお祝い金最大100,000円
- 保証金
- -
- 償却・敷引
- -
- 築年数
- 築26年
- 所在階
- 12階
- 向き
- 東
Point
セキュリティ面は、TVインターホン・オートロックなど充実しているので安心して生活できます。
提供:LiV Life Estate(株)ひばりヶ丘店(SUUMO経由)

詳細情報 ハイセレサ田無本町シティタワー
物件紹介
ハイセレサ田無本町シティタワーは西武新宿線田無駅から徒歩4分にあり、駅近で通勤通学に便利なマンションです。
このお部屋は2階以上に位置しているので、通行人や周囲の住人からの視線が気になりにくく、防犯面でも安心。建物のエントランスはオートロックがついており、インターホンにはTVモニタもついているため、相手の顔を確認してから来客対応することができます。
フローリングのお部屋なのでお掃除もラクラク。キッチンはシステムキッチン仕様になっていますので、お料理好きの方にもぴったり。バス・トイレは別なので、のんびりお風呂タイムも楽しめるでしょう。また、雨の日でも浴室乾燥機を使えば、お洗濯も問題ありません。
通信設備面では、インターネット接続が可能です。また、BSアンテナ・CSアンテナがありCATVにも対応しているので、おうち時間も充実するでしょう(別途工事、契約料が必要な場合あり)。
床暖房があり、冬も足元から暖かく快適に過ごすことができます。建物にはエレベーターがついているので、重い荷物があっても安心。
このお部屋は2階以上に位置しているので、通行人や周囲の住人からの視線が気になりにくく、防犯面でも安心。建物のエントランスはオートロックがついており、インターホンにはTVモニタもついているため、相手の顔を確認してから来客対応することができます。
フローリングのお部屋なのでお掃除もラクラク。キッチンはシステムキッチン仕様になっていますので、お料理好きの方にもぴったり。バス・トイレは別なので、のんびりお風呂タイムも楽しめるでしょう。また、雨の日でも浴室乾燥機を使えば、お洗濯も問題ありません。
通信設備面では、インターネット接続が可能です。また、BSアンテナ・CSアンテナがありCATVにも対応しているので、おうち時間も充実するでしょう(別途工事、契約料が必要な場合あり)。
床暖房があり、冬も足元から暖かく快適に過ごすことができます。建物にはエレベーターがついているので、重い荷物があっても安心。
お金・契約の情報
※「-」と表示されているものは、実際は料金が発生するものもございます。詳細はお問い合わせください。
| 家賃 | 18万円 | 管理費・共益費 | なし |
|---|---|---|---|
| 敷金 | 36万円 | 礼金 | 18万円 |
| 入居決定でお祝い金最大100,000円 | |||
| 保証金 | - | 償却・敷引 | - |
| 住宅保険料 | 1円 | 更新料 | - |
| その他費用 | 24時間安心サポート:1.65万円 | ||
| 保証会社利用 | 必須 | 保証会社名 | - |
| 保証会社費用 | - | 保証会社備考 | 初回保証料 90000円 |
| 契約形態 | - | 契約期間 | 2年 |
| 入居・引渡期間 | 2025年12月中旬 | 現況 | - |
| 契約備考 | その他設備/条件:室内洗濯機置き場、独立洗面台、クローゼット、シューズボックス | ||
部屋の情報
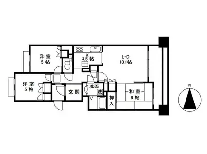
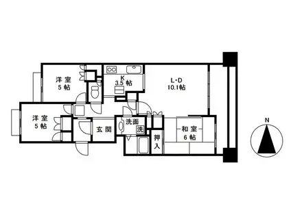
| 間取り | 3LDK | 専有面積 | 68.37m2 |
|---|---|---|---|
| 間取り詳細 | LDK(13.6帖)、洋室(5帖)、洋室(5帖)、和室(6帖) | ||
| 所在階 / 向き | 12階 / 東 | バルコニー面積 | - |
| 水道 / ガス | ガス【都市】 | ||
| 設備 | バス・トイレ別、オートロック、テレビドアホン、浴室乾燥機、インターネット対応、システムキッチン、エアコン、エレベーター、温水洗浄便座、フローリング、洗髪洗面化粧台、床暖房、BSアンテナ、給湯 | ||
| 当社物件ID | 159874125 | ||
建物の情報
| 建物名 | ハイセレサ田無本町シティタワー | ||
|---|---|---|---|
| 所在地 | 東京都西東京市田無町5丁目 | ||
| 交通 | 西武鉄道新宿線 田無駅 徒歩5分 西武鉄道新宿線 西武柳沢駅 徒歩18分 | ||
| 階数 | 14階建 | 総戸数 | - |
| 築年月 | 2000年07月 / 築26年 | エレベーター | あり |
| 駐車場 | - | バイク置き場 | - |
| 駐輪場 | - | 管理人/管理会社 | - |
| 周辺環境 | 病院 徒歩1分(79m) その他 ドラッグストア その他 公園 その他 銀行 その他 * | ||
| 建物種別 | マンション | 建物構造 | SRC(鉄骨鉄筋コンクリート) |
この部屋の取扱い不動産会社
| 会社名 | ハウスコム西東京株式会社 ひばりヶ丘店 | ||
|---|---|---|---|
| 所在地 | 東京都西東京市27-9JCビルⅡ1階 | 交通 | - |
| 営業時間 | 10:00~18:00 | 定休日 | - |
| 免許番号 | 東京都知事(1)第108225号 | 取引態様 | 仲介 |
| 不動産会社管理番号 | HC2-5244442-1202-0264 | 当社管理番号 | 468 |
| 所属団体 | 、 | ||
| 取扱い物件情報 | 物件詳細へ | ||
※各種情報と現状に差異がある場合は、現状優先となります。問い合わせをすることで、より詳しい条件、情報を確認する事ができます。
提供:ハウスコム西東京株式会社 ひばりヶ丘店
この物件が気になったら掲載期限まであと5日
ハイセレサ田無本町シティタワーに条件(家賃・エリア)が近い物件一覧
| 写真 | 家賃 管理費等 | 敷金 礼金 | 間取り 専有面積 | 築年数 | 最寄り駅 所在地 | キープ | 詳細 |
|---|---|---|---|---|---|---|---|
マンション プライムメゾン武蔵野の杜(2LDK/3階) | |||||||
![]() | 15.8万円 1万円 | 15.8万円 15.8万円 | 2LDK 52.23m2 | 築19年 | 西武鉄道国分寺線 恋ケ窪駅 徒歩17分 中央本線 国分寺駅 徒歩18分 東京都小平市上水本町5丁目 | 詳細を見る | |
マンション RESTAひばりヶ丘(2DK/3階) | |||||||
![]() | 14万円 5,000円 | 14万円 なし | 2DK 47.9m2 | 築32年 | 西武池袋線 ひばりケ丘駅(東京) 徒歩7分 西武池袋線 東久留米駅 徒歩26分 西武池袋線 保谷駅 徒歩26分 東京都西東京市ひばりが丘北 | 詳細を見る | |
マンション 光が丘パークタウン大通南7号棟(3LDK/6階) | |||||||
![]() | 20万円 なし | 40万円 20万円 | 3LDK 77.47m2 | 築41年 | 東京都大江戸線 光が丘駅 徒歩5分 東京都練馬区光が丘7丁目 | 詳細を見る | |
マンション グランドール一橋学園I(3LDK/3階) | |||||||
![]() | 11万円 1万円 | 11万円 なし | 3LDK 72m2 | 築26年 | 西武多摩湖線 一橋学園駅 徒歩9分 西武新宿線 小平駅 徒歩21分 西武多摩湖線 青梅街道駅 徒歩22分 東京都小平市喜平町 | 詳細を見る | |
マンション ピアコートTM上石神井 弐番館(1LDK/3階) | |||||||
![]() | 12.5万円 6,000円 | なし なし | 1LDK 33.18m2 | 築3年 | 西武鉄道新宿線 上石神井駅 徒歩5分 東京都練馬区上石神井1丁目 | 詳細を見る | |
アパート ガーデンハウス B(1LDK/1階) | |||||||
![]() | 11.5万円 1.5万円 | なし 11.5万円 | 1LDK 45.69m2 | 築14年 | 西武新宿線 井荻駅 徒歩12分 西武新宿線 下井草駅 徒歩16分 西武池袋線 練馬高野台駅 徒歩18分 東京都練馬区南田中 | 詳細を見る | |
アパート SUZUSHIRO(1SLDK/2階) | |||||||
![]() | 12.5万円 1,000円 | 12.5万円 12.5万円 | 1SLDK 60.03m2 | 築9年 | 都営大江戸線 光が丘駅 徒歩24分 東京都練馬区土支田 | 詳細を見る | |
マンション ソニフレア(2LDK/1階) | |||||||
![]() | 16.5万円 5,000円 | 16.5万円 16.5万円 | 2LDK 52.4m2 | 築1年 | 西武池袋線 保谷駅 徒歩14分 西武池袋線 大泉学園駅 徒歩15分 西武新宿線 武蔵関駅 徒歩30分 東京都練馬区南大泉 | 詳細を見る | |





/105x80-f1-q70-wp1)


