賃貸マンション
レジディア日本橋馬喰町Ⅲの賃貸物件情報(1LDK/2階)
| 家賃 | 管理費等 | 敷金 | 礼金 | 間取り | 専有面積 |
|---|---|---|---|---|---|
| 22万円 | 2万円 | 22万円 | なし | 1LDK | 46.32m2 |
入居決定でお祝い金最大100,000円
- 保証金
- -
- 償却・敷引
- -
- 築年数
- 築19年
- 所在階
- 2階
- 向き
- 北
Point
駅徒歩5分以内なので、通勤通学やお買い物に大変便利です。ペット相談可、これからペットを飼いたいと思っている方にもおすすめです。床暖房あり。お部屋の空気が汚れず、冬でも陽だまりのような暖かさです。
提供:恵比寿不動産 恵比寿店(株)ライフアドバンス(SUUMO経由)

詳細情報 レジディア日本橋馬喰町Ⅲ
物件紹介
レジディア日本橋馬喰町ⅢはJR総武線浅草橋駅から徒歩3分にあり、駅近で通勤通学に便利なマンションです。
このお部屋は2階以上に位置しているので、通行人や周囲の住人からの視線が気になりにくく、防犯面でも安心。建物のエントランスはオートロックがついており、インターホンにはTVモニタもついているため、相手の顔を確認してから来客対応することができます。
人気の角部屋で周囲の居住者の生活音も気になりにくく、また、フローリングのお部屋なのでお掃除もラクラク。キッチンはシステムキッチン仕様になっていますので、お料理好きの方にもぴったり。バス・トイレは別なので、のんびりお風呂タイムも楽しめるでしょう。また、雨の日でも浴室乾燥機を使えば、お洗濯も問題ありません。
通信設備面では、インターネット接続が可能です。また、BSアンテナ・CSアンテナがありCATVにも対応しているので、おうち時間も充実するでしょう(別途工事、契約料が必要な場合あり)。
床暖房があり、冬も足元から暖かく快適に過ごすことができます。建物にはエレベーターがついているので、重い荷物があっても安心。共用部には宅配ボックスが設定されているので、不在の時にも荷物を受け取ることができます。また、ペット飼育の相談ができますので、あなたの大切な家族の一員も快適に暮らせるか、ぜひ確認してみてください。
コンビニまで徒歩16分の場所にあり、日用品や食料品のお買い物にも便利です。
このお部屋は2階以上に位置しているので、通行人や周囲の住人からの視線が気になりにくく、防犯面でも安心。建物のエントランスはオートロックがついており、インターホンにはTVモニタもついているため、相手の顔を確認してから来客対応することができます。
人気の角部屋で周囲の居住者の生活音も気になりにくく、また、フローリングのお部屋なのでお掃除もラクラク。キッチンはシステムキッチン仕様になっていますので、お料理好きの方にもぴったり。バス・トイレは別なので、のんびりお風呂タイムも楽しめるでしょう。また、雨の日でも浴室乾燥機を使えば、お洗濯も問題ありません。
通信設備面では、インターネット接続が可能です。また、BSアンテナ・CSアンテナがありCATVにも対応しているので、おうち時間も充実するでしょう(別途工事、契約料が必要な場合あり)。
床暖房があり、冬も足元から暖かく快適に過ごすことができます。建物にはエレベーターがついているので、重い荷物があっても安心。共用部には宅配ボックスが設定されているので、不在の時にも荷物を受け取ることができます。また、ペット飼育の相談ができますので、あなたの大切な家族の一員も快適に暮らせるか、ぜひ確認してみてください。
コンビニまで徒歩16分の場所にあり、日用品や食料品のお買い物にも便利です。
お金・契約の情報
※「-」と表示されているものは、実際は料金が発生するものもございます。詳細はお問い合わせください。
| 家賃 | 22万円 | 管理費・共益費 | 2万円 |
|---|---|---|---|
| 敷金 | 22万円 | 礼金 | なし |
| 入居決定でお祝い金最大100,000円 | |||
| 保証金 | - | 償却・敷引 | - |
| 住宅保険料 | - | 更新料 | - |
| 保証会社利用 | 必須 | 保証会社名 | - |
| 保証会社費用 | - | 保証会社備考 | 保証会社利用必 初回契約時:40%、更新時:10000円、月額:1000円 |
| 契約形態 | - | 契約期間 | - |
| 入居・引渡期間 | 即時 | 現況 | - |
| 入居可能条件 | ペット相談 | ||
| 契約備考 | 都営新宿線岩本町駅徒歩10分 合計2.2万円(内訳:鍵交換代:22000円) 更新料新賃料(ヶ月):1.00ヶ月、駐輪場:空有:330円/月、バイク置場:空有:3300円/月、インターネット使用料:1650円/月 1LDK ペット相談 普通借家2年 損保【2.15万円2年】 バストイレ別、エアコン、クロゼット、TVインターホン、浴室乾燥機、オートロック、室内洗濯置、システムキッチン、温水洗浄便座、エレベーター、駐輪場、宅配ボックス、即入居可、礼金不要、BS・CS、防犯カメラ、ペット相談、敷金1ヶ月、バイク置場、ダブルロックキー、保証金不要、2駅利用可、3沿線以上利用可、駅徒歩5分以内 | ||
部屋の情報
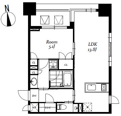
| 間取り | 1LDK | 専有面積 | 46.32m2 |
|---|---|---|---|
| 所在階 / 向き | 2階 / 北 | バルコニー面積 | - |
| 水道 / ガス | - | ||
| 設備 | バス・トイレ別、2階以上、オートロック、テレビドアホン、宅配ボックス、浴室乾燥機、システムキッチン、エアコン、エレベーター、温水洗浄便座、CSアンテナ、BSアンテナ、洗濯機:室内 | ||
| 当社物件ID | 28526008 | ||
建物の情報
| 建物名 | レジディア日本橋馬喰町Ⅲ | ||
|---|---|---|---|
| 所在地 | 東京都中央区日本橋馬喰町 | ||
| 交通 | JR総武線 浅草橋駅 徒歩3分 JR総武線快速 馬喰町駅 徒歩4分 JR山手線 秋葉原駅 徒歩9分 | ||
| 階数 | 12階建 | 総戸数 | 55戸 |
| 築年月 | 2008年03月 / 築19年 | エレベーター | あり |
| 駐車場 | なし | バイク置き場 | あり |
| 駐輪場 | あり | 管理人/管理会社 | - |
| 周辺環境 | その他 まいばすけっと浅草橋1丁目店(スーパー)まで180m その他 アトレ秋葉原2(ショッピングセンター)まで840m その他 マツモトキヨシ浅草橋駅前店(ドラッグストア)まで520m その他 ミニストップ日本橋馬喰町2丁目店(コンビニ)まで130m その他 ヨドバシカメラマルチメディアAkiba(ホームセンター)まで990m その他 馬喰町駅(JR東日本 総武本線)(その他)まで450m | ||
| 建物種別 | マンション | 建物構造 | RC(鉄筋コンクリート) |
この部屋の取扱い不動産会社
| 会社名 | 恵比寿不動産 (株)ライフアドバンス(SUUMO経由) | ||
|---|---|---|---|
| 所在地 | 東京都渋谷区東3-25-11 TOKYU REIT恵比寿ビル4階 | 交通 | - |
| 営業時間 | 10時から19時 | 定休日 | 水曜日 |
| 免許番号 | 東京都知事97301 | 取引態様 | 仲介 |
| 不動産会社管理番号 | 100483231553 | 当社管理番号 | 89 |
| 所属団体 | (公社)全日本不動産協会東京都本部会員 | ||
| 公正取引協議会 | (公社)首都圏不動産公正取引協議会加盟 | ||
| 取扱い物件情報 | 物件詳細へ | ||
※各種情報と現状に差異がある場合は、現状優先となります。問い合わせをすることで、より詳しい条件、情報を確認する事ができます。
提供:恵比寿不動産 (株)ライフアドバンス(SUUMO経由)
この物件が気になったら掲載期限まであと11日
レジディア日本橋馬喰町Ⅲに条件(家賃・エリア)が近い物件一覧
| 写真 | 家賃 管理費等 | 敷金 礼金 | 間取り 専有面積 | 築年数 | 最寄り駅 所在地 | キープ | 詳細 |
|---|---|---|---|---|---|---|---|
マンション ルーブル亀戸天神前(1K/5階) | |||||||
![]() | 13.3万円 1.1万円 | なし 13.3万円 | 1K 25.48m2 | 築13年 | 総武本線 錦糸町駅 徒歩10分 東京地下鉄半蔵門線 錦糸町駅 徒歩10分 総武・中央緩行線 亀戸駅 徒歩15分 東京都江東区亀戸3丁目 | 詳細を見る | |
マンション OAKLANCE錦糸町(1DK/6階) | |||||||
![]() | 14.3万円 1万円 | なし なし | 1DK 26.17m2 | 築1年 | 総武本線 錦糸町駅 徒歩9分 東京地下鉄半蔵門線 錦糸町駅 徒歩10分 東京都墨田区亀沢4丁目 | 詳細を見る | |
マンション メイクス錦糸町(2LDK/7階) | |||||||
![]() | 18.3万円 1.2万円 | 18.3万円 18.3万円 | 2LDK 48.38m2 | 築6年 | 総武・中央緩行線 錦糸町駅 徒歩12分 東京地下鉄半蔵門線 錦糸町駅 徒歩12分 東京都浅草線 本所吾妻橋駅 徒歩12分 東京都墨田区石原4丁目 | 詳細を見る | |
マンション プライマル月島(1K/3階) | |||||||
![]() | 14万円 1万円 | 14万円 なし | 1K 27.46m2 | 築5年 | 東京都大江戸線 月島駅 徒歩3分 東京地下鉄有楽町線 月島駅 徒歩3分 東京都中央区月島1丁目 | 詳細を見る | |
マンション パークハビオ水天宮前(ワンルーム/2階) | |||||||
![]() | 19万円 1.5万円 | 19万円 なし | ワンルーム 40.02m2 | 築19年 | 東京地下鉄半蔵門線 水天宮前駅 徒歩3分 東京地下鉄日比谷線 人形町駅 徒歩7分 東京都新宿線 浜町駅 徒歩11分 東京都中央区日本橋蛎殻町2丁目 | 詳細を見る | |
マンション コスモグラシア両国レジデンス(1DK/6階) | |||||||
![]() | 13.2万円 1万円 | なし なし | 1DK 25.59m2 | 築4年 | 都営大江戸線 両国駅 徒歩5分 JR総武線 両国駅 徒歩10分 東京都墨田区緑 | 詳細を見る | |
マンション フロリス オーランティウム3(1LDK/2階) | |||||||
![]() | 19.4万円 1.1万円 | なし 19.4万円 | 1LDK 46.5m2 | 築55年 | 都営大江戸線 月島駅 徒歩2分 都営大江戸線 勝どき駅 徒歩7分 東京メトロ日比谷線 築地駅 徒歩21分 東京都中央区月島 | 詳細を見る | |
マンション ARKMARK水天宮前I(1DK/3階) | |||||||
![]() | 13.2万円 1.5万円 | なし なし | 1DK 25.35m2 | 築6年 | 東京メトロ半蔵門線 水天宮前駅 徒歩9分 東京メトロ東西線 門前仲町駅 徒歩9分 東京メトロ日比谷線 茅場町駅 徒歩13分 東京都江東区佐賀 | 詳細を見る | |








