賃貸マンション
Dクラディア仙台五橋の賃貸物件情報(1LDK/6階)
| 家賃 | 管理費等 | 敷金 | 礼金 | 間取り | 専有面積 |
|---|---|---|---|---|---|
| 12万円 | 1,100円 | 12万円 | 12万円 | 1LDK | 52.68m2 |
入居決定でお祝い金最大100,000円
- 保証金
- -
- 償却・敷引
- -
- 築年数
- 築23年
- 所在階
- 6階
- 向き
- 西
Point
仙台駅まで徒歩10分!五橋1丁目、分譲タイプ1LDKです。設備も充実しております。
提供:(有)ホームランド仙台(SUUMO経由)

詳細情報 Dクラディア仙台五橋
物件紹介
Dクラディア仙台五橋は仙台市地下鉄南北線五橋駅から徒歩3分にあり、駅近で通勤通学に便利なマンションです。
このお部屋は2階以上に位置しているので、通行人や周囲の住人からの視線が気になりにくく、防犯面でも安心。建物のエントランスはオートロックがついており、インターホンにはTVモニタもついているため、相手の顔を確認してから来客対応することができます。
フローリングのお部屋なのでお掃除もラクラク。バス・トイレ別の仕様で、のんびりお風呂タイムも楽しめます。また、浴室乾燥機を使えば、雨の日でもお洗濯は問題ありません。
通信設備面では、インターネット接続が可能です(別途工事、契約料が必要な場合あり)。
建物にはエレベーターがついているので、重い荷物があっても安心。共用部には宅配ボックスが設定されているので、不在の時にも荷物を受け取ることができます。
このお部屋は2階以上に位置しているので、通行人や周囲の住人からの視線が気になりにくく、防犯面でも安心。建物のエントランスはオートロックがついており、インターホンにはTVモニタもついているため、相手の顔を確認してから来客対応することができます。
フローリングのお部屋なのでお掃除もラクラク。バス・トイレ別の仕様で、のんびりお風呂タイムも楽しめます。また、浴室乾燥機を使えば、雨の日でもお洗濯は問題ありません。
通信設備面では、インターネット接続が可能です(別途工事、契約料が必要な場合あり)。
建物にはエレベーターがついているので、重い荷物があっても安心。共用部には宅配ボックスが設定されているので、不在の時にも荷物を受け取ることができます。
お金・契約の情報
※「-」と表示されているものは、実際は料金が発生するものもございます。詳細はお問い合わせください。
| 家賃 | 12万円 | 管理費・共益費 | 1,100円 |
|---|---|---|---|
| 敷金 | 12万円 | 礼金 | 12万円 |
| 入居決定でお祝い金最大100,000円 | |||
| 保証金 | - | 償却・敷引 | - |
| 住宅保険料 | - | 更新料 | - |
| 保証会社利用 | 必須 | 保証会社名 | - |
| 保証会社費用 | - | 保証会社備考 | 保証会社利用必 アーク賃貸保証へ加入、初回保証料は合計賃料額の70%、月額保証料は2000円になります。連帯保証人不要です。 |
| 契約形態 | - | 契約期間 | - |
| 入居・引渡期間 | 相談 | 現況 | - |
| 契約備考 | JR仙台病院まで288m/私立仙台青葉学院大学五橋キャンまで430m/通勤管理 1LDK 二人入居可/子供可 損保【2.5万円2年】 バストイレ別、バルコニー、エアコン、クロゼット、フローリング、シャワー付洗面台、TVインターホン、浴室乾燥機、オートロック、室内洗濯置、陽当り良好、シューズボックス、追焚機能浴室、温水洗浄便座、エレベーター、洗面所独立、駐輪場、宅配ボックス、光ファイバー、外壁タイル張り、3口以上コンロ、対面式キッチン、防犯カメラ、IHクッキングヒーター、分譲賃貸、オートバス、保証人不要、二人入居相談、オール電化、全居室フローリング、ディンプルキー、ネット専用回線、食器洗乾燥機、ダブルロックキー、浴室に窓、人感照明センサー、3駅以上利用可、駅徒歩10分以内、バス停徒歩3分以内、敷地内ごみ置き場、来客用パーキング、日勤管理、当社管理物件、LDK12畳以上、洗面所にドア、縦型照明付洗面化粧台、シューズWIC、間接照明、保証会社利用可、高齢者歓迎、初期費用カード決済可 | ||
部屋の情報
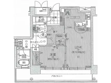
| 間取り | 1LDK | 専有面積 | 52.68m2 |
|---|---|---|---|
| 所在階 / 向き | 6階 / 西 | バルコニー面積 | - |
| 水道 / ガス | - | ||
| 設備 | バス・トイレ別、2階以上、オートロック、テレビドアホン、宅配ボックス、浴室乾燥機、追い焚き、インターネット対応、エアコン、エレベーター、温水洗浄便座、バルコニー、フローリング、洗髪洗面化粧台、オール電化、2口コンロ、コンロ:IH、洗濯機:室内 | ||
| 当社物件ID | 18566819 | ||
建物の情報
| 建物名 | Dクラディア仙台五橋 | ||
|---|---|---|---|
| 所在地 | 宮城県仙台市青葉区五橋 | ||
| 交通 | 仙台市地下鉄南北線 五橋駅 徒歩3分 仙台市地下鉄東西線 宮城野通駅 徒歩11分 仙台市地下鉄南北線 仙台駅 徒歩11分 | ||
| 階数 | 10階建 | 総戸数 | - |
| 築年月 | 2003年10月 / 築23年 | エレベーター | あり |
| 駐車場 | なし | バイク置き場 | - |
| 駐輪場 | あり | 管理人/管理会社 | - |
| 周辺環境 | その他 イオンエクスプレス仙台五橋駅前店(スーパー)まで244m その他 COOP MIYAGI新寺店(スーパー)まで540m その他 セブンイレブン仙台五橋駅前店(コンビニ)まで50m その他 ココカラファイン五橋店(ドラッグストア)まで434m その他 私立仙台青葉学院大学五橋キャンパス(大学・短大)まで430m その他 JR仙台病院(病院)まで288m | ||
| 建物種別 | マンション | 建物構造 | RC(鉄筋コンクリート) |
この部屋の取扱い不動産会社
| 会社名 | (有)ホームランド仙台(SUUMO経由) | ||
|---|---|---|---|
| 所在地 | 宮城県仙台市泉区市名坂字万吉前 143 | 交通 | - |
| 営業時間 | 9:00~18:00※営業時間外も対応可能です | 定休日 | 水・日・祝日 |
| 免許番号 | 宮城県知事4464 | 取引態様 | 仲介 |
| 不動産会社管理番号 | 100489240932 | 当社管理番号 | 89 |
| 所属団体 | (公社)宮城県宅地建物取引業協会会員 | ||
| 公正取引協議会 | 東北地区不動産公正取引協議会加盟 | ||
| 取扱い物件情報 | 物件詳細へ | ||
※各種情報と現状に差異がある場合は、現状優先となります。問い合わせをすることで、より詳しい条件、情報を確認する事ができます。
提供:(有)ホームランド仙台(SUUMO経由)
この物件が気になったら掲載期限まであと10日
Dクラディア仙台五橋に条件(家賃・エリア)が近い物件一覧
| 写真 | 家賃 管理費等 | 敷金 礼金 | 間取り 専有面積 | 築年数 | 最寄り駅 所在地 | キープ | 詳細 |
|---|---|---|---|---|---|---|---|
マンション 降旗ビル(3DK/7階) | |||||||
![]() | 8万円 5,000円 | 16万円 8万円 | 3DK 68m2 | 築45年 | 仙台市地下鉄東西線 宮城野通駅 徒歩6分 JR仙石線 榴ケ岡駅 徒歩7分 仙台市地下鉄南北線 仙台駅 徒歩13分 宮城県仙台市宮城野区榴岡 | 詳細を見る | |
マンション サンライズ本町(1LDK/10階) | |||||||
![]() | 10万円 8,000円 | なし なし | 1LDK 31.48m2 | 築1年 | 仙台市地下鉄南北線 勾当台公園駅 徒歩2分 仙台市地下鉄南北線 広瀬通駅 徒歩5分 仙台市地下鉄南北線 仙台駅 徒歩10分 宮城県仙台市青葉区本町 | 詳細を見る | |
マンション ネベル北四番丁PRIERE(1LDK/10階) | |||||||
![]() | 13万円 なし | 13万円 13万円 | 1LDK 38.25m2 | 築2年 | 仙台市地下鉄南北線 北四番丁駅 徒歩2分 宮城県仙台市青葉区二日町 | 詳細を見る | |
アパート プランドール雷神(1LDK/2階) | |||||||
![]() | 7.7万円 3,500円 | なし 7.7万円 | 1LDK 34.47m2 | 築1年 | JR東北本線 館腰駅 徒歩8分 仙台空港鉄道 杜せきのした駅 徒歩46分 JR東北本線 名取駅 徒歩49分 宮城県名取市植松 | 詳細を見る | |
マンション ネオグランデ八幡ウエストヒルズ(3LDK/1階) | |||||||
![]() | 11万円 なし | 11万円 11万円 | 3LDK 96.96m2 | 築25年 | JR仙山線 国見駅(宮城) 徒歩10分 宮城県仙台市青葉区国見 | 詳細を見る | |
マンション デュオフラッツ仙台木町通リネア(1DK/6階) | |||||||
![]() | 8.3万円 5,000円 | 8.3万円 8.3万円 | 1DK 25.73m2 | 築1年 | 仙台市地下鉄南北線 北四番丁駅 徒歩8分 仙台市地下鉄南北線 勾当台公園駅 徒歩16分 宮城県仙台市青葉区木町通 | 詳細を見る | |
マンション カスタリア大町(ワンルーム/9階) | |||||||
![]() | 8.7万円 6,000円 | なし 8.7万円 | ワンルーム 29.98m2 | 築19年 | 仙台市地下鉄東西線 大町西公園駅 徒歩3分 仙台市地下鉄東西線 青葉通一番町駅 徒歩6分 仙台市地下鉄南北線 広瀬通駅 徒歩10分 宮城県仙台市青葉区大町 | 詳細を見る | |
アパート LARA向山(1LDK/2階) | |||||||
![]() | 8.2万円 3,000円 | 4.1万円 12.3万円 | 1LDK 47.82m2 | 築1年 | 仙台市地下鉄南北線 愛宕橋駅 徒歩15分 仙台市地下鉄南北線 五橋駅 徒歩18分 仙台市地下鉄南北線 河原町駅(宮城) 徒歩19分 宮城県仙台市太白区向山 | 詳細を見る | |









