賃貸マンション
トーシンフェニックス日本橋イーストの賃貸物件情報(1K/3階)
| 家賃 | 管理費等 | 敷金 | 礼金 | 間取り | 専有面積 |
|---|---|---|---|---|---|
| 8.5万円 | 1万円 | なし | 8.5万円 | 1K | 20.72m2 |
入居決定でお祝い金最大100,000円
- 保証金
- -
- 償却・敷引
- -
- 築年数
- 築24年
- 所在階
- 3階
- 向き
- 南東
Point
オンラインにて申込みから契約までのお手続きも可能です。入居日が合わずにお悩みの方、契約金のお見積もりや室内写真のご要望などお気軽にお問い合わせください。初期費用の分割払いも承ります。
提供:(株)ヴィックスリアルエステートリアルティ錦糸町店(SUUMO経由)

詳細情報 トーシンフェニックス日本橋イースト
物件紹介
トーシンフェニックス日本橋イーストは都営新宿線馬喰横山駅から徒歩4分にあり、駅近で通勤通学に便利なマンションです。
このお部屋は2階以上に位置しているので、通行人や周囲の住人からの視線が気になりにくく、防犯面でも安心。建物のエントランスはオートロックがついており、インターホンにはTVモニタもついているため、相手の顔を確認してから来客対応することができます。
人気の南向きのお部屋。また、フローリングなのでお掃除もラクラク。キッチンはシステムキッチン仕様になっていますので、お料理好きの方にもぴったり。バス・トイレは別なので、のんびりお風呂タイムも楽しめるでしょう。また、雨の日でも浴室乾燥機を使えば、お洗濯も問題ありません。
通信設備面では、インターネットが無料で使えるので、月々の出費を抑えられるのも魅力です。また、BSアンテナ・CSアンテナがありCATVにも対応しているので、おうち時間も充実するでしょう(別途工事、BS・CS・CATVの契約料等が必要な場合あり)。
建物にはエレベーターがついているので、重い荷物があっても安心。共用部には宅配ボックスが設定されているので、不在の時にも荷物を受け取ることができます。
このお部屋は2階以上に位置しているので、通行人や周囲の住人からの視線が気になりにくく、防犯面でも安心。建物のエントランスはオートロックがついており、インターホンにはTVモニタもついているため、相手の顔を確認してから来客対応することができます。
人気の南向きのお部屋。また、フローリングなのでお掃除もラクラク。キッチンはシステムキッチン仕様になっていますので、お料理好きの方にもぴったり。バス・トイレは別なので、のんびりお風呂タイムも楽しめるでしょう。また、雨の日でも浴室乾燥機を使えば、お洗濯も問題ありません。
通信設備面では、インターネットが無料で使えるので、月々の出費を抑えられるのも魅力です。また、BSアンテナ・CSアンテナがありCATVにも対応しているので、おうち時間も充実するでしょう(別途工事、BS・CS・CATVの契約料等が必要な場合あり)。
建物にはエレベーターがついているので、重い荷物があっても安心。共用部には宅配ボックスが設定されているので、不在の時にも荷物を受け取ることができます。
お金・契約の情報
※「-」と表示されているものは、実際は料金が発生するものもございます。詳細はお問い合わせください。
| 家賃 | 8.5万円 | 管理費・共益費 | 1万円 |
|---|---|---|---|
| 敷金 | なし | 礼金 | 8.5万円 |
| 入居決定でお祝い金最大100,000円 | |||
| 保証金 | - | 償却・敷引 | - |
| 住宅保険料 | - | 更新料 | - |
| 保証会社利用 | 必須 | 保証会社名 | - |
| 保証会社費用 | - | 保証会社備考 | 保証会社利用必 初回保証料 賃料・管理費の50パーセント 月額 賃料・管理費の1パーセント |
| 契約形態 | - | 契約期間 | - |
| 入居・引渡期間 | 即時 | 現況 | - |
| 契約備考 | 【仲介手数料無料(0円)対象物件】初期費用の分割・クレジットカード決済可能です!お気軽にご相談下さい。 合計5.5万円(内訳:24hサポート(税込)1.65万円契約事務手数料(税込)1.1万円鍵交換代2.75万円) 更新料 新賃料1.00ヶ月分 室内清掃費用 49500円 1K 普通借家2年 損保【2.15万円2年】 バストイレ別、バルコニー、エアコン、ガスコンロ対応、クロゼット、フローリング、浴室乾燥機、オートロック、室内洗濯置、シューズボックス、システムキッチン、エレベーター、2口コンロ、駐輪場、宅配ボックス、CATV、外壁タイル張り、即入居可、防犯カメラ、照明付、保証人不要、ディンプルキー、CS、ネット専用回線、ネット使用料不要、保証金不要、24時間換気システム、人感照明センサー、3駅以上利用可、3沿線以上利用可、駅徒歩5分以内、24時間ゴミ出し可、敷地内ごみ置き場、都市ガス、BS、保証会社利用可、初期費用カード決済可 | ||
部屋の情報
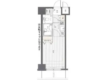
| 間取り | 1K | 専有面積 | 20.72m2 |
|---|---|---|---|
| 所在階 / 向き | 3階 / 南東 | バルコニー面積 | 3m2 |
| 水道 / ガス | - | ||
| 設備 | バス・トイレ別、2階以上、オートロック、宅配ボックス、浴室乾燥機、インターネット対応、システムキッチン、エアコン、エレベーター、南向き、バルコニー、フローリング、2口コンロ、コンロ:ガス、CATV、CSアンテナ、BSアンテナ、インターネット使用料無料、洗濯機:室内 | ||
| 当社物件ID | 26661479 | ||
建物の情報
| 建物名 | トーシンフェニックス日本橋イースト | ||
|---|---|---|---|
| 所在地 | 東京都中央区日本橋富沢町 | ||
| 交通 | 都営新宿線 馬喰横山駅 徒歩4分 都営浅草線 東日本橋駅 徒歩4分 東京メトロ日比谷線 小伝馬町駅 徒歩5分 | ||
| 階数 | 地下1地上11階建 | 総戸数 | 71戸 |
| 築年月 | 2002年10月 / 築24年 | エレベーター | あり |
| 駐車場 | なし | バイク置き場 | - |
| 駐輪場 | あり | 管理人/管理会社 | - |
| 周辺環境 | その他 都営地下鉄 馬喰横山駅(その他)まで375m その他 小伝馬町駅(その他)まで409m その他 東日本橋駅(その他)まで452m その他 まいばすっけと 日本橋横山町店(スーパー)まで265m その他 まいばすけっと 日本橋横山町店(スーパー)まで265m その他 セブンイレブン日本橋堀留町2丁目店(コンビニ)まで169m | ||
| 建物種別 | マンション | 建物構造 | RC(鉄筋コンクリート) |
この部屋の取扱い不動産会社
| 会社名 | (株)アクセス上野店(SUUMO経由) | ||
|---|---|---|---|
| 所在地 | 東京都台東区上野6-7-16 古谷ビル3階 | 交通 | - |
| 営業時間 | 10:00~19:00 | 定休日 | 毎週水曜日(祝日の場合は営業) |
| 免許番号 | 東京都知事94469 | 取引態様 | 仲介 |
| 不動産会社管理番号 | 100474673489 | 当社管理番号 | 89 |
| 所属団体 | (公社)東京都宅地建物取引業協会会員 | ||
| 公正取引協議会 | (公社)首都圏不動産公正取引協議会加盟 | ||
| 取扱い物件情報 | 物件詳細へ | ||
※各種情報と現状に差異がある場合は、現状優先となります。問い合わせをすることで、より詳しい条件、情報を確認する事ができます。
提供:(株)アクセス上野店(SUUMO経由)
この物件が気になったら掲載期限まであと10日
トーシンフェニックス日本橋イーストに条件(家賃・エリア)が近い物件一覧
| 写真 | 家賃 管理費等 | 敷金 礼金 | 間取り 専有面積 | 築年数 | 最寄り駅 所在地 | キープ | 詳細 |
|---|---|---|---|---|---|---|---|
マンション リビオメゾン両国ノース(1K/12階) | |||||||
![]() | 12万円 1万円 | 12万円 なし | 1K 25.01m2 | 築5年 | 東京都大江戸線 両国駅 徒歩5分 総武・中央緩行線 両国駅 徒歩10分 東京都墨田区横網2丁目 | 詳細を見る | |
マンション ディアレイシャス押上タワービュー通(ワンルーム/2階) | |||||||
![]() | 10.7万円 8,000円 | 10.7万円 10.7万円 | ワンルーム 26.22m2 | 築12年 | 東京都浅草線 押上駅 徒歩8分 東武伊勢崎・大師線 とうきょうスカイツリー駅 徒歩11分 総武・中央緩行線 錦糸町駅 徒歩12分 東京都墨田区横川1丁目 | 詳細を見る | |
マンション エスポワール(1K/4階) | |||||||
![]() | 9万円 5,000円 | なし 9万円 | 1K 26.52m2 | 築24年 | 東京地下鉄日比谷線 入谷駅(東京) 徒歩5分 山手線 上野駅 徒歩10分 東京地下鉄銀座線 稲荷町駅(東京) 徒歩10分 東京都台東区北上野2丁目 | 詳細を見る | |
マンション サザンフロント新富町(1K/4階) | |||||||
![]() | 10.7万円 5,000円 | 5.35万円 10.7万円 | 1K 22.37m2 | 築6年 | 東京地下鉄有楽町線 新富町駅(東京) 徒歩6分 東京都大江戸線 月島駅 徒歩8分 東京地下鉄日比谷線 築地駅 徒歩9分 東京都中央区湊3丁目 | 詳細を見る | |
マンション ガーラ銀座東(1K/8階) | |||||||
![]() | 10万円 1.4万円 | 10万円 なし | 1K 27.11m2 | 築27年 | 東京メトロ日比谷線 築地駅 徒歩6分 都営大江戸線 勝どき駅 徒歩7分 東京メトロ有楽町線 新富町駅(東京) 徒歩9分 東京都中央区築地 | 詳細を見る | |
マンション パレステュディオ銀座一丁目(1K/2階) | |||||||
![]() | 13.5万円 1.1万円 | なし 13.5万円 | 1K 21.42m2 | 築22年 | 東京地下鉄有楽町線 銀座一丁目駅 徒歩4分 山手線 有楽町駅 徒歩10分 山手線 東京駅 徒歩15分 東京都中央区銀座1丁目 | 詳細を見る | |
マンション クレイシア入谷(1K/9階) | |||||||
![]() | 9.8万円 1.5万円 | 9.8万円 9.8万円 | 1K 25.94m2 | 築8年 | 東京地下鉄日比谷線 入谷駅(東京) 徒歩6分 東京地下鉄日比谷線 三ノ輪駅 徒歩6分 東京都台東区竜泉2丁目 | 詳細を見る | |
マンション ラティエラ上野入谷(1DK/7階) | |||||||
![]() | 11.9万円 1万円 | 11.9万円 なし | 1DK 25.11m2 | 築3年 | 東京地下鉄日比谷線 入谷駅(東京) 徒歩4分 山手線 上野駅 徒歩16分 東京都台東区下谷2丁目 | 詳細を見る | |








