賃貸マンション
近鉄京都線 伊勢田駅 徒歩38分 3階建 築42年の賃貸物件情報(2LDK/2階)
| 家賃 | 管理費等 | 敷金 | 礼金 | 間取り | 専有面積 |
|---|---|---|---|---|---|
| 5.7万円 | 3,000円 | なし | なし | 2LDK | 42.48m2 |
入居決定でお祝い金最大100,000円
Point
2DKでこの価格 お手頃2DK 久世郡久御山町 久御山エリアの2LDKマンションです。
提供:株式会社 京都ライフ 京田辺店(賃貸スモッカ経由)

詳細情報 近鉄京都線 伊勢田駅 徒歩38分 3階建 築42年
物件紹介
近鉄京都線伊勢田駅から徒歩38分にあるマンションです。
このお部屋は2階以上に位置しているので、通行人や周囲の住人からの視線が気になりにくく、防犯面でも安心です。
フローリングのお部屋なのでお掃除もラクラク。バス・トイレ別の仕様で、のんびりお風呂タイムも楽しめます。
このお部屋は2階以上に位置しているので、通行人や周囲の住人からの視線が気になりにくく、防犯面でも安心です。
フローリングのお部屋なのでお掃除もラクラク。バス・トイレ別の仕様で、のんびりお風呂タイムも楽しめます。
お金・契約の情報
※「-」と表示されているものは、実際は料金が発生するものもございます。詳細はお問い合わせください。
| 家賃 | 5.7万円 | 管理費・共益費 | 3,000円 |
|---|---|---|---|
| 敷金 | なし | 礼金 | なし |
| 入居決定でお祝い金最大100,000円 | |||
| 保証金 | - | 償却・敷引 | - |
| 住宅保険料 | 住宅保険料あり | 更新料 | - |
| 契約形態 | - | 契約期間 | 1年 |
| 入居・引渡期間 | 相談 | 現況 | 空室 |
| 契約備考 | 更新料:無し 保証会社:利用必須 初回:月額賃料等の50%、更新時:1.3万円/1年(初回保証料 総賃料120% 更新保証料なしプランあり) | ||
部屋の情報
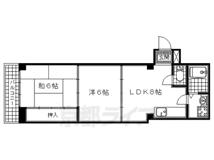
| 間取り | 2LDK | 専有面積 | 42.48m2 |
|---|---|---|---|
| 間取り詳細 | 和室(6帖)、洋室(6帖)、DK(8帖) | ||
| 所在階 / 向き | 2階 / 東 | バルコニー面積 | - |
| 水道 / ガス | ガス【プロパン】 | ||
| 設備 | バス・トイレ別、2階以上、バルコニー、フローリング、洗濯機:室内 | ||
| 当社物件ID | 160822866 | ||
建物の情報
| 建物名 | 近鉄京都線 伊勢田駅 徒歩38分 3階建 築42年 | ||
|---|---|---|---|
| 所在地 | 京都府久世郡久御山町市田 | ||
| 交通 | 近鉄京都線 伊勢田駅 徒歩38分 近鉄京都線 小倉駅(京都) 徒歩40分 | ||
| 階数 | 3階建 | 総戸数 | - |
| 築年月 | 1984年07月 / 築42年 | エレベーター | - |
| 駐車場 | - | バイク置き場 | - |
| 駐輪場 | あり | 管理人/管理会社 | - |
| 建物種別 | マンション | 建物構造 | RC(鉄筋コンクリート) |
この部屋の取扱い不動産会社
| 会社名 | 株式会社 京都ライフ 京田辺店(賃貸スモッカ経由) | ||
|---|---|---|---|
| 所在地 | 京都府京田辺市田辺中央1丁目7-11 | 交通 | - |
| 営業時間 | - | 定休日 | - |
| 免許番号 | 京都府知事(11)第6353号 | 取引態様 | 仲介 |
| 不動産会社管理番号 | kyotolife_25589-207-24 | 当社管理番号 | 463 |
| 所属団体 | 京都府宅地建物取引業協会\n公益社団法人近畿地区不動産公正取引協議会 | ||
| 公正取引協議会 | 全国宅地建物取引業保証協会 | ||
| 取扱い物件情報 | 物件詳細へ | ||
※各種情報と現状に差異がある場合は、現状優先となります。問い合わせをすることで、より詳しい条件、情報を確認する事ができます。
提供:株式会社 京都ライフ 京田辺店(賃貸スモッカ経由)
この物件が気になったら掲載期限まであと5日
近鉄京都線 伊勢田駅 徒歩38分 3階建 築42年に条件(家賃・エリア)が近い物件一覧
| 写真 | 家賃 管理費等 | 敷金 礼金 | 間取り 専有面積 | 築年数 | 最寄り駅 所在地 | キープ | 詳細 |
|---|---|---|---|---|---|---|---|
マンション 叡山電鉄 元田中駅 徒歩9分 築43年(1LDK/3階) | |||||||
![]() | 5.8万円 6,000円 | 5万円 なし | 1LDK 28.41m2 | 築43年 | 叡山電鉄 元田中駅 徒歩9分 京阪電気鉄道鴨東線 出町柳駅 徒歩10分 京都府京都市左京区高野清水町 | 詳細を見る | |
マンション CREST TAPP 京都二条(2K/3階) | |||||||
![]() | 8.51万円 1万円 | なし 4.755万円 | 2K 30.26m2 | 築4年 | 山陰本線 二条駅 徒歩12分 山陰本線 円町駅 徒歩13分 京都府京都市中京区聚楽廻西町 | 詳細を見る | |
マンション 山陰本線 二条駅 徒歩11分 築4年(2K/1階) | |||||||
![]() | 8.5万円 1万円 | なし 8.5万円 | 2K 30.26m2 | 築4年 | 山陰本線 二条駅 徒歩11分 山陰本線 円町駅 徒歩12分 京都府京都市中京区聚楽廻西町 | 詳細を見る | |
アパート PLUMHOUSEⅡ(1K/1階) | |||||||
![]() | 5.5万円 4,000円 | なし なし | 1K 27.3m2 | 築21年 | 京都市烏丸線 北山駅(京都) 徒歩12分 京都市烏丸線 北大路駅 徒歩20分 京都府京都市北区上賀茂梅ケ辻町 | 詳細を見る | |
マンション 阪急電鉄京都線 大宮駅(京都) 徒歩6分 築14年(1K/7階) | |||||||
![]() | 6.5万円 7,000円 | なし 15万円 | 1K 23.94m2 | 築14年 | 阪急電鉄京都線 大宮駅(京都) 徒歩6分 京都市東西線 二条駅 徒歩10分 京都府京都市中京区壬生坊城町 | 詳細を見る | |
マンション 京阪電気鉄道京阪線 藤森駅 徒歩10分 築38年(2K/4階) | |||||||
![]() | 4.5万円 5,000円 | なし なし | 2K 27m2 | 築38年 | 京阪電気鉄道京阪線 藤森駅 徒歩10分 近鉄京都線 竹田駅(京都) 徒歩11分 京都府京都市伏見区 | 詳細を見る | |
マンション メゾンド光悦(2DK/1階) | |||||||
![]() | 4.9万円 2,000円 | なし なし | 2DK 30m2 | 築39年 | 京都府京都市北区鷹峯北鷹峯町 | 詳細を見る | |
マンション 京都府京都市北区 築26年(1LDK/6階) | |||||||
![]() | 8.6万円 8,000円 | なし 13万円 | 1LDK 33.11m2 | 築26年 | 京都府京都市北区小山下内河原町 | 詳細を見る | |









