賃貸マンション
ビレッジハウス私部 1号棟の賃貸物件情報(3K/4階)
| 家賃 | 管理費等 | 敷金 | 礼金 | 間取り | 専有面積 |
|---|---|---|---|---|---|
| 3.87万円 | なし | なし | なし | 3K | 42.68m2 |
入居決定でお祝い金最大100,000円
- 保証金
- -
- 償却・敷引
- -
- 築年数
- 築63年
- 所在階
- 4階
- 向き
- 南
Point
まずはお問い合わせ!
不動産会社は街のプロ、あなたに合った物件がきっと見つかります。
提供:ビレッジハウス住まい相談センター

詳細情報 ビレッジハウス私部 1号棟
物件紹介
ビレッジハウス私部 1号棟は片町線津田駅から徒歩17分にあるマンションです。
このお部屋は2階以上に位置しているので、通行人や周囲の住人からの視線が気になりにくく、防犯面でも安心です。
人気の南向きのお部屋。角部屋でもあるため、周囲の居住者の生活音も気になりにくい場所です。バス・トイレ別の仕様で、のんびりお風呂タイムも楽しめます。
ペット飼育の相談ができますので、あなたの大切な家族の一員も快適に暮らせるか、ぜひ確認してみてください。
このお部屋は2階以上に位置しているので、通行人や周囲の住人からの視線が気になりにくく、防犯面でも安心です。
人気の南向きのお部屋。角部屋でもあるため、周囲の居住者の生活音も気になりにくい場所です。バス・トイレ別の仕様で、のんびりお風呂タイムも楽しめます。
ペット飼育の相談ができますので、あなたの大切な家族の一員も快適に暮らせるか、ぜひ確認してみてください。
お金・契約の情報
※「-」と表示されているものは、実際は料金が発生するものもございます。詳細はお問い合わせください。
| 家賃 | 3.87万円 | 管理費・共益費 | なし |
|---|---|---|---|
| 敷金 | なし | 礼金 | なし |
| フリーレント | 0ヶ月 | ||
| 入居決定でお祝い金最大100,000円 | |||
| 保証金 | - | 償却・敷引 | - |
| 住宅保険料 | 1万円(2年) | 更新料 | - |
| 保証会社利用 | - | 保証会社名 | - |
| 保証会社費用 | - | 保証会社備考 | - |
| 契約形態 | - | 契約期間 | - |
| 入居・引渡期間 | - | 現況 | 空室 |
| 入居可能条件 | 2人入居可、高齢者相談、学生可、ペット相談 | ||
| 契約備考 | 契約種類:普通契約、24時間緊急対応 | ||
部屋の情報
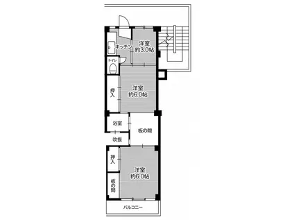
| 間取り | 3K | 専有面積 | 42.68m2 |
|---|---|---|---|
| 所在階 / 向き | 4階 / 南 | バルコニー面積 | - |
| 水道 / ガス | - | ||
| 設備 | バス・トイレ別、エアコン、角部屋、バルコニー、給湯、洗濯機:室内 | ||
| 当社物件ID | 25126606 | ||
建物の情報
| 建物名 | ビレッジハウス私部 1号棟 | ||
|---|---|---|---|
| 所在地 | 大阪府交野市私部8丁目11-1 | ||
| 交通 | 片町線 津田駅 徒歩17分 京阪電気鉄道交野線 交野市駅 徒歩24分 京阪電気鉄道交野線 郡津駅 徒歩25分 | ||
| 階数 | 4階建 | 総戸数 | - |
| 築年月 | 1963年10月 / 築63年 | エレベーター | - |
| 駐車場 | 空有 6,600円/月 円 | バイク置き場 | - |
| 駐輪場 | - | 管理人/管理会社 | 日勤 |
| 建物種別 | マンション | 建物構造 | RC(鉄筋コンクリート) |
この部屋の取扱い不動産会社
| 会社名 | ビレッジハウス住まい相談センター | ||
|---|---|---|---|
| 所在地 | 愛知県名古屋市中区大須4-10-32 上前津KDビル5階 | 交通 | 名城線「上前津駅」徒歩3分 |
| 営業時間 | 平日:9:00-18:30/土日祝:9:00-18:00 | 定休日 | 年中無休(年末年始を除く) |
| 免許番号 | 東京都知事(2)第100758号 | 取引態様 | 貸主 |
| 不動産会社管理番号 | 00013829454 | 当社管理番号 | 459 |
| 所属団体 | 公益社団法人東京都宅地建物取引業協会会員 日本賃貸住宅管理協会会員 | ||
| 取扱い物件情報 | 物件詳細へ | ||
※各種情報と現状に差異がある場合は、現状優先となります。問い合わせをすることで、より詳しい条件、情報を確認する事ができます。
提供:ビレッジハウス住まい相談センター
この物件が気になったら掲載期限まであと13日
ビレッジハウス私部 1号棟に条件(家賃・エリア)が近い物件一覧
| 写真 | 家賃 管理費等 | 敷金 礼金 | 間取り 専有面積 | 築年数 | 最寄り駅 所在地 | キープ | 詳細 |
|---|---|---|---|---|---|---|---|
アパート 京阪電気鉄道交野線 宮之阪駅 徒歩20分 築18年(1K/2階) | |||||||
![]() | 5.8万円 2,900円 | なし 5.8万円 | 1K 30.46m2 | 築18年 | 京阪電気鉄道交野線 宮之阪駅 徒歩20分 京阪電気鉄道交野線 星ケ丘駅(大阪) 徒歩25分 大阪府枚方市堂山1丁目 | 詳細を見る | |
アパート 京阪電気鉄道京阪線 御殿山駅 徒歩15分 築17年(1K/2階) | |||||||
![]() | 5.5万円 3,500円 | なし 5.5万円 | 1K 30.43m2 | 築17年 | 京阪電気鉄道京阪線 御殿山駅 徒歩15分 京阪電気鉄道京阪線 牧野駅 徒歩23分 大阪府枚方市渚東町 | 詳細を見る | |
マンション アートプラザ枚方(1K/3階) | |||||||
![]() | 5.7万円 6,000円 | 5万円 5万円 | 1K 30.05m2 | 築7年 | JR片町線 長尾駅(大阪) 徒歩23分 JR片町線 松井山手駅 徒歩39分 JR片町線 藤阪駅 徒歩42分 大阪府枚方市長尾家具町 | 詳細を見る | |
アパート 京阪電気鉄道京阪線 枚方公園駅 徒歩13分 築25年(1K/2階) | |||||||
![]() | 5.2万円 3,000円 | なし なし | 1K 27.08m2 | 築25年 | 京阪電気鉄道京阪線 枚方公園駅 徒歩13分 京阪電気鉄道京阪線 光善寺駅 徒歩22分 大阪府枚方市伊加賀西町 | 詳細を見る | |
マンション 大広第2ビル(1LDK/3階) | |||||||
![]() | 4.2万円 3,000円 | なし なし | 1LDK 45m2 | 築36年 | 片町線 河内磐船駅 徒歩9分 京阪電気鉄道交野線 河内森駅 徒歩10分 京阪電気鉄道交野線 交野市駅 徒歩21分 大阪府交野市大字寺2丁目 | 詳細を見る | |
アパート モンタナ(1K/1階) | |||||||
![]() | 3.3万円 なし | なし なし | 1K 16.87m2 | 築29年 | 京阪電気鉄道京阪線 萱島駅 徒歩8分 京阪電気鉄道京阪線 寝屋川市駅 徒歩18分 京阪電気鉄道京阪線 大和田駅(大阪) 徒歩20分 大阪府寝屋川市萱島信和町 | 詳細を見る | |
アパート 片町線 津田駅 徒歩13分 築3年(1K/2階) | |||||||
![]() | 5.65万円 4,600円 | なし 5.65万円 | 1K 26.16m2 | 築3年 | 片町線 津田駅 徒歩13分 京阪電気鉄道交野線 郡津駅 徒歩30分 大阪府枚方市春日元町2丁目 | 詳細を見る | |
アパート 片町線 長尾駅(大阪) 徒歩9分 築17年(1K/1階) | |||||||
![]() | 5.25万円 3,500円 | なし 5.25万円 | 1K 26.63m2 | 築17年 | 片町線 長尾駅(大阪) 徒歩9分 片町線 藤阪駅 徒歩19分 大阪府枚方市藤阪東町2丁目 | 詳細を見る | |









