賃貸アパート
クレセント西代の賃貸物件情報(ワンルーム/2階)
| 家賃 | 管理費等 | 敷金 | 礼金 | 間取り | 専有面積 |
|---|---|---|---|---|---|
| 6万円 | なし | なし | 10万円 | ワンルーム | 20.06m2 |
入居決定でお祝い金最大100,000円
- 保証金
- -
- 償却・敷引
- -
- 築年数
- 築11年
- 所在階
- 2階
- 向き
- -
Point
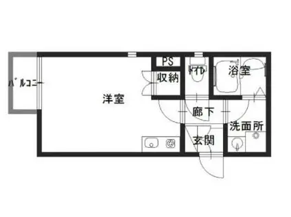
収納はシューズボックス・クロゼットなど豊富なので、広々と空間を利用することも可能です。セキュリティ面は、オートロック・TVインターホンなどを設置しているので安全面でも優れております。
提供:(株)プラスエステートホーム(SUUMO経由)

詳細情報 クレセント西代
物件紹介
クレセント西代は神戸高速鉄道東西線西代駅から徒歩3分にあり、駅近で通勤通学に便利なアパートです。
このお部屋は2階以上に位置しているので、通行人や周囲の住人からの視線が気になりにくく、防犯面でも安心。建物のエントランスはオートロックがついており、インターホンにはTVモニタもついているため、相手の顔を確認してから来客対応することができます。
人気の南向き・フローリングのお部屋。角部屋でもあるため、周囲の居住者の生活音も気になりにくい場所です。キッチンはシステムキッチン仕様になっていますので、お料理好きの方にもぴったり。バス・トイレは別なので、のんびりお風呂タイムも楽しめるでしょう。また、雨の日でも浴室乾燥機を使えば、お洗濯も問題ありません。
通信設備面では、インターネットが無料で使えるので、月々の出費を抑えられるのも魅力です。また、CATVにも対応しているので、おうち時間も充実するでしょう(別途工事、CATVの契約料等が必要な場合あり)。
このお部屋は2階以上に位置しているので、通行人や周囲の住人からの視線が気になりにくく、防犯面でも安心。建物のエントランスはオートロックがついており、インターホンにはTVモニタもついているため、相手の顔を確認してから来客対応することができます。
人気の南向き・フローリングのお部屋。角部屋でもあるため、周囲の居住者の生活音も気になりにくい場所です。キッチンはシステムキッチン仕様になっていますので、お料理好きの方にもぴったり。バス・トイレは別なので、のんびりお風呂タイムも楽しめるでしょう。また、雨の日でも浴室乾燥機を使えば、お洗濯も問題ありません。
通信設備面では、インターネットが無料で使えるので、月々の出費を抑えられるのも魅力です。また、CATVにも対応しているので、おうち時間も充実するでしょう(別途工事、CATVの契約料等が必要な場合あり)。
お金・契約の情報
※「-」と表示されているものは、実際は料金が発生するものもございます。詳細はお問い合わせください。
| 家賃 | 6万円 | 管理費・共益費 | なし |
|---|---|---|---|
| 敷金 | なし | 礼金 | 10万円 |
| 入居決定でお祝い金最大100,000円 | |||
| 保証金 | - | 償却・敷引 | - |
| 住宅保険料 | - | 更新料 | - |
| 保証会社利用 | 必須 | 保証会社名 | - |
| 保証会社費用 | - | 保証会社備考 | 保証会社利用必 初回保証料:総賃料の50% 更新料:10 000円/年 初回保証料:総賃料の50% 更新料:10 000円/年 |
| 契約形態 | - | 契約期間 | - |
| 入居・引渡期間 | 即時 | 現況 | - |
| 契約備考 | 初期費用、入居審査の不安など、その他お困りごと是非SumoSumoにご相談下さい★女性スタッフ対応も可能☆ ワンルーム 女性限定 普通借家2年 損保【1.5万円2年】 バストイレ別、バルコニー、エアコン、ガスコンロ対応、クロゼット、フローリング、シャワー付洗面台、TVインターホン、浴室乾燥機、オートロック、室内洗濯置、陽当り良好、シューズボックス、追焚機能浴室、角住戸、温水洗浄便座、脱衣所、洗面所独立、洗面化粧台、2口コンロ、駐輪場、CATV、光ファイバー、外壁タイル張り、即入居可、閑静な住宅地、2面採光、最上階、敷金不要、CATVインターネット、2沿線利用可、ディンプルキー、ネット専用回線、ネット使用料不要、内装リフォーム済、眺望良好、24時間換気システム、平坦地、耐火構造、耐震構造、3沿線以上利用可、駅徒歩5分以内、都市ガス、洗面所にドア、玄関収納、IT重説対応物件、初期費用カード決済可、通風良好 | ||
部屋の情報
| 間取り | ワンルーム | 専有面積 | 20.06m2 |
|---|---|---|---|
| 所在階 / 向き | 2階 / - | バルコニー面積 | - |
| 水道 / ガス | - | ||
| 設備 | バス・トイレ別、2階以上、オートロック、テレビドアホン、浴室乾燥機、追い焚き、インターネット対応、エアコン、温水洗浄便座、角部屋、バルコニー、フローリング、洗髪洗面化粧台、2口コンロ、コンロ:ガス、CATV、インターネット使用料無料、洗濯機:室内 | ||
| 当社物件ID | 20983496 | ||
建物の情報
| 建物名 | クレセント西代 | ||
|---|---|---|---|
| 所在地 | 兵庫県神戸市長田区大谷町 | ||
| 交通 | 神戸高速鉄道東西線 西代駅 徒歩5分 JR山陽本線 新長田駅 徒歩10分 地下鉄西神・山手線 新長田駅 徒歩10分 | ||
| 階数 | 2階建 | 総戸数 | - |
| 築年月 | 2016年03月 / 築11年 | エレベーター | - |
| 駐車場 | 近隣 200m17000円 | バイク置き場 | - |
| 駐輪場 | あり | 管理人/管理会社 | - |
| 周辺環境 | その他 ライフ西代店(スーパー)まで433m その他 サンディ 新長田店(スーパー)まで828m その他 業務スーパー 菅原店(スーパー)まで757m その他 セブンイレブン 神戸御屋敷通3丁目店(コンビニ)まで321m その他 マツモトキヨシ東急プラザ新長田店(ドラッグストア)まで1007m その他 スギドラッグ 板宿店(ドラッグストア)まで941m | ||
| 建物種別 | アパート | 建物構造 | 木造 |
この部屋の取扱い不動産会社
| 会社名 | (株)プラン・ドゥ・シー兵庫店(SUUMO経由) | ||
|---|---|---|---|
| 所在地 | 兵庫県神戸市兵庫区塚本通7-2-19 ロイヤルメゾン兵庫駅前通り1階 | 交通 | - |
| 営業時間 | 10:00~19:00 | 定休日 | - |
| 免許番号 | 国土交通大臣9550 | 取引態様 | 仲介 |
| 不動産会社管理番号 | 100424739104 | 当社管理番号 | 89 |
| 所属団体 | (公社)全日本不動産協会兵庫県本部会員 | ||
| 公正取引協議会 | (公社)近畿地区不動産公正取引協議会加盟 | ||
| 取扱い物件情報 | 物件詳細へ | ||
※各種情報と現状に差異がある場合は、現状優先となります。問い合わせをすることで、より詳しい条件、情報を確認する事ができます。
提供:(株)プラン・ドゥ・シー兵庫店(SUUMO経由)
この物件が気になったら掲載期限まであと10日
クレセント西代に条件(家賃・エリア)が近い物件一覧
| 写真 | 家賃 管理費等 | 敷金 礼金 | 間取り 専有面積 | 築年数 | 最寄り駅 所在地 | キープ | 詳細 |
|---|---|---|---|---|---|---|---|
一戸建て 神戸電鉄粟生線 広野ゴルフ場前駅 徒歩10分 築29年(4LDK) | |||||||
![]() | 8万円 なし | なし 16万円 | 4LDK 94.39m2 | 築29年 | 神戸電鉄粟生線 広野ゴルフ場前駅 徒歩10分 神戸電鉄粟生線 緑が丘駅(兵庫) 徒歩19分 神戸電鉄粟生線 志染駅 徒歩20分 兵庫県三木市志染町広野6丁目 | 詳細を見る | |
アパート グッドハイム(1K/1階) | |||||||
![]() | 6.4万円 3,000円 | なし 6.4万円 | 1K 27m2 | 築1年 | 神戸電鉄粟生線 三木駅(神戸電鉄) 徒歩8分 神戸電鉄粟生線 大村駅(兵庫) 徒歩14分 神戸電鉄粟生線 三木上の丸駅 徒歩18分 兵庫県三木市加佐 | 詳細を見る | |
アパート ヒカルサ稲美天満Ⅰ(1LDK/1階) | |||||||
![]() | 7.55万円 3,900円 | なし 7.55万円 | 1LDK 44.7m2 | 築1年 | 兵庫県加古郡稲美町六分一 | 詳細を見る | |
マンション ヴィダ・アルボレス(1K/1階) | |||||||
![]() | 5.5万円 5,200円 | なし 5.5万円 | 1K 30.96m2 | 築17年 | 山陽電気鉄道本線 山陽魚住駅 徒歩4分 山陽本線 魚住駅 徒歩12分 山陽電気鉄道本線 西江井ケ島駅 徒歩12分 兵庫県明石市魚住町西岡 | 詳細を見る | |
アパート イーストカーサ(3DK/2階) | |||||||
![]() | 5.4万円 2,200円 | なし 5.4万円 | 3DK 57.77m2 | 築33年 | 山陽電鉄本線 東二見駅 徒歩10分 山陽電鉄本線 西二見駅 徒歩10分 JR山陽本線 土山駅 徒歩32分 兵庫県明石市二見町東二見 | 詳細を見る | |
マンション ビレッジハウス志染(3DK/5階) | |||||||
![]() | 5.47万円 なし | なし なし | 3DK 54.38m2 | 築47年 | 神戸電鉄粟生線 志染駅 徒歩19分 神戸電鉄粟生線 恵比須駅 徒歩27分 兵庫県三木市志染町西自由が丘2丁目 | 詳細を見る | |
アパート モダンパレス(1LDK/1階) | |||||||
![]() | 9.45万円 3,000円 | なし 11万円 | 1LDK 50.51m2 | 築1年 | 山陽本線 大久保駅(兵庫) 徒歩12分 兵庫県明石市大久保町大窪 | 詳細を見る | |
マンション サンハイツ志染(3DK/2階) | |||||||
![]() | 6.5万円 3,000円 | 15万円 20万円 | 3DK 62.56m2 | 築29年 | 神戸電鉄粟生線 志染駅 徒歩5分 兵庫県三木市志染町西自由が丘1丁目 | 詳細を見る | |







