賃貸アパート
アヴニールSASAKIの賃貸物件情報(1K/1階)
| 家賃 | 管理費等 | 敷金 | 礼金 | 間取り | 専有面積 |
|---|---|---|---|---|---|
| 4万円 | 2,000円 | なし | なし | 1K | 26.49m2 |
入居決定でお祝い金最大100,000円
- 保証金
- -
- 償却・敷引
- -
- 築年数
- 築29年
- 所在階
- 1階
- 向き
- 南
- 交通
- 所在地
- 岩手県盛岡市月が丘
アヴニールSASAKI
[地図を表示]
Point
まずはお問い合わせ!
不動産会社は街のプロ、あなたに合った物件がきっと見つかります。
提供:丸高商事(株)(SUUMO経由)

詳細情報 アヴニールSASAKI
物件紹介
このお部屋のインターホンにはTVモニタがついているため、相手の顔を確認してから来客対応することができます。
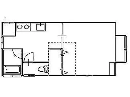
人気の南向きのお部屋。また、フローリングなのでお掃除もラクラク。キッチンはシステムキッチン仕様になっていますので、お料理好きの方にもぴったり。また、バス・トイレは別で、のんびりお風呂タイムも楽しめるでしょう。
通信設備面では、インターネットが無料で使えるので、月々の出費を抑えられるのも魅力です(別途工事等が必要な場合あり)。
人気の南向きのお部屋。また、フローリングなのでお掃除もラクラク。キッチンはシステムキッチン仕様になっていますので、お料理好きの方にもぴったり。また、バス・トイレは別で、のんびりお風呂タイムも楽しめるでしょう。
通信設備面では、インターネットが無料で使えるので、月々の出費を抑えられるのも魅力です(別途工事等が必要な場合あり)。
お金・契約の情報
※「-」と表示されているものは、実際は料金が発生するものもございます。詳細はお問い合わせください。
| 家賃 | 4万円 | 管理費・共益費 | 2,000円 |
|---|---|---|---|
| 敷金 | なし | 礼金 | なし |
| 入居決定でお祝い金最大100,000円 | |||
| 保証金 | - | 償却・敷引 | - |
| 住宅保険料 | - | 更新料 | - |
| 保証会社利用 | 必須 | 保証会社名 | リクルートフォレントインシュア |
| 保証会社費用 | - | 保証会社備考 | オリコフォレントインシュア利用必 (初回)賃料総額の60%(月額)賃料総額の2%(最低保証料25,000円) |
| 契約形態 | - | 契約期間 | - |
| 入居・引渡期間 | - | 現況 | - |
| 契約備考 | WiFi設備有り。インターネット使用料無料。 1K 学生希望/単身者可 損保【1.9万円2年】 バストイレ別、エアコン、ガスコンロ対応、クロゼット、TVインターホン、室内洗濯置、システムキッチン、南向き、2口コンロ、照明付、出窓、駐車場1台無料、全居室フローリング、ネット使用料不要、全居室8畳以上、プロパンガス、敷金・礼金不要 入居日:'26年3月中旬 | ||
部屋の情報
| 間取り | 1K | 専有面積 | 26.49m2 |
|---|---|---|---|
| 所在階 / 向き | 1階 / 南 | バルコニー面積 | - |
| 水道 / ガス | - | ||
| 設備 | バス・トイレ別、テレビドアホン、インターネット対応、システムキッチン、エアコン、南向き、フローリング、2口コンロ、コンロ:ガス、インターネット使用料無料、洗濯機:室内 | ||
| 当社物件ID | 157785727 | ||
建物の情報
| 建物名 | アヴニールSASAKI | ||
|---|---|---|---|
| 所在地 | 岩手県盛岡市月が丘 | ||
| 交通 | - | ||
| 階数 | 2階建 | 総戸数 | 8戸 |
| 築年月 | 1997年06月 / 築29年 | エレベーター | - |
| 駐車場 | 空有 付無料 | バイク置き場 | - |
| 駐輪場 | - | 管理人/管理会社 | - |
| 周辺環境 | その他 ファミリーマート 盛岡みたけ三丁目店(コンビニ)まで430m その他 サンデー 盛岡店(ホームセンター)まで510m | ||
| 建物種別 | アパート | 建物構造 | 木造 |
この部屋の取扱い不動産会社
| 会社名 | 丸高商事(株)(SUUMO経由) | ||
|---|---|---|---|
| 所在地 | 岩手県盛岡市みたけ4-25-1 | 交通 | - |
| 営業時間 | 9:30~17:00 | 定休日 | 日・祝日 |
| 免許番号 | 岩手県知事2156 | 取引態様 | 仲介 |
| 不動産会社管理番号 | 100487191605 | 当社管理番号 | 89 |
| 所属団体 | (一社)岩手県宅地建物取引業協会会員 | ||
| 公正取引協議会 | 東北地区不動産公正取引協議会加盟 | ||
| 取扱い物件情報 | 物件詳細へ | ||
※各種情報と現状に差異がある場合は、現状優先となります。問い合わせをすることで、より詳しい条件、情報を確認する事ができます。
提供:丸高商事(株)(SUUMO経由)
この物件が気になったら掲載期限まであと10日
アヴニールSASAKIに条件(家賃・エリア)が近い物件一覧
| 写真 | 家賃 管理費等 | 敷金 礼金 | 間取り 専有面積 | 築年数 | 最寄り駅 所在地 | キープ | 詳細 |
|---|---|---|---|---|---|---|---|
アパート ラビハウス10(1K/2階) | |||||||
![]() | 3.1万円 2,000円 | なし なし | 1K 28.15m2 | 築28年 | 山田線 上盛岡駅 徒歩34分 岩手県盛岡市高松4丁目 | 詳細を見る | |
アパート ロイヤルヒルズ山岸(1K/2階) | |||||||
![]() | 3.5万円 2,000円 | 3.5万円 なし | 1K 26.25m2 | 築28年 | JR山田線 山岸駅 徒歩8分 JR山田線 上盛岡駅 徒歩24分 JR東北本線 盛岡駅 徒歩44分 岩手県盛岡市山岸 | 詳細を見る | |
アパート ロジェ コンフォールⅢ(1LDK/2階) | |||||||
![]() | 5.8万円 3,000円 | 5.8万円 5.8万円 | 1LDK 36.08m2 | 築1年 | 岩手県紫波郡矢巾町流通センター南4丁目 | 詳細を見る | |
アパート KOSMOSIII(1SK/2階) | |||||||
![]() | 6.4万円 3,500円 | 6.4万円 6.4万円 | 1SK 31.78m2 | 築1年 | JR東北本線 盛岡駅 徒歩12分 JR山田線 上盛岡駅 徒歩28分 いわて銀河鉄道線 青山駅(岩手) 徒歩40分 岩手県盛岡市新田町 | 詳細を見る | |
アパート パスト・レガーロ(1LDK/1階) | |||||||
![]() | 5.8万円 3,500円 | 5.8万円 5.8万円 | 1LDK 39.28m2 | 築10年 | 岩手県盛岡市前九年2丁目 | 詳細を見る | |
アパート パークヒルズ(1K/1階) | |||||||
![]() | 3.9万円 1,000円 | 3.9万円 なし | 1K 29.6m2 | 築28年 | いわて銀河鉄道線 厨川駅 徒歩48分 JR山田線 山岸駅 徒歩66分 いわて銀河鉄道線 青山駅(岩手) 徒歩66分 岩手県盛岡市東黒石野 | 詳細を見る | |
アパート ジュネス雅(1LDK/1階) | |||||||
![]() | 4万円 2,000円 | なし なし | 1LDK 40.57m2 | 築37年 | 岩手県盛岡市箱清水1丁目 | 詳細を見る | |
アパート アパルトマン・エム(1LDK/2階) | |||||||
![]() | 4.5万円 2,200円 | なし なし | 1LDK 41.98m2 | 築20年 | 岩手県花巻市本館 | 詳細を見る | |


/105x80-f1-q70-wp1)

/105x80-f1-q70-wp1)

/105x80-f1-q70-wp1)

/105x80-f1-q70-wp1)
