賃貸マンション
第二寺尾マンションの賃貸物件情報(1LDK/1階)
| 家賃 | 管理費等 | 敷金 | 礼金 | 間取り | 専有面積 |
|---|---|---|---|---|---|
| 10万円 | 3,000円 | 10万円 | 10万円 | 1LDK | 39.52m2 |
入居決定でお祝い金最大100,000円
Point
セキュリティ面は、オートロック・TVインターホンなどを備え付けているので安心して暮らせます。
提供:ハウスコム埼玉株式会社 浦和店

詳細情報 第二寺尾マンション
物件紹介
第二寺尾マンションは埼京線武蔵浦和駅から徒歩10分にあり、駅近で通勤通学に便利なマンションです。
建物のエントランスはオートロックがついており、インターホンにはTVモニタもついているため、相手の顔を確認してから来客対応することができます。
フローリングのお部屋なのでお掃除もラクラク。キッチンはシステムキッチン仕様になっていますので、お料理好きの方にもぴったり。バス・トイレは別なので、のんびりお風呂タイムも楽しめるでしょう。また、雨の日でも浴室乾燥機を使えば、お洗濯も問題ありません。
通信設備面では、インターネットが無料で使えるので、月々の出費を抑えられるのも魅力です(別途工事等が必要な場合あり)。
共用部には宅配ボックスが設定されているので、不在の時にも荷物を受け取ることができます。
コンビニまで徒歩5分の場所にあり、日用品や食料品のお買い物にも便利です。
建物のエントランスはオートロックがついており、インターホンにはTVモニタもついているため、相手の顔を確認してから来客対応することができます。
フローリングのお部屋なのでお掃除もラクラク。キッチンはシステムキッチン仕様になっていますので、お料理好きの方にもぴったり。バス・トイレは別なので、のんびりお風呂タイムも楽しめるでしょう。また、雨の日でも浴室乾燥機を使えば、お洗濯も問題ありません。
通信設備面では、インターネットが無料で使えるので、月々の出費を抑えられるのも魅力です(別途工事等が必要な場合あり)。
共用部には宅配ボックスが設定されているので、不在の時にも荷物を受け取ることができます。
コンビニまで徒歩5分の場所にあり、日用品や食料品のお買い物にも便利です。
お金・契約の情報
※「-」と表示されているものは、実際は料金が発生するものもございます。詳細はお問い合わせください。
| 家賃 | 10万円 | 管理費・共益費 | 3,000円 |
|---|---|---|---|
| 敷金 | 10万円 | 礼金 | 10万円 |
| 入居決定でお祝い金最大100,000円 | |||
| 保証金 | - | 償却・敷引 | - |
| 住宅保険料 | 1円 | 更新料 | - |
| 保証会社利用 | 必須 | 保証会社名 | - |
| 保証会社費用 | - | 保証会社備考 | 初回保証料:月額総賃料の50% |
| 契約形態 | - | 契約期間 | 2年 |
| 入居・引渡期間 | 相談 | 現況 | - |
| 入居可能条件 | 2人入居可 | ||
| 契約備考 | 更新事務手数料:新賃料の0.25ヵ月と消費税 その他設備/条件:室内洗濯機置き場、独立洗面台、防犯カメラ、クローゼット、シューズボックス | ||
部屋の情報
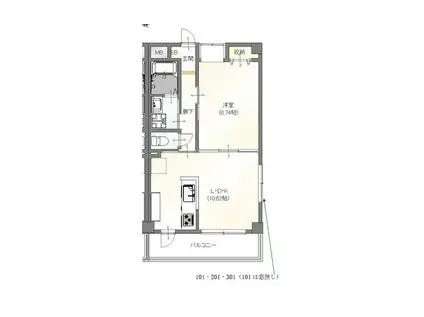
| 間取り | 1LDK | 専有面積 | 39.52m2 |
|---|---|---|---|
| 間取り詳細 | LDK(10.6帖)、洋室(6.7帖) | ||
| 所在階 / 向き | 1階 / 南東 | バルコニー面積 | - |
| 水道 / ガス | 水道【公営】、ガス【都市】 | ||
| 設備 | バス・トイレ別、オートロック、テレビドアホン、宅配ボックス、浴室乾燥機、追い焚き、インターネット対応、システムキッチン、カウンターキッチン、エアコン、温水洗浄便座、バルコニー、フローリング、洗髪洗面化粧台、2口コンロ、コンロ:IH、インターネット使用料無料、給湯 | ||
| 当社物件ID | 150035424 | ||
建物の情報
| 建物名 | 第二寺尾マンション | ||
|---|---|---|---|
| 所在地 | 埼玉県さいたま市南区鹿手袋4丁目 | ||
| 交通 | 埼京線 武蔵浦和駅 徒歩10分 埼京線 中浦和駅 徒歩13分 | ||
| 階数 | 3階建 | 総戸数 | 12戸 |
| 築年月 | 2024年01月 / 築2年 | エレベーター | - |
| 駐車場 | なし | バイク置き場 | - |
| 駐輪場 | あり | 管理人/管理会社 | - |
| 周辺環境 | コンビニ 徒歩5分(378m) 販売店 徒歩7分(522m) その他 ドラッグストア その他 公園 その他 銀行 その他 * | ||
| 建物種別 | マンション | 建物構造 | 鉄骨造 |
この部屋の取扱い不動産会社
| 会社名 | ハウスコム埼玉株式会社 大宮東口店 | ||
|---|---|---|---|
| 所在地 | 埼玉県さいたま市大宮区92-7ハイカラ堂ビル2階 | 交通 | - |
| 営業時間 | 10:00~18:00 | 定休日 | 水曜定休 |
| 免許番号 | 埼玉県知事(1)第24888号 | 取引態様 | 仲介 |
| 不動産会社管理番号 | HC2-4175338-103-0221 | 当社管理番号 | 468 |
| 所属団体 | 、 | ||
| 取扱い物件情報 | 物件詳細へ | ||
※各種情報と現状に差異がある場合は、現状優先となります。問い合わせをすることで、より詳しい条件、情報を確認する事ができます。
提供:ハウスコム埼玉株式会社 大宮東口店
この物件が気になったら掲載期限まであと5日
第二寺尾マンションに条件(家賃・エリア)が近い物件一覧
| 写真 | 家賃 管理費等 | 敷金 礼金 | 間取り 専有面積 | 築年数 | 最寄り駅 所在地 | キープ | 詳細 |
|---|---|---|---|---|---|---|---|
アパート KIRSCHE(1DK/3階) | |||||||
![]() | 7.3万円 6,000円 | なし 7.3万円 | 1DK 24.64m2 | 築3年 | 西武鉄道新宿線 南大塚駅 徒歩3分 埼玉県川越市南台2丁目 | 詳細を見る | |
マンション THE GARLANDS(1K/1階) | |||||||
![]() | 7.1万円 5,000円 | なし なし | 1K 21.99m2 | 築1年 | 京浜東北・根岸線 西川口駅 徒歩7分 京浜東北・根岸線 川口駅 徒歩22分 京浜東北・根岸線 蕨駅 徒歩32分 埼玉県川口市西川口4丁目 | 詳細を見る | |
アパート カーサ・エテルノ(1LDK/1階) | |||||||
![]() | 6.2万円 2,300円 | なし 6.2万円 | 1LDK 37.93m2 | 築13年 | 西武鉄道新宿線 南大塚駅 徒歩10分 埼玉県川越市 | 詳細を見る | |
アパート サウススターガーデン(1LDK/2階) | |||||||
![]() | 9.05万円 3,900円 | なし 9.05万円 | 1LDK 50.74m2 | 新築 | 西武鉄道新宿線 南大塚駅 徒歩23分 埼玉県川越市中台南1丁目 | 詳細を見る | |
アパート カルチェ A(2LDK/2階) | |||||||
![]() | 9.5万円 7,000円 | なし 9.5万円 | 2LDK 58.07m2 | 築13年 | 西武鉄道新宿線 南大塚駅 徒歩21分 西武鉄道新宿線 新狭山駅 徒歩33分 川越線 的場駅 徒歩56分 埼玉県川越市 | 詳細を見る | |
アパート ノーススターガーデン(2LDK/3階) | |||||||
![]() | 10.75万円 3,900円 | なし 10.75万円 | 2LDK 71.07m2 | 新築 | 西武鉄道新宿線 南大塚駅 徒歩23分 川越線 川越駅 徒歩39分 東武鉄道東上線 新河岸駅 徒歩43分 埼玉県川越市中台南1丁目 | 詳細を見る | |
アパート カレントB(2DK/1階) | |||||||
![]() | 6.5万円 3,500円 | なし 6.5万円 | 2DK 45.39m2 | 築16年 | 西武鉄道新宿線 南大塚駅 徒歩13分 川越線 西川越駅 徒歩34分 東武鉄道東上線 川越市駅 徒歩42分 埼玉県川越市 | 詳細を見る | |
アパート D-SERENO東田町Ⅱ(1LDK/1階) | |||||||
![]() | 10.4万円 7,000円 | なし 10.4万円 | 1LDK 37.09m2 | 築1年 | 東武鉄道東上線 川越駅 徒歩12分 東武鉄道東上線 川越市駅 徒歩12分 埼玉県川越市東田町 | 詳細を見る | |









