賃貸アパート
ルミエール上板橋の賃貸物件情報(1K/1階)
| 家賃 | 管理費等 | 敷金 | 礼金 | 間取り | 専有面積 |
|---|---|---|---|---|---|
| 7万円 | 5,000円 | なし | なし | 1K | 21.52m2 |
入居決定でお祝い金最大100,000円
- 保証金
- -
- 償却・敷引
- -
- 築年数
- 築8年
- 所在階
- 1階
- 向き
- 南西
Point
エリア問わず一括の案内も承ります。インターネット公開中の募集条件が全てでは御座いません!今の時期だから出来る交渉があります!初期費用の分割・クレジットカード払いなど何でもご相談ください!最新の
提供:(株)With4(SUUMO経由)

詳細情報 ルミエール上板橋
物件紹介
ルミエール上板橋は東武東上線上板橋駅から徒歩10分にあり、駅近で通勤通学に便利なアパートです。
このお部屋のインターホンにはTVモニタがついているため、相手の顔を確認してから来客対応することができます。
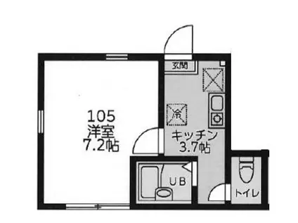
人気の南向き・フローリングのお部屋。角部屋でもあるため、周囲の居住者の生活音も気になりにくい場所です。キッチンはシステムキッチン仕様になっていますので、お料理好きの方にもぴったり。バス・トイレは別なので、のんびりお風呂タイムも楽しめるでしょう。また、雨の日でも浴室乾燥機を使えば、お洗濯も問題ありません。
通信設備面では、インターネットが無料で使えるので、月々の出費を抑えられるのも魅力です。また、CATVにも対応しているので、おうち時間も充実するでしょう(別途工事、CATVの契約料等が必要な場合あり)。
このお部屋のインターホンにはTVモニタがついているため、相手の顔を確認してから来客対応することができます。
人気の南向き・フローリングのお部屋。角部屋でもあるため、周囲の居住者の生活音も気になりにくい場所です。キッチンはシステムキッチン仕様になっていますので、お料理好きの方にもぴったり。バス・トイレは別なので、のんびりお風呂タイムも楽しめるでしょう。また、雨の日でも浴室乾燥機を使えば、お洗濯も問題ありません。
通信設備面では、インターネットが無料で使えるので、月々の出費を抑えられるのも魅力です。また、CATVにも対応しているので、おうち時間も充実するでしょう(別途工事、CATVの契約料等が必要な場合あり)。
お金・契約の情報
※「-」と表示されているものは、実際は料金が発生するものもございます。詳細はお問い合わせください。
| 家賃 | 7万円 | 管理費・共益費 | 5,000円 |
|---|---|---|---|
| 敷金 | なし | 礼金 | なし |
| 入居決定でお祝い金最大100,000円 | |||
| 保証金 | - | 償却・敷引 | - |
| 住宅保険料 | - | 更新料 | - |
| 保証会社利用 | 必須 | 保証会社名 | - |
| 保証会社費用 | - | 保証会社備考 | 保証会社利用必 お気軽にお問い合わせください。 初回:総賃料50% 月々:総賃料1.3%/グローバル 初回:総賃料80% 月々:総賃料2% |
| 契約形態 | - | 契約期間 | - |
| 入居・引渡期間 | 即時 | 現況 | - |
| 契約備考 | 短期解約違約金有:1年未満総賃料1か月物件詳細やご見学ご依頼等はお気軽にご相談下さいませ★毎日新規物件50件以上登録しております★入居日・初期費用等の交渉事は全て当社にお任せ下さい!お客様のご希望にそって全力でお部屋探しのサポートをさせて頂きます!ワングループでは、シングル(一人暮らし)・ファミリー(家族)賃貸物件を中心にお部屋探しをサポート致します!その他非公開物件の情報提供も致します! 合計5.28万円(内訳:リーヴサポート24(2年間)1.98万円鍵交換代3.3万円) 更新料 新賃料1.00ヶ月分 室内清掃費用 57200円 1K 普通借家2年 損保【要】 バストイレ別、エアコン、フローリング、TVインターホン、浴室乾燥機、室内洗濯置、シューズボックス、システムキッチン、南向き、角住戸、温水洗浄便座、CATV、光ファイバー、即入居可、礼金不要、2面採光、最上階、敷金不要、IHクッキングヒーター、保証人不要、全居室フローリング、3面採光、2沿線利用可、ディンプルキー、ネット使用料不要、内装リフォーム済、エアコン全室、ダブルロックキー、24時間換気システム、2駅利用可、3駅以上利用可、駅徒歩10分以内、都市ガス、IT重説対応物件、初期費用カード決済可 | ||
部屋の情報
| 間取り | 1K | 専有面積 | 21.52m2 |
|---|---|---|---|
| 所在階 / 向き | 1階 / 南西 | バルコニー面積 | - |
| 水道 / ガス | - | ||
| 設備 | バス・トイレ別、テレビドアホン、浴室乾燥機、インターネット対応、システムキッチン、エアコン、温水洗浄便座、南向き、角部屋、フローリング、コンロ:IH、CATV、インターネット使用料無料、洗濯機:室内 | ||
| 当社物件ID | 29544632 | ||
建物の情報
| 建物名 | ルミエール上板橋 | ||
|---|---|---|---|
| 所在地 | 東京都板橋区若木 | ||
| 交通 | 東武東上線 上板橋駅 徒歩10分 東武東上線 東武練馬駅 徒歩13分 都営三田線 志村三丁目駅 徒歩28分 | ||
| 階数 | 2階建 | 総戸数 | - |
| 築年月 | 2018年12月 / 築8年 | エレベーター | - |
| 駐車場 | 近隣 200m25000円 | バイク置き場 | - |
| 駐輪場 | - | 管理人/管理会社 | - |
| 周辺環境 | その他 北町カトリック幼稚園(幼稚園・保育園)まで2148m その他 板橋保育園(幼稚園・保育園)まで3496m その他 やまと保育園(幼稚園・保育園)まで3777m その他 うきま絆保育園(幼稚園・保育園)まで4460m その他 板橋区立蓮根第二小学校(小学校)まで2720m その他 ときわ台駅(その他)まで2080m | ||
| 建物種別 | アパート | 建物構造 | 木造 |
この部屋の取扱い不動産会社
| 会社名 | ワングループ レーニス不動産 (株)レーニスワン(SUUMO経由) | ||
|---|---|---|---|
| 所在地 | 東京都豊島区南大塚3-52-10 今井第五ビル3階 | 交通 | - |
| 営業時間 | 10:00~19:00 | 定休日 | 月曜日・水曜日 |
| 免許番号 | 東京都知事110772 | 取引態様 | 仲介 |
| 不動産会社管理番号 | 100477585112 | 当社管理番号 | 89 |
| 所属団体 | (公社)東京都宅地建物取引業協会会員 | ||
| 公正取引協議会 | (公社)首都圏不動産公正取引協議会加盟 | ||
| 取扱い物件情報 | 物件詳細へ | ||
※各種情報と現状に差異がある場合は、現状優先となります。問い合わせをすることで、より詳しい条件、情報を確認する事ができます。
提供:ワングループ レーニス不動産 (株)レーニスワン(SUUMO経由)
この物件が気になったら掲載期限まであと10日
ルミエール上板橋に条件(家賃・エリア)が近い物件一覧
| 写真 | 家賃 管理費等 | 敷金 礼金 | 間取り 専有面積 | 築年数 | 最寄り駅 所在地 | キープ | 詳細 |
|---|---|---|---|---|---|---|---|
アパート アドバンス吉祥寺(ワンルーム/1階) | |||||||
![]() | 5万円 2,000円 | 5万円 5万円 | ワンルーム 12.57m2 | 築9年 | 西武新宿線 武蔵関駅 徒歩12分 西武新宿線 上石神井駅 徒歩18分 JR中央線 吉祥寺駅 徒歩27分 東京都練馬区関町南 | 詳細を見る | |
アパート コーユーコーポラス(ワンルーム/1階) | |||||||
![]() | 5.5万円 1,000円 | 5.5万円 5.5万円 | ワンルーム 17.35m2 | 築35年 | 東京メトロ有楽町線 平和台駅(東京) 徒歩7分 東京メトロ副都心線 氷川台駅 徒歩12分 東武東上線 東武練馬駅 徒歩23分 東京都練馬区平和台 | 詳細を見る | |
アパート コルティーレ十条(ワンルーム/1階) | |||||||
![]() | 7.6万円 2,000円 | 7.6万円 7.6万円 | ワンルーム 20.54m2 | 築10年 | JR埼京線 十条駅(東京) 徒歩11分 都営三田線 板橋本町駅 徒歩12分 JR京浜東北線 東十条駅 徒歩18分 東京都板橋区稲荷台 | 詳細を見る | |
マンション ミライズ滝野川レジデンス(ワンルーム/2階) | |||||||
![]() | 7.8万円 1万円 | なし 7.8万円 | ワンルーム 18m2 | 築3年 | 都電荒川線 庚申塚駅 徒歩8分 都営三田線 西巣鴨駅 徒歩10分 都電荒川線 新庚申塚駅 徒歩10分 東京都北区滝野川 | 詳細を見る | |
アパート サンハイツ(ワンルーム/1階) | |||||||
![]() | 4.9万円 3,000円 | なし なし | ワンルーム 15.5m2 | 築36年 | 西武池袋線 椎名町駅 徒歩8分 都営大江戸線 落合南長崎駅 徒歩9分 西武池袋線 東長崎駅 徒歩14分 東京都豊島区南長崎 | 詳細を見る | |
アパート レオパレスサンライズ(1K/1階) | |||||||
![]() | 8.2万円 5,500円 | なし 8.2万円 | 1K 19.87m2 | 築25年 | 西武有楽町線 新桜台駅 徒歩6分 西武池袋線 桜台駅(東京) 徒歩8分 西武池袋線 江古田駅 徒歩11分 東京都練馬区桜台 | 詳細を見る | |
アパート 佐渡マンション(ワンルーム/2階) | |||||||
![]() | 6.9万円 2,000円 | 6.9万円 6.9万円 | ワンルーム 21.53m2 | 築23年 | 東京メトロ有楽町線 東池袋駅 徒歩6分 東京メトロ丸ノ内線 新大塚駅 徒歩10分 JR山手線 大塚駅(東京) 徒歩13分 東京都豊島区東池袋 | 詳細を見る | |
アパート サンセリテ(1K/1階) | |||||||
![]() | 7.3万円 3,000円 | 7.3万円 7.3万円 | 1K 25.07m2 | 築25年 | JR山手線 田端駅 徒歩6分 東京メトロ千代田線 西日暮里駅 徒歩6分 京成本線 日暮里駅 徒歩14分 東京都北区田端 | 詳細を見る | |







