賃貸アパート
コンフォート愛宕の賃貸物件情報(2DK/2階)
| 家賃 | 管理費等 | 敷金 | 礼金 | 間取り | 専有面積 |
|---|---|---|---|---|---|
| 5万円 | 2,000円 | 5万円 | なし | 2DK | 44.71m2 |
入居決定でお祝い金最大100,000円
Point
スタッフ一同、お客様のご来店をこころよりお待ちしております!
提供:いい部屋ネット大東建託リーシング(株)深谷店(SUUMO経由)

詳細情報 コンフォート愛宕
物件紹介
コンフォート愛宕はJR八高線折原駅から徒歩10分にあり、駅近で通勤通学に便利なアパートです。
このお部屋は2階以上に位置しているので、通行人や周囲の住人からの視線が気になりにくく、防犯面でも安心。インターホンにはTVモニタもついているため、相手の顔を確認してから来客対応することができます。
人気の南向き・フローリングのお部屋。室内には多目的に利用できるロフトもあり、お部屋のアレンジも自在です。バス・トイレ別の仕様で、のんびりお風呂タイムも楽しめます。
コンビニまで徒歩46分の場所にあり、日用品や食料品のお買い物にも便利です。
このお部屋は2階以上に位置しているので、通行人や周囲の住人からの視線が気になりにくく、防犯面でも安心。インターホンにはTVモニタもついているため、相手の顔を確認してから来客対応することができます。
人気の南向き・フローリングのお部屋。室内には多目的に利用できるロフトもあり、お部屋のアレンジも自在です。バス・トイレ別の仕様で、のんびりお風呂タイムも楽しめます。
コンビニまで徒歩46分の場所にあり、日用品や食料品のお買い物にも便利です。
お金・契約の情報
※「-」と表示されているものは、実際は料金が発生するものもございます。詳細はお問い合わせください。
| 家賃 | 5万円 | 管理費・共益費 | 2,000円 |
|---|---|---|---|
| 敷金 | 5万円 | 礼金 | なし |
| フリーレント | あり | ||
| 入居決定でお祝い金最大100,000円 | |||
| 保証金 | - | 償却・敷引 | - |
| 住宅保険料 | - | 更新料 | - |
| 保証会社利用 | 必須 | 保証会社名 | - |
| 保証会社費用 | - | 保証会社備考 | 保証会社利用必 加入要 プラザ賃貸管理保証株式会社 条件により異なりますが 賃料45%~ |
| 契約形態 | - | 契約期間 | - |
| 入居・引渡期間 | 即時 | 現況 | - |
| 入居可能条件 | 事務所可 | ||
| 契約備考 | リフォーム:2024年12月床(フローリング等) 壁・天井(クロス・/駐車場1台賃料込 2台目から3,000円町内会費 年間3,000円:行政(地区)のルールにより会費を納めないとゴミ集積所の利用が出来ません 更新料 新賃料1.00ヶ月分 2DK 事務所利用相談/フリーレント1ヶ月 損保【1.7万円2年】 バストイレ別、バルコニー、エアコン、ガスコンロ対応、クロゼット、TVインターホン、室内洗濯置、シューズボックス、追焚機能浴室、洗面所独立、閑静な住宅地、2面採光、最上階、照明付、ロフト、全居室洋室、振分、敷金1ヶ月、全居室フローリング、クッションフロア、フリーレント、内装リフォーム済、保証金不要、浴室に窓、前面棟無、プロパンガス、IT重説対応物件、初期費用カード決済可 | ||
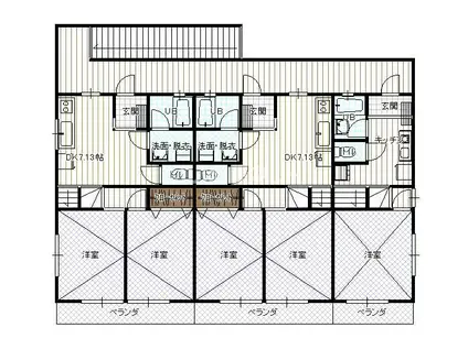
部屋の情報
| 間取り | 2DK | 専有面積 | 44.71m2 |
|---|---|---|---|
| 所在階 / 向き | 2階 / 南 | バルコニー面積 | - |
| 水道 / ガス | - | ||
| 設備 | バス・トイレ別、2階以上、テレビドアホン、追い焚き、エアコン、南向き、バルコニー、フローリング、ロフトあり、洗髪洗面化粧台、コンロ:ガス、洗濯機:室内 | ||
| 当社物件ID | 158054842 | ||
建物の情報
| 建物名 | コンフォート愛宕 | ||
|---|---|---|---|
| 所在地 | 埼玉県大里郡寄居町大字鉢形 | ||
| 交通 | JR八高線 折原駅 徒歩10分 | ||
| 階数 | 2階建 | 総戸数 | 6戸 |
| 築年月 | 2005年02月 / 築22年 | エレベーター | - |
| 駐車場 | 空有 付無料 | バイク置き場 | - |
| 駐輪場 | - | 管理人/管理会社 | - |
| 周辺環境 | その他 ファミリーマート(コンビニ)まで2103m その他 ベルクフォルテ寄居店(スーパー)まで1619m その他 マツモトキヨシフォルテ寄居店(ドラッグストア)まで1797m | ||
| 建物種別 | アパート | 建物構造 | 木造 |
この部屋の取扱い不動産会社
| 会社名 | いい部屋ネット大東建託リーシング(株)狭山店(SUUMO経由) | ||
|---|---|---|---|
| 所在地 | 埼玉県狭山市入間川1-7-7 HIRO'S入間川1階 | 交通 | - |
| 営業時間 | 10:00~12:30 /13:30~18:00/ | 定休日 | 毎週火・水曜日 |
| 免許番号 | 国土交通大臣9120 | 取引態様 | 仲介 |
| 不動産会社管理番号 | 100449961545 | 当社管理番号 | 89 |
| 所属団体 | (公財)日本賃貸住宅管理協会会員 | ||
| 公正取引協議会 | (公社)首都圏不動産公正取引協議会加盟 | ||
| 取扱い物件情報 | 物件詳細へ | ||
※各種情報と現状に差異がある場合は、現状優先となります。問い合わせをすることで、より詳しい条件、情報を確認する事ができます。
提供:いい部屋ネット大東建託リーシング(株)狭山店(SUUMO経由)
この物件が気になったら掲載期限まであと10日
コンフォート愛宕に条件(家賃・エリア)が近い物件一覧
| 写真 | 家賃 管理費等 | 敷金 礼金 | 間取り 専有面積 | 築年数 | 最寄り駅 所在地 | キープ | 詳細 |
|---|---|---|---|---|---|---|---|
アパート セードル小川A/B(2LDK/2階) | |||||||
![]() | 6.5万円 7,000円 | なし なし | 2LDK 53.76m2 | 築21年 | 東武東上線 小川町駅(埼玉) 徒歩17分 東武東上線 武蔵嵐山駅 徒歩99分 埼玉県比企郡小川町大字増尾 | 詳細を見る | |
アパート メゾン イチエ(1LDK/1階) | |||||||
![]() | 4.75万円 4,100円 | なし 4.75万円 | 1LDK 45.99m2 | 築18年 | 東武東上線 男衾駅 徒歩19分 埼玉県大里郡寄居町大字富田 | 詳細を見る | |
アパート セードル小川A(2LDK/2階) | |||||||
![]() | 6.5万円 7,000円 | なし なし | 2LDK 53.76m2 | 築21年 | JR八高線 小川町駅(埼玉) 徒歩14分 埼玉県比企郡小川町大字増尾 | 詳細を見る | |
一戸建て 東武鉄道東上線 男衾駅 徒歩18分 築38年(3LDK) | |||||||
![]() | 5万円 なし | 5万円 なし | 3LDK 84.46m2 | 築38年 | 東武鉄道東上線 男衾駅 徒歩18分 埼玉県大里郡寄居町大字富田 | 詳細を見る | |
アパート ハウスイースト(1LDK/2階) | |||||||
![]() | 3.5万円 なし | なし なし | 1LDK 35m2 | 築35年 | 東武東上線 武蔵嵐山駅 徒歩4分 東武東上線 つきのわ駅 徒歩23分 東武東上線 森林公園駅(埼玉) 徒歩56分 埼玉県比企郡嵐山町大字菅谷 | 詳細を見る | |
アパート PRIMEVERE A(1LDK/1階) | |||||||
![]() | 5.3万円 5,000円 | なし 2.65万円 | 1LDK 40.12m2 | 築5年 | 東武東上線 男衾駅 徒歩13分 埼玉県大里郡寄居町大字富田 | 詳細を見る | |
アパート クレイドル青山(3LDK/1階) | |||||||
![]() | 4.3万円 なし | なし なし | 3LDK 58.09m2 | 築39年 | JR八高線 小川町駅(埼玉) 徒歩34分 東武東上線 東武竹沢駅 徒歩51分 JR八高線 竹沢駅 徒歩56分 埼玉県比企郡小川町大字青山 | 詳細を見る | |
アパート スカイローズガーデン(1LDK/2階) | |||||||
![]() | 5.35万円 3,500円 | なし 5.35万円 | 1LDK 44.66m2 | 築10年 | JR八高線 小川町駅(埼玉) 徒歩18分 埼玉県比企郡小川町大字小川 | 詳細を見る | |








