賃貸マンション
足立区谷中メゾンの賃貸物件情報(1K/1階)
| 家賃 | 管理費等 | 敷金 | 礼金 | 間取り | 専有面積 |
|---|---|---|---|---|---|
| 9.5万円 | 7,000円 | 9.5万円 | 9.5万円 | 1K | 28.82m2 |
入居決定でお祝い金最大100,000円
- 保証金
- -
- 償却・敷引
- -
- 築年数
- 新築
- 所在階
- 1階
- 向き
- 東
Point
ハウスパートナー北千住店です。内見希望や、ご質問などございましたらお気軽にお問い合わせください。
提供:シャーメゾンショップ (株)ハウスパートナー綾瀬店(SUUMO経由)

詳細情報 足立区谷中メゾン
物件紹介
足立区谷中メゾンは東京メトロ千代田線北綾瀬駅から徒歩4分にあり、駅近で通勤通学に便利なマンションです。
建物のエントランスはオートロックがついており、インターホンにはTVモニタもついているため、相手の顔を確認してから来客対応することができます。
人気の角部屋で周囲の居住者の生活音も気になりにくく、また、フローリングのお部屋なのでお掃除もラクラク。キッチンはシステムキッチン仕様になっていますので、お料理好きの方にもぴったり。バス・トイレは別なので、のんびりお風呂タイムも楽しめるでしょう。また、雨の日でも浴室乾燥機を使えば、お洗濯も問題ありません。
通信設備面では、インターネットが無料で使えるので、月々の出費を抑えられるのも魅力です。また、BSアンテナもありますので、おうち時間も充実するでしょう(別途工事、BSの契約料等が必要な場合あり)。
共用部には宅配ボックスが設定されているので、不在の時にも荷物を受け取ることができます。
建物のエントランスはオートロックがついており、インターホンにはTVモニタもついているため、相手の顔を確認してから来客対応することができます。
人気の角部屋で周囲の居住者の生活音も気になりにくく、また、フローリングのお部屋なのでお掃除もラクラク。キッチンはシステムキッチン仕様になっていますので、お料理好きの方にもぴったり。バス・トイレは別なので、のんびりお風呂タイムも楽しめるでしょう。また、雨の日でも浴室乾燥機を使えば、お洗濯も問題ありません。
通信設備面では、インターネットが無料で使えるので、月々の出費を抑えられるのも魅力です。また、BSアンテナもありますので、おうち時間も充実するでしょう(別途工事、BSの契約料等が必要な場合あり)。
共用部には宅配ボックスが設定されているので、不在の時にも荷物を受け取ることができます。
お金・契約の情報
※「-」と表示されているものは、実際は料金が発生するものもございます。詳細はお問い合わせください。
| 家賃 | 9.5万円 | 管理費・共益費 | 7,000円 |
|---|---|---|---|
| 敷金 | 9.5万円 | 礼金 | 9.5万円 |
| 入居決定でお祝い金最大100,000円 | |||
| 保証金 | - | 償却・敷引 | - |
| 住宅保険料 | - | 更新料 | - |
| 保証会社利用 | 必須 | 保証会社名 | - |
| 保証会社費用 | - | 保証会社備考 | 保証会社利用必 初回総賃料の50%。2年毎2万円。 |
| 契約形態 | - | 契約期間 | - |
| 入居・引渡期間 | - | 現況 | - |
| 契約備考 | 保険15400~18400円/2年。24時間サポート18000円/2年。クリーニング代:1R50600円、1K57200円、1DK・2K64900円、1LDK・2DK71500円、2LDK・3DK85800円、3LDK101200円、その他間取りや80平米以上は別途見積もり、床がカーペットの場合は洗浄料金1320円/平米を加算。エアコン洗浄16500~27500円/基。 更新料新賃料(ヶ月):1.00ヶ月 1K 普通借家2年 損保【要】 バストイレ別、バルコニー、エアコン、ガスコンロ対応、クロゼット、フローリング、シャワー付洗面台、TVインターホン、浴室乾燥機、オートロック、室内洗濯置、シューズボックス、システムキッチン、追焚機能浴室、角住戸、温水洗浄便座、洗面所独立、宅配ボックス、3口以上コンロ、防犯カメラ、保証人不要、敷金1ヶ月、ガスレンジ付、ネット使用料不要、敷地内ごみ置き場、都市ガス、BS、礼金1ヶ月、IT重説対応物件、初期費用カード決済可 入居日:'26年8月上旬 | ||
部屋の情報
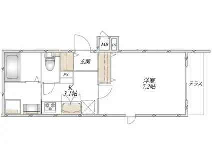
| 間取り | 1K | 専有面積 | 28.82m2 |
|---|---|---|---|
| 所在階 / 向き | 1階 / 東 | バルコニー面積 | - |
| 水道 / ガス | - | ||
| 設備 | バス・トイレ別、オートロック、テレビドアホン、宅配ボックス、浴室乾燥機、追い焚き、インターネット対応、システムキッチン、エアコン、温水洗浄便座、角部屋、バルコニー、フローリング、洗髪洗面化粧台、2口コンロ、コンロ:ガス、BSアンテナ、インターネット使用料無料、洗濯機:室内 | ||
| 当社物件ID | 160398879 | ||
建物の情報
| 建物名 | 足立区谷中メゾン | ||
|---|---|---|---|
| 所在地 | 東京都足立区谷中 | ||
| 交通 | 東京メトロ千代田線 北綾瀬駅 徒歩4分 つくばエクスプレス 六町駅 徒歩17分 つくばエクスプレス 青井駅 徒歩21分 | ||
| 階数 | 3階建 | 総戸数 | - |
| 築年月 | 2026年06月 / 新築 | エレベーター | - |
| 駐車場 | なし | バイク置き場 | - |
| 駐輪場 | - | 管理人/管理会社 | - |
| 周辺環境 | その他 ベルクス足立加平店(スーパー)まで360m その他 デイリーヤマザキ谷中北店(コンビニ)まで80m その他 足立区立辰沼小学校(小学校)まで1230m その他 慈生会等潤病院(病院)まで1520m その他 チェリー幼稚園(幼稚園・保育園)まで800m その他 綾瀬警察署(警察署・交番)まで160m | ||
| 建物種別 | マンション | 建物構造 | 鉄骨造 |
この部屋の取扱い不動産会社
| 会社名 | シャーメゾンショップ (株)ハウスパートナー北千住店(SUUMO経由) | ||
|---|---|---|---|
| 所在地 | 東京都足立区千住2-22 SKビル1階 | 交通 | - |
| 営業時間 | AM10:00~PM6:00 | 定休日 | 水曜日 |
| 免許番号 | 国土交通大臣9556 | 取引態様 | 仲介 |
| 不動産会社管理番号 | 100488336231 | 当社管理番号 | 89 |
| 所属団体 | (公社)全日本不動産協会東京都本部会員 | ||
| 公正取引協議会 | (公社)首都圏不動産公正取引協議会加盟 | ||
| 取扱い物件情報 | 物件詳細へ | ||
※各種情報と現状に差異がある場合は、現状優先となります。問い合わせをすることで、より詳しい条件、情報を確認する事ができます。
提供:シャーメゾンショップ (株)ハウスパートナー北千住店(SUUMO経由)
この物件が気になったら掲載期限まであと10日
足立区谷中メゾンに条件(家賃・エリア)が近い物件一覧
| 写真 | 家賃 管理費等 | 敷金 礼金 | 間取り 専有面積 | 築年数 | 最寄り駅 所在地 | キープ | 詳細 |
|---|---|---|---|---|---|---|---|
マンション S-RESIDENCE押上CLAIR(1K/11階) | |||||||
![]() | 13.2万円 1万円 | なし 13.2万円 | 1K 26.08m2 | 築4年 | 東京地下鉄半蔵門線 押上駅 徒歩8分 京成電鉄押上線 押上駅 徒歩9分 東京都墨田区向島3丁目 | 詳細を見る | |
マンション PRIMAL KINSHICHOII(1DK/4階) | |||||||
![]() | 13.3万円 1万円 | なし なし | 1DK 25.44m2 | 築3年 | JR総武線快速 錦糸町駅 徒歩4分 東京メトロ半蔵門線 錦糸町駅 徒歩4分 東京メトロ半蔵門線 住吉駅(東京) 徒歩16分 東京都墨田区江東橋 | 詳細を見る | |
マンション GRAN PASEO 両国(1K/10階) | |||||||
![]() | 12.8万円 1.5万円 | なし 12.8万円 | 1K 25.35m2 | 築5年 | JR総武線 両国駅 徒歩7分 都営大江戸線 両国駅 徒歩10分 都営新宿線 森下駅(東京) 徒歩11分 東京都墨田区両国 | 詳細を見る | |
マンション エルヴィエントアース墨田吾妻(1K/4階) | |||||||
![]() | 7.4万円 1.5万円 | なし 7.4万円 | 1K 19.6m2 | 築18年 | 東武鉄道亀戸線 小村井駅 徒歩4分 京成電鉄押上線 京成曳舟駅 徒歩13分 東京地下鉄半蔵門線 押上駅 徒歩14分 東京都墨田区文花2丁目 | 詳細を見る | |
マンション PASEO本所吾妻橋(1DK/3階) | |||||||
![]() | 14.4万円 1万円 | なし なし | 1DK 31.63m2 | 築6年 | 都営浅草線 本所吾妻橋駅 徒歩8分 都営大江戸線 蔵前駅 徒歩11分 東京メトロ銀座線 浅草駅(東武・都営・メトロ) 徒歩12分 東京都墨田区本所 | 詳細を見る | |
マンション TRACK両国(1K/9階) | |||||||
![]() | 14.7万円 2万円 | なし なし | 1K 25.44m2 | 築5年 | 総武・中央緩行線 両国駅 徒歩7分 東京都大江戸線 森下駅(東京) 徒歩10分 総武本線 馬喰町駅 徒歩11分 東京都墨田区両国1丁目 | 詳細を見る | |
マンション さくらハイム(1K/3階) | |||||||
![]() | 8.8万円 4,000円 | 8.8万円 8.8万円 | 1K 28.56m2 | 築9年 | 東武伊勢崎・大師線 東向島駅 徒歩4分 東武伊勢崎・大師線 鐘ケ淵駅 徒歩16分 東武伊勢崎・大師線 曳舟駅 徒歩17分 東京都墨田区東向島4丁目 | 詳細を見る | |
マンション レガスタ東向島(1K/8階) | |||||||
![]() | 9.7万円 6,000円 | 9.7万円 9.7万円 | 1K 25.24m2 | 築20年 | 東武伊勢崎線 東向島駅 徒歩2分 京成押上線 京成曳舟駅 徒歩11分 東武伊勢崎線 曳舟駅 徒歩13分 東京都墨田区東向島 | 詳細を見る | |









