賃貸マンション
ビレッジハウスの賃貸物件情報(3DK/5階)
| 家賃 | 管理費等 | 敷金 | 礼金 | 間取り | 専有面積 |
|---|---|---|---|---|---|
| 4.0199万円 | なし | なし | なし | 3DK | 53.08m2 |
入居決定でお祝い金最大100,000円
Point
家族で住んでも広々間取り♪
提供:(株)山小舎不動産(SUUMO経由)

詳細情報 ビレッジハウス
物件紹介
ビレッジハウスはJR只見線会津坂下駅から徒歩8分にあり、駅近で通勤通学に便利なマンションです。
このお部屋は2階以上に位置しているので、通行人や周囲の住人からの視線が気になりにくく、防犯面でも安心です。
人気の南向きのお部屋。バス・トイレ別の仕様で、のんびりお風呂タイムも楽しめます。
このお部屋は2階以上に位置しているので、通行人や周囲の住人からの視線が気になりにくく、防犯面でも安心です。
人気の南向きのお部屋。バス・トイレ別の仕様で、のんびりお風呂タイムも楽しめます。
お金・契約の情報
※「-」と表示されているものは、実際は料金が発生するものもございます。詳細はお問い合わせください。
| 家賃 | 4.0199万円 | 管理費・共益費 | なし |
|---|---|---|---|
| 敷金 | なし | 礼金 | なし |
| 入居決定でお祝い金最大100,000円 | |||
| 保証金 | - | 償却・敷引 | - |
| 住宅保険料 | - | 更新料 | - |
| 契約形態 | - | 契約期間 | - |
| 入居・引渡期間 | 即時 | 現況 | - |
| 契約備考 | 巡回管理 3DK 損保【1万円2年】 バストイレ別、エアコン、室内洗濯置、陽当り良好、南向き、追焚機能浴室、洗面所独立、即入居可、保証人不要、初期費用10万円以下、敷地内ごみ置き場、初期費用カード決済可 | ||
部屋の情報
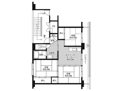
| 間取り | 3DK | 専有面積 | 53.08m2 |
|---|---|---|---|
| 所在階 / 向き | 5階 / 南 | バルコニー面積 | - |
| 水道 / ガス | - | ||
| 設備 | バス・トイレ別、2階以上、追い焚き、エアコン、南向き、洗髪洗面化粧台、洗濯機:室内 | ||
| 当社物件ID | 159046144 | ||
建物の情報
| 建物名 | ビレッジハウス | ||
|---|---|---|---|
| 所在地 | 福島県河沼郡会津坂下町大字白狐土堰甲 | ||
| 交通 | JR只見線 会津坂下駅 徒歩8分 | ||
| 階数 | 5階建 | 総戸数 | - |
| 築年月 | 1993年07月 / 築33年 | エレベーター | - |
| 駐車場 | 空有 3300円 | バイク置き場 | - |
| 駐輪場 | - | 管理人/管理会社 | - |
| 周辺環境 | その他 セブンイレブン会津坂下松ノ目店(コンビニ)まで550m その他 リオン・ドール坂下店(スーパー)まで1600m その他 カワチ薬品会津坂下店(ドラッグストア)まで1600m その他 ダイソー会津坂下店(ショッピングセンター)まで1400m その他 会津坂下町立坂下南小学校(小学校)まで700m その他 JR会津坂下駅(その他)まで550m | ||
| 建物種別 | マンション | 建物構造 | RC(鉄筋コンクリート) |
この部屋の取扱い不動産会社
| 会社名 | (株)山小舎不動産(SUUMO経由) | ||
|---|---|---|---|
| 所在地 | 福島県いわき市田人町旅人字横川 44 | 交通 | - |
| 営業時間 | 9:00~18:00 | 定休日 | 不定休 |
| 免許番号 | 福島県知事3635 | 取引態様 | 仲介 |
| 不動産会社管理番号 | 100486758212 | 当社管理番号 | 89 |
| 所属団体 | (公社)全日本不動産協会福島県本部会員 | ||
| 公正取引協議会 | 東北地区不動産公正取引協議会加盟 | ||
| 取扱い物件情報 | 物件詳細へ | ||
※各種情報と現状に差異がある場合は、現状優先となります。問い合わせをすることで、より詳しい条件、情報を確認する事ができます。
提供:(株)山小舎不動産(SUUMO経由)
この物件が気になったら掲載期限まであと10日
ビレッジハウスに条件(家賃・エリア)が近い物件一覧
| 写真 | 家賃 管理費等 | 敷金 礼金 | 間取り 専有面積 | 築年数 | 最寄り駅 所在地 | キープ | 詳細 |
|---|---|---|---|---|---|---|---|
アパート レオパレスせせらぎ(1K/2階) | |||||||
![]() | 5.5万円 4,500円 | なし 5.5万円 | 1K 26.08m2 | 築18年 | 磐越西線 会津若松駅 徒歩20分 福島県会津若松市一箕町大字亀賀一箕町大字亀賀字藤原 | 詳細を見る | |
アパート アーバンハイム平野(1K/2階) | |||||||
![]() | 4.3万円 なし | なし なし | 1K 24.22m2 | 築40年 | JR只見線 西若松駅 徒歩22分 福島県会津若松市米代 | 詳細を見る | |
アパート オスカーハイツIII(2DK/2階) | |||||||
![]() | 5万円 なし | なし 10万円 | 2DK 50.4m2 | 築28年 | JR只見線 会津坂下駅 徒歩6分 福島県河沼郡会津坂下町大字白狐古川甲 | 詳細を見る | |
アパート コーポ吉岡(3DK/1階) | |||||||
![]() | 4.6万円 なし | 4.6万円 なし | 3DK 51.5m2 | 築42年 | 会津鉄道 西若松駅 徒歩9分 福島県会津若松市 | 詳細を見る | |
マンション FLORA KITAKATA 1号棟(1LDK/5階) | |||||||
![]() | 3.8万円 3,000円 | なし なし | 1LDK 52m2 | 築42年 | JR磐越西線 喜多方駅 徒歩31分 福島県喜多方市字押切 | 詳細を見る | |
アパート つるが荘(2K/1階) | |||||||
![]() | 3.3万円 2,000円 | なし なし | 2K 33m2 | 築55年 | JR磐越西線 会津若松駅 徒歩11分 JR只見線 七日町駅 徒歩11分 福島県会津若松市城北町 | 詳細を見る | |
アパート サウスパークハイツ(ワンルーム/1階) | |||||||
![]() | 4.4万円 3,000円 | 4.4万円 なし | ワンルーム 27.32m2 | 築24年 | 会津鉄道 西若松駅 徒歩29分 福島県会津若松市東年貢 | 詳細を見る | |
アパート コーポAたなぎ(1K/2階) | |||||||
![]() | 2.8万円 なし | 2.8万円 なし | 1K 23m2 | 築44年 | 福島県会津若松市滝沢町 | 詳細を見る | |


/105x80-f1-q70-wp1)






