賃貸マンション
セントフローレンスパレス桂 THE ウエストの賃貸物件情報(3LDK/2階)
| 家賃 | 管理費等 | 敷金 | 礼金 | 間取り | 専有面積 |
|---|---|---|---|---|---|
| 16.5万円 | なし | 16.5万円 | 33万円 | 3LDK | 72.5m2 |
入居決定でお祝い金最大100,000円
- 保証金
- -
- 償却・敷引
- -
- 築年数
- 築12年
- 所在階
- 2階
- 向き
- 南
Point
桂駅エリアの分譲マンションに賃貸募集です。大手法人契約希望、個人契約の場合は定期借家5年、大手法人契約の場合は普通借家となります。(更新料1ヶ月分要/2年)
提供:(株)日住サービス京都五条店(SUUMO経由)

詳細情報 セントフローレンスパレス桂 THE ウエスト
物件紹介
セントフローレンスパレス桂 THE ウエストは阪急嵐山線桂駅から徒歩10分にあり、駅近で通勤通学に便利なマンションです。
このお部屋は2階以上に位置しているので、通行人や周囲の住人からの視線が気になりにくく、防犯面でも安心。建物のエントランスはオートロックがついており、インターホンにはTVモニタもついているため、相手の顔を確認してから来客対応することができます。
人気の南向きのお部屋。また、フローリングなのでお掃除もラクラク。キッチンはシステムキッチン仕様になっていますので、お料理好きの方にもぴったり。また、バス・トイレは別で、のんびりお風呂タイムも楽しめるでしょう。
建物にはエレベーターがついているので、重い荷物があっても安心。共用部には宅配ボックスが設定されているので、不在の時にも荷物を受け取ることができます。
このお部屋は2階以上に位置しているので、通行人や周囲の住人からの視線が気になりにくく、防犯面でも安心。建物のエントランスはオートロックがついており、インターホンにはTVモニタもついているため、相手の顔を確認してから来客対応することができます。
人気の南向きのお部屋。また、フローリングなのでお掃除もラクラク。キッチンはシステムキッチン仕様になっていますので、お料理好きの方にもぴったり。また、バス・トイレは別で、のんびりお風呂タイムも楽しめるでしょう。
建物にはエレベーターがついているので、重い荷物があっても安心。共用部には宅配ボックスが設定されているので、不在の時にも荷物を受け取ることができます。
お金・契約の情報
※「-」と表示されているものは、実際は料金が発生するものもございます。詳細はお問い合わせください。
| 家賃 | 16.5万円 | 管理費・共益費 | なし |
|---|---|---|---|
| 敷金 | 16.5万円 | 礼金 | 33万円 |
| 入居決定でお祝い金最大100,000円 | |||
| 保証金 | - | 償却・敷引 | - |
| 住宅保険料 | - | 更新料 | - |
| 保証会社利用 | 必須 | 保証会社名 | リクルートフォレントインシュア |
| 保証会社費用 | - | 保証会社備考 | オリコフォレントインシュア利用必 初回保証料:月額総賃料50% 以降、月額総賃料1% |
| 契約形態 | 定期借家 | 契約期間 | 5年 |
| 入居・引渡期間 | - | 現況 | - |
| 契約備考 | 通勤管理 合計0.88万円(内訳:投てき用簡易消火剤0.88万円) 更新料 賃料11.00ヶ月分 室内清掃費用 77000円 あんしんサポート24 月額1100円 3LDK 法人希望/二人入居可/子供可/事務所利用不可 定期借家5年 損保【1.9万円2年】 バストイレ別、バルコニー、ガスコンロ対応、クロゼット、フローリング、シャワー付洗面台、TVインターホン、オートロック、室内洗濯置、システムキッチン、南向き、追焚機能浴室、温水洗浄便座、脱衣所、エレベーター、洗面所独立、駐輪場、宅配ボックス、押入、3口以上コンロ、敷金1ヶ月、2沿線利用可、LDK15畳以上、ミストサウナ、2駅利用可、3駅以上利用可、3沿線以上利用可、駅徒歩10分以内、当社管理物件、和室、都市ガス、年内入居可、礼金2ヶ月 入居日:'26年4月中旬 | ||
部屋の情報
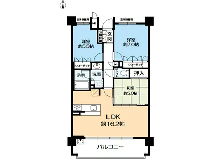
| 間取り | 3LDK | 専有面積 | 72.5m2 |
|---|---|---|---|
| 所在階 / 向き | 2階 / 南 | バルコニー面積 | - |
| 水道 / ガス | - | ||
| 設備 | バス・トイレ別、2階以上、オートロック、テレビドアホン、宅配ボックス、追い焚き、システムキッチン、エレベーター、温水洗浄便座、南向き、バルコニー、フローリング、洗髪洗面化粧台、2口コンロ、コンロ:ガス、洗濯機:室内 | ||
| 当社物件ID | 158126625 | ||
建物の情報
| 建物名 | セントフローレンスパレス桂 THE ウエスト | ||
|---|---|---|---|
| 所在地 | 京都府京都市西京区川島野田町 | ||
| 交通 | 阪急嵐山線 桂駅 徒歩10分 阪急京都線 洛西口駅 徒歩14分 JR東海道本線 桂川駅(京都) 徒歩22分 | ||
| 階数 | 5階建 | 総戸数 | 42戸 |
| 築年月 | 2014年11月 / 築12年 | エレベーター | あり |
| 駐車場 | 近隣 350m14300円/平置駐 | バイク置き場 | - |
| 駐輪場 | あり | 管理人/管理会社 | - |
| 周辺環境 | その他 京都市立川岡小学校(小学校)まで495m その他 スーパーマツモト 桂東店(スーパー)まで630m その他 ドラッグユタカ 桂東店(ドラッグストア)まで674m その他 ローソン 西京川島店(コンビニ)まで741m その他 西山幼稚園(幼稚園・保育園)まで763m | ||
| 建物種別 | マンション | 建物構造 | RC(鉄筋コンクリート) |
この部屋の取扱い不動産会社
| 会社名 | (株)日住サービス京都五条店(SUUMO経由) | ||
|---|---|---|---|
| 所在地 | 京都府京都市下京区新町通五条上る材木町 132 | 交通 | - |
| 営業時間 | 10:00~18:00 | 定休日 | 火曜日 水曜日 |
| 免許番号 | 国土交通大臣2287 | 取引態様 | 仲介 |
| 不動産会社管理番号 | 100492815362 | 当社管理番号 | 89 |
| 所属団体 | (一社)不動産流通経営協会会員 | ||
| 公正取引協議会 | (公社)首都圏不動産公正取引協議会加盟 | ||
| 取扱い物件情報 | 物件詳細へ | ||
※各種情報と現状に差異がある場合は、現状優先となります。問い合わせをすることで、より詳しい条件、情報を確認する事ができます。
提供:(株)日住サービス京都五条店(SUUMO経由)
この物件が気になったら掲載期限まであと11日
セントフローレンスパレス桂 THE ウエストに条件(家賃・エリア)が近い物件一覧
| 写真 | 家賃 管理費等 | 敷金 礼金 | 間取り 専有面積 | 築年数 | 最寄り駅 所在地 | キープ | 詳細 |
|---|---|---|---|---|---|---|---|
マンション メゾン青ノ葉(2LDK/1階) | |||||||
![]() | 12万円 7,000円 | なし なし | 2LDK 66.16m2 | 築1年 | 阪急電鉄京都線 東向日駅 徒歩19分 東海道本線 向日町駅 徒歩22分 阪急電鉄京都線 洛西口駅 徒歩24分 京都府向日市寺戸町 | 詳細を見る | |
アパート 阪急電鉄京都線 桂駅 徒歩11分 新築(1LDK/2階) | |||||||
![]() | 11.8万円 7,000円 | 5万円 22万円 | 1LDK 49.92m2 | 新築 | 阪急電鉄京都線 桂駅 徒歩11分 東海道本線 桂川駅(京都) 徒歩24分 京都府京都市西京区下津林北浦町 | 詳細を見る | |
マンション 東海道本線 桂川駅(京都) 徒歩14分 新築(2LDK/3階) | |||||||
![]() | 14.4万円 9,000円 | なし 25万円 | 2LDK 62.67m2 | 新築 | 東海道本線 桂川駅(京都) 徒歩14分 阪急電鉄京都線 洛西口駅 徒歩25分 京都府京都市西京区牛ケ瀬西柿町 | 詳細を見る | |
マンション STグランツ(2LDK/1階) | |||||||
![]() | 14.5万円 9,000円 | なし 25万円 | 2LDK 66.05m2 | 新築 | 東海道本線 桂川駅(京都) 徒歩14分 阪急電鉄京都線 洛西口駅 徒歩25分 京都府京都市西京区牛ケ瀬西柿町 | 詳細を見る | |
マンション 阪急電鉄京都線 桂駅 徒歩4分 築32年(3LDK/2階) | |||||||
![]() | 14万円 5,000円 | 14万円 28万円 | 3LDK 77.9m2 | 築32年 | 阪急電鉄京都線 桂駅 徒歩4分 東海道本線 桂川駅(京都) 徒歩27分 京都府京都市西京区桂木ノ下町 | 詳細を見る | |
アパート 阪急電鉄嵐山線 嵐山駅(阪急) 徒歩8分 築18年(2LDK/1階) | |||||||
![]() | 11.3万円 なし | 3万円 20万円 | 2LDK 74.79m2 | 築18年 | 阪急電鉄嵐山線 嵐山駅(阪急) 徒歩8分 阪急電鉄嵐山線 松尾大社駅 徒歩8分 京都府京都市西京区嵐山風呂ノ橋町 | 詳細を見る | |
アパート セジュールMARUTO(2LDK/2階) | |||||||
![]() | 10万円 7,000円 | なし 15万円 | 2LDK 59.28m2 | 築19年 | JR東海道本線 桂川駅(京都) 徒歩13分 JR東海道本線 向日町駅 徒歩13分 阪急京都線 東向日駅 徒歩20分 京都府京都市南区 | 詳細を見る | |
アパート 奈良線 木幡駅(JR) 徒歩1分 築1年(2LDK/2階) | |||||||
![]() | 10万円 8,000円 | なし 10万円 | 2LDK 48.45m2 | 築1年 | 奈良線 木幡駅(JR) 徒歩1分 京阪電気鉄道宇治線 木幡駅(京阪) 徒歩4分 奈良線 六地蔵駅(JR) 徒歩14分 京都府宇治市木幡大瀬戸 | 詳細を見る | |








