賃貸マンション
コンシェリア KAWASAKI THE PREMIUMの賃貸物件情報(1K/13階)
| 家賃 | 管理費等 | 敷金 | 礼金 | 間取り | 専有面積 |
|---|---|---|---|---|---|
| 10.95万円 | 1.2万円 | なし | 10.95万円 | 1K | 25.44m2 |
入居決定でお祝い金最大100,000円
- 保証金
- -
- 償却・敷引
- -
- 築年数
- 築3年
- 所在階
- 13階
- 向き
- 北
Point
【プロジェクター付き照明完備】★人気の川崎西口徒歩5分!充実の駅前商業施設/快適なアクセスと便利な住環境/WiFiネット無料/独立洗面台・浴室乾燥機・システムキッチンなど快適な設備★
提供:(株)クレアスレント横浜店(SUUMO経由)

詳細情報 コンシェリア KAWASAKI THE PREMIUM
物件紹介
コンシェリア KAWASAKI THE PREMIUMはJR京浜東北線川崎駅から徒歩5分にあり、駅近で通勤通学に便利なマンションです。
このお部屋は2階以上に位置しているので、通行人や周囲の住人からの視線が気になりにくく、防犯面でも安心。建物のエントランスはオートロックがついており、インターホンにはTVモニタもついているため、相手の顔を確認してから来客対応することができます。
おしゃれなデザイナーズ物件!人気の角部屋で周囲の居住者の生活音も気になりにくく、また、フローリングのお部屋なのでお掃除もラクラク。キッチンはシステムキッチン仕様になっていますので、お料理好きの方にもぴったり。バス・トイレは別なので、のんびりお風呂タイムも楽しめるでしょう。また、雨の日でも浴室乾燥機を使えば、お洗濯も問題ありません。
通信設備面では、インターネットが無料で使えるので、月々の出費を抑えられるのも魅力です。また、BSアンテナ・CSアンテナもありますので、おうち時間も充実するでしょう(別途工事、BS・CSの契約料等が必要な場合あり)。
建物にはエレベーターがついているので、重い荷物があっても安心。共用部には宅配ボックスが設定されているので、不在の時にも荷物を受け取ることができます。
このお部屋は2階以上に位置しているので、通行人や周囲の住人からの視線が気になりにくく、防犯面でも安心。建物のエントランスはオートロックがついており、インターホンにはTVモニタもついているため、相手の顔を確認してから来客対応することができます。
おしゃれなデザイナーズ物件!人気の角部屋で周囲の居住者の生活音も気になりにくく、また、フローリングのお部屋なのでお掃除もラクラク。キッチンはシステムキッチン仕様になっていますので、お料理好きの方にもぴったり。バス・トイレは別なので、のんびりお風呂タイムも楽しめるでしょう。また、雨の日でも浴室乾燥機を使えば、お洗濯も問題ありません。
通信設備面では、インターネットが無料で使えるので、月々の出費を抑えられるのも魅力です。また、BSアンテナ・CSアンテナもありますので、おうち時間も充実するでしょう(別途工事、BS・CSの契約料等が必要な場合あり)。
建物にはエレベーターがついているので、重い荷物があっても安心。共用部には宅配ボックスが設定されているので、不在の時にも荷物を受け取ることができます。
お金・契約の情報
※「-」と表示されているものは、実際は料金が発生するものもございます。詳細はお問い合わせください。
| 家賃 | 10.95万円 | 管理費・共益費 | 1.2万円 |
|---|---|---|---|
| 敷金 | なし | 礼金 | 10.95万円 |
| 入居決定でお祝い金最大100,000円 | |||
| 保証金 | - | 償却・敷引 | - |
| 住宅保険料 | - | 更新料 | - |
| 保証会社利用 | 必須 | 保証会社名 | - |
| 保証会社費用 | - | 保証会社備考 | 保証会社利用必 初回保証委託料総賃料70%年間保証委託料1万円 |
| 契約形態 | - | 契約期間 | - |
| 入居・引渡期間 | - | 現況 | - |
| 契約備考 | 【オンライン内見・現地お待合わせも可能】退去時クリーニング費49500円。安心入居パック39600円。2名入居時賃料5000円増額(1年未満解約違約金1か月)ファストドクターの入居者サポート付、仕様・図面・写真等に相違があった場合は現況優先、エアコン内部洗浄特約有り(壁掛け:16500円/台) 合計5.43万円(内訳:口座振替サービス料0.528万円室内抗菌代1.65万円鍵交換代3.245万円) 更新料 新賃料1.50ヶ月分 1K 二人入居可 普通借家2年 損保【要】 バストイレ別、バルコニー、エアコン、ガスコンロ対応、クロゼット、フローリング、TVインターホン、浴室乾燥機、オートロック、室内洗濯置、シューズボックス、システムキッチン、角住戸、温水洗浄便座、脱衣所、エレベーター、洗面所独立、洗面化粧台、2口コンロ、駐輪場、宅配ボックス、敷金不要、防犯カメラ、照明付、分譲賃貸、保証人不要、二人入居相談、バイク置場、24時間緊急通報システム、デザイナーズ、CS、ネット専用回線、ネット使用料不要、ダブルロックキー、24時間換気システム、人感照明センサー、3駅以上利用可、3沿線以上利用可、二重床構造、二重天井構造、24時間ゴミ出し可、敷地内ごみ置き場、当社管理物件、都市ガス、BS、マルチメディアコンセント、IT重説対応物件、初期費用カード決済可 入居日:'26年4月中旬 | ||
部屋の情報
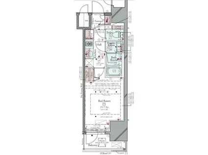
| 間取り | 1K | 専有面積 | 25.44m2 |
|---|---|---|---|
| 所在階 / 向き | 13階 / 北 | バルコニー面積 | 3m2 |
| 水道 / ガス | - | ||
| 設備 | バス・トイレ別、2階以上、オートロック、テレビドアホン、宅配ボックス、浴室乾燥機、インターネット対応、システムキッチン、エアコン、エレベーター、温水洗浄便座、角部屋、バルコニー、フローリング、洗髪洗面化粧台、2口コンロ、コンロ:ガス、デザイナーズ、CSアンテナ、BSアンテナ、インターネット使用料無料、洗濯機:室内 | ||
| 当社物件ID | 151257647 | ||
建物の情報
| 建物名 | コンシェリア KAWASAKI THE PREMIUM | ||
|---|---|---|---|
| 所在地 | 神奈川県川崎市幸区大宮町 | ||
| 交通 | JR京浜東北線 川崎駅 徒歩5分 JR南武線 尻手駅 徒歩10分 京急本線 京急川崎駅 徒歩11分 | ||
| 階数 | 14階建 | 総戸数 | - |
| 築年月 | 2023年11月 / 築3年 | エレベーター | あり |
| 駐車場 | なし | バイク置き場 | あり |
| 駐輪場 | あり | 管理人/管理会社 | - |
| 周辺環境 | その他 やよい軒 川崎駅西口店(飲食店)まで8m その他 ミューザ川崎シンフォニーホール(その他)まで333m その他 フレッシュフードストア 文化堂 川崎店(スーパー)まで202m その他 ラゾーナ川崎プラザ(ショッピングセンター)まで695m その他 atre(アトレ)川崎(ショッピングセンター)まで524m その他 ファミリーマート 川崎駅西店(コンビニ)まで93m | ||
| 建物種別 | マンション | 建物構造 | RC(鉄筋コンクリート) |
この部屋の取扱い不動産会社
| 会社名 | (株)クレアスレント横浜店(SUUMO経由) | ||
|---|---|---|---|
| 所在地 | 神奈川県横浜市神奈川区台町 17-1 マストビル7階 | 交通 | - |
| 営業時間 | 10時~19時 | 定休日 | 毎週水曜日・GW・夏季・年末年 |
| 免許番号 | 国土交通大臣10473 | 取引態様 | 仲介 |
| 不動産会社管理番号 | 100490099247 | 当社管理番号 | 89 |
| 所属団体 | (公社)東京都宅地建物取引業協会会員 | ||
| 公正取引協議会 | (公社)首都圏不動産公正取引協議会加盟 | ||
| 取扱い物件情報 | 物件詳細へ | ||
※各種情報と現状に差異がある場合は、現状優先となります。問い合わせをすることで、より詳しい条件、情報を確認する事ができます。
提供:(株)クレアスレント横浜店(SUUMO経由)
この物件が気になったら掲載期限まであと11日
コンシェリア KAWASAKI THE PREMIUMに条件(家賃・エリア)が近い物件一覧
| 写真 | 家賃 管理費等 | 敷金 礼金 | 間取り 専有面積 | 築年数 | 最寄り駅 所在地 | キープ | 詳細 |
|---|---|---|---|---|---|---|---|
アパート QUIET CRAB HOUSE 野島公園B号棟(1K/2階) | |||||||
![]() | 7万円 2,000円 | なし なし | 1K 23.04m2 | 築1年 | 金沢シーサイドL 野島公園駅 徒歩10分 神奈川県横浜市金沢区野島町 | 詳細を見る | |
アパート SETI・GORGE 馬場町(1K/2階) | |||||||
![]() | 7.5万円 5,000円 | なし なし | 1K 24.99m2 | 築3年 | JR京浜東北線 根岸駅(神奈川) 徒歩13分 ブルーライン 吉野町駅 徒歩23分 ブルーライン 蒔田駅 徒歩26分 神奈川県横浜市磯子区馬場町 | 詳細を見る | |
アパート リマツー(2LDK/2階) | |||||||
![]() | 12.2万円 6,000円 | なし なし | 2LDK 59.33m2 | 築11年 | ブルーライン センター南駅 徒歩15分 グリーンライン センター南駅 徒歩17分 グリーンライン 都筑ふれあいの丘駅 徒歩22分 神奈川県横浜市都筑区荏田東 | 詳細を見る | |
アパート モンステラみのわ(1K/1階) | |||||||
![]() | 6.6万円 3,000円 | 6.6万円 6.6万円 | 1K 16.64m2 | 築15年 | 東急東横線 日吉駅(神奈川) 徒歩17分 神奈川県横浜市港北区箕輪町2丁目 | 詳細を見る | |
マンション グラマシー横濱関内(2K/9階) | |||||||
![]() | 14万円 8,000円 | なし なし | 2K 34.87m2 | 築17年 | 根岸線 関内駅 徒歩5分 神奈川県横浜市中区翁町2丁目 | 詳細を見る | |
アパート クレマチスの丘Ⅱ(1DK/3階) | |||||||
![]() | 7.7万円 2,000円 | 7.7万円 なし | 1DK 32.19m2 | 築22年 | 神奈川県横浜市鶴見区馬場5丁目 | 詳細を見る | |
マンション LEGACY・川崎大師(1DK/1階) | |||||||
![]() | 9.5万円 1万円 | 9.5万円 9.5万円 | 1DK 30.47m2 | 新築 | 京急大師線 川崎大師駅 徒歩5分 京急大師線 鈴木町駅 徒歩11分 京急本線 京急川崎駅 徒歩35分 神奈川県川崎市川崎区川中島 | 詳細を見る | |
アパート ディー パイナ松見町(1LDK/2階) | |||||||
![]() | 9.5万円 5,500円 | なし 19万円 | 1LDK 30.35m2 | 新築 | JR横浜線 大口駅 徒歩14分 東急東横線 妙蓮寺駅 徒歩15分 神奈川県横浜市神奈川区松見町 | 詳細を見る | |









