賃貸マンション
ビレッジハウス大嶺2号棟の賃貸物件情報(3DK/4階)
| 家賃 | 管理費等 | 敷金 | 礼金 | 間取り | 専有面積 |
|---|---|---|---|---|---|
| 3.2万円 | なし | なし | なし | 3DK | 53.08m2 |
入居決定でお祝い金最大100,000円
- 保証金
- -
- 償却・敷引
- -
- 築年数
- 築36年
- 所在階
- 4階
- 向き
- 南
Point
まずはお問い合わせ!
不動産会社は街のプロ、あなたに合った物件がきっと見つかります。
提供:ビレッジハウス住まい相談センター

詳細情報 ビレッジハウス大嶺2号棟
物件紹介
ビレッジハウス大嶺2号棟は美祢線美祢駅から徒歩15分にあるマンションです。
このお部屋は2階以上に位置しているので、通行人や周囲の住人からの視線が気になりにくく、防犯面でも安心です。
人気の南向きのお部屋。角部屋でもあるため、周囲の居住者の生活音も気になりにくい場所です。バス・トイレ別の仕様で、のんびりお風呂タイムも楽しめます。
ペット飼育の相談ができますので、あなたの大切な家族の一員も快適に暮らせるか、ぜひ確認してみてください。
このお部屋は2階以上に位置しているので、通行人や周囲の住人からの視線が気になりにくく、防犯面でも安心です。
人気の南向きのお部屋。角部屋でもあるため、周囲の居住者の生活音も気になりにくい場所です。バス・トイレ別の仕様で、のんびりお風呂タイムも楽しめます。
ペット飼育の相談ができますので、あなたの大切な家族の一員も快適に暮らせるか、ぜひ確認してみてください。
お金・契約の情報
※「-」と表示されているものは、実際は料金が発生するものもございます。詳細はお問い合わせください。
| 家賃 | 3.2万円 | 管理費・共益費 | なし |
|---|---|---|---|
| 敷金 | なし | 礼金 | なし |
| フリーレント | 0ヶ月 | ||
| 入居決定でお祝い金最大100,000円 | |||
| 保証金 | - | 償却・敷引 | - |
| 住宅保険料 | 1万円(2年) | 更新料 | - |
| 保証会社利用 | - | 保証会社名 | - |
| 保証会社費用 | - | 保証会社備考 | - |
| 契約形態 | - | 契約期間 | - |
| 入居・引渡期間 | - | 現況 | 空室 |
| 入居可能条件 | 2人入居可、高齢者相談、学生可、ペット相談 | ||
| 契約備考 | 契約種類:普通契約、24時間緊急対応、洗面台 | ||
部屋の情報
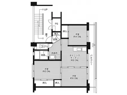
| 間取り | 3DK | 専有面積 | 53.08m2 |
|---|---|---|---|
| 所在階 / 向き | 4階 / 南 | バルコニー面積 | - |
| 水道 / ガス | - | ||
| 設備 | バス・トイレ別、追い焚き、角部屋、バルコニー、給湯、洗濯機:室内 | ||
| 当社物件ID | 159960902 | ||
建物の情報
| 建物名 | ビレッジハウス大嶺2号棟 | ||
|---|---|---|---|
| 所在地 | 山口県美祢市大嶺町東分3237-3 | ||
| 交通 | 美祢線 美祢駅 徒歩15分 美祢線 重安駅 徒歩39分 美祢線 南大嶺駅 徒歩39分 | ||
| 階数 | 5階建 | 総戸数 | - |
| 築年月 | 1990年07月 / 築36年 | エレベーター | - |
| 駐車場 | 空有 円 | バイク置き場 | - |
| 駐輪場 | - | 管理人/管理会社 | 日勤 |
| 建物種別 | マンション | 建物構造 | RC(鉄筋コンクリート) |
この部屋の取扱い不動産会社
| 会社名 | ビレッジハウス住まい相談センター | ||
|---|---|---|---|
| 所在地 | 愛知県名古屋市中区大須4-10-32 上前津KDビル5階 | 交通 | 名城線「上前津駅」徒歩3分 |
| 営業時間 | 平日:9:00-18:30/土日祝:9:00-18:00 | 定休日 | 年末年始休業:2025年12月27日~2026年1月4日 |
| 免許番号 | 東京都知事(2)第100758号 | 取引態様 | 貸主 |
| 不動産会社管理番号 | 00013341671 | 当社管理番号 | 459 |
| 所属団体 | 公益社団法人東京都宅地建物取引業協会会員 日本賃貸住宅管理協会会員 | ||
| 取扱い物件情報 | 物件詳細へ | ||
※各種情報と現状に差異がある場合は、現状優先となります。問い合わせをすることで、より詳しい条件、情報を確認する事ができます。
提供:ビレッジハウス住まい相談センター
この物件が気になったら掲載期限まであと13日
ビレッジハウス大嶺2号棟に条件(家賃・エリア)が近い物件一覧
| 写真 | 家賃 管理費等 | 敷金 礼金 | 間取り 専有面積 | 築年数 | 最寄り駅 所在地 | キープ | 詳細 |
|---|---|---|---|---|---|---|---|
マンション ラテラスⅠ(ワンルーム/1階) | |||||||
![]() | 4.8万円 3,000円 | 4.8万円 4.8万円 | ワンルーム 27.97m2 | 新築 | 山口線 湯田温泉駅 徒歩17分 山口県山口市平井 | 詳細を見る | |
アパート ミルキーウェイ(1K/2階) | |||||||
![]() | 2.2万円 2,500円 | 2.2万円 なし | 1K 28m2 | 築38年 | 山口県山口市平井 | 詳細を見る | |
アパート シャルテY&Y(1K/2階) | |||||||
![]() | 2.5万円 1,000円 | なし なし | 1K 25.92m2 | 築31年 | JR山口線 山口駅(山口) 徒歩22分 山口県山口市平井 | 詳細を見る | |
アパート ドリームハイツ(1K/2階) | |||||||
![]() | 2万円 なし | なし なし | 1K 23.18m2 | 築37年 | JR山口線 矢原駅 徒歩8分 山口県山口市矢原 | 詳細を見る | |
アパート ゆののなか(1K/2階) | |||||||
| 2.3万円 2,000円 | なし なし | 1K 19.36m2 | 築35年 | 山口線 湯田温泉駅 徒歩15分 山口県山口市泉都町 | 詳細を見る | ||
アパート カサグランデ(1K/1階) | |||||||
![]() | 2.5万円 2,000円 | なし なし | 1K 24m2 | 築29年 | JR山口線 大歳駅 徒歩1分 山口県山口市朝田 | 詳細を見る | |
アパート エトワールB(2DK/1階) | |||||||
| 4.65万円 5,500円 | なし 3万円 | 2DK 46.06m2 | 築22年 | 山口県山口市大内矢田北3丁目 | 詳細を見る | ||
アパート コーポティー(2DK/2階) | |||||||
| 2.9万円 なし | なし なし | 2DK 30.66m2 | 築40年 | 山口県山口市矢原 | 詳細を見る | ||






