賃貸マンション
BPRレジデンス新梅田の賃貸物件情報(1K/5階)
| 家賃 | 管理費等 | 敷金 | 礼金 | 間取り | 専有面積 |
|---|---|---|---|---|---|
| 8.25万円 | 5,000円 | 8.25万円 | なし | 1K | 23.23m2 |
入居決定でお祝い金最大100,000円
- 保証金
- -
- 償却・敷引
- -
- 築年数
- 築7年
- 所在階
- 5階
- 向き
- 南
Point
都心に合わせたスタイリッシュなデザインです。華やかなエントランスアプローチから充実した室内設備で快適なシティライフをお送りいただけます。
提供:ミニミニFC福島店(株)成都不動産(SUUMO経由)

詳細情報 BPRレジデンス新梅田
物件紹介
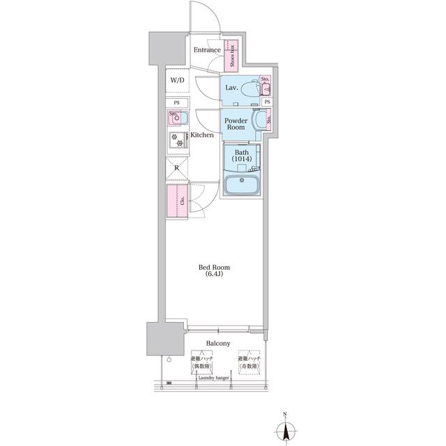
BPRレジデンス新梅田はJR大阪環状線福島駅から徒歩11分にあるマンションです。
このお部屋は2階以上に位置しているので、通行人や周囲の住人からの視線が気になりにくく、防犯面でも安心。建物のエントランスはオートロックがついており、インターホンにはTVモニタもついているため、相手の顔を確認してから来客対応することができます。
人気の南向きのお部屋。また、フローリングなのでお掃除もラクラク。キッチンはシステムキッチン仕様になっていますので、お料理好きの方にもぴったり。バス・トイレは別なので、のんびりお風呂タイムも楽しめるでしょう。また、雨の日でも浴室乾燥機を使えば、お洗濯も問題ありません。
通信設備面では、インターネットが無料で使えるので、月々の出費を抑えられるのも魅力です。また、BSアンテナもありますので、おうち時間も充実するでしょう(別途工事、BSの契約料等が必要な場合あり)。
建物にはエレベーターがついているので、重い荷物があっても安心。共用部には宅配ボックスが設定されているので、不在の時にも荷物を受け取ることができます。
このお部屋は2階以上に位置しているので、通行人や周囲の住人からの視線が気になりにくく、防犯面でも安心。建物のエントランスはオートロックがついており、インターホンにはTVモニタもついているため、相手の顔を確認してから来客対応することができます。
人気の南向きのお部屋。また、フローリングなのでお掃除もラクラク。キッチンはシステムキッチン仕様になっていますので、お料理好きの方にもぴったり。バス・トイレは別なので、のんびりお風呂タイムも楽しめるでしょう。また、雨の日でも浴室乾燥機を使えば、お洗濯も問題ありません。
通信設備面では、インターネットが無料で使えるので、月々の出費を抑えられるのも魅力です。また、BSアンテナもありますので、おうち時間も充実するでしょう(別途工事、BSの契約料等が必要な場合あり)。
建物にはエレベーターがついているので、重い荷物があっても安心。共用部には宅配ボックスが設定されているので、不在の時にも荷物を受け取ることができます。
お金・契約の情報
※「-」と表示されているものは、実際は料金が発生するものもございます。詳細はお問い合わせください。
| 家賃 | 8.25万円 | 管理費・共益費 | 5,000円 |
|---|---|---|---|
| 敷金 | 8.25万円 | 礼金 | なし |
| 入居決定でお祝い金最大100,000円 | |||
| 保証金 | - | 償却・敷引 | - |
| 住宅保険料 | - | 更新料 | - |
| 保証会社利用 | 必須 | 保証会社名 | - |
| 保証会社費用 | - | 保証会社備考 | 保証会社利用必 初回:賃料等の40%(最低1.5万円) 2年目以降:0.7万円/年 |
| 契約形態 | - | 契約期間 | - |
| 入居・引渡期間 | 相談 | 現況 | - |
| 契約備考 | 阪急宝塚本線中津駅徒歩16分/巡回管理/都心に合わせたスタイリッシュなデザインです。華やかなエントランスアプローチから充実した室内設備で快適なシティライフをお送りいただけます。 合計2.2万円(内訳:鍵交換代 22000円) エアコンクリーニング代 16500円/退去時 ハウスクリーニング 28600円/退去時 1K 普通借家2年 損保【1.6万円2年】 バストイレ別、バルコニー、エアコン、ガスコンロ対応、フローリング、シャワー付洗面台、TVインターホン、浴室乾燥機、オートロック、室内洗濯置、シューズボックス、システムキッチン、南向き、追焚機能浴室、温水洗浄便座、脱衣所、エレベーター、洗面所独立、洗面化粧台、2口コンロ、駐輪場、宅配ボックス、光ファイバー、外壁タイル張り、礼金不要、閑静な住宅地、防犯カメラ、全居室洋室、敷金1ヶ月、バイク置場、ディンプルキー、駅まで平坦、ネット使用料不要、全室南向き、平坦地、3駅以上利用可、3沿線以上利用可、24時間ゴミ出し可、敷地内ごみ置き場、全居室6畳以上、都市ガス、玄関収納、BS、高速ネット対応、IT重説対応物件、通風良好 | ||
部屋の情報
| 間取り | 1K | 専有面積 | 23.23m2 |
|---|---|---|---|
| 所在階 / 向き | 5階 / 南 | バルコニー面積 | - |
| 水道 / ガス | - | ||
| 設備 | バス・トイレ別、2階以上、オートロック、テレビドアホン、宅配ボックス、浴室乾燥機、追い焚き、インターネット対応、システムキッチン、エアコン、エレベーター、温水洗浄便座、南向き、バルコニー、フローリング、洗髪洗面化粧台、2口コンロ、コンロ:ガス、BSアンテナ、インターネット使用料無料、洗濯機:室内 | ||
| 当社物件ID | 100940646 | ||
建物の情報
| 建物名 | BPRレジデンス新梅田 | ||
|---|---|---|---|
| 所在地 | 大阪府大阪市北区大淀中 | ||
| 交通 | JR大阪環状線 福島駅(阪神) 徒歩11分 JR大阪環状線 大阪駅 徒歩13分 阪神本線 福島駅(阪神) 徒歩14分 | ||
| 階数 | 14階建 | 総戸数 | 91戸 |
| 築年月 | 2020年02月 / 築7年 | エレベーター | あり |
| 駐車場 | なし | バイク置き場 | あり |
| 駐輪場 | あり | 管理人/管理会社 | - |
| 周辺環境 | その他 阪急オアシス大淀南店(スーパー)まで171m その他 マルシゲ大淀店(スーパー)まで247m その他 ライフ大淀中店(スーパー)まで298m その他 セブンイレブン大阪大淀南1丁目店(コンビニ)まで315m その他 ファミリーマート大淀南店(コンビニ)まで363m | ||
| 建物種別 | マンション | 建物構造 | RC(鉄筋コンクリート) |
この部屋の取扱い不動産会社
| 会社名 | ミニミニFCJR大阪駅前店(株)成都賃貸ホームズ(SUUMO経由) | ||
|---|---|---|---|
| 所在地 | 大阪府大阪市北区梅田1-3-1大阪駅前第1ビル1F | 交通 | - |
| 営業時間 | 10時~18時 | 定休日 | GW・夏期・年末年始 |
| 免許番号 | 大阪府知事49693 | 取引態様 | 仲介 |
| 不動産会社管理番号 | 100481943282 | 当社管理番号 | 89 |
| 所属団体 | (公社)近畿地区不動産公正取引協議会会員 | ||
| 取扱い物件情報 | 物件詳細へ | ||
※各種情報と現状に差異がある場合は、現状優先となります。問い合わせをすることで、より詳しい条件、情報を確認する事ができます。
提供:ミニミニFCJR大阪駅前店(株)成都賃貸ホームズ(SUUMO経由)
この物件が気になったら掲載期限まであと11日
BPRレジデンス新梅田に条件(家賃・エリア)が近い物件一覧
| 写真 | 家賃 管理費等 | 敷金 礼金 | 間取り 専有面積 | 築年数 | 最寄り駅 所在地 | キープ | 詳細 |
|---|---|---|---|---|---|---|---|
アパート クレストメゾン(1DK/1階) | |||||||
![]() | 6.9万円 3,000円 | なし 6.9万円 | 1DK 35.4m2 | 築1年 | 関西本線 久宝寺駅 徒歩17分 大阪府八尾市久宝寺1丁目 | 詳細を見る | |
一戸建て 京阪電気鉄道京阪線 大和田駅(大阪) 徒歩9分 築31年(5LDK) | |||||||
![]() | 11.8万円 なし | 11.8万円 23.6万円 | 5LDK 131.22m2 | 築31年 | 京阪電気鉄道京阪線 大和田駅(大阪) 徒歩9分 京阪電気鉄道京阪線 萱島駅 徒歩10分 京阪電気鉄道京阪線 古川橋駅 徒歩20分 大阪府守口市藤田町4丁目 | 詳細を見る | |
マンション グランガーデン足代新町(1LDK/7階) | |||||||
![]() | 8.3万円 7,000円 | なし 10万円 | 1LDK 34.67m2 | 築17年 | 近鉄難波・奈良線 布施駅 徒歩5分 大阪府東大阪市足代新町 | 詳細を見る | |
マンション プルメリア関大前(1K/2階) | |||||||
![]() | 7.1万円 4,000円 | なし 7.1万円 | 1K 25.04m2 | 築1年 | 阪急電鉄千里線 関大前駅 徒歩18分 阪急電鉄千里線 豊津駅(大阪) 徒歩19分 東海道本線 吹田駅(JR) 徒歩21分 大阪府吹田市山手町4丁目1823-1 | 詳細を見る | |
マンション シーズンフラッツ梅田ノース(1LDK/11階) | |||||||
| 12.1万円 1万円 | なし 12.1万円 | 1LDK 30m2 | 築3年 | 大阪市谷町線 中崎町駅 徒歩7分 大阪市御堂筋線 中津駅(大阪メトロ) 徒歩8分 阪急電鉄千里線 天神橋筋六丁目駅 徒歩10分 大阪府大阪市北区豊崎1丁目8-18 | 詳細を見る | ||
アパート 大久保町5-31-2(7SDK/1階) | |||||||
![]() | 5.5万円 4,000円 | なし なし | 7SDK 80m2 | 築59年 | 京阪電気鉄道京阪線 萱島駅 徒歩15分 京阪電気鉄道京阪線 大和田駅(大阪) 徒歩15分 京阪電気鉄道京阪線 古川橋駅 徒歩28分 大阪府守口市大久保町5丁目 | 詳細を見る | |
マンション GLUCK MAISON S-SAKAI ⅩⅥ(1K/10階) | |||||||
![]() | 7.6万円 8,000円 | なし 7.6万円 | 1K 28.36m2 | 築1年 | 南海電鉄南海本線 堺駅 徒歩10分 南海電鉄高野線 堺東駅 徒歩20分 南海電鉄南海本線 湊駅 徒歩24分 大阪府堺市堺区甲斐町東1丁 | 詳細を見る | |
アパート 阪和線 鳳駅 徒歩11分 築1年(2LDK/2階) | |||||||
![]() | 13.2万円 7,500円 | 5万円 20万円 | 2LDK 62.56m2 | 築1年 | 阪和線 鳳駅 徒歩11分 阪和線 津久野駅 徒歩18分 南海電鉄南海本線 浜寺公園駅 徒歩21分 大阪府堺市西区鳳北町4丁 | 詳細を見る | |







