賃貸一戸建て
西武鉄道新宿線 狭山市駅 徒歩15分 2階建 新築の賃貸物件情報(3LDK)
| 家賃 | 管理費等 | 敷金 | 礼金 | 間取り | 専有面積 |
|---|---|---|---|---|---|
| 13.8万円 | なし | 13.8万円 | 13.8万円 | 3LDK | 73.07m2 |
入居決定でお祝い金最大100,000円
Point
収納はシューズボックス・クロゼットなど豊富なので、衣類や履き物の整理がしやすく便利です。
提供:ハウスコム埼玉株式会社 所沢店

詳細情報 西武鉄道新宿線 狭山市駅 徒歩15分 2階建 新築
物件紹介
西武鉄道新宿線狭山市駅から徒歩15分にある一戸建てです。
このお部屋のインターホンにはTVモニタがついているため、相手の顔を確認してから来客対応することができます。
フローリングのお部屋なのでお掃除もラクラク。キッチンはシステムキッチン仕様になっていますので、お料理好きの方にもぴったり。バス・トイレは別なので、のんびりお風呂タイムも楽しめるでしょう。また、雨の日でも浴室乾燥機を使えば、お洗濯も問題ありません。
ペット飼育の相談ができますので、あなたの大切な家族の一員も快適に暮らせるか、ぜひ確認してみてください。
コンビニまで徒歩5分の場所にあり、日用品や食料品のお買い物にも便利です。
このお部屋のインターホンにはTVモニタがついているため、相手の顔を確認してから来客対応することができます。
フローリングのお部屋なのでお掃除もラクラク。キッチンはシステムキッチン仕様になっていますので、お料理好きの方にもぴったり。バス・トイレは別なので、のんびりお風呂タイムも楽しめるでしょう。また、雨の日でも浴室乾燥機を使えば、お洗濯も問題ありません。
ペット飼育の相談ができますので、あなたの大切な家族の一員も快適に暮らせるか、ぜひ確認してみてください。
コンビニまで徒歩5分の場所にあり、日用品や食料品のお買い物にも便利です。
お金・契約の情報
※「-」と表示されているものは、実際は料金が発生するものもございます。詳細はお問い合わせください。
| 家賃 | 13.8万円 | 管理費・共益費 | なし |
|---|---|---|---|
| 敷金 | 13.8万円 | 礼金 | 13.8万円 |
| 入居決定でお祝い金最大100,000円 | |||
| 保証金 | - | 償却・敷引 | - |
| 住宅保険料 | 1円 | 更新料 | - |
| その他費用 | ホームマイスター24円:1.65万円 | ||
| 保証会社利用 | 必須 | 保証会社名 | - |
| 保証会社費用 | - | 保証会社備考 | 初回保証料:賃料等の100% 継続保証料:1年毎に賃料の15% |
| 契約形態 | - | 契約期間 | 2年 |
| 入居・引渡期間 | 2026年06月上旬 | 現況 | 未完成 |
| 入居可能条件 | 事務所不可、2人入居可、ペット可 | ||
| 契約備考 | 短期解約違約金あり(1年未満/1ヶ月分賃料) ペット飼育時:敷金1ヶ月積み増し(頭数・種類は要相談)諸条件の変更の可能性あり 退去時クリーニング費用:115500円 町会費発生時は入居者加入と負担 月額(スマートキー 1650円) その他設備/条件:室内洗濯機置き場、独立洗面台、浴室1.6x2.0m以上、クローゼット、シューズボックス、照明器具付き、オートバス | ||
部屋の情報
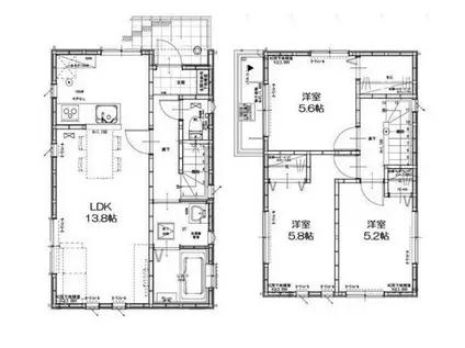
| 間取り | 3LDK | 専有面積 | 73.07m2 |
|---|---|---|---|
| 間取り詳細 | LDK(13.8帖)、洋室(5.2帖)、洋室(5.6帖)、洋室(5.8帖) | ||
| 所在階 / 向き | 1階 / 南東 | バルコニー面積 | - |
| 水道 / ガス | 水道【公営】、ガス【プロパン】 | ||
| 設備 | バス・トイレ別、テレビドアホン、浴室乾燥機、追い焚き、システムキッチン、カウンターキッチン、エアコン、温水洗浄便座、バルコニー、フローリング、床下収納、洗髪洗面化粧台、3口コンロ、コンロ:IH、シャワー、給湯 | ||
| 当社物件ID | 160249610 | ||
建物の情報
| 建物名 | 西武鉄道新宿線 狭山市駅 徒歩15分 2階建 新築 | ||
|---|---|---|---|
| 所在地 | 埼玉県狭山市富士見1丁目 | ||
| 交通 | 西武鉄道新宿線 狭山市駅 徒歩15分 | ||
| 階数 | 2階建 | 総戸数 | 1戸 |
| 築年月 | 2026年05月 / 新築 | エレベーター | - |
| 駐車場 | 空有 | バイク置き場 | - |
| 駐輪場 | - | 管理人/管理会社 | - |
| 周辺環境 | コンビニ 徒歩5分(381m) その他 ドラッグストア その他 公園 その他 銀行 その他 * | ||
| 建物種別 | 一戸建て | 建物構造 | 木造 |
この部屋の取扱い不動産会社
| 会社名 | ハウスコム埼玉株式会社 所沢店 | ||
|---|---|---|---|
| 所在地 | 埼玉県所沢市10-6毛利ビル2階 | 交通 | - |
| 営業時間 | 10:00~18:00 | 定休日 | - |
| 免許番号 | 埼玉県知事(1)第24888号 | 取引態様 | 仲介 |
| 不動産会社管理番号 | HC2-5340123-B-0021 | 当社管理番号 | 468 |
| 所属団体 | 、 | ||
| 取扱い物件情報 | 物件詳細へ | ||
※各種情報と現状に差異がある場合は、現状優先となります。問い合わせをすることで、より詳しい条件、情報を確認する事ができます。
提供:ハウスコム埼玉株式会社 所沢店
この物件が気になったら掲載期限まであと4日
西武鉄道新宿線 狭山市駅 徒歩15分 2階建 新築に条件(家賃・エリア)が近い物件一覧
| 写真 | 家賃 管理費等 | 敷金 礼金 | 間取り 専有面積 | 築年数 | 最寄り駅 所在地 | キープ | 詳細 |
|---|---|---|---|---|---|---|---|
アパート サンモール(2LDK/2階) | |||||||
![]() | 9.7万円 7,000円 | なし 9.7万円 | 2LDK 57.8m2 | 築13年 | 東武東上線 川越駅 徒歩22分 JR川越線 川越駅 徒歩22分 埼玉県川越市新宿町 | 詳細を見る | |
アパート ルビナスⅡB棟(2LDK/1階) | |||||||
![]() | 9.2万円 2,000円 | 9.2万円 なし | 2LDK 66.77m2 | 築20年 | 西武池袋・豊島線 西所沢駅 徒歩14分 西武鉄道狭山線 下山口駅 徒歩18分 埼玉県所沢市大字山口 | 詳細を見る | |
マンション フラッツ秋津(1SLDK/3階) | |||||||
![]() | 11.3万円 8,000円 | 11.3万円 22.6万円 | 1SLDK 42.03m2 | 築1年 | 西武池袋線 秋津駅 徒歩2分 JR武蔵野線 新秋津駅 徒歩9分 埼玉県所沢市大字上安松 | 詳細を見る | |
アパート D-SERENO富士見町(1LDK/1階) | |||||||
![]() | 8.6万円 6,000円 | なし 17.2万円 | 1LDK 31.29m2 | 築1年 | 東武東上線 川越駅 徒歩11分 西武新宿線 本川越駅 徒歩23分 東武東上線 川越市駅 徒歩25分 埼玉県川越市富士見町 | 詳細を見る | |
マンション ステラ川越松江町(1LDK/3階) | |||||||
![]() | 11.7万円 8,000円 | 11.7万円 23.4万円 | 1LDK 41.39m2 | 築1年 | 西武鉄道新宿線 本川越駅 徒歩6分 埼玉県川越市松江町1丁目 | 詳細を見る | |
アパート ラポール(2LDK/1階) | |||||||
![]() | 10.3万円 5,000円 | なし 10.3万円 | 2LDK 54.23m2 | 築17年 | 西武池袋線 狭山ケ丘駅 徒歩10分 西武池袋線 小手指駅 徒歩24分 西武池袋線 武蔵藤沢駅 徒歩27分 埼玉県所沢市若狭 | 詳細を見る | |
マンション 睦マンション(2DK/3階) | |||||||
![]() | 9.8万円 なし | 9.8万円 なし | 2DK 40m2 | 築39年 | JR武蔵野線 東所沢駅 徒歩2分 埼玉県所沢市東所沢 | 詳細を見る | |
マンション メゾン・ド・大手町(2SLDK/2階) | |||||||
![]() | 9.5万円 6,000円 | なし なし | 2SLDK 60m2 | 築19年 | 西武新宿線 本川越駅 徒歩15分 東武東上線 川越市駅 徒歩19分 JR川越線 川越駅 徒歩24分 埼玉県川越市大手町 | 詳細を見る | |









