賃貸アパート
シャトー新大塚の賃貸物件情報(1K/1階)
| 家賃 | 管理費等 | 敷金 | 礼金 | 間取り | 専有面積 |
|---|---|---|---|---|---|
| 8万円 | 4,000円 | なし | 8万円 | 1K | 17.81m2 |
入居決定でお祝い金最大100,000円
- 保証金
- -
- 償却・敷引
- -
- 築年数
- 築24年
- 所在階
- 1階
- 向き
- 南
Point
インターネット無料なので、リモートワークの方や、オンライン授業の学生さんにも心強いです♪
提供:i-Room(株)ルーク不動産(SUUMO経由)

詳細情報 シャトー新大塚
物件紹介
シャトー新大塚は東京メトロ有楽町線東池袋駅から徒歩7分にあり、駅近で通勤通学に便利なアパートです。
このお部屋のインターホンにはTVモニタがついているため、相手の顔を確認してから来客対応することができます。
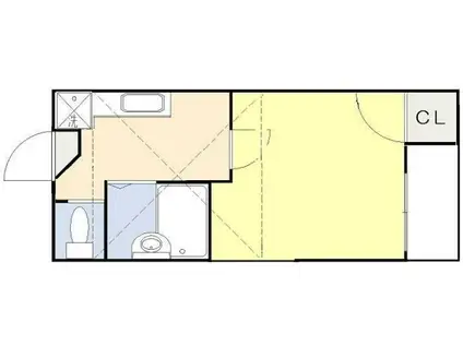
おしゃれなデザイナーズ物件!人気の南向き・フローリングのお部屋。室内には多目的に利用できるロフトもあり、お部屋のアレンジも自在です。バス・トイレ別の仕様で、のんびりお風呂タイムも楽しめます。
通信設備面では、インターネットが無料で使えるので、月々の出費を抑えられるのも魅力です(別途工事等が必要な場合あり)。
このお部屋のインターホンにはTVモニタがついているため、相手の顔を確認してから来客対応することができます。
おしゃれなデザイナーズ物件!人気の南向き・フローリングのお部屋。室内には多目的に利用できるロフトもあり、お部屋のアレンジも自在です。バス・トイレ別の仕様で、のんびりお風呂タイムも楽しめます。
通信設備面では、インターネットが無料で使えるので、月々の出費を抑えられるのも魅力です(別途工事等が必要な場合あり)。
お金・契約の情報
※「-」と表示されているものは、実際は料金が発生するものもございます。詳細はお問い合わせください。
| 家賃 | 8万円 | 管理費・共益費 | 4,000円 |
|---|---|---|---|
| 敷金 | なし | 礼金 | 8万円 |
| 入居決定でお祝い金最大100,000円 | |||
| 保証金 | - | 償却・敷引 | - |
| 住宅保険料 | - | 更新料 | - |
| 保証会社利用 | 必須 | 保証会社名 | - |
| 保証会社費用 | - | 保証会社備考 | 保証会社利用必 初回保証料:総賃料の30% 詳しくはお問い合わせください |
| 契約形態 | - | 契約期間 | - |
| 入居・引渡期間 | - | 現況 | - |
| 契約備考 | 合計3.63万円(内訳:とくとくCLUB1.65万円室内消毒料1.98万円鍵交換代0万円) 更新料 新賃料1.00ヶ月分 室内清掃費用 38500円 1K 普通借家2年 損保【2万円2年】 バストイレ別、バルコニー、エアコン、ガスコンロ対応、クロゼット、フローリング、シャワー付洗面台、室内洗濯置、陽当り良好、シューズボックス、南向き、敷金不要、独立型キッチン、全居室収納、ロフト、全居室洋室、保証人不要、二人入居相談、2沿線利用可、ネット専用回線、ネット使用料不要、2駅利用可、3駅以上利用可、3沿線以上利用可、駅徒歩10分以内、プロパンガス、玄関収納、礼金1ヶ月、保証会社利用可、初期費用カード決済可 入居日:'26年2月上旬 | ||
部屋の情報
| 間取り | 1K | 専有面積 | 17.81m2 |
|---|---|---|---|
| 所在階 / 向き | 1階 / 南 | バルコニー面積 | - |
| 水道 / ガス | - | ||
| 設備 | バス・トイレ別、インターネット対応、エアコン、南向き、バルコニー、フローリング、ロフトあり、コンロ:ガス、インターネット使用料無料、洗濯機:室内 | ||
| 当社物件ID | 22610490 | ||
建物の情報
| 建物名 | シャトー新大塚 | ||
|---|---|---|---|
| 所在地 | 東京都文京区大塚 | ||
| 交通 | 東京メトロ有楽町線 東池袋駅 徒歩7分 東京メトロ丸ノ内線 新大塚駅 徒歩9分 JR山手線 大塚駅(東京) 徒歩12分 | ||
| 階数 | 2階建 | 総戸数 | 8戸 |
| 築年月 | 2002年12月 / 築24年 | エレベーター | - |
| 駐車場 | 近隣 260m26999円 | バイク置き場 | - |
| 駐輪場 | - | 管理人/管理会社 | - |
| 周辺環境 | その他 サンシャイン西友(スーパー)まで694m その他 成文堂書店 巣鴨(その他)まで1972m その他 八洲学園高等学校池袋会場(高校・高専)まで1459m その他 東京福祉大学・大学院 池袋キャンパス(大学・短大)まで780m その他 すき家 池袋サンシャイン前店(飲食店)まで863m その他 餃子の王将南大塚店(飲食店)まで809m | ||
| 建物種別 | アパート | 建物構造 | 木造 |
この部屋の取扱い不動産会社
| 会社名 | i-Room巣鴨店(株)ルーク不動産(SUUMO経由) | ||
|---|---|---|---|
| 所在地 | 東京都豊島区巣鴨3-25-10 | 交通 | - |
| 営業時間 | 9:00~18:00 | 定休日 | 火曜日 |
| 免許番号 | 東京都知事95272 | 取引態様 | 仲介 |
| 不動産会社管理番号 | 100480376099 | 当社管理番号 | 89 |
| 所属団体 | (公社)東京都宅地建物取引業協会会員 | ||
| 公正取引協議会 | (公社)首都圏不動産公正取引協議会加盟 | ||
| 取扱い物件情報 | 物件詳細へ | ||
※各種情報と現状に差異がある場合は、現状優先となります。問い合わせをすることで、より詳しい条件、情報を確認する事ができます。
提供:i-Room巣鴨店(株)ルーク不動産(SUUMO経由)
この物件が気になったら掲載期限まであと10日
シャトー新大塚に条件(家賃・エリア)が近い物件一覧
| 写真 | 家賃 管理費等 | 敷金 礼金 | 間取り 専有面積 | 築年数 | 最寄り駅 所在地 | キープ | 詳細 |
|---|---|---|---|---|---|---|---|
マンション レジデンス上野(ワンルーム/2階) | |||||||
![]() | 8.2万円 5,000円 | 8.2万円 なし | ワンルーム 18.34m2 | 築33年 | 東京メトロ日比谷線 入谷駅(東京) 徒歩6分 東京メトロ銀座線 稲荷町駅(東京) 徒歩8分 JR山手線 上野駅 徒歩12分 東京都台東区北上野 | 詳細を見る | |
マンション プレサンスブルーム浅草ノース(1K/7階) | |||||||
![]() | 10.1万円 2万円 | なし なし | 1K 25.52m2 | 築4年 | つくばエクスプレス 浅草駅(つくばEXP) 徒歩7分 東京地下鉄日比谷線 入谷駅(東京) 徒歩13分 東京地下鉄銀座線 浅草駅(東武・都営・メトロ) 徒歩16分 東京都台東区浅草4丁目 | 詳細を見る | |
マンション プラウドフラット浅草雷門(ワンルーム/9階) | |||||||
![]() | 12.5万円 1万円 | 12.5万円 12.5万円 | ワンルーム 25.35m2 | 築7年 | 東京地下鉄銀座線 浅草駅(東武・都営・メトロ) 徒歩4分 東武伊勢崎・大師線 浅草駅(東武・都営・メトロ) 徒歩6分 東京都大江戸線 蔵前駅 徒歩8分 東京都台東区雷門1丁目 | 詳細を見る | |
マンション 神明公園ハイツ・文京(1K/2階) | |||||||
![]() | 12.9万円 8,000円 | 12.9万円 12.9万円 | 1K 25.01m2 | 築3年 | 東京地下鉄南北線 駒込駅 徒歩10分 山手線 駒込駅 徒歩12分 東京都文京区本駒込5丁目 | 詳細を見る | |
マンション ザ レジデンス オブ トーキョー H20 スカイタワー(1K/2階) | |||||||
![]() | 10.5万円 1万円 | 10.5万円 10.5万円 | 1K 25.16m2 | 築2年 | 東京地下鉄日比谷線 三ノ輪駅 徒歩10分 常磐線 南千住駅 徒歩15分 東京都台東区日本堤1丁目 | 詳細を見る | |
マンション スプランドゥール(1K/2階) | |||||||
![]() | 10.5万円 1.3万円 | なし 10.5万円 | 1K 24.64m2 | 築17年 | つくばエクスプレス 浅草駅(つくばEXP) 徒歩2分 東京地下鉄銀座線 田原町駅(東京) 徒歩7分 東京都大江戸線 蔵前駅 徒歩13分 東京都台東区西浅草2丁目 | 詳細を見る | |
マンション ライオンズマンション小石川第3(ワンルーム/3階) | |||||||
![]() | 11.2万円 1万円 | 11.2万円 11.2万円 | ワンルーム 34.71m2 | 築43年 | 東京地下鉄丸ノ内線 茗荷谷駅 徒歩8分 東京都文京区小石川5丁目 | 詳細を見る | |
マンション ザ・グローヴ浅草(1K/2階) | |||||||
![]() | 11.5万円 8,000円 | 11.5万円 11.5万円 | 1K 26.24m2 | 築5年 | 東京地下鉄銀座線 浅草駅(東武・都営・メトロ) 徒歩2分 東京都台東区浅草1丁目 | 詳細を見る | |








