賃貸アパート
コーポおやまだの賃貸物件情報(1K/2階)
| 家賃 | 管理費等 | 敷金 | 礼金 | 間取り | 専有面積 |
|---|---|---|---|---|---|
| 5.1万円 | 1,800円 | 5.1万円 | なし | 1K | 31.46m2 |
入居決定でお祝い金最大100,000円
Point
敷地内駐車場空あります
提供:(株)森の不動産(SUUMO経由)

詳細情報 コーポおやまだ
物件紹介
コーポおやまだはJR山田線上盛岡駅から徒歩13分にあるアパートです。
このお部屋は2階以上に位置しているので、通行人や周囲の住人からの視線が気になりにくく、防犯面でも安心です。
人気の南向きのお部屋。また、フローリングなのでお掃除もラクラク。バス・トイレ別の仕様で、のんびりお風呂タイムも楽しめます。
このお部屋は2階以上に位置しているので、通行人や周囲の住人からの視線が気になりにくく、防犯面でも安心です。
人気の南向きのお部屋。また、フローリングなのでお掃除もラクラク。バス・トイレ別の仕様で、のんびりお風呂タイムも楽しめます。
お金・契約の情報
※「-」と表示されているものは、実際は料金が発生するものもございます。詳細はお問い合わせください。
| 家賃 | 5.1万円 | 管理費・共益費 | 1,800円 |
|---|---|---|---|
| 敷金 | 5.1万円 | 礼金 | なし |
| 入居決定でお祝い金最大100,000円 | |||
| 保証金 | - | 償却・敷引 | - |
| 住宅保険料 | - | 更新料 | - |
| 保証会社利用 | 必須 | 保証会社名 | - |
| 保証会社費用 | - | 保証会社備考 | 保証会社利用必 アーク賃貸保証 書記費用47,304円 |
| 契約形態 | - | 契約期間 | - |
| 入居・引渡期間 | 即時 | 現況 | - |
| 契約備考 | ファミリーマート盛岡中央通二丁まで163m/MOSSまで395m 1K 損保【1.3万円2年】 バストイレ別、エアコン、クロゼット、フローリング、洗面化粧台、即入居可、礼金不要、最上階、敷金1ヶ月、始発駅、2駅利用可、バス停徒歩3分以内、プロパンガス | ||
部屋の情報
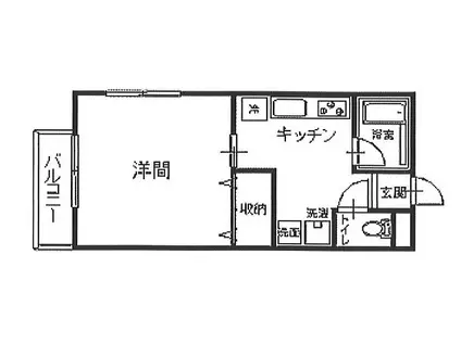
| 間取り | 1K | 専有面積 | 31.46m2 |
|---|---|---|---|
| 所在階 / 向き | 2階 / 南西 | バルコニー面積 | - |
| 水道 / ガス | - | ||
| 設備 | バス・トイレ別、2階以上、エアコン、南向き、フローリング | ||
| 当社物件ID | 7638090 | ||
建物の情報
| 建物名 | コーポおやまだ | ||
|---|---|---|---|
| 所在地 | 岩手県盛岡市中央通 | ||
| 交通 | JR山田線 上盛岡駅 徒歩13分 JR東北本線 盛岡駅 徒歩18分 | ||
| 階数 | 2階建 | 総戸数 | - |
| 築年月 | 2003年06月 / 築23年 | エレベーター | - |
| 駐車場 | 空有 6000円 | バイク置き場 | - |
| 駐輪場 | - | 管理人/管理会社 | - |
| 周辺環境 | その他 ファミリーマート盛岡中央通二丁目店(コンビニ)まで163m その他 MOSS(ショッピングセンター)まで395m | ||
| 建物種別 | アパート | 建物構造 | 木造 |
この部屋の取扱い不動産会社
| 会社名 | (株)森の不動産(SUUMO経由) | ||
|---|---|---|---|
| 所在地 | 岩手県盛岡市中央通2-1-27 | 交通 | - |
| 営業時間 | 平日9:00~18:00土曜日9:00~14:00 | 定休日 | 第2・4・5土曜日、日、祝日 |
| 免許番号 | 岩手県知事1808 | 取引態様 | 仲介 |
| 不動産会社管理番号 | 100450350463 | 当社管理番号 | 89 |
| 所属団体 | (一社)岩手県宅地建物取引業協会会員 | ||
| 公正取引協議会 | 東北地区不動産公正取引協議会加盟 | ||
| 取扱い物件情報 | 物件詳細へ | ||
※各種情報と現状に差異がある場合は、現状優先となります。問い合わせをすることで、より詳しい条件、情報を確認する事ができます。
提供:(株)森の不動産(SUUMO経由)
この物件が気になったら掲載期限まであと9日
コーポおやまだに条件(家賃・エリア)が近い物件一覧
| 写真 | 家賃 管理費等 | 敷金 礼金 | 間取り 専有面積 | 築年数 | 最寄り駅 所在地 | キープ | 詳細 |
|---|---|---|---|---|---|---|---|
アパート ベルハウス(2LDK/2階) | |||||||
![]() | 7.3万円 4,500円 | なし 7.3万円 | 2LDK 64.13m2 | 築23年 | JR東北本線 仙北町駅 徒歩20分 東北新幹線 盛岡駅 徒歩40分 岩手県盛岡市向中野 | 詳細を見る | |
アパート MAISON DE HIBOU D(1K/1階) | |||||||
![]() | 6万円 3,500円 | 6万円 6万円 | 1K 30.37m2 | 築1年 | いわて銀河鉄道線 青山駅(岩手) 徒歩20分 岩手県盛岡市中堤町 | 詳細を見る | |
アパート グランフィオーレⅡ(2LDK/2階) | |||||||
![]() | 5.4万円 2,300円 | なし 5.4万円 | 2LDK 57.67m2 | 築16年 | 岩手県花巻市中根子字道地 | 詳細を見る | |
アパート プチ仙北A(2DK/2階) | |||||||
![]() | 4.2万円 なし | 4.2万円 なし | 2DK 36m2 | 築35年 | 東北本線 仙北町駅 徒歩17分 岩手県盛岡市仙北3丁目 | 詳細を見る | |
アパート サンクイーンA(2LDK/1階) | |||||||
![]() | 6.5万円 なし | 13万円 なし | 2LDK 59.4m2 | 築31年 | JR東北本線 仙北町駅 徒歩21分 東北新幹線 盛岡駅 徒歩23分 JR山田線 上盛岡駅 徒歩42分 岩手県盛岡市本宮 | 詳細を見る | |
マンション 盛岡ダイカンプラザ(1K/11階) | |||||||
![]() | 4.2万円 なし | 8.4万円 なし | 1K 24.72m2 | 築37年 | 東北本線 盛岡駅 徒歩9分 岩手県盛岡市長田町 | 詳細を見る | |
マンション ハイムスT1(2K/4階) | |||||||
![]() | 5万円 5,000円 | なし なし | 2K 37.89m2 | 築31年 | 東北本線 仙北町駅 徒歩21分 岩手県盛岡市本宮4丁目 | 詳細を見る | |
アパート フェアリー(2DK/2階) | |||||||
![]() | 4.3万円 1,600円 | なし なし | 2DK 47.61m2 | 築31年 | JR東北本線 岩手飯岡駅 徒歩35分 JR東北本線 矢幅駅 徒歩62分 岩手県盛岡市東見前8地割 | 詳細を見る | |




/105x80-f1-q70-wp1)
/105x80-f1-q70-wp1)

/105x80-f1-q70-wp1)
/105x80-f1-q70-wp1)
