賃貸マンション
フジマンション第2の賃貸物件情報(3LDK/3階)
| 家賃 | 管理費等 | 敷金 | 礼金 | 間取り | 専有面積 |
|---|---|---|---|---|---|
| 14.1万円 | 1.4万円 | 14.1万円 | 14.1万円 | 3LDK | 66.78m2 |
入居決定でお祝い金最大100,000円
Point
☆当店で掲載している物件以外もお気軽にお問い合わせください☆お部屋探しに重要な、物件の「比較」が効率よく簡単にできますので、良いお部屋探しができます。
提供:(株)ハウスパートナー葛西店(SUUMO経由)

詳細情報 フジマンション第2
物件紹介
フジマンション第2は東京メトロ東西線西葛西駅から徒歩2分にあり、駅近で通勤通学に便利なマンションです。
このお部屋は2階以上に位置しているので、通行人や周囲の住人からの視線が気になりにくく、防犯面でも安心。インターホンにはTVモニタもついているため、相手の顔を確認してから来客対応することができます。
人気の南向きのお部屋。また、フローリングなのでお掃除もラクラク。キッチンはシステムキッチン仕様になっていますので、お料理好きの方にもぴったり。バス・トイレは別なので、のんびりお風呂タイムも楽しめるでしょう。また、雨の日でも浴室乾燥機を使えば、お洗濯も問題ありません。
通信設備面では、インターネット接続が可能です。また、BSアンテナ・CSアンテナがありCATVにも対応しているので、おうち時間も充実するでしょう(別途工事、契約料が必要な場合あり)。
建物にはエレベーターがついているので、重い荷物があっても安心。共用部には宅配ボックスが設定されているので、不在の時にも荷物を受け取ることができます。
このお部屋は2階以上に位置しているので、通行人や周囲の住人からの視線が気になりにくく、防犯面でも安心。インターホンにはTVモニタもついているため、相手の顔を確認してから来客対応することができます。
人気の南向きのお部屋。また、フローリングなのでお掃除もラクラク。キッチンはシステムキッチン仕様になっていますので、お料理好きの方にもぴったり。バス・トイレは別なので、のんびりお風呂タイムも楽しめるでしょう。また、雨の日でも浴室乾燥機を使えば、お洗濯も問題ありません。
通信設備面では、インターネット接続が可能です。また、BSアンテナ・CSアンテナがありCATVにも対応しているので、おうち時間も充実するでしょう(別途工事、契約料が必要な場合あり)。
建物にはエレベーターがついているので、重い荷物があっても安心。共用部には宅配ボックスが設定されているので、不在の時にも荷物を受け取ることができます。
お金・契約の情報
※「-」と表示されているものは、実際は料金が発生するものもございます。詳細はお問い合わせください。
| 家賃 | 14.1万円 | 管理費・共益費 | 1.4万円 |
|---|---|---|---|
| 敷金 | 14.1万円 | 礼金 | 14.1万円 |
| 入居決定でお祝い金最大100,000円 | |||
| 保証金 | - | 償却・敷引 | - |
| 住宅保険料 | - | 更新料 | - |
| 保証会社利用 | 必須 | 保証会社名 | - |
| 保証会社費用 | - | 保証会社備考 | 保証会社利用必 初回保証料賃料等の40%、月次保証料賃料等の1% 更新時1% |
| 契約形態 | - | 契約期間 | - |
| 入居・引渡期間 | - | 現況 | - |
| 契約備考 | 鍵交換代22000円。 更新料新賃料(ヶ月):1.00ヶ月 3LDK 二人入居可 普通借家2年 損保【1.8万円2年】 バストイレ別、バルコニー、エアコン、ガスコンロ対応、クロゼット、フローリング、シャワー付洗面台、TVインターホン、室内洗濯置、シューズボックス、システムキッチン、南向き、追焚機能浴室、温水洗浄便座、脱衣所、エレベーター、洗面所独立、駐輪場、宅配ボックス、押入、CATV、光ファイバー、外壁タイル張り、3口以上コンロ、グリル付、保証人不要、敷金1ヶ月、CATVインターネット、二人入居相談、玄関ホール、駅まで平坦、収納2間、ダブルロックキー、保証金不要、収納2間半、納戸、駅前、駅徒歩5分以内、敷地内ごみ置き場、都市ガス、BS、高速ネット対応、礼金1ヶ月、IT重説対応物件、LGBTフレンドリー、初期費用カード決済可 入居日:'25年12月下旬 | ||
部屋の情報
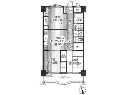
| 間取り | 3LDK | 専有面積 | 66.78m2 |
|---|---|---|---|
| 所在階 / 向き | 3階 / 南 | バルコニー面積 | - |
| 水道 / ガス | - | ||
| 設備 | バス・トイレ別、2階以上、テレビドアホン、宅配ボックス、追い焚き、インターネット対応、システムキッチン、エアコン、エレベーター、温水洗浄便座、南向き、バルコニー、フローリング、洗髪洗面化粧台、2口コンロ、コンロ:ガス、CATV、BSアンテナ、洗濯機:室内 | ||
| 当社物件ID | 21361570 | ||
建物の情報
| 建物名 | フジマンション第2 | ||
|---|---|---|---|
| 所在地 | 東京都江戸川区西葛西 | ||
| 交通 | 東京メトロ東西線 西葛西駅 徒歩2分 東京メトロ東西線 葛西駅 徒歩14分 | ||
| 階数 | 地下1地上11階建 | 総戸数 | - |
| 築年月 | 1989年02月 / 築37年 | エレベーター | あり |
| 駐車場 | なし | バイク置き場 | - |
| 駐輪場 | あり | 管理人/管理会社 | - |
| 周辺環境 | その他 アコレ西葛西6丁目店(スーパー)まで220m その他 ファミリーマートサクマ西葛西店(コンビニ)まで170m その他 江戸川区立第七葛西小学校(小学校)まで550m その他 森山記念病院(病院)まで1470m その他 葛西きらきら保育園(幼稚園・保育園)まで360m その他 西葛西駅前交番(警察署・交番)まで390m | ||
| 建物種別 | マンション | 建物構造 | SRC(鉄骨鉄筋コンクリート) |
この部屋の取扱い不動産会社
| 会社名 | (株)ハウスパートナー葛西店(SUUMO経由) | ||
|---|---|---|---|
| 所在地 | 東京都江戸川区中葛西3-35-1 | 交通 | - |
| 営業時間 | AM10:00~PM6:00 | 定休日 | 水曜日 |
| 免許番号 | 国土交通大臣9556 | 取引態様 | 仲介 |
| 不動産会社管理番号 | 100472987683 | 当社管理番号 | 89 |
| 所属団体 | (公社)全日本不動産協会東京都本部会員 | ||
| 公正取引協議会 | (公社)首都圏不動産公正取引協議会加盟 | ||
| 取扱い物件情報 | 物件詳細へ | ||
※各種情報と現状に差異がある場合は、現状優先となります。問い合わせをすることで、より詳しい条件、情報を確認する事ができます。
提供:(株)ハウスパートナー葛西店(SUUMO経由)
この物件が気になったら掲載期限まであと10日
フジマンション第2に条件(家賃・エリア)が近い物件一覧
| 写真 | 家賃 管理費等 | 敷金 礼金 | 間取り 専有面積 | 築年数 | 最寄り駅 所在地 | キープ | 詳細 |
|---|---|---|---|---|---|---|---|
マンション LUNIQ錦糸町(1LDK/3階) | |||||||
![]() | 19.7万円 2万円 | なし なし | 1LDK 40.81m2 | 築5年 | 東京都新宿線 菊川駅(東京) 徒歩8分 総武・中央緩行線 錦糸町駅 徒歩12分 東京地下鉄半蔵門線 住吉駅(東京) 徒歩12分 東京都墨田区立川4丁目 | 詳細を見る | |
マンション スカイガーデン錦糸町(1LDK/4階) | |||||||
![]() | 18万円 1.5万円 | 18万円 18万円 | 1LDK 41.91m2 | 築9年 | JR総武線 錦糸町駅 徒歩7分 都営新宿線 菊川駅(東京) 徒歩16分 東京メトロ半蔵門線 住吉駅(東京) 徒歩19分 東京都墨田区亀沢 | 詳細を見る | |
マンション パークアクシス錦糸町ヴェール(1LDK/4階) | |||||||
![]() | 20.8万円 1.2万円 | 20.8万円 20.8万円 | 1LDK 43.45m2 | 築10年 | 総武・中央緩行線 錦糸町駅 徒歩12分 総武本線 錦糸町駅 徒歩12分 東京地下鉄半蔵門線 錦糸町駅 徒歩12分 東京都墨田区緑4丁目 | 詳細を見る | |
マンション エストゥルースプラス押上(1K/5階) | |||||||
![]() | 10.3万円 1万円 | なし なし | 1K 25.52m2 | 築4年 | 東武亀戸線 曳舟駅 徒歩9分 東京メトロ半蔵門線 押上駅 徒歩12分 京成押上線 京成曳舟駅 徒歩14分 東京都墨田区向島 | 詳細を見る | |
マンション プレール・ドゥーク東陽町(1K/1階) | |||||||
![]() | 10.8万円 8,000円 | なし 10.8万円 | 1K 29.6m2 | 築14年 | 東京地下鉄東西線 東陽町駅 徒歩9分 東京地下鉄東西線 木場駅 徒歩17分 東京地下鉄東西線 南砂町駅 徒歩19分 東京都江東区東陽7丁目 | 詳細を見る | |
マンション ルーラル二十四番館(1K/6階) | |||||||
![]() | 11.7万円 1万円 | 11.7万円 なし | 1K 25.97m2 | 築7年 | 東京都新宿線 菊川駅(東京) 徒歩2分 東京都大江戸線 森下駅(東京) 徒歩10分 東京地下鉄半蔵門線 住吉駅(東京) 徒歩12分 東京都墨田区菊川2丁目 | 詳細を見る | |
マンション ウィステリア冬木(3LDK/7階) | |||||||
![]() | 22万円 なし | 22万円 22万円 | 3LDK 67.75m2 | 築35年 | 東京メトロ東西線 門前仲町駅 徒歩10分 東京メトロ東西線 木場駅 徒歩13分 東京メトロ半蔵門線 清澄白河駅 徒歩13分 東京都江東区冬木 | 詳細を見る | |
マンション サンライズコーポ(ワンルーム/3階) | |||||||
![]() | 8.7万円 5,000円 | 8.7万円 なし | ワンルーム 21.26m2 | 築40年 | 東京都浅草線 本所吾妻橋駅 徒歩4分 東京地下鉄銀座線 浅草駅(東武・都営・メトロ) 徒歩8分 東京都墨田区東駒形3丁目 | 詳細を見る | |









