賃貸マンション
戸坂コーポラスの賃貸物件情報(1LDK/1階)
| 家賃 | 管理費等 | 敷金 | 礼金 | 間取り | 専有面積 |
|---|---|---|---|---|---|
| 7万円 | なし | 14万円 | なし | 1LDK | 44.56m2 |
入居決定でお祝い金最大100,000円
Point
◆うれしい都市ガス♪◆最寄りのスーパーまで徒歩5分!◆南向きで日当たり良好♪◆TVインターホンで来客の確認ができるから安心♪◆追焚機能、温水洗浄便座あり♪◆お気軽に良和ハウスまでお問い合わせください★
提供:(株)良和ハウス安佐南店(SUUMO経由)

詳細情報 戸坂コーポラス
物件紹介
戸坂コーポラスはJR芸備線戸坂駅から徒歩6分にあり、駅近で通勤通学に便利なマンションです。
このお部屋のインターホンにはTVモニタがついているため、相手の顔を確認してから来客対応することができます。
人気の南向きのお部屋。また、フローリングなのでお掃除もラクラク。バス・トイレ別の仕様で、のんびりお風呂タイムも楽しめます。
このお部屋のインターホンにはTVモニタがついているため、相手の顔を確認してから来客対応することができます。
人気の南向きのお部屋。また、フローリングなのでお掃除もラクラク。バス・トイレ別の仕様で、のんびりお風呂タイムも楽しめます。
お金・契約の情報
※「-」と表示されているものは、実際は料金が発生するものもございます。詳細はお問い合わせください。
| 家賃 | 7万円 | 管理費・共益費 | なし |
|---|---|---|---|
| 敷金 | 14万円 | 礼金 | なし |
| 入居決定でお祝い金最大100,000円 | |||
| 保証金 | - | 償却・敷引 | - |
| 住宅保険料 | - | 更新料 | - |
| 保証会社利用 | 必須 | 保証会社名 | - |
| 保証会社費用 | - | 保証会社備考 | 保証会社利用必 要確認 |
| 契約形態 | - | 契約期間 | - |
| 入居・引渡期間 | 即時 | 現況 | - |
| 契約備考 | 1LDK 損保【1.6万円2年】 バストイレ別、エアコン、クロゼット、フローリング、シャワー付洗面台、TVインターホン、陽当り良好、シューズボックス、南向き、追焚機能浴室、温水洗浄便座、脱衣所、洗面所独立、即入居可、礼金不要、対面式キッチン、全居室洋室、単身者相談、二人入居相談、全居室フローリング、2沿線利用可、専用庭、エアコン2台、内装リフォーム済、エアコン全室、庭、南面リビング、南庭、2駅利用可、駅徒歩10分以内、LDK12畳以上、オープンキッチン、都市ガス、初期費用カード決済可 | ||
部屋の情報
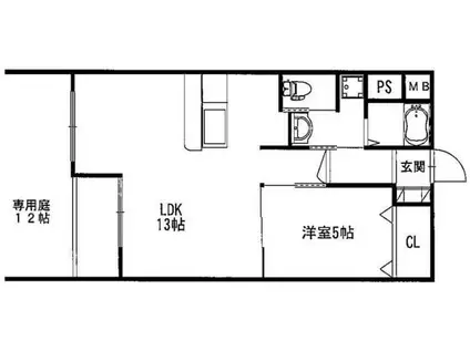
| 間取り | 1LDK | 専有面積 | 44.56m2 |
|---|---|---|---|
| 所在階 / 向き | 1階 / 南 | バルコニー面積 | - |
| 水道 / ガス | - | ||
| 設備 | バス・トイレ別、テレビドアホン、追い焚き、エアコン、温水洗浄便座、南向き、フローリング、洗髪洗面化粧台、専用庭 | ||
| 当社物件ID | 155678741 | ||
建物の情報
| 建物名 | 戸坂コーポラス | ||
|---|---|---|---|
| 所在地 | 広島県広島市東区戸坂山根 | ||
| 交通 | JR芸備線 戸坂駅 徒歩6分 広島高速交通アストラムライン 西原駅(広島) 徒歩27分 | ||
| 階数 | 5階建 | 総戸数 | 40戸 |
| 築年月 | 1974年05月 / 築52年 | エレベーター | - |
| 駐車場 | なし | バイク置き場 | - |
| 駐輪場 | - | 管理人/管理会社 | - |
| 周辺環境 | その他 デイリーヤマザキ広島戸坂中町店(コンビニ)まで337m その他 医療法人社団輔仁会太田川東ケアセ(病院)まで419m その他 福屋広島駅前店(ショッピングセンター)まで6541m その他 ユアーズ戸坂店(スーパー)まで576m その他 ウォンツ戸坂店(ドラッグストア)まで460m その他 広島市立戸坂小学校(小学校)まで649m | ||
| 建物種別 | マンション | 建物構造 | 鉄骨造 |
この部屋の取扱い不動産会社
| 会社名 | (株)良和ハウス横川駅前店(SUUMO経由) | ||
|---|---|---|---|
| 所在地 | 広島県広島市西区横川町3-12-1 | 交通 | - |
| 営業時間 | 10時~18時 | 定休日 | 水曜日 |
| 免許番号 | 国土交通大臣9113 | 取引態様 | 仲介 |
| 不動産会社管理番号 | 100396751175 | 当社管理番号 | 89 |
| 所属団体 | (公社)広島県宅地建物取引業協会会員 | ||
| 公正取引協議会 | 中国地区不動産公正取引協議会加盟 | ||
| 取扱い物件情報 | 物件詳細へ | ||
※各種情報と現状に差異がある場合は、現状優先となります。問い合わせをすることで、より詳しい条件、情報を確認する事ができます。
提供:(株)良和ハウス横川駅前店(SUUMO経由)
この物件が気になったら掲載期限まであと11日
戸坂コーポラスに条件(家賃・エリア)が近い物件一覧
| 写真 | 家賃 管理費等 | 敷金 礼金 | 間取り 専有面積 | 築年数 | 最寄り駅 所在地 | キープ | 詳細 |
|---|---|---|---|---|---|---|---|
アパート アストラムライン 中筋駅 徒歩10分 築32年(3LDK/2階) | |||||||
![]() | 7.5万円 なし | 18.75万円 7.5万円 | 3LDK 59m2 | 築32年 | アストラムライン 中筋駅 徒歩10分 アストラムライン 西原駅(広島) 徒歩11分 広島県広島市安佐南区東原3丁目 | 詳細を見る | |
アパート インフィニティ大須(1K/3階) | |||||||
![]() | 6.3万円 なし | 12.6万円 6.3万円 | 1K 28.28m2 | 築9年 | 呉線 天神川駅 徒歩6分 山陽本線 天神川駅 徒歩6分 広島県安芸郡府中町大須1丁目 | 詳細を見る | |
一戸建て 芸備線 矢賀駅 徒歩4分 築36年(2LDK) | |||||||
![]() | 7.8万円 なし | 7.8万円 7.8万円 | 2LDK 59.84m2 | 築36年 | 芸備線 矢賀駅 徒歩4分 呉線 天神川駅 徒歩16分 広島県広島市東区矢賀4丁目 | 詳細を見る | |
アパート GRACE東原(2LDK/1階) | |||||||
![]() | 6.3万円 3,000円 | 12.6万円 6.3万円 | 2LDK 51.37m2 | 築26年 | アストラムライン 西原駅(広島) 徒歩10分 可部線 下祇園駅 徒歩26分 広島県広島市安佐南区東原2丁目 | 詳細を見る | |
マンション ヴェナール(2LDK/2階) | |||||||
![]() | 6.5万円 4,000円 | 13万円 6.5万円 | 2LDK 51.84m2 | 築31年 | アストラムライン 西原駅(広島) 徒歩7分 可部線 下祇園駅 徒歩26分 広島県広島市安佐南区東原1丁目 | 詳細を見る | |
一戸建て 芸備線 矢賀駅 徒歩20分 築58年(3DK) | |||||||
![]() | 7.3万円 なし | 21.9万円 なし | 3DK 56.3m2 | 築58年 | 芸備線 矢賀駅 徒歩20分 呉線 天神川駅 徒歩28分 広島県広島市東区中山西1丁目 | 詳細を見る | |
マンション クレセールII番館(3LDK/3階) | |||||||
![]() | 8.9万円 なし | 17.8万円 8.9万円 | 3LDK 74.4m2 | 築28年 | アストラムライン 西原駅(広島) 徒歩10分 可部線 下祇園駅 徒歩13分 広島県広島市安佐南区西原5丁目 | 詳細を見る | |







