賃貸マンション
パークビュー王子駅前の賃貸物件情報(1K/5階)
| 家賃 | 管理費等 | 敷金 | 礼金 | 間取り | 専有面積 |
|---|---|---|---|---|---|
| 7.1万円 | 6,000円 | なし | 7.1万円 | 1K | 24.58m2 |
入居決定でお祝い金最大100,000円
- 保証金
- -
- 償却・敷引
- -
- 築年数
- 築9年
- 所在階
- 5階
- 向き
- 南東
Point
ピタットハウスではインターネット掲載物件は他社掲載分を含めエリアなど問わずご紹介できます!何社も回る手間なくお部屋探しが可能です。現地待ち合わせも可能!
提供:ピタットハウス岡本店(株)ライブデザイン(SUUMO経由)

詳細情報 パークビュー王子駅前
物件紹介
パークビュー王子駅前は阪急神戸線王子公園駅から徒歩1分にあり、駅近で通勤通学に便利なマンションです。
このお部屋は2階以上に位置しているので、通行人や周囲の住人からの視線が気になりにくく、防犯面でも安心。建物のエントランスはオートロックがついており、インターホンにはTVモニタもついているため、相手の顔を確認してから来客対応することができます。
人気の南向きのお部屋。また、フローリングなのでお掃除もラクラク。キッチンはシステムキッチン仕様になっていますので、お料理好きの方にもぴったり。バス・トイレは別なので、のんびりお風呂タイムも楽しめるでしょう。また、雨の日でも浴室乾燥機を使えば、お洗濯も問題ありません。
通信設備面では、インターネット接続が可能です。また、BSアンテナ・CSアンテナがありCATVにも対応しているので、おうち時間も充実するでしょう(別途工事、契約料が必要な場合あり)。
建物にはエレベーターがついているので、重い荷物があっても安心。
このお部屋は2階以上に位置しているので、通行人や周囲の住人からの視線が気になりにくく、防犯面でも安心。建物のエントランスはオートロックがついており、インターホンにはTVモニタもついているため、相手の顔を確認してから来客対応することができます。
人気の南向きのお部屋。また、フローリングなのでお掃除もラクラク。キッチンはシステムキッチン仕様になっていますので、お料理好きの方にもぴったり。バス・トイレは別なので、のんびりお風呂タイムも楽しめるでしょう。また、雨の日でも浴室乾燥機を使えば、お洗濯も問題ありません。
通信設備面では、インターネット接続が可能です。また、BSアンテナ・CSアンテナがありCATVにも対応しているので、おうち時間も充実するでしょう(別途工事、契約料が必要な場合あり)。
建物にはエレベーターがついているので、重い荷物があっても安心。
お金・契約の情報
※「-」と表示されているものは、実際は料金が発生するものもございます。詳細はお問い合わせください。
| 家賃 | 7.1万円 | 管理費・共益費 | 6,000円 |
|---|---|---|---|
| 敷金 | なし | 礼金 | 7.1万円 |
| 入居決定でお祝い金最大100,000円 | |||
| 保証金 | - | 償却・敷引 | - |
| 住宅保険料 | - | 更新料 | - |
| 保証会社利用 | 利用可 | 保証会社名 | - |
| 保証会社費用 | - | 保証会社備考 | 保証会社利用可 貸主指定 |
| 契約形態 | - | 契約期間 | - |
| 入居・引渡期間 | 相談 | 現況 | - |
| 契約備考 | 1K 単身者可 普通借家2年 バストイレ別、バルコニー、エアコン、クロゼット、フローリング、シャワー付洗面台、TVインターホン、浴室乾燥機、オートロック、室内洗濯置、陽当り良好、シューズボックス、システムキッチン、温水洗浄便座、脱衣所、エレベーター、洗面所独立、洗面化粧台、2口コンロ、駐輪場、CATV、光ファイバー、閑静な住宅地、BS・CS、敷金不要、防犯カメラ、IHクッキングヒーター、CATVインターネット、バイク置場、2沿線利用可、ディンプルキー、駅まで平坦、24時間換気システム、平坦地、3駅以上利用可、駅前、駅徒歩5分以内、東南向き、縦型照明付洗面化粧台、高速ネット対応、礼金1ヶ月、保証会社利用可、IT重説対応物件、初期費用カード決済可、通風良好 | ||
部屋の情報
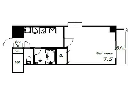
| 間取り | 1K | 専有面積 | 24.58m2 |
|---|---|---|---|
| 所在階 / 向き | 5階 / 南東 | バルコニー面積 | - |
| 水道 / ガス | - | ||
| 設備 | バス・トイレ別、2階以上、オートロック、テレビドアホン、浴室乾燥機、インターネット対応、システムキッチン、エアコン、エレベーター、温水洗浄便座、南向き、バルコニー、フローリング、洗髪洗面化粧台、2口コンロ、コンロ:IH、CATV、CSアンテナ、BSアンテナ、洗濯機:室内 | ||
| 当社物件ID | 38087883 | ||
建物の情報
| 建物名 | パークビュー王子駅前 | ||
|---|---|---|---|
| 所在地 | 兵庫県神戸市灘区王子町 | ||
| 交通 | 阪急神戸線 王子公園駅 徒歩1分 JR東海道本線 灘駅 徒歩8分 JR東海道本線 摩耶駅 徒歩8分 | ||
| 階数 | 8階建 | 総戸数 | 17戸 |
| 築年月 | 2017年03月 / 築9年 | エレベーター | あり |
| 駐車場 | 近隣 100m19000円 | バイク置き場 | あり |
| 駐輪場 | あり | 管理人/管理会社 | - |
| 周辺環境 | その他 ローソン HA 阪急王子公園店(コンビニ)まで59m その他 セブンイレブン 神戸水道筋6丁目店(コンビニ)まで99m その他 アズナス王子公園店(コンビニ)まで107m その他 灘駅前郵便局(郵便局)まで261m その他 中井病院(病院)まで286m その他 ライフォート(ドラッグストア)まで302m | ||
| 建物種別 | マンション | 建物構造 | RC(鉄筋コンクリート) |
この部屋の取扱い不動産会社
| 会社名 | ピタットハウス岡本店(株)ライブデザイン(SUUMO経由) | ||
|---|---|---|---|
| 所在地 | 兵庫県神戸市東灘区岡本1-11-26 1F | 交通 | - |
| 営業時間 | 09:00~19:00 | 定休日 | 毎週水曜日 |
| 免許番号 | 国土交通大臣10464 | 取引態様 | 仲介 |
| 不動産会社管理番号 | 100491495600 | 当社管理番号 | 89 |
| 所属団体 | (公社)全日本不動産協会兵庫県本部会員 | ||
| 公正取引協議会 | (公社)近畿地区不動産公正取引協議会加盟 | ||
| 取扱い物件情報 | 物件詳細へ | ||
※各種情報と現状に差異がある場合は、現状優先となります。問い合わせをすることで、より詳しい条件、情報を確認する事ができます。
提供:ピタットハウス岡本店(株)ライブデザイン(SUUMO経由)
この物件が気になったら掲載期限まであと12日
パークビュー王子駅前に条件(家賃・エリア)が近い物件一覧
| 写真 | 家賃 管理費等 | 敷金 礼金 | 間取り 専有面積 | 築年数 | 最寄り駅 所在地 | キープ | 詳細 |
|---|---|---|---|---|---|---|---|
マンション ガーデンハウス・K(1K/2階) | |||||||
![]() | 5.85万円 3,500円 | なし 8万円 | 1K 30.96m2 | 築18年 | JR山陽本線 西明石駅 徒歩14分 山陽電鉄本線 林崎松江海岸駅 徒歩15分 山陽電鉄本線 西新町駅 徒歩19分 兵庫県明石市西明石町 | 詳細を見る | |
アパート ペルル5(1LDK/1階) | |||||||
![]() | 7.6万円 4,500円 | 7.6万円 なし | 1LDK 42.5m2 | 築1年 | 山陽電気鉄道本線 藤江駅 徒歩5分 山陽本線 西明石駅 徒歩20分 山陽電気鉄道本線 中八木駅 徒歩20分 兵庫県明石市藤江 | 詳細を見る | |
アパート MSシーサイドプラザⅡ(3DK/2階) | |||||||
![]() | 5.8万円 なし | 2万円 なし | 3DK 56m2 | 築32年 | 山陽電気鉄道本線 東二見駅 徒歩9分 山陽電気鉄道本線 西二見駅 徒歩19分 山陽本線 魚住駅 徒歩31分 兵庫県明石市二見町東二見 | 詳細を見る | |
アパート ガーデンハウス・KⅤ(1K/1階) | |||||||
![]() | 7.4万円 3,500円 | なし 7.4万円 | 1K 33.2m2 | 新築 | 東海道・山陽新幹線 西明石駅 徒歩8分 山陽本線 西明石駅 徒歩8分 山陽電気鉄道本線 藤江駅 徒歩16分 兵庫県明石市西明石西町2丁目 | 詳細を見る | |
アパート ハーベストスクエア壱番館(1K/1階) | |||||||
![]() | 4.95万円 3,500円 | なし 4.95万円 | 1K 32.9m2 | 築20年 | JR山陽本線 大久保駅(兵庫) 徒歩29分 兵庫県明石市大久保町大窪 | 詳細を見る | |
アパート ラフィーネ緑が丘(ワンルーム/1階) | |||||||
![]() | 4.6万円 4,000円 | なし なし | ワンルーム 22.4m2 | 築19年 | 神戸電鉄粟生線 緑が丘駅(兵庫) 徒歩8分 神戸電鉄粟生線 広野ゴルフ場前駅 徒歩17分 神戸電鉄粟生線 押部谷駅 徒歩23分 兵庫県三木市緑が丘町東1 | 詳細を見る | |
アパート ドゥー・ビエント(1K/1階) | |||||||
![]() | 5万円 3,000円 | なし なし | 1K 33.18m2 | 築21年 | 山陽電気鉄道本線 西江井ケ島駅 徒歩11分 山陽電気鉄道本線 江井ケ島駅 徒歩14分 山陽本線 魚住駅 徒歩30分 兵庫県明石市大久保町西島 | 詳細を見る | |
アパート ブリシャールオーラトレス(2DK/1階) | |||||||
![]() | 5.9万円 4,200円 | なし 5.9万円 | 2DK 63.57m2 | 築18年 | 山陽電気鉄道本線 江井ケ島駅 徒歩5分 山陽電気鉄道本線 西江井ケ島駅 徒歩18分 山陽電気鉄道本線 中八木駅 徒歩20分 兵庫県明石市大久保町江井島 | 詳細を見る | |









