賃貸マンション
白金台ホームズの賃貸物件情報(2SLDK/6階)
| 家賃 | 管理費等 | 敷金 | 礼金 | 間取り | 専有面積 |
|---|---|---|---|---|---|
| 75万円 | なし | 150万円 | 75万円 | 2SLDK | 145m2 |
入居決定でお祝い金最大100,000円
- 保証金
- -
- 償却・敷引
- -
- 築年数
- 築48年
- 所在階
- 6階
- 向き
- 南西
Point
まずはお問い合わせ!
不動産会社は街のプロ、あなたに合った物件がきっと見つかります。
提供:ウルクル(株)(SUUMO経由)

詳細情報 白金台ホームズ
物件紹介
白金台ホームズは東京メトロ南北線白金台駅から徒歩8分にあり、駅近で通勤通学に便利なマンションです。
このお部屋は2階以上に位置しているので通行人や周囲の住人からの視線が気になりにくく、建物のエントランスはオートロックがついているので防犯性が高くなっています。
人気の南向きのお部屋。角部屋でもあるため、周囲の居住者の生活音も気になりにくい場所です。室内にはウォークインクローゼットがありますので、たくさんの荷物も効率的に収納ができます。キッチンはシステムキッチン仕様になっていますので、お料理好きの方にもぴったり。バス・トイレは別なので、のんびりお風呂タイムも楽しめるでしょう。また、雨の日でも浴室乾燥機を使えば、お洗濯も問題ありません。
建物にはエレベーターがついているので、重い荷物があっても安心。また、ペット飼育の相談ができますので、あなたの大切な家族の一員も快適に暮らせるか、ぜひ確認してみてください。
このお部屋は2階以上に位置しているので通行人や周囲の住人からの視線が気になりにくく、建物のエントランスはオートロックがついているので防犯性が高くなっています。
人気の南向きのお部屋。角部屋でもあるため、周囲の居住者の生活音も気になりにくい場所です。室内にはウォークインクローゼットがありますので、たくさんの荷物も効率的に収納ができます。キッチンはシステムキッチン仕様になっていますので、お料理好きの方にもぴったり。バス・トイレは別なので、のんびりお風呂タイムも楽しめるでしょう。また、雨の日でも浴室乾燥機を使えば、お洗濯も問題ありません。
建物にはエレベーターがついているので、重い荷物があっても安心。また、ペット飼育の相談ができますので、あなたの大切な家族の一員も快適に暮らせるか、ぜひ確認してみてください。
お金・契約の情報
※「-」と表示されているものは、実際は料金が発生するものもございます。詳細はお問い合わせください。
| 家賃 | 75万円 | 管理費・共益費 | なし |
|---|---|---|---|
| 敷金 | 150万円 | 礼金 | 75万円 |
| 入居決定でお祝い金最大100,000円 | |||
| 保証金 | - | 償却・敷引 | - |
| 住宅保険料 | - | 更新料 | - |
| 保証会社利用 | 必須 | 保証会社名 | - |
| 保証会社費用 | - | 保証会社備考 | 保証会社利用必 初回保証料:月額総賃料の50%~100% 月次保証料:月額総賃料等の1%+決済手数料550円 |
| 契約形態 | 定期借家 | 契約期間 | 3年 |
| 入居・引渡期間 | 即時 | 現況 | - |
| 入居可能条件 | ペット相談 | ||
| 契約備考 | 合計1.65万円(内訳:くらしーど24(24時間サポート)1.65万円) 2SLDK ペット相談 定期借家3年 損保【要】 バストイレ別、浴室乾燥機、オートロック、システムキッチン、追焚機能浴室、角住戸、温水洗浄便座、エレベーター、即入居可、閑静な住宅地、ペット相談、オートバス、グリル付、ウォークインクロゼット、キッチンに窓、敷金2ヶ月、食器洗乾燥機、緑豊かな住宅地、眺望良好、ルーフバルコニー、LDK20畳以上、TV付浴室、オーブンレンジ、納戸、駅徒歩10分以内、専有面積30坪以上、南西向き、和室、洗面2ボウル、礼金1ヶ月、通風良好 敷金積み増し【ペット飼育の場合敷金3ヶ月(総額)】 | ||
部屋の情報
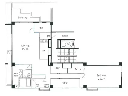
| 間取り | 2SLDK | 専有面積 | 145m2 |
|---|---|---|---|
| 所在階 / 向き | 6階 / 南西 | バルコニー面積 | - |
| 水道 / ガス | - | ||
| 設備 | バス・トイレ別、2階以上、オートロック、浴室乾燥機、ウォークインクローゼット、追い焚き、システムキッチン、エレベーター、温水洗浄便座、南向き、角部屋、バルコニー | ||
| 当社物件ID | 159038316 | ||
建物の情報
| 建物名 | 白金台ホームズ | ||
|---|---|---|---|
| 所在地 | 東京都港区白金台 | ||
| 交通 | 東京メトロ南北線 白金台駅 徒歩8分 JR山手線 目黒駅 徒歩15分 東京メトロ日比谷線 広尾駅 徒歩17分 | ||
| 階数 | 地下1地上7階建 | 総戸数 | 18戸 |
| 築年月 | 1978年11月 / 築48年 | エレベーター | あり |
| 駐車場 | 空有 28000円 | バイク置き場 | - |
| 駐輪場 | - | 管理人/管理会社 | - |
| 建物種別 | マンション | 建物構造 | RC(鉄筋コンクリート) |
この部屋の取扱い不動産会社
| 会社名 | ウルクル(株)(SUUMO経由) | ||
|---|---|---|---|
| 所在地 | 東京都渋谷区渋谷2-10-10 クオーツタワー8階 | 交通 | - |
| 営業時間 | 10:00~18:30 | 定休日 | 水曜日 |
| 免許番号 | 東京都知事95323 | 取引態様 | 仲介 |
| 不動産会社管理番号 | 100444328921 | 当社管理番号 | 89 |
| 所属団体 | (公社)東京都宅地建物取引業協会会員 | ||
| 公正取引協議会 | (公社)首都圏不動産公正取引協議会加盟 | ||
| 取扱い物件情報 | 物件詳細へ | ||
※各種情報と現状に差異がある場合は、現状優先となります。問い合わせをすることで、より詳しい条件、情報を確認する事ができます。
提供:ウルクル(株)(SUUMO経由)
この物件が気になったら掲載期限まであと10日
白金台ホームズに条件(家賃・エリア)が近い物件一覧
| 写真 | 家賃 管理費等 | 敷金 礼金 | 間取り 専有面積 | 築年数 | 最寄り駅 所在地 | キープ | 詳細 |
|---|---|---|---|---|---|---|---|
マンション JPノイエ恵比寿西(1LDK/5階) | |||||||
![]() | 47.2万円 なし | 47.2万円 47.2万円 | 1LDK 67.7m2 | 築7年 | 東急東横線 代官山駅 徒歩3分 東京メトロ日比谷線 中目黒駅 徒歩8分 JR山手線 恵比寿駅 徒歩9分 東京都渋谷区恵比寿西 | 詳細を見る | |
マンション 麻布台ヒルズレジデンスB(1SLDK/7階) | |||||||
![]() | 77万円 なし | 154万円 77万円 | 1SLDK 53.7m2 | 築1年 | 東京メトロ南北線 六本木一丁目駅 徒歩1分 東京メトロ日比谷線 神谷町駅 徒歩5分 都営大江戸線 六本木駅 徒歩12分 東京都港区麻布台 | 詳細を見る | |
マンション ザ・パークハウス西新宿タワー60(3LDK/36階) | |||||||
![]() | 47万円 なし | 47万円 47万円 | 3LDK 72.95m2 | 築9年 | 都営大江戸線 西新宿五丁目駅 徒歩7分 都営大江戸線 都庁前駅 徒歩8分 東京メトロ丸ノ内線 西新宿駅 徒歩9分 東京都新宿区西新宿 | 詳細を見る | |
マンション 六本木ヒルズレジデンスB(1LDK/25階) | |||||||
![]() | 56万円 なし | 112万円 56万円 | 1LDK 64.56m2 | 築23年 | 東京メトロ日比谷線 六本木駅 徒歩5分 東京メトロ南北線 麻布十番駅 徒歩6分 東京都港区六本木 | 詳細を見る | |
マンション KS GARDEN(2LDK/1階) | |||||||
![]() | 60.5万円 なし | 181.5万円 60.5万円 | 2LDK 97.89m2 | 築19年 | 東京メトロ千代田線 表参道駅 徒歩8分 東京メトロ銀座線 外苑前駅 徒歩10分 東京メトロ副都心線 明治神宮前駅 徒歩11分 東京都渋谷区神宮前 | 詳細を見る | |
マンション ロワヴェール表参道(2LDK/4階) | |||||||
![]() | 59万円 なし | 59万円 59万円 | 2LDK 88.67m2 | 築29年 | 東京メトロ千代田線 表参道駅 徒歩8分 東京メトロ半蔵門線 表参道駅 徒歩8分 東京メトロ副都心線 明治神宮前駅 徒歩9分 東京都渋谷区神宮前 | 詳細を見る | |
マンション 白金ザ・スカイ イースト(2LDK/22階) | |||||||
![]() | 80万円 なし | 80万円 なし | 2LDK 81.25m2 | 築4年 | 東京メトロ南北線 白金高輪駅 徒歩3分 都営浅草線 泉岳寺駅 徒歩14分 JR山手線 田町駅(東京) 徒歩19分 東京都港区白金 | 詳細を見る | |
マンション TIMELESS麻布十番(3LDK/6階) | |||||||
![]() | 48万円 2万円 | 48万円 48万円 | 3LDK 72.82m2 | 築50年 | 東京メトロ南北線 麻布十番駅 徒歩1分 都営大江戸線 赤羽橋駅 徒歩11分 東京メトロ日比谷線 六本木駅 徒歩12分 東京都港区麻布十番 | 詳細を見る | |









