賃貸マンション
阪急電鉄京都線 大宮駅(京都) 徒歩7分 4階建 築26年の賃貸物件情報(3LDK/3階)
| 家賃 | 管理費等 | 敷金 | 礼金 | 間取り | 専有面積 |
|---|---|---|---|---|---|
| 11万円 | 1.2万円 | 11万円 | 11万円 | 3LDK | 64.36m2 |
入居決定でお祝い金最大100,000円
Point
四条大宮のとくゆうちん とくゆうちん。二口コンロ。
提供:株式会社 京都ライフ 烏丸五条店(賃貸スモッカ経由)

詳細情報 阪急電鉄京都線 大宮駅(京都) 徒歩7分 4階建 築26年
物件紹介
阪急電鉄京都線大宮駅から徒歩7分にあり、駅近で通勤通学に便利なマンションです。
このお部屋は2階以上に位置しているので、通行人や周囲の住人からの視線が気になりにくく、防犯面でも安心です。
人気の南向きのお部屋。バス・トイレ別の仕様で、のんびりお風呂タイムも楽しめます。
通信設備面では、インターネット接続が可能です。また、CATVにも対応しているので、おうち時間も充実するでしょう(別途工事、契約料が必要な場合あり)。
建物にはエレベーターがついているので、重い荷物があっても安心。
このお部屋は2階以上に位置しているので、通行人や周囲の住人からの視線が気になりにくく、防犯面でも安心です。
人気の南向きのお部屋。バス・トイレ別の仕様で、のんびりお風呂タイムも楽しめます。
通信設備面では、インターネット接続が可能です。また、CATVにも対応しているので、おうち時間も充実するでしょう(別途工事、契約料が必要な場合あり)。
建物にはエレベーターがついているので、重い荷物があっても安心。
お金・契約の情報
※「-」と表示されているものは、実際は料金が発生するものもございます。詳細はお問い合わせください。
| 家賃 | 11万円 | 管理費・共益費 | 1.2万円 |
|---|---|---|---|
| 敷金 | 11万円 | 礼金 | 11万円 |
| 入居決定でお祝い金最大100,000円 | |||
| 保証金 | - | 償却・敷引 | - |
| 住宅保険料 | 住宅保険料あり | 更新料 | - |
| 契約形態 | - | 契約期間 | 2年 |
| 入居・引渡期間 | 2026年02月上旬 | 現況 | 賃貸中 |
| 契約備考 | 四条大宮のとくゆうちん 所得に応じて京都市から家賃補助が出ますので、 ご家族の方には嬉しい限りですね。 三条商店街や、リサーチパークも近いので、何をするにも便利ですよ。ツタヤやスターバックスも近いですよ。 阪急、JRも使えて通勤、通学も便利ですね。 更新料:30,000円 保証会社:利用必須 初回:月額賃料等の55%、更新時:1万円/1年 | ||
部屋の情報
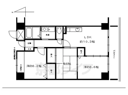
| 間取り | 3LDK | 専有面積 | 64.36m2 |
|---|---|---|---|
| 間取り詳細 | 洋室(6.6帖)、洋室(6.2帖)、和室(6帖)、LDK(10.3帖) | ||
| 所在階 / 向き | 3階 / 南 | バルコニー面積 | - |
| 水道 / ガス | ガス【都市】 | ||
| 設備 | バス・トイレ別、2階以上、インターネット対応、エレベーター、南向き、バルコニー、CATV、洗濯機:室内 | ||
| 当社物件ID | 160186783 | ||
建物の情報
| 建物名 | 阪急電鉄京都線 大宮駅(京都) 徒歩7分 4階建 築26年 | ||
|---|---|---|---|
| 所在地 | 京都府京都市中京区壬生賀陽御所町 | ||
| 交通 | 阪急電鉄京都線 大宮駅(京都) 徒歩7分 山陰本線 丹波口駅 徒歩12分 | ||
| 階数 | 4階建 | 総戸数 | - |
| 築年月 | 2000年12月 / 築26年 | エレベーター | あり |
| 駐車場 | - | バイク置き場 | - |
| 駐輪場 | あり | 管理人/管理会社 | - |
| 建物種別 | マンション | 建物構造 | RC(鉄筋コンクリート) |
この部屋の取扱い不動産会社
| 会社名 | 株式会社 京都ライフ 烏丸五条店(賃貸スモッカ経由) | ||
|---|---|---|---|
| 所在地 | 京都市下京区烏丸通五条下ル大坂町377 Gloire烏丸五条1階 | 交通 | - |
| 営業時間 | - | 定休日 | - |
| 免許番号 | 京都府知事(11)第6353号 | 取引態様 | 仲介 |
| 不動産会社管理番号 | kyotolife_09244-302-23 | 当社管理番号 | 463 |
| 所属団体 | 京都府宅地建物取引業協会\n公益社団法人近畿地区不動産公正取引協議会 | ||
| 公正取引協議会 | 全国宅地建物取引業保証協会 | ||
| 取扱い物件情報 | 物件詳細へ | ||
※各種情報と現状に差異がある場合は、現状優先となります。問い合わせをすることで、より詳しい条件、情報を確認する事ができます。
提供:株式会社 京都ライフ 烏丸五条店(賃貸スモッカ経由)
この物件が気になったら掲載期限まであと5日
阪急電鉄京都線 大宮駅(京都) 徒歩7分 4階建 築26年に条件(家賃・エリア)が近い物件一覧
| 写真 | 家賃 管理費等 | 敷金 礼金 | 間取り 専有面積 | 築年数 | 最寄り駅 所在地 | キープ | 詳細 |
|---|---|---|---|---|---|---|---|
マンション 山陰本線 丹波口駅 徒歩5分 新築(1LDK/6階) | |||||||
![]() | 10万円 8,000円 | なし 10万円 | 1LDK 31.72m2 | 新築 | 山陰本線 丹波口駅 徒歩5分 東海道本線 京都駅 徒歩27分 京都府京都市下京区朱雀分木町 | 詳細を見る | |
アパート 阪急電鉄京都線 西向日駅 徒歩5分 築22年(2LDK/1階) | |||||||
![]() | 7.9万円 5,000円 | なし 7.9万円 | 2LDK 49.84m2 | 築22年 | 阪急電鉄京都線 西向日駅 徒歩5分 東海道本線 長岡京駅 徒歩26分 京都府向日市上植野町浄徳 | 詳細を見る | |
アパート 近鉄京都線 小倉駅(京都) 徒歩9分 築10年(1LDK/2階) | |||||||
![]() | 9万円 8,000円 | なし 20万円 | 1LDK 44.03m2 | 築10年 | 近鉄京都線 小倉駅(京都) 徒歩9分 奈良線 JR小倉駅 徒歩16分 京都府宇治市小倉町 | 詳細を見る | |
マンション 阪急電鉄京都線 西山天王山駅 徒歩4分 築59年(2LDK/1階) | |||||||
![]() | 9万円 なし | 10万円 10万円 | 2LDK 54.52m2 | 築59年 | 阪急電鉄京都線 西山天王山駅 徒歩4分 東海道本線 長岡京駅 徒歩29分 京都府乙訓郡大山崎町字円明寺殿山 | 詳細を見る | |
マンション SHAMAISON LIBRIE(1LDK/1階) | |||||||
![]() | 11.6万円 8,500円 | 3万円 25万円 | 1LDK 46.24m2 | 築3年 | 阪急電鉄京都線 西院駅(阪急) 徒歩10分 山陰本線 丹波口駅 徒歩15分 京都府京都市右京区西院西高田町 | 詳細を見る | |
マンション 京都市烏丸線 四条駅(京都市営) 徒歩4分 築12年(2LDK/8階) | |||||||
![]() | 16.7万円 1.3万円 | なし 20万円 | 2LDK 49.08m2 | 築12年 | 京都市烏丸線 四条駅(京都市営) 徒歩4分 阪急電鉄京都線 烏丸駅 徒歩4分 京都府京都市中京区一蓮社町 | 詳細を見る | |
マンション グランドパルティール・Ⅲ(1DK/3階) | |||||||
![]() | 8.2万円 9,000円 | 8万円 15万円 | 1DK 27.31m2 | 築22年 | 京都市烏丸線 丸太町駅(京都市営) 徒歩7分 京都市烏丸線 烏丸御池駅 徒歩10分 京都府京都市中京区俵屋町 | 詳細を見る | |








