賃貸アパート
ヴィクトワールA棟の賃貸物件情報(3LDK/1階)
| 家賃 | 管理費等 | 敷金 | 礼金 | 間取り | 専有面積 |
|---|---|---|---|---|---|
| 10.3万円 | 3,000円 | 10.3万円 | 10.3万円 | 3LDK | 74.07m2 |
入居決定でお祝い金最大100,000円
- 保証金
- -
- 償却・敷引
- -
- 築年数
- 築19年
- 所在階
- 1階
- 向き
- 南
- 交通
- 西武池袋線 ひばりケ丘駅(東京) バス乗車時間:9分 最寄りバス停で下車 徒歩3分
西武新宿線 花小金井駅 バス乗車時間:6分 最寄りバス停で下車 徒歩10分
西武池袋線 東久留米駅 バス乗車時間:10分 最寄りバス停で下車 徒歩10分
- 所在地
- 東京都東久留米市南町
ヴィクトワールA棟
[地図を表示]
Point
まずはお問い合わせ!
不動産会社は街のプロ、あなたに合った物件がきっと見つかります。
提供:シャーメゾンショップ (株)ドリームハウジング(SUUMO経由)

詳細情報 ヴィクトワールA棟
物件紹介
このお部屋のインターホンにはTVモニタがついているため、相手の顔を確認してから来客対応することができます。
人気の南向きのお部屋。また、フローリングなのでお掃除もラクラク。キッチンはシステムキッチン仕様になっていますので、お料理好きの方にもぴったり。バス・トイレは別なので、のんびりお風呂タイムも楽しめるでしょう。また、雨の日でも浴室乾燥機を使えば、お洗濯も問題ありません。
通信設備面では、インターネット接続が可能です。また、CATVにも対応しているので、おうち時間も充実するでしょう(別途工事、契約料が必要な場合あり)。
人気の南向きのお部屋。また、フローリングなのでお掃除もラクラク。キッチンはシステムキッチン仕様になっていますので、お料理好きの方にもぴったり。バス・トイレは別なので、のんびりお風呂タイムも楽しめるでしょう。また、雨の日でも浴室乾燥機を使えば、お洗濯も問題ありません。
通信設備面では、インターネット接続が可能です。また、CATVにも対応しているので、おうち時間も充実するでしょう(別途工事、契約料が必要な場合あり)。
お金・契約の情報
※「-」と表示されているものは、実際は料金が発生するものもございます。詳細はお問い合わせください。
| 家賃 | 10.3万円 | 管理費・共益費 | 3,000円 |
|---|---|---|---|
| 敷金 | 10.3万円 | 礼金 | 10.3万円 |
| 入居決定でお祝い金最大100,000円 | |||
| 保証金 | - | 償却・敷引 | - |
| 住宅保険料 | - | 更新料 | - |
| 保証会社利用 | 必須 | 保証会社名 | - |
| 保証会社費用 | - | 保証会社備考 | 保証会社利用必 契約時:月額賃料の100% 最低保証料:20,000円 |
| 契約形態 | - | 契約期間 | - |
| 入居・引渡期間 | - | 現況 | - |
| 契約備考 | 合計12.32万円(内訳:ハイム’S CLUB会費(2年毎) 16500円税込 鍵交換代 16500円税込 ハウスクリーニング 90200円税込) 更新料 1ヶ月 3LDK 二人入居可 普通借家2年 損保【1.5万円2年】 バストイレ別、バルコニー、エアコン、ガスコンロ対応、フローリング、TVインターホン、浴室乾燥機、室内洗濯置、シューズボックス、システムキッチン、南向き、追焚機能浴室、洗面所独立、洗面化粧台、2口コンロ、CATV、光ファイバー、外壁タイル張り、閑静な住宅地、最上階、防犯カメラ、敷金1ヶ月、二人入居相談、防犯シャッター、2沿線利用可、ディンプルキー、メゾネット、ダブルロックキー、雨戸、24時間換気システム、3駅以上利用可、バス停徒歩3分以内、敷地内ごみ置き場、LDK12畳以上、都市ガス、高速ネット対応、礼金1ヶ月 入居日:'26年1月中旬 | ||
部屋の情報
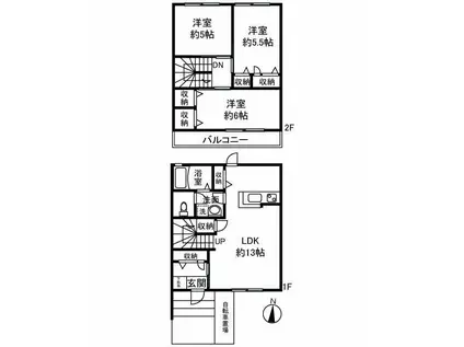
| 間取り | 3LDK | 専有面積 | 74.07m2 |
|---|---|---|---|
| 所在階 / 向き | 1階 / 南 | バルコニー面積 | - |
| 水道 / ガス | - | ||
| 設備 | バス・トイレ別、テレビドアホン、浴室乾燥機、追い焚き、インターネット対応、システムキッチン、エアコン、南向き、バルコニー、フローリング、洗髪洗面化粧台、2口コンロ、コンロ:ガス、CATV、洗濯機:室内 | ||
| 当社物件ID | 26141200 | ||
建物の情報
| 建物名 | ヴィクトワールA棟 | ||
|---|---|---|---|
| 所在地 | 東京都東久留米市南町 | ||
| 交通 | 西武池袋線 ひばりケ丘駅(東京) バス乗車時間:9分 最寄りバス停で下車 徒歩3分 西武新宿線 花小金井駅 バス乗車時間:6分 最寄りバス停で下車 徒歩10分 西武池袋線 東久留米駅 バス乗車時間:10分 最寄りバス停で下車 徒歩10分 | ||
| 階数 | 2階建 | 総戸数 | 5戸 |
| 築年月 | 2007年10月 / 築19年 | エレベーター | - |
| 駐車場 | 空有 11000円 | バイク置き場 | - |
| 駐輪場 | - | 管理人/管理会社 | - |
| 周辺環境 | その他 武蔵野うどん竹國 東久留米店(飲食店)まで145m その他 ファミリーマート 東久留米南町店(コンビニ)まで238m その他 ドラッグストアセキ 前沢店(ドラッグストア)まで391m その他 ガスト 東久留米南町店(飲食店)まで438m その他 ジョリーパスタ 東久留米店(飲食店)まで520m その他 イオンモール東久留米(ショッピングセンター)まで761m | ||
| 建物種別 | アパート | 建物構造 | 軽量鉄骨造 |
この部屋の取扱い不動産会社
| 会社名 | シャーメゾンショップ (株)ドリームハウジング(SUUMO経由) | ||
|---|---|---|---|
| 所在地 | 埼玉県所沢市東所沢1-3-1 | 交通 | - |
| 営業時間 | 9:00~18:00 | 定休日 | 水曜日 |
| 免許番号 | 埼玉県知事11847 | 取引態様 | 仲介 |
| 不動産会社管理番号 | 100478523133 | 当社管理番号 | 89 |
| 所属団体 | (公社)全日本不動産協会埼玉県本部会員 | ||
| 公正取引協議会 | (公社)首都圏不動産公正取引協議会加盟 | ||
| 取扱い物件情報 | 物件詳細へ | ||
※各種情報と現状に差異がある場合は、現状優先となります。問い合わせをすることで、より詳しい条件、情報を確認する事ができます。
提供:シャーメゾンショップ (株)ドリームハウジング(SUUMO経由)
この物件が気になったら掲載期限まであと11日
ヴィクトワールA棟に条件(家賃・エリア)が近い物件一覧
| 写真 | 家賃 管理費等 | 敷金 礼金 | 間取り 専有面積 | 築年数 | 最寄り駅 所在地 | キープ | 詳細 |
|---|---|---|---|---|---|---|---|
マンション リブリ・ACEⅡ(1K/3階) | |||||||
![]() | 6.9万円 4,000円 | なし 6.9万円 | 1K 26.49m2 | 築9年 | 西武鉄道新宿線 所沢駅 徒歩16分 武蔵野線 新秋津駅 徒歩20分 西武池袋・豊島線 秋津駅 徒歩24分 東京都東村山市秋津町3丁目 | 詳細を見る | |
アパート KEIAI RESIDENCE 東村山(1LDK/1階) | |||||||
![]() | 7.5万円 3,500円 | なし なし | 1LDK 27.53m2 | 築1年 | 西武新宿線 東村山駅 徒歩10分 西武新宿線 久米川駅 徒歩21分 西武多摩湖線 八坂駅(東京) 徒歩30分 東京都東村山市久米川町 | 詳細を見る | |
マンション サングリーンハイツ(3DK/1階) | |||||||
![]() | 8.9万円 5,000円 | 8.9万円 なし | 3DK 56.7m2 | 築42年 | 西武鉄道新宿線 東村山駅 徒歩5分 西武鉄道新宿線 久米川駅 徒歩16分 西武鉄道多摩湖線 八坂駅(東京) 徒歩23分 東京都東村山市本町2丁目 | 詳細を見る | |
アパート アジュール清瀬(1K/1階) | |||||||
![]() | 6.8万円 5,000円 | なし なし | 1K 20.05m2 | 築1年 | 西武池袋・豊島線 清瀬駅 徒歩9分 西武池袋・豊島線 東久留米駅 徒歩30分 西武池袋・豊島線 秋津駅 徒歩34分 東京都清瀬市松山3丁目 | 詳細を見る | |
アパート フィオーレ(1LDK/2階) | |||||||
![]() | 12.15万円 4,100円 | なし 12.15万円 | 1LDK 48.92m2 | 新築 | 西武鉄道多摩湖線 八坂駅(東京) 徒歩6分 西武鉄道新宿線 久米川駅 徒歩12分 西武鉄道拝島線 小川駅(東京) 徒歩16分 東京都東村山市美住町1丁目 | 詳細を見る | |
アパート コリーヌ(1LDK/1階) | |||||||
![]() | 8.95万円 3,500円 | なし 8.95万円 | 1LDK 42.49m2 | 築18年 | 西武池袋・豊島線 ひばりケ丘駅(東京) 徒歩12分 西武池袋・豊島線 東久留米駅 徒歩13分 西武池袋・豊島線 清瀬駅 徒歩41分 東京都東久留米市浅間町2丁目 | 詳細を見る | |
マンション サニーハイツ村野(3DK/1階) | |||||||
![]() | 9万円 6,000円 | なし 10万円 | 3DK 56.1m2 | 築32年 | 西武鉄道新宿線 小平駅 徒歩18分 西武鉄道新宿線 久米川駅 徒歩19分 西武鉄道拝島線 萩山駅 徒歩23分 東京都東村山市恩多町2丁目 | 詳細を見る | |
アパート ルピナスⅠ(1K/1階) | |||||||
![]() | 7.05万円 3,500円 | なし 7.05万円 | 1K 25.08m2 | 築19年 | 西武池袋・豊島線 ひばりケ丘駅(東京) 徒歩5分 東京都東久留米市浅間町3丁目 | 詳細を見る | |









