賃貸マンション
奈良線 長池駅 徒歩5分 3階建 築35年の賃貸物件情報(2DK/3階)
| 家賃 | 管理費等 | 敷金 | 礼金 | 間取り | 専有面積 |
|---|---|---|---|---|---|
| 4.9万円 | 6,000円 | なし | なし | 2DK | 40.08m2 |
入居決定でお祝い金最大100,000円
Point
JR長池迄400mです。 JR長池駅まで徒歩5分の2DKマンションです。礼金ナシ。
提供:株式会社 京都ライフ 京田辺店(賃貸スモッカ経由)

詳細情報 奈良線 長池駅 徒歩5分 3階建 築35年
物件紹介
奈良線長池駅から徒歩5分にあり、駅近で通勤通学に便利なマンションです。
このお部屋は2階以上に位置しているので、通行人や周囲の住人からの視線が気になりにくく、防犯面でも安心です。
フローリングのお部屋なのでお掃除もラクラク。バス・トイレ別の仕様で、のんびりお風呂タイムも楽しめます。
このお部屋は2階以上に位置しているので、通行人や周囲の住人からの視線が気になりにくく、防犯面でも安心です。
フローリングのお部屋なのでお掃除もラクラク。バス・トイレ別の仕様で、のんびりお風呂タイムも楽しめます。
お金・契約の情報
※「-」と表示されているものは、実際は料金が発生するものもございます。詳細はお問い合わせください。
| 家賃 | 4.9万円 | 管理費・共益費 | 6,000円 |
|---|---|---|---|
| 敷金 | なし | 礼金 | なし |
| 入居決定でお祝い金最大100,000円 | |||
| 保証金 | 5.0万円 | 償却・敷引 | - |
| 住宅保険料 | 住宅保険料あり | 更新料 | - |
| 契約形態 | - | 契約期間 | 2年 |
| 入居・引渡期間 | 即時 | 現況 | 空室 |
| 契約備考 | LIFE SUPPORT:16,500円 害虫駆除費:22,000円 更新料:無し 保証会社:利用必須 初回:月額賃料等の50%、更新時:1.3万円/1年 その他設備/条件:最上階の物件、即入居可 | ||
部屋の情報
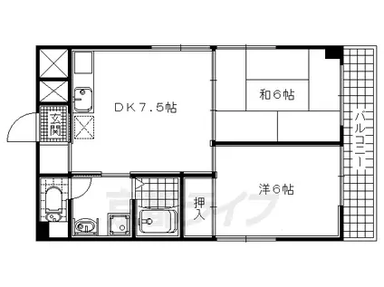
| 間取り | 2DK | 専有面積 | 40.08m2 |
|---|---|---|---|
| 間取り詳細 | 和室(6帖)、洋室(6帖)、DK(7.5帖) | ||
| 所在階 / 向き | 3階 / 北 | バルコニー面積 | - |
| 水道 / ガス | ガス【都市】 | ||
| 設備 | バス・トイレ別、2階以上、バルコニー、フローリング、洗濯機:室内 | ||
| 当社物件ID | 159550781 | ||
建物の情報
| 建物名 | 奈良線 長池駅 徒歩5分 3階建 築35年 | ||
|---|---|---|---|
| 所在地 | 京都府城陽市富野 | ||
| 交通 | 奈良線 長池駅 徒歩5分 奈良線 山城青谷駅 徒歩27分 | ||
| 階数 | 3階建 | 総戸数 | - |
| 築年月 | 1991年04月 / 築35年 | エレベーター | - |
| 駐車場 | - | バイク置き場 | - |
| 駐輪場 | あり | 管理人/管理会社 | - |
| 建物種別 | マンション | 建物構造 | 気泡コン |
この部屋の取扱い不動産会社
| 会社名 | 株式会社 京都ライフ 京田辺店(賃貸スモッカ経由) | ||
|---|---|---|---|
| 所在地 | 京都府京田辺市田辺中央1丁目7-11 | 交通 | - |
| 営業時間 | - | 定休日 | - |
| 免許番号 | 京都府知事(11)第6353号 | 取引態様 | 仲介 |
| 不動産会社管理番号 | kyotolife_03222-301-24 | 当社管理番号 | 463 |
| 所属団体 | 京都府宅地建物取引業協会\n公益社団法人近畿地区不動産公正取引協議会 | ||
| 公正取引協議会 | 全国宅地建物取引業保証協会 | ||
| 取扱い物件情報 | 物件詳細へ | ||
※各種情報と現状に差異がある場合は、現状優先となります。問い合わせをすることで、より詳しい条件、情報を確認する事ができます。
提供:株式会社 京都ライフ 京田辺店(賃貸スモッカ経由)
この物件が気になったら掲載期限まであと5日
奈良線 長池駅 徒歩5分 3階建 築35年に条件(家賃・エリア)が近い物件一覧
| 写真 | 家賃 管理費等 | 敷金 礼金 | 間取り 専有面積 | 築年数 | 最寄り駅 所在地 | キープ | 詳細 |
|---|---|---|---|---|---|---|---|
アパート 近鉄京都線 伊勢田駅 徒歩3分 築18年(1K/1階) | |||||||
![]() | 5.1万円 3,000円 | 5.1万円 5.1万円 | 1K 26.44m2 | 築18年 | 近鉄京都線 伊勢田駅 徒歩3分 近鉄京都線 大久保駅(京都) 徒歩16分 京都府宇治市伊勢田町 | 詳細を見る | |
アパート 近鉄京都線 伊勢田駅 徒歩10分 築39年(2DK/1階) | |||||||
![]() | 5.2万円 3,000円 | なし 5.2万円 | 2DK 40.92m2 | 築39年 | 近鉄京都線 伊勢田駅 徒歩10分 近鉄京都線 大久保駅(京都) 徒歩13分 京都府宇治市伊勢田町井尻 | 詳細を見る | |
アパート 京阪電気鉄道京阪線 橋本駅(京都) 徒歩2分 築10年(1LDK/1階) | |||||||
![]() | 7.9万円 8,000円 | なし 16万円 | 1LDK 42.49m2 | 築10年 | 京阪電気鉄道京阪線 橋本駅(京都) 徒歩2分 京阪電気鉄道京阪線 石清水八幡宮駅 徒歩19分 京都府八幡市橋本中ノ町 | 詳細を見る | |
マンション 近鉄京都線 小倉駅(京都) 徒歩10分 築35年(3LDK/3階) | |||||||
![]() | 6.5万円 6,000円 | なし なし | 3LDK 48.6m2 | 築35年 | 近鉄京都線 小倉駅(京都) 徒歩10分 近鉄京都線 大久保駅(京都) 徒歩14分 京都府宇治市伊勢田町毛語 | 詳細を見る | |
マンション 近鉄京都線 小倉駅(京都) 徒歩11分 築29年(1K/3階) | |||||||
![]() | 4万円 3,000円 | 5万円 5万円 | 1K 25.74m2 | 築29年 | 近鉄京都線 小倉駅(京都) 徒歩11分 奈良線 JR小倉駅 徒歩20分 京都府宇治市小倉町 | 詳細を見る | |
マンション 近鉄京都線 伊勢田駅 徒歩2分 築32年(1K/2階) | |||||||
![]() | 3.2万円 6,000円 | なし なし | 1K 17.47m2 | 築32年 | 近鉄京都線 伊勢田駅 徒歩2分 近鉄京都線 大久保駅(京都) 徒歩10分 京都府宇治市羽拍子町 | 詳細を見る | |
マンション 近鉄京都線 小倉駅(京都) 徒歩2分 築37年(1K/3階) | |||||||
![]() | 4.5万円 6,000円 | 4.5万円 なし | 1K 17.4m2 | 築37年 | 近鉄京都線 小倉駅(京都) 徒歩2分 奈良線 JR小倉駅 徒歩7分 京都府宇治市小倉町神楽田 | 詳細を見る | |
マンション 奈良線 長池駅 徒歩5分 築35年(1LDK/1階) | |||||||
![]() | 4.9万円 6,000円 | なし なし | 1LDK 42.11m2 | 築35年 | 奈良線 長池駅 徒歩5分 奈良線 山城青谷駅 徒歩27分 京都府城陽市富野 | 詳細を見る | |









