賃貸マンション
GRAN PASEO大森Ⅲの賃貸物件情報(1SLDK/2階)
| 家賃 | 管理費等 | 敷金 | 礼金 | 間取り | 専有面積 |
|---|---|---|---|---|---|
| 23万円 | 1.2万円 | なし | なし | 1SLDK | 42.44m2 |
入居決定でお祝い金最大100,000円
- 保証金
- -
- 償却・敷引
- -
- 築年数
- 新築(築1年)
- 所在階
- 2階
- 向き
- -
Point
セキュリティ面は、TVインターホン・オートロックなどを備え付けているので安心して暮らせます。
提供:ハウスコム西東京株式会社 大岡山店

詳細情報 GRAN PASEO大森Ⅲ
物件紹介
GRAN PASEO大森Ⅲは京浜急行電鉄本線大森海岸駅から徒歩6分にあり、駅近で通勤通学に便利なマンションです。
このお部屋は2階以上に位置しているので、通行人や周囲の住人からの視線が気になりにくく、防犯面でも安心。建物のエントランスはオートロックがついており、インターホンにはTVモニタもついているため、相手の顔を確認してから来客対応することができます。
人気の角部屋で周囲の居住者の生活音も気になりにくく、また、フローリングのお部屋なのでお掃除もラクラク。キッチンはシステムキッチン仕様になっていますので、お料理好きの方にもぴったり。バス・トイレは別なので、のんびりお風呂タイムも楽しめるでしょう。また、雨の日でも浴室乾燥機を使えば、お洗濯も問題ありません。
通信設備面では、インターネットが無料で使えるので、月々の出費を抑えられるのも魅力です(別途工事等が必要な場合あり)。
建物にはエレベーターがついているので、重い荷物があっても安心。共用部には宅配ボックスが設定されているので、不在の時にも荷物を受け取ることができます。
このお部屋は2階以上に位置しているので、通行人や周囲の住人からの視線が気になりにくく、防犯面でも安心。建物のエントランスはオートロックがついており、インターホンにはTVモニタもついているため、相手の顔を確認してから来客対応することができます。
人気の角部屋で周囲の居住者の生活音も気になりにくく、また、フローリングのお部屋なのでお掃除もラクラク。キッチンはシステムキッチン仕様になっていますので、お料理好きの方にもぴったり。バス・トイレは別なので、のんびりお風呂タイムも楽しめるでしょう。また、雨の日でも浴室乾燥機を使えば、お洗濯も問題ありません。
通信設備面では、インターネットが無料で使えるので、月々の出費を抑えられるのも魅力です(別途工事等が必要な場合あり)。
建物にはエレベーターがついているので、重い荷物があっても安心。共用部には宅配ボックスが設定されているので、不在の時にも荷物を受け取ることができます。
お金・契約の情報
※「-」と表示されているものは、実際は料金が発生するものもございます。詳細はお問い合わせください。
| 家賃 | 23万円 | 管理費・共益費 | 1.2万円 |
|---|---|---|---|
| 敷金 | なし | 礼金 | なし |
| 入居決定でお祝い金最大100,000円 | |||
| 保証金 | - | 償却・敷引 | - |
| 住宅保険料 | 1円 | 更新料 | - |
| その他費用 | エアコンクリーニング費用/3台:3.3万円 | ||
| 保証会社利用 | 必須 | 保証会社名 | エポスカード |
| 保証会社費用 | - | 保証会社備考 | 初回:月額支払総額の50% 月額:月額支払総額の1.5% |
| 契約形態 | - | 契約期間 | 2年 |
| 入居・引渡期間 | 即時 | 現況 | - |
| 入居可能条件 | 2人入居可 | ||
| 契約備考 | ・短期解約違約金 2年未満-2か月の賃料及び共益費(法人契約相談可能) 室内清掃費用:56760 その他設備/条件:室内洗濯機置き場、独立洗面台、防犯カメラ | ||
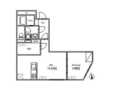
部屋の情報
| 間取り | 1SLDK | 専有面積 | 42.44m2 |
|---|---|---|---|
| 間取り詳細 | LDK(11.6帖)、洋室(5帖) | ||
| 所在階 / 向き | 2階 / - | バルコニー面積 | - |
| 水道 / ガス | 水道【公営】、ガス【都市】 | ||
| 設備 | バス・トイレ別、オートロック、テレビドアホン、宅配ボックス、浴室乾燥機、追い焚き、光ファイバー対応、システムキッチン、カウンターキッチン、エアコン、エレベーター、温水洗浄便座、角部屋、フローリング、3口コンロ、コンロ:ガス、インターネット使用料無料、シャワー、給湯 | ||
| 当社物件ID | 160067753 | ||
建物の情報
| 建物名 | GRAN PASEO大森Ⅲ | ||
|---|---|---|---|
| 所在地 | 東京都品川区南大井3丁目 | ||
| 交通 | 京浜急行電鉄本線 大森海岸駅 徒歩6分 京浜東北・根岸線 大森駅(東京) 徒歩10分 | ||
| 階数 | 5階建 | 総戸数 | - |
| 築年月 | 2025年12月 / 新築(築1年) | エレベーター | あり |
| 駐車場 | - | バイク置き場 | - |
| 駐輪場 | - | 管理人/管理会社 | - |
| 周辺環境 | 販売店 徒歩10分(777m) その他 ドラッグストア その他 公園 その他 銀行 その他 * | ||
| 建物種別 | マンション | 建物構造 | RC(鉄筋コンクリート) |
この部屋の取扱い不動産会社
| 会社名 | ハウスコム西東京株式会社 五反田店 | ||
|---|---|---|---|
| 所在地 | 東京都品川区12-12落合ビル2階 | 交通 | - |
| 営業時間 | 10:00~18:00 | 定休日 | - |
| 免許番号 | 東京都知事(1)第108225号 | 取引態様 | 仲介 |
| 不動産会社管理番号 | HC2-5293698-204-0035 | 当社管理番号 | 468 |
| 所属団体 | 、 | ||
| 取扱い物件情報 | 物件詳細へ | ||
※各種情報と現状に差異がある場合は、現状優先となります。問い合わせをすることで、より詳しい条件、情報を確認する事ができます。
提供:ハウスコム西東京株式会社 五反田店
この物件が気になったら掲載期限まであと4日
GRAN PASEO大森Ⅲに条件(家賃・エリア)が近い物件一覧
| 写真 | 家賃 管理費等 | 敷金 礼金 | 間取り 専有面積 | 築年数 | 最寄り駅 所在地 | キープ | 詳細 |
|---|---|---|---|---|---|---|---|
一戸建て 東京地下鉄有楽町線 豊洲駅 徒歩12分 築51年(3DK) | |||||||
![]() | 13.8万円 なし | 13.8万円 13.8万円 | 3DK 64.71m2 | 築51年 | 東京地下鉄有楽町線 豊洲駅 徒歩12分 京葉線 潮見駅 徒歩20分 東京地下鉄東西線 木場駅 徒歩24分 東京都江東区枝川1丁目 | 詳細を見る | |
一戸建て 東京地下鉄東西線 木場駅 徒歩7分 築10年(2LDK) | |||||||
![]() | 24万円 なし | 48万円 24万円 | 2LDK 70.43m2 | 築10年 | 東京地下鉄東西線 木場駅 徒歩7分 東京都大江戸線 門前仲町駅 徒歩17分 京葉線 越中島駅 徒歩19分 東京都江東区木場6丁目 | 詳細を見る | |
マンション オズレーベル(1K/4階) | |||||||
![]() | 14万円 1.1万円 | なし 14万円 | 1K 34.53m2 | 築15年 | 都営大江戸線 森下駅(東京) 徒歩3分 都営新宿線 菊川駅(東京) 徒歩9分 東京メトロ半蔵門線 清澄白河駅 徒歩10分 東京都江東区森下 | 詳細を見る | |
マンション RJRプレシア蒲田(1LDK/5階) | |||||||
![]() | 16.8万円 1.2万円 | 16.8万円 なし | 1LDK 32.44m2 | 新築 | JR京浜東北線 蒲田駅 徒歩10分 東急池上線 蒲田駅 徒歩11分 東急多摩川線 蒲田駅 徒歩11分 東京都大田区西蒲田 | 詳細を見る | |
タウンハウス 大田菜園長屋(2LDK) | |||||||
![]() | 15.4万円 5,000円 | 15.4万円 23.1万円 | 2LDK 52.17m2 | 築9年 | 京浜急行電鉄本線 雑色駅 徒歩8分 京浜急行電鉄本線 六郷土手駅 徒歩13分 東京都大田区東六郷3丁目 | 詳細を見る | |
マンション ブラウ大森(2LDK/6階) | |||||||
![]() | 25.3万円 2万円 | 25.3万円 なし | 2LDK 54.73m2 | 築5年 | JR京浜東北線 大森駅(東京) 徒歩6分 京急本線 大森海岸駅 徒歩13分 京急本線 平和島駅 徒歩17分 東京都大田区大森北 | 詳細を見る | |
マンション ロサルバ大森(2DK/4階) | |||||||
![]() | 16万円 7,000円 | 16万円 16万円 | 2DK 50.48m2 | 築23年 | 京浜急行電鉄本線 大森町駅 徒歩8分 京浜急行電鉄本線 梅屋敷駅(東京) 徒歩8分 東京都大田区大森西3丁目 | 詳細を見る | |








