賃貸マンション
京都市東西線 蹴上駅 徒歩20分 5階建 築38年の賃貸物件情報(2LDK/2階)
| 家賃 | 管理費等 | 敷金 | 礼金 | 間取り | 専有面積 |
|---|---|---|---|---|---|
| 8.5万円 | 8,000円 | 8.5万円 | 17万円 | 2LDK | 56.28m2 |
入居決定でお祝い金最大100,000円
Point
京情緒溢れる立地です 自然豊かなオススメエリアです
提供:株式会社 京都ライフ 北大路店(賃貸スモッカ経由)

詳細情報 京都市東西線 蹴上駅 徒歩20分 5階建 築38年
物件紹介
京都市東西線蹴上駅から徒歩20分にあるマンションです。
このお部屋は2階以上に位置しているので通行人や周囲の住人からの視線が気になりにくく、建物のエントランスはオートロックがついているので防犯性が高くなっています。
人気の南向きのお部屋。バス・トイレ別の仕様で、のんびりお風呂タイムも楽しめます。
通信設備面では、インターネット接続が可能です。また、BSアンテナがありCATVにも対応しているので、おうち時間も充実するでしょう(別途工事、契約料が必要な場合あり)。
建物にはエレベーターがついているので、重い荷物があっても安心。
このお部屋は2階以上に位置しているので通行人や周囲の住人からの視線が気になりにくく、建物のエントランスはオートロックがついているので防犯性が高くなっています。
人気の南向きのお部屋。バス・トイレ別の仕様で、のんびりお風呂タイムも楽しめます。
通信設備面では、インターネット接続が可能です。また、BSアンテナがありCATVにも対応しているので、おうち時間も充実するでしょう(別途工事、契約料が必要な場合あり)。
建物にはエレベーターがついているので、重い荷物があっても安心。
お金・契約の情報
※「-」と表示されているものは、実際は料金が発生するものもございます。詳細はお問い合わせください。
| 家賃 | 8.5万円 | 管理費・共益費 | 8,000円 |
|---|---|---|---|
| 敷金 | 8.5万円 | 礼金 | 17万円 |
| 入居決定でお祝い金最大100,000円 | |||
| 保証金 | - | 償却・敷引 | - |
| 住宅保険料 | 住宅保険料あり | 更新料 | - |
| 契約形態 | - | 契約期間 | 2年 |
| 入居・引渡期間 | 即時 | 現況 | 空室 |
| 契約備考 | 岡崎動物園、平安神宮近くの好立地です。1階にはスーパーがありお買い物便利。周辺にもコンビニや郵便局がございます。また京都市バスの錦林車庫がございますので各方面へのアクセスが便利です。 物件、東側には哲学の道や法然院などがございますのでお散歩コースにもオススメです。落ち着いた環境で新生活を始めてみませんか お問い合わせは京都ライフ出町柳店までぜひ。 更新料:1ヶ月 保証会社:利用必須 初回:月額賃料等の50%、更新時:1.3万円/1年(初回保証料 総賃料120% 更新保証料なしプランあり) その他設備/条件:即入居可 | ||
部屋の情報
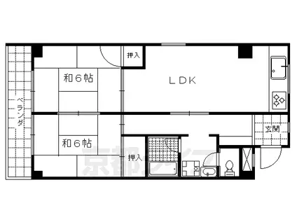
| 間取り | 2LDK | 専有面積 | 56.28m2 |
|---|---|---|---|
| 間取り詳細 | 和室(6帖)、和室(6帖)、LDK(11.2帖) | ||
| 所在階 / 向き | 2階 / 南 | バルコニー面積 | - |
| 水道 / ガス | ガス【都市】 | ||
| 設備 | バス・トイレ別、2階以上、オートロック、インターネット対応、エアコン、エレベーター、南向き、バルコニー、CATV、BSアンテナ、洗濯機:室内、タイル張り | ||
| 当社物件ID | 159556962 | ||
建物の情報
| 建物名 | 京都市東西線 蹴上駅 徒歩20分 5階建 築38年 | ||
|---|---|---|---|
| 所在地 | 京都府京都市左京区浄土寺下馬場町 | ||
| 交通 | 京都市東西線 蹴上駅 徒歩20分 京阪電気鉄道鴨東線 出町柳駅 徒歩29分 | ||
| 階数 | 5階建 | 総戸数 | - |
| 築年月 | 1988年01月 / 築38年 | エレベーター | あり |
| 駐車場 | - | バイク置き場 | - |
| 駐輪場 | あり | 管理人/管理会社 | - |
| 建物種別 | マンション | 建物構造 | RC(鉄筋コンクリート) |
この部屋の取扱い不動産会社
| 会社名 | 株式会社 京都ライフ 北大路店(賃貸スモッカ経由) | ||
|---|---|---|---|
| 所在地 | 京都市北区小山上総町11 | 交通 | - |
| 営業時間 | - | 定休日 | - |
| 免許番号 | 京都府知事(11)第6353号 | 取引態様 | 仲介 |
| 不動産会社管理番号 | kyotolife_22444-206-22 | 当社管理番号 | 463 |
| 所属団体 | 京都府宅地建物取引業協会\n公益社団法人近畿地区不動産公正取引協議会 | ||
| 公正取引協議会 | 全国宅地建物取引業保証協会 | ||
| 取扱い物件情報 | 物件詳細へ | ||
※各種情報と現状に差異がある場合は、現状優先となります。問い合わせをすることで、より詳しい条件、情報を確認する事ができます。
提供:株式会社 京都ライフ 北大路店(賃貸スモッカ経由)
この物件が気になったら掲載期限まであと5日
京都市東西線 蹴上駅 徒歩20分 5階建 築38年に条件(家賃・エリア)が近い物件一覧
| 写真 | 家賃 管理費等 | 敷金 礼金 | 間取り 専有面積 | 築年数 | 最寄り駅 所在地 | キープ | 詳細 |
|---|---|---|---|---|---|---|---|
マンション 開田マンション(2DK/3階) | |||||||
![]() | 6.8万円 2,000円 | 10万円 なし | 2DK 40.75m2 | 築45年 | 阪急京都線 長岡天神駅 徒歩8分 JR東海道本線 長岡京駅 徒歩8分 阪急京都線 西向日駅 徒歩22分 京都府長岡京市開田 | 詳細を見る | |
マンション I-PLACE東垣内(2LDK/2階) | |||||||
![]() | 9.2万円 7,000円 | なし 9.2万円 | 2LDK 55.3m2 | 築1年 | JR山陰本線 馬堀駅 徒歩5分 JR山陰本線 亀岡駅 徒歩31分 JR山陰本線 並河駅 徒歩76分 京都府亀岡市篠町馬堀東垣内 | 詳細を見る | |
アパート 阪急電鉄京都線 西山天王山駅 徒歩15分 築4年(2LDK/1階) | |||||||
![]() | 8.9万円 5,000円 | 8.9万円 8.9万円 | 2LDK 50.04m2 | 築4年 | 阪急電鉄京都線 西山天王山駅 徒歩15分 阪急電鉄京都線 大山崎駅 徒歩22分 京都府乙訓郡大山崎町字円明寺大門脇 | 詳細を見る | |
マンション 叡山電鉄 元田中駅 徒歩10分 築45年(2LDK/2階) | |||||||
![]() | 10万円 1万円 | なし なし | 2LDK 65.53m2 | 築45年 | 叡山電鉄 元田中駅 徒歩10分 京阪電気鉄道鴨東線 出町柳駅 徒歩12分 京都府京都市左京区高野西開町 | 詳細を見る | |
マンション 京阪電気鉄道京阪線 石清水八幡宮駅 徒歩29分 築32年(2LDK/2階) | |||||||
![]() | 5.9万円 4,400円 | なし なし | 2LDK 60.72m2 | 築32年 | 京阪電気鉄道京阪線 石清水八幡宮駅 徒歩29分 京阪電気鉄道京阪線 樟葉駅 徒歩35分 京都府八幡市八幡広門 | 詳細を見る | |
マンション ATTRICE一乗寺(1K/2階) | |||||||
![]() | 7.3万円 8,000円 | なし 14.6万円 | 1K 29.04m2 | 新築 | 叡山電鉄叡山本線 茶山・京都芸術大学駅 徒歩7分 叡山電鉄叡山本線 一乗寺駅 徒歩7分 叡山電鉄叡山本線 元田中駅 徒歩12分 京都府京都市左京区一乗寺地蔵本町 | 詳細を見る | |
マンション カーディナル長岡京(3LDK/2階) | |||||||
![]() | 8万円 5,500円 | なし 8万円 | 3LDK 61.56m2 | 築33年 | 阪急京都線 西向日駅 徒歩18分 阪急京都線 長岡天神駅 徒歩20分 JR東海道本線 長岡京駅 徒歩30分 京都府長岡京市今里 | 詳細を見る | |
マンション 叡山電鉄 茶山・京都芸術大学駅 徒歩20分 築24年(ワンルーム/2階) | |||||||
![]() | 5.2万円 4,000円 | 5.6万円 8万円 | ワンルーム 26.45m2 | 築24年 | 叡山電鉄 茶山・京都芸術大学駅 徒歩20分 京阪電気鉄道鴨東線 出町柳駅 徒歩33分 京都府京都市左京区北白川上池田町 | 詳細を見る | |









