賃貸アパート
パルティール Bの賃貸物件情報(2DK/1階)
| 家賃 | 管理費等 | 敷金 | 礼金 | 間取り | 専有面積 |
|---|---|---|---|---|---|
| 6万円 | なし | 12万円 | なし | 2DK | 51.4m2 |
入居決定でお祝い金最大100,000円
Point
幹線道路に近くバス停からも徒歩2分と便利な立地!お気軽にお問い合わせくださいませ(*^^*)
提供:(株)ナカノハウジング(SUUMO経由)

詳細情報 パルティール B
物件紹介
パルティール Bは遠州鉄道助信駅から徒歩8分にあり、駅近で通勤通学に便利なアパートです。
このお部屋のインターホンにはTVモニタがついているため、相手の顔を確認してから来客対応することができます。
人気の南向き・フローリングのお部屋。角部屋でもあるため、周囲の居住者の生活音も気になりにくい場所です。キッチンはシステムキッチン仕様になっていますので、お料理好きの方にもぴったり。また、バス・トイレは別で、のんびりお風呂タイムも楽しめるでしょう。
通信設備面では、インターネットが無料で使えるので、月々の出費を抑えられるのも魅力です。また、CATVにも対応しているので、おうち時間も充実するでしょう(別途工事、CATVの契約料等が必要な場合あり)。
このお部屋のインターホンにはTVモニタがついているため、相手の顔を確認してから来客対応することができます。
人気の南向き・フローリングのお部屋。角部屋でもあるため、周囲の居住者の生活音も気になりにくい場所です。キッチンはシステムキッチン仕様になっていますので、お料理好きの方にもぴったり。また、バス・トイレは別で、のんびりお風呂タイムも楽しめるでしょう。
通信設備面では、インターネットが無料で使えるので、月々の出費を抑えられるのも魅力です。また、CATVにも対応しているので、おうち時間も充実するでしょう(別途工事、CATVの契約料等が必要な場合あり)。
お金・契約の情報
※「-」と表示されているものは、実際は料金が発生するものもございます。詳細はお問い合わせください。
| 家賃 | 6万円 | 管理費・共益費 | なし |
|---|---|---|---|
| 敷金 | 12万円 | 礼金 | なし |
| 入居決定でお祝い金最大100,000円 | |||
| 保証金 | - | 償却・敷引 | - |
| 住宅保険料 | - | 更新料 | - |
| 保証会社利用 | 必須 | 保証会社名 | - |
| 保証会社費用 | - | 保証会社備考 | 保証会社利用必 要確認 |
| 契約形態 | - | 契約期間 | - |
| 入居・引渡期間 | - | 現況 | - |
| 契約備考 | ※一部別棟写真になります。現況優先 合計0.82万円(内訳:自治会入会金0.1万円/自治会費/年0.72万円) 自治会費:7200円/年 2DK 損保【要】 バストイレ別、フローリング、シャワー付洗面台、TVインターホン、室内洗濯置、陽当り良好、シューズボックス、システムキッチン、南向き、角住戸、脱衣所、洗面所独立、洗面化粧台、2口コンロ、駐輪場、押入、CATV、礼金不要、閑静な住宅地、対面式キッチン、照明付、駐車場1台無料、グリル付、保証人不要、駐車2台可、CATVインターネット、ガスレンジ付、ネット使用料不要、駐車場2台無料、緑豊かな住宅地、眺望良好、ダブルロックキー、雨戸、平坦地、一部フローリング、バス停徒歩3分以内、敷地内ごみ置き場、駐車並列2台、平面駐車場、全居室6畳以上、プロパンガス、シャッター、保証会社利用可、通風良好 入居日:'26年2月下旬 | ||
部屋の情報
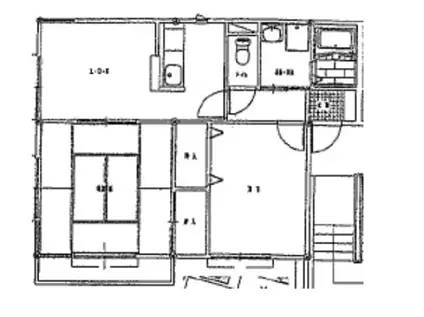
| 間取り | 2DK | 専有面積 | 51.4m2 |
|---|---|---|---|
| 所在階 / 向き | 1階 / 南 | バルコニー面積 | - |
| 水道 / ガス | - | ||
| 設備 | バス・トイレ別、テレビドアホン、インターネット対応、システムキッチン、南向き、角部屋、フローリング、洗髪洗面化粧台、2口コンロ、コンロ:ガス、CATV、インターネット使用料無料、洗濯機:室内 | ||
| 当社物件ID | 160083979 | ||
建物の情報
| 建物名 | パルティール B | ||
|---|---|---|---|
| 所在地 | 静岡県浜松市中央区曳馬 | ||
| 交通 | 遠州鉄道 助信駅 徒歩8分 JR東海道本線 浜松駅 車で12分 | ||
| 階数 | 2階建 | 総戸数 | - |
| 築年月 | 2004年02月 / 築23年 | エレベーター | - |
| 駐車場 | 空有 駐2台付 | バイク置き場 | - |
| 駐輪場 | あり | 管理人/管理会社 | - |
| 周辺環境 | その他 浜松市立曳馬小学校(小学校)まで495m その他 丸山病院(病院)まで834m その他 遠鉄ストアフードワン高林店(スーパー)まで1065m その他 ファミリーマート浜松高林店(コンビニ)まで313m その他 スギ薬局高林店(ドラッグストア)まで382m その他 浜松高林郵便局(郵便局)まで491m | ||
| 建物種別 | アパート | 建物構造 | 軽量鉄骨造 |
この部屋の取扱い不動産会社
| 会社名 | (株)ナカノハウジング(SUUMO経由) | ||
|---|---|---|---|
| 所在地 | 静岡県浜松市中央区住吉1-39-12 | 交通 | - |
| 営業時間 | 9:00~18:00 | 定休日 | 木(2月・3月は無休) |
| 免許番号 | 静岡県知事10485 | 取引態様 | 仲介 |
| 不動産会社管理番号 | 100485499823 | 当社管理番号 | 89 |
| 所属団体 | (公社)静岡県宅地建物取引業協会会員 | ||
| 公正取引協議会 | 東海不動産公正取引協議会加盟 | ||
| 取扱い物件情報 | 物件詳細へ | ||
※各種情報と現状に差異がある場合は、現状優先となります。問い合わせをすることで、より詳しい条件、情報を確認する事ができます。
提供:(株)ナカノハウジング(SUUMO経由)
この物件が気になったら掲載期限まであと10日
パルティール Bに条件(家賃・エリア)が近い物件一覧
| 写真 | 家賃 管理費等 | 敷金 礼金 | 間取り 専有面積 | 築年数 | 最寄り駅 所在地 | キープ | 詳細 |
|---|---|---|---|---|---|---|---|
マンション ユーフォルム(1K/2階) | |||||||
![]() | 3.9万円 3,000円 | なし なし | 1K 31.05m2 | 築25年 | 遠州鉄道 新浜松駅 徒歩46分 静岡県浜松市中央区法枝町 | 詳細を見る | |
マンション ホワイトコーポII(1K/2階) | |||||||
![]() | 3.7万円 なし | なし なし | 1K 22.4m2 | 築41年 | 静岡県浜松市中央区富塚町 | 詳細を見る | |
マンション ヒューゲル城北(1LDK/5階) | |||||||
![]() | 4.3万円 なし | なし なし | 1LDK 38.88m2 | 築33年 | 静岡県浜松市中央区城北3丁目 | 詳細を見る | |
マンション ダンデライオン(1LDK/3階) | |||||||
![]() | 6.7万円 3,000円 | なし なし | 1LDK 43.73m2 | 築18年 | 静岡県浜松市中央区曳馬3丁目 | 詳細を見る | |




