賃貸マンション
プランドールの賃貸物件情報(2LDK/3階)
| 家賃 | 管理費等 | 敷金 | 礼金 | 間取り | 専有面積 |
|---|---|---|---|---|---|
| 21万円 | 8,000円 | 21万円 | 10.5万円 | 2LDK | 57.95m2 |
入居決定でお祝い金最大100,000円
- 保証金
- -
- 償却・敷引
- -
- 築年数
- 築1年
- 所在階
- 3階
- 向き
- 南
Point
★新築★ペットと一緒に暮らせます★多頭飼いご相談ください。★へーベルメゾンの省エネ賃貸マンション★1フロアー1住戸で明るいお部屋です。都心へのアクセス良好!通勤・通学ラクラクです♪
提供:シャーメゾンショップ (株)くみん不動産板橋店(SUUMO経由)

詳細情報 プランドール
物件紹介
プランドールは東武東上線大山駅から徒歩13分にあるマンションです。
このお部屋は2階以上に位置しているので、通行人や周囲の住人からの視線が気になりにくく、防犯面でも安心。建物のエントランスはオートロックがついており、インターホンにはTVモニタもついているため、相手の顔を確認してから来客対応することができます。
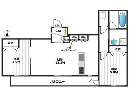
人気の南向き・フローリングのお部屋。角部屋でもあるため、周囲の居住者の生活音も気になりにくい場所です。キッチンはシステムキッチン仕様になっていますので、お料理好きの方にもぴったり。バス・トイレは別なので、のんびりお風呂タイムも楽しめるでしょう。また、雨の日でも浴室乾燥機を使えば、お洗濯も問題ありません。
通信設備面では、インターネットが無料で使えるので、月々の出費を抑えられるのも魅力です。また、BSアンテナもありますので、おうち時間も充実するでしょう(別途工事、BSの契約料等が必要な場合あり)。
共用部には宅配ボックスが設定されているので、不在の時にも荷物を受け取ることができます。また、ペット飼育の相談ができますので、あなたの大切な家族の一員も快適に暮らせるか、ぜひ確認してみてください。
このお部屋は2階以上に位置しているので、通行人や周囲の住人からの視線が気になりにくく、防犯面でも安心。建物のエントランスはオートロックがついており、インターホンにはTVモニタもついているため、相手の顔を確認してから来客対応することができます。
人気の南向き・フローリングのお部屋。角部屋でもあるため、周囲の居住者の生活音も気になりにくい場所です。キッチンはシステムキッチン仕様になっていますので、お料理好きの方にもぴったり。バス・トイレは別なので、のんびりお風呂タイムも楽しめるでしょう。また、雨の日でも浴室乾燥機を使えば、お洗濯も問題ありません。
通信設備面では、インターネットが無料で使えるので、月々の出費を抑えられるのも魅力です。また、BSアンテナもありますので、おうち時間も充実するでしょう(別途工事、BSの契約料等が必要な場合あり)。
共用部には宅配ボックスが設定されているので、不在の時にも荷物を受け取ることができます。また、ペット飼育の相談ができますので、あなたの大切な家族の一員も快適に暮らせるか、ぜひ確認してみてください。
お金・契約の情報
※「-」と表示されているものは、実際は料金が発生するものもございます。詳細はお問い合わせください。
| 家賃 | 21万円 | 管理費・共益費 | 8,000円 |
|---|---|---|---|
| 敷金 | 21万円 | 礼金 | 10.5万円 |
| 入居決定でお祝い金最大100,000円 | |||
| 保証金 | - | 償却・敷引 | - |
| 住宅保険料 | - | 更新料 | - |
| 保証会社利用 | 必須 | 保証会社名 | - |
| 保証会社費用 | - | 保証会社備考 | 保証会社利用必 総賃料の50%/初回 20 000円/2年毎 |
| 契約形態 | - | 契約期間 | - |
| 入居・引渡期間 | 即時 | 現況 | - |
| 入居可能条件 | ペット相談 | ||
| 契約備考 | 巡回管理/※退去時、清掃費用(85800円)は借主負担となります。※成約時、媒介報酬料として賃料の1.10か月分(税込)を頂戴します。 合計1.8万円(内訳:MyConcierClub1.8万円) 更新料 賃料1.00ヶ月分 2LDK 二人入居可/子供可/ペット相談/ルームシェア相談 普通借家2年 損保【1.84万円2年】 バストイレ別、バルコニー、エアコン、ガスコンロ対応、フローリング、TVインターホン、浴室乾燥機、オートロック、室内洗濯置、シューズボックス、システムキッチン、南向き、追焚機能浴室、角住戸、温水洗浄便座、洗面所独立、駐輪場、宅配ボックス、即入居可、閑静な住宅地、2面採光、最上階、3口以上コンロ、対面式キッチン、ペット相談、グリル付、全居室洋室、振分、保証人不要、全居室フローリング、2沿線利用可、ディンプルキー、ネット使用料不要、キッチンに窓、エアコン全室、ダブルロックキー、保証金不要、築2年以内、1フロア1住戸、平坦地、ルームシェア相談、南面リビング、ペット専用設備、浴室未使用、トイレ未使用、耐火構造、3方角住戸、2駅利用可、3駅以上利用可、3沿線以上利用可、制震構造、上階無し、敷地内ごみ置き場、キッチン未使用、都市ガス、南面バルコニー、天井高シューズクロゼット、BS、IT重説対応物件、LGBTフレンドリー | ||
部屋の情報
| 間取り | 2LDK | 専有面積 | 57.95m2 |
|---|---|---|---|
| 所在階 / 向き | 3階 / 南 | バルコニー面積 | - |
| 水道 / ガス | - | ||
| 設備 | バス・トイレ別、2階以上、オートロック、テレビドアホン、宅配ボックス、浴室乾燥機、追い焚き、インターネット対応、システムキッチン、エアコン、温水洗浄便座、南向き、角部屋、バルコニー、フローリング、洗髪洗面化粧台、2口コンロ、コンロ:ガス、BSアンテナ、インターネット使用料無料、洗濯機:室内 | ||
| 当社物件ID | 160445287 | ||
建物の情報
| 建物名 | プランドール | ||
|---|---|---|---|
| 所在地 | 東京都板橋区大山西町 | ||
| 交通 | 東武東上線 大山駅(東京) 徒歩13分 東武東上線 中板橋駅 徒歩17分 東京メトロ有楽町線 千川駅 徒歩18分 | ||
| 階数 | 3階建 | 総戸数 | - |
| 築年月 | 2026年02月 / 築1年 | エレベーター | - |
| 駐車場 | なし | バイク置き場 | - |
| 駐輪場 | あり | 管理人/管理会社 | - |
| 周辺環境 | その他 コモディイイダ 大山店(ハッピーロード)(スーパー)まで619m その他 セブンイレブン板橋交通公園前店(コンビニ)まで393m その他 ハッピーロード大山商店街(その他)まで849m その他 日本大学医学部附属板橋病院(病院)まで353m その他 板橋交通公園(公園)まで424m その他 板橋区立板橋第十小学校(小学校)まで146m | ||
| 建物種別 | マンション | 建物構造 | 鉄骨造 |
この部屋の取扱い不動産会社
| 会社名 | (株)くみん不動産志村坂上店(SUUMO経由) | ||
|---|---|---|---|
| 所在地 | 東京都板橋区小豆沢2-17-9 | 交通 | - |
| 営業時間 | 9:00~18:00 | 定休日 | 毎週火・水曜日 |
| 免許番号 | 東京都知事49836 | 取引態様 | 仲介 |
| 不動産会社管理番号 | 100479302921 | 当社管理番号 | 89 |
| 所属団体 | (公社)東京都宅地建物取引業協会会員 | ||
| 公正取引協議会 | (公社)首都圏不動産公正取引協議会加盟 | ||
| 取扱い物件情報 | 物件詳細へ | ||
※各種情報と現状に差異がある場合は、現状優先となります。問い合わせをすることで、より詳しい条件、情報を確認する事ができます。
提供:(株)くみん不動産志村坂上店(SUUMO経由)
この物件が気になったら掲載期限まであと10日
プランドールに条件(家賃・エリア)が近い物件一覧
| 写真 | 家賃 管理費等 | 敷金 礼金 | 間取り 専有面積 | 築年数 | 最寄り駅 所在地 | キープ | 詳細 |
|---|---|---|---|---|---|---|---|
マンション メインステージ東武練馬(1LDK/2階) | |||||||
![]() | 13.6万円 2万円 | なし なし | 1LDK 35.9m2 | 築1年 | 東武鉄道東上線 東武練馬駅 徒歩12分 東京都板橋区徳丸3丁目 | 詳細を見る | |
マンション ユングフラウ(2LDK/2階) | |||||||
![]() | 15.5万円 5,000円 | 15.5万円 15.5万円 | 2LDK 51m2 | 築38年 | JR埼京線 北赤羽駅 徒歩3分 都営三田線 志村坂上駅 徒歩25分 東京メトロ南北線 赤羽岩淵駅 徒歩28分 東京都北区浮間 | 詳細を見る | |
マンション パークキューブ西ヶ原ステージ(1LDK/1階) | |||||||
![]() | 16.6万円 1万円 | 16.6万円 16.6万円 | 1LDK 40.17m2 | 築17年 | 都営三田線 西巣鴨駅 徒歩9分 東京メトロ南北線 西ケ原駅 徒歩11分 JR山手線 巣鴨駅 徒歩19分 東京都北区西ケ原 | 詳細を見る | |
マンション アクアトウキョウノースシティ(1LDK/2階) | |||||||
![]() | 12.9万円 1万円 | なし 12.9万円 | 1LDK 33.92m2 | 築19年 | JR山手線 大塚駅(東京) 徒歩5分 都電荒川線 巣鴨新田駅 徒歩6分 東京メトロ丸ノ内線 新大塚駅 徒歩15分 東京都豊島区北大塚 | 詳細を見る | |
マンション BPRレジデンス田端(1DK/10階) | |||||||
![]() | 13.5万円 1万円 | 13.5万円 なし | 1DK 25.26m2 | 築3年 | 日暮里・舎人ライナー 赤土小学校前駅 徒歩5分 JR京浜東北線 田端駅 徒歩10分 京成本線 新三河島駅 徒歩10分 東京都北区田端新町 | 詳細を見る | |
マンション ベレオ尾久(2LDK/1階) | |||||||
![]() | 16万円 5,000円 | なし 16万円 | 2LDK 45.61m2 | 築11年 | JR高崎線 尾久駅 徒歩2分 JR山手線 田端駅 徒歩15分 JR京浜東北線 上中里駅 徒歩15分 東京都北区昭和町 | 詳細を見る | |
マンション CLK東十条(2LDK/5階) | |||||||
![]() | 22.9万円 1万円 | なし なし | 2LDK 52.45m2 | 築2年 | JR京浜東北線 東十条駅 徒歩1分 JR埼京線 十条駅(東京) 徒歩12分 東京メトロ南北線 王子神谷駅 徒歩12分 東京都北区東十条 | 詳細を見る | |
マンション KUハイム(3LDK/2階) | |||||||
![]() | 22.2万円 5,000円 | なし 22.2万円 | 3LDK 73.12m2 | 築1年 | 都営大江戸線 練馬春日町駅 徒歩7分 西武豊島線 豊島園駅 徒歩10分 西武池袋線 練馬駅 徒歩21分 東京都練馬区春日町 | 詳細を見る | |

/105x80-f1-q70-wp1)






