賃貸マンション
ザ・パークハビオ新御徒町の賃貸物件情報(1K/12階)
| 家賃 | 管理費等 | 敷金 | 礼金 | 間取り | 専有面積 |
|---|---|---|---|---|---|
| 13.3万円 | 1万円 | 13.3万円 | 13.3万円 | 1K | 25.12m2 |
入居決定でお祝い金最大100,000円
- 保証金
- -
- 償却・敷引
- -
- 築年数
- 築6年
- 所在階
- 12階
- 向き
- 南
Point
2020年築・設備充実シリーズレジデンス★独立洗面台、浴室乾燥機、追い焚き等水回り設備が充実してます。お気軽にお問い合わせ下さい。
提供:(株)タウンハウジング東京 浅草店(SUUMO経由)

詳細情報 ザ・パークハビオ新御徒町
物件紹介
ザ・パークハビオ新御徒町は都営大江戸線新御徒町駅から徒歩2分にあり、駅近で通勤通学に便利なマンションです。
このお部屋は2階以上に位置しているので、通行人や周囲の住人からの視線が気になりにくく、防犯面でも安心。建物のエントランスはオートロックがついており、インターホンにはTVモニタもついているため、相手の顔を確認してから来客対応することができます。
おしゃれなデザイナーズ物件!また、楽器相談が可能な物件となっているので、楽器演奏をお考えの方はぜひ相談してみてください。人気の南向きのお部屋。また、フローリングなのでお掃除もラクラク。キッチンはシステムキッチン仕様になっていますので、お料理好きの方にもぴったり。バス・トイレは別なので、のんびりお風呂タイムも楽しめるでしょう。また、雨の日でも浴室乾燥機を使えば、お洗濯も問題ありません。
通信設備面では、インターネットが無料で使えるので、月々の出費を抑えられるのも魅力です。また、BSアンテナ・CSアンテナもありますので、おうち時間も充実するでしょう(別途工事、BS・CSの契約料等が必要な場合あり)。
建物にはエレベーターがついているので、重い荷物があっても安心。共用部には宅配ボックスが設定されているので、不在の時にも荷物を受け取ることができます。また、ペット飼育の相談ができますので、あなたの大切な家族の一員も快適に暮らせるか、ぜひ確認してみてください。
このお部屋は2階以上に位置しているので、通行人や周囲の住人からの視線が気になりにくく、防犯面でも安心。建物のエントランスはオートロックがついており、インターホンにはTVモニタもついているため、相手の顔を確認してから来客対応することができます。
おしゃれなデザイナーズ物件!また、楽器相談が可能な物件となっているので、楽器演奏をお考えの方はぜひ相談してみてください。人気の南向きのお部屋。また、フローリングなのでお掃除もラクラク。キッチンはシステムキッチン仕様になっていますので、お料理好きの方にもぴったり。バス・トイレは別なので、のんびりお風呂タイムも楽しめるでしょう。また、雨の日でも浴室乾燥機を使えば、お洗濯も問題ありません。
通信設備面では、インターネットが無料で使えるので、月々の出費を抑えられるのも魅力です。また、BSアンテナ・CSアンテナもありますので、おうち時間も充実するでしょう(別途工事、BS・CSの契約料等が必要な場合あり)。
建物にはエレベーターがついているので、重い荷物があっても安心。共用部には宅配ボックスが設定されているので、不在の時にも荷物を受け取ることができます。また、ペット飼育の相談ができますので、あなたの大切な家族の一員も快適に暮らせるか、ぜひ確認してみてください。
お金・契約の情報
※「-」と表示されているものは、実際は料金が発生するものもございます。詳細はお問い合わせください。
| 家賃 | 13.3万円 | 管理費・共益費 | 1万円 |
|---|---|---|---|
| 敷金 | 13.3万円 | 礼金 | 13.3万円 |
| 入居決定でお祝い金最大100,000円 | |||
| 保証金 | - | 償却・敷引 | - |
| 住宅保険料 | - | 更新料 | - |
| 保証会社利用 | 必須 | 保証会社名 | 日本セーフティー |
| 保証会社費用 | - | 保証会社備考 | 日本セーフティー利用必 初回50%1年毎1万円 |
| 契約形態 | - | 契約期間 | - |
| 入居・引渡期間 | 即時 | 現況 | - |
| 入居可能条件 | ペット相談 | ||
| 契約備考 | 当店では契約金がクレジット決済可能です。オンライン内見、IT契約相談出来ます。遠方の方もお気軽にお問合せください。 合計3.3万円(内訳:鍵交換代金33000円) 1年未満解約1ヶ月違約金有り 1K 単身者可/ペット相談 普通借家2年 損保【2万円2年】 バストイレ別、バルコニー、エアコン、ガスコンロ対応、クロゼット、フローリング、TVインターホン、浴室乾燥機、オートロック、室内洗濯置、シューズボックス、システムキッチン、南向き、追焚機能浴室、温水洗浄便座、脱衣所、エレベーター、洗面所独立、洗面化粧台、2口コンロ、駐輪場、宅配ボックス、光ファイバー、外壁タイル張り、即入居可、BS・CS、防犯カメラ、ペット相談、全居室収納、オートバス、敷金1ヶ月、全居室フローリング、デザイナーズ、ネット専用回線、駅まで平坦、ネット使用料不要、24時間換気システム、クロゼット2ヶ所、平坦地、南面リビング、人感照明センサー、耐火構造、耐震構造、3駅以上利用可、3沿線以上利用可、駅前、駅徒歩5分以内、24時間ゴミ出し可、敷地内ごみ置き場、都市ガス、洗面所にドア、南面バルコニー、玄関収納、間接照明、オートライト、ダウンライト、高速ネット対応、マルチメディアコンセント、IT重説対応物件、初期費用カード決済可 敷金積み増し【ペット飼育の場合敷金2ヶ月(総額)】 | ||
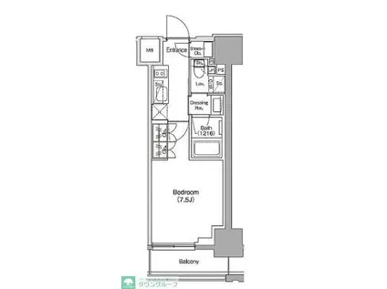
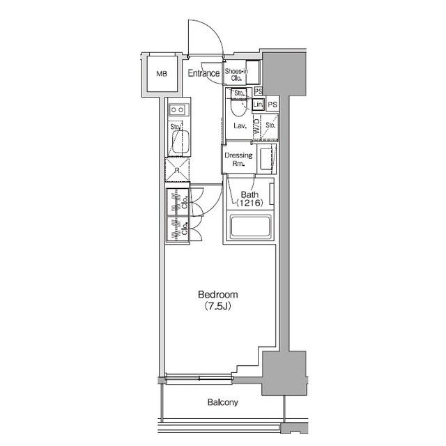
部屋の情報
| 間取り | 1K | 専有面積 | 25.12m2 |
|---|---|---|---|
| 所在階 / 向き | 12階 / 南 | バルコニー面積 | - |
| 水道 / ガス | - | ||
| 設備 | バス・トイレ別、2階以上、オートロック、テレビドアホン、宅配ボックス、浴室乾燥機、追い焚き、インターネット対応、システムキッチン、エアコン、エレベーター、温水洗浄便座、南向き、バルコニー、フローリング、洗髪洗面化粧台、2口コンロ、コンロ:ガス、デザイナーズ、CSアンテナ、BSアンテナ、インターネット使用料無料、洗濯機:室内 | ||
| 当社物件ID | 46141148 | ||
建物の情報
| 建物名 | ザ・パークハビオ新御徒町 | ||
|---|---|---|---|
| 所在地 | 東京都台東区小島 | ||
| 交通 | 都営大江戸線 新御徒町駅 徒歩2分 東京メトロ日比谷線 仲御徒町駅 徒歩8分 JR山手線 御徒町駅 徒歩10分 | ||
| 階数 | 13階建 | 総戸数 | - |
| 築年月 | 2020年10月 / 築6年 | エレベーター | あり |
| 駐車場 | 近隣 100m40000円 | バイク置き場 | - |
| 駐輪場 | あり | 管理人/管理会社 | - |
| 周辺環境 | その他 PBFARM佐竹店(スーパー)まで180m その他 セブンイレブン 台東元浅草1丁目店(コンビニ)まで220m その他 セブンイレブン 新御徒町駅前店(コンビニ)まで216m その他 ファミリーマート 新御徒町駅前店(コンビニ)まで256m その他 まいばすけっと 仲御徒町店(スーパー)まで331m その他 ライフ 新御徒町店(スーパー)まで262m | ||
| 建物種別 | マンション | 建物構造 | RC(鉄筋コンクリート) |
この部屋の取扱い不動産会社
| 会社名 | フォーディールーム 秋葉原店(株)Four D(SUUMO経由) | ||
|---|---|---|---|
| 所在地 | 東京都千代田区神田松永町 11 AT第一ビル4階 | 交通 | - |
| 営業時間 | AM10時~PM20時 | 定休日 | なし |
| 免許番号 | 国土交通大臣10082 | 取引態様 | 仲介 |
| 不動産会社管理番号 | 100481117076 | 当社管理番号 | 89 |
| 取扱い物件情報 | 物件詳細へ | ||
※各種情報と現状に差異がある場合は、現状優先となります。問い合わせをすることで、より詳しい条件、情報を確認する事ができます。
提供:フォーディールーム 秋葉原店(株)Four D(SUUMO経由)
この物件が気になったら掲載期限まであと10日
ザ・パークハビオ新御徒町に条件(家賃・エリア)が近い物件一覧
| 写真 | 家賃 管理費等 | 敷金 礼金 | 間取り 専有面積 | 築年数 | 最寄り駅 所在地 | キープ | 詳細 |
|---|---|---|---|---|---|---|---|
マンション アーバンパーク押上(1DK/1階) | |||||||
![]() | 12.15万円 1.5万円 | なし なし | 1DK 25.81m2 | 築2年 | 都営浅草線 押上駅 徒歩8分 東武伊勢崎線 曳舟駅 徒歩14分 都営浅草線 本所吾妻橋駅 徒歩14分 東京都墨田区向島 | 詳細を見る | |
マンション ミレドゥーエ両国(1K/6階) | |||||||
![]() | 11.6万円 1万円 | 11.6万円 11.6万円 | 1K 26.46m2 | 築6年 | 東京都新宿線 森下駅(東京) 徒歩7分 東京都墨田区千歳3丁目 | 詳細を見る | |
マンション NANAEI日本橋(1K/4階) | |||||||
![]() | 16万円 1万円 | なし 32万円 | 1K 30.09m2 | 築8年 | 東京メトロ半蔵門線 水天宮前駅 徒歩4分 東京メトロ日比谷線 茅場町駅 徒歩5分 東京メトロ日比谷線 人形町駅 徒歩11分 東京都中央区日本橋箱崎町 | 詳細を見る | |
マンション FIRSTSTAGE ASAKUSA BUILDING(1LDK/4階) | |||||||
![]() | 13.8万円 5,000円 | 13.8万円 なし | 1LDK 42.71m2 | 築34年 | つくばエクスプレス 新御徒町駅 徒歩6分 東京都大江戸線 新御徒町駅 徒歩6分 東京地下鉄銀座線 稲荷町駅(東京) 徒歩8分 東京都台東区元浅草3丁目 | 詳細を見る | |
マンション パークハビオ水天宮前(1DK/2階) | |||||||
![]() | 18万円 1.5万円 | 18万円 18万円 | 1DK 41.51m2 | 築18年 | 東京メトロ半蔵門線 水天宮前駅 徒歩3分 東京メトロ日比谷線 人形町駅 徒歩7分 東京メトロ東西線 茅場町駅 徒歩10分 東京都中央区日本橋蛎殻町 | 詳細を見る | |





