賃貸アパート
近鉄京都線 大久保駅(京都) 徒歩30分 3階建 築7年の賃貸物件情報(2LDK/2階)
| 家賃 | 管理費等 | 敷金 | 礼金 | 間取り | 専有面積 |
|---|---|---|---|---|---|
| 7.9万円 | 4,600円 | なし | 12万円 | 2LDK | 51.15m2 |
入居決定でお祝い金最大100,000円
Point
ファミリー様大歓迎 久御山のファミリータイプのお部屋です 設備も充実してます・
提供:株式会社 京都ライフ 京田辺店(賃貸スモッカ経由)

詳細情報 近鉄京都線 大久保駅(京都) 徒歩30分 3階建 築7年
物件紹介
近鉄京都線大久保駅から徒歩30分にあるアパートです。
このお部屋は2階以上に位置しているので通行人や周囲の住人からの視線が気になりにくく、建物のエントランスはオートロックがついているので防犯性が高くなっています。
人気の南向きのお部屋。また、フローリングなのでお掃除もラクラク。キッチンはシステムキッチン仕様になっていますので、お料理好きの方にもぴったり。バス・トイレは別なので、のんびりお風呂タイムも楽しめるでしょう。また、雨の日でも浴室乾燥機を使えば、お洗濯も問題ありません。
通信設備面では、インターネット接続が可能です。また、BSアンテナもありますので、おうち時間も充実するでしょう(別途工事、契約料が必要な場合あり)。
共用部には宅配ボックスが設定されているので、不在の時にも荷物を受け取ることができます。
このお部屋は2階以上に位置しているので通行人や周囲の住人からの視線が気になりにくく、建物のエントランスはオートロックがついているので防犯性が高くなっています。
人気の南向きのお部屋。また、フローリングなのでお掃除もラクラク。キッチンはシステムキッチン仕様になっていますので、お料理好きの方にもぴったり。バス・トイレは別なので、のんびりお風呂タイムも楽しめるでしょう。また、雨の日でも浴室乾燥機を使えば、お洗濯も問題ありません。
通信設備面では、インターネット接続が可能です。また、BSアンテナもありますので、おうち時間も充実するでしょう(別途工事、契約料が必要な場合あり)。
共用部には宅配ボックスが設定されているので、不在の時にも荷物を受け取ることができます。
お金・契約の情報
※「-」と表示されているものは、実際は料金が発生するものもございます。詳細はお問い合わせください。
| 家賃 | 7.9万円 | 管理費・共益費 | 4,600円 |
|---|---|---|---|
| 敷金 | なし | 礼金 | 12万円 |
| 入居決定でお祝い金最大100,000円 | |||
| 保証金 | - | 償却・敷引 | - |
| 住宅保険料 | 住宅保険料あり | 更新料 | - |
| 契約形態 | - | 契約期間 | 2年 |
| 入居・引渡期間 | 2025年12月中旬 | 現況 | 賃貸中 |
| 契約備考 | 久御山エリアにファミリー様向けの物件の誕生です インターネット無料や追い焚き機能など設備面は安定に充実しております エアコン二台付きも嬉しいですね・是非、久御山で新生活をスタートしましょう お問い合わせは、京都ライフまで。 入居者サポート:330円 口座振替手数料:170円 害虫駆除費:22,000円 更新料:無し 保証会社:利用必須 初回:2.2万円/2年、月額:保証料として月額賃料等の2%(ハウスクリーニング代退去時支払いの場合、月額保証料は総賃料の5% ペット可の場合、初回保証料25000円/月額保証料は総賃料の2.5%) その他設備/条件:コンロ2口以上、独立洗面台、TVドアホン | ||
部屋の情報
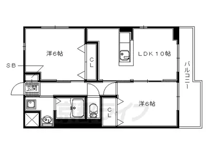
| 間取り | 2LDK | 専有面積 | 51.15m2 |
|---|---|---|---|
| 間取り詳細 | 洋室(6帖)、洋室(6帖)、LDK(10帖) | ||
| 所在階 / 向き | 2階 / 南 | バルコニー面積 | - |
| 水道 / ガス | ガス【都市】 | ||
| 設備 | バス・トイレ別、2階以上、オートロック、宅配ボックス、浴室乾燥機、追い焚き、インターネット対応、システムキッチン、エアコン、温水洗浄便座、南向き、バルコニー、フローリング、コンロ:ガス、BSアンテナ、洗濯機:室内 | ||
| 当社物件ID | 159991728 | ||
建物の情報
| 建物名 | 近鉄京都線 大久保駅(京都) 徒歩30分 3階建 築7年 | ||
|---|---|---|---|
| 所在地 | 京都府久世郡久御山町佐山 | ||
| 交通 | 近鉄京都線 大久保駅(京都) 徒歩30分 奈良線 新田駅(京都) 徒歩39分 | ||
| 階数 | 3階建 | 総戸数 | - |
| 築年月 | 2019年06月 / 築7年 | エレベーター | - |
| 駐車場 | - | バイク置き場 | - |
| 駐輪場 | あり | 管理人/管理会社 | - |
| 建物種別 | アパート | 建物構造 | 木造 |
この部屋の取扱い不動産会社
| 会社名 | 株式会社 京都ライフ 京田辺店(賃貸スモッカ経由) | ||
|---|---|---|---|
| 所在地 | 京都府京田辺市田辺中央1丁目7-11 | 交通 | - |
| 営業時間 | - | 定休日 | - |
| 免許番号 | 京都府知事(11)第6353号 | 取引態様 | 仲介 |
| 不動産会社管理番号 | kyotolife_70680-201-24 | 当社管理番号 | 463 |
| 所属団体 | 京都府宅地建物取引業協会\n公益社団法人近畿地区不動産公正取引協議会 | ||
| 公正取引協議会 | 全国宅地建物取引業保証協会 | ||
| 取扱い物件情報 | 物件詳細へ | ||
※各種情報と現状に差異がある場合は、現状優先となります。問い合わせをすることで、より詳しい条件、情報を確認する事ができます。
提供:株式会社 京都ライフ 京田辺店(賃貸スモッカ経由)
この物件が気になったら掲載期限まであと6日
近鉄京都線 大久保駅(京都) 徒歩30分 3階建 築7年に条件(家賃・エリア)が近い物件一覧
| 写真 | 家賃 管理費等 | 敷金 礼金 | 間取り 専有面積 | 築年数 | 最寄り駅 所在地 | キープ | 詳細 |
|---|---|---|---|---|---|---|---|
一戸建て 近鉄京都線 富野荘駅 徒歩3分 築33年(3DK) | |||||||
![]() | 6.2万円 なし | 6.2万円 6.2万円 | 3DK 43.5m2 | 築33年 | 近鉄京都線 富野荘駅 徒歩3分 奈良線 長池駅 徒歩25分 近鉄京都線 寺田駅(京都) 徒歩31分 京都府城陽市枇杷庄鹿背田 | 詳細を見る | |
アパート 阪急電鉄嵐山線 嵐山駅(阪急) 徒歩3分 築3年(2LDK/3階) | |||||||
![]() | 11.9万円 6,000円 | 5万円 28万円 | 2LDK 60.15m2 | 築3年 | 阪急電鉄嵐山線 嵐山駅(阪急) 徒歩3分 京福嵐山本線 嵐山駅(京福) 徒歩9分 京都府京都市西京区嵐山中尾下町 | 詳細を見る | |
マンション 近鉄京都線 小倉駅(京都) 徒歩5分 築20年(1K/1階) | |||||||
![]() | 6万円 3,000円 | 6万円 6万円 | 1K 29.89m2 | 築20年 | 近鉄京都線 小倉駅(京都) 徒歩5分 近鉄京都線 伊勢田駅 徒歩17分 京都府宇治市小倉町 | 詳細を見る | |
マンション リーフセラ七条(1DK/6階) | |||||||
![]() | 6.6万円 6,000円 | 5万円 15万円 | 1DK 29.61m2 | 築21年 | 東海道本線 西大路駅 徒歩15分 京都府京都市下京区西七条南東野町 | 詳細を見る | |
マンション 東海道本線 西大路駅 徒歩11分 築21年(1K/6階) | |||||||
![]() | 6.1万円 6,000円 | なし 6.1万円 | 1K 28.24m2 | 築21年 | 東海道本線 西大路駅 徒歩11分 阪急電鉄京都線 西院駅(阪急) 徒歩21分 京都府京都市下京区西七条南衣田町 | 詳細を見る | |
マンション 阪急電鉄京都線 洛西口駅 徒歩52分 築8年(2LDK/1階) | |||||||
![]() | 10.6万円 7,000円 | 21.2万円 10.6万円 | 2LDK 56m2 | 築8年 | 阪急電鉄京都線 洛西口駅 徒歩52分 阪急電鉄京都線 桂駅 徒歩54分 京都府京都市西京区大枝沓掛町 | 詳細を見る | |
マンション 山陰本線 二条駅 徒歩7分 築10年(1LDK/2階) | |||||||
![]() | 8.2万円 7,000円 | なし 23万円 | 1LDK 35.44m2 | 築10年 | 山陰本線 二条駅 徒歩7分 阪急電鉄京都線 大宮駅(京都) 徒歩9分 京都府京都市中京区壬生朱雀町 | 詳細を見る | |








