賃貸マンション
グランヴァン水天宮の賃貸物件情報(1K/3階)
| 家賃 | 管理費等 | 敷金 | 礼金 | 間取り | 専有面積 |
|---|---|---|---|---|---|
| 10万円 | 1万円 | なし | 10万円 | 1K | 19.28m2 |
入居決定でお祝い金最大100,000円
- 保証金
- -
- 償却・敷引
- -
- 築年数
- 築27年
- 所在階
- 3階
- 向き
- 北西
Point
【お部屋探しはクレアスレント】★空室の確認は即時返答★LINEで簡単にお部屋探し★営業時間外もご対応可能★インターネットで紹介していない類似物件も多数ご用意、ご案内!お客様のご要望にお応えいたします!
提供:(株)クレアスレント上野店(SUUMO経由)

詳細情報 グランヴァン水天宮
物件紹介
グランヴァン水天宮は東京メトロ半蔵門線水天宮前駅から徒歩5分にあり、駅近で通勤通学に便利なマンションです。
このお部屋は2階以上に位置しているので、通行人や周囲の住人からの視線が気になりにくく、防犯面でも安心。建物のエントランスはオートロックがついており、インターホンにはTVモニタもついているため、相手の顔を確認してから来客対応することができます。
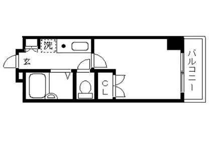
人気の南向き・フローリングのお部屋。角部屋でもあるため、周囲の居住者の生活音も気になりにくい場所です。バス・トイレ別の仕様で、のんびりお風呂タイムも楽しめます。また、浴室乾燥機を使えば、雨の日でもお洗濯は問題ありません。
通信設備面ではBSアンテナがありますので、おうち時間も充実するでしょう(別途工事、契約料が必要な場合あり)。
建物にはエレベーターがついているので、重い荷物があっても安心。共用部には宅配ボックスが設定されているので、不在の時にも荷物を受け取ることができます。
このお部屋は2階以上に位置しているので、通行人や周囲の住人からの視線が気になりにくく、防犯面でも安心。建物のエントランスはオートロックがついており、インターホンにはTVモニタもついているため、相手の顔を確認してから来客対応することができます。
人気の南向き・フローリングのお部屋。角部屋でもあるため、周囲の居住者の生活音も気になりにくい場所です。バス・トイレ別の仕様で、のんびりお風呂タイムも楽しめます。また、浴室乾燥機を使えば、雨の日でもお洗濯は問題ありません。
通信設備面ではBSアンテナがありますので、おうち時間も充実するでしょう(別途工事、契約料が必要な場合あり)。
建物にはエレベーターがついているので、重い荷物があっても安心。共用部には宅配ボックスが設定されているので、不在の時にも荷物を受け取ることができます。
お金・契約の情報
※「-」と表示されているものは、実際は料金が発生するものもございます。詳細はお問い合わせください。
| 家賃 | 10万円 | 管理費・共益費 | 1万円 |
|---|---|---|---|
| 敷金 | なし | 礼金 | 10万円 |
| 入居決定でお祝い金最大100,000円 | |||
| 保証金 | - | 償却・敷引 | - |
| 住宅保険料 | - | 更新料 | - |
| 保証会社利用 | 必須 | 保証会社名 | - |
| 保証会社費用 | - | 保証会社備考 | 保証会社利用必 初回保証料50%月額保証料1.5%(口座振替料込) |
| 契約形態 | 定期借家 | 契約期間 | 2年 |
| 入居・引渡期間 | - | 現況 | - |
| 契約備考 | 仕様・図面・写真等に相違があった場合は現況を優先します。再契約料:新賃料1ヶ月短期解約違約金:半年未満総賃料2ヶ月分1年未満総賃料1ヶ月分家具家電撤去代:25000円(税別) 合計3.3万円(内訳:鍵交換代3.3万円) 更新料 新賃料1.50ヶ月分 室内清掃費用 55000円 1K 定期借家2年 損保【1.8万円2年】 バストイレ別、バルコニー、エアコン、ガスコンロ対応、クロゼット、フローリング、TVインターホン、浴室乾燥機、オートロック、室内洗濯置、シューズボックス、角住戸、エレベーター、宅配ボックス、防犯カメラ、24時間ゴミ出し可、敷地内ごみ置き場、都市ガス 入居日:'26年3月下旬 | ||
部屋の情報
| 間取り | 1K | 専有面積 | 19.28m2 |
|---|---|---|---|
| 所在階 / 向き | 3階 / 北西 | バルコニー面積 | - |
| 水道 / ガス | - | ||
| 設備 | バス・トイレ別、2階以上、オートロック、テレビドアホン、宅配ボックス、浴室乾燥機、エアコン、エレベーター、角部屋、バルコニー、フローリング、コンロ:ガス、洗濯機:室内 | ||
| 当社物件ID | 6018937 | ||
建物の情報
| 建物名 | グランヴァン水天宮 | ||
|---|---|---|---|
| 所在地 | 東京都中央区日本橋蛎殻町 | ||
| 交通 | 東京メトロ半蔵門線 水天宮前駅 徒歩5分 東京メトロ東西線 茅場町駅 徒歩6分 東京メトロ日比谷線 人形町駅 徒歩7分 | ||
| 階数 | 地下1地上10階建 | 総戸数 | 57戸 |
| 築年月 | 1999年03月 / 築27年 | エレベーター | あり |
| 駐車場 | なし | バイク置き場 | - |
| 駐輪場 | - | 管理人/管理会社 | - |
| 周辺環境 | その他 ジョナサン 水天宮駅前店(飲食店)まで370m その他 ドトールコーヒーショップ 八丁堀店(飲食店)まで996m その他 すき家 新川永代橋店(飲食店)まで885m その他 浜町公園(公園)まで1201m その他 COREDO日本橋(その他)まで1102m その他 まいばすけっと 日本橋蛎殻町店(スーパー)まで260m | ||
| 建物種別 | マンション | 建物構造 | SRC(鉄骨鉄筋コンクリート) |
この部屋の取扱い不動産会社
| 会社名 | (株)クレアスレント上野店(SUUMO経由) | ||
|---|---|---|---|
| 所在地 | 東京都台東区上野7-2-2 東叡堂ビル4階 | 交通 | - |
| 営業時間 | 10時~19時 | 定休日 | 毎週水曜日 |
| 免許番号 | 国土交通大臣10473 | 取引態様 | 仲介 |
| 不動産会社管理番号 | 100488751795 | 当社管理番号 | 89 |
| 所属団体 | (公社)東京都宅地建物取引業協会会員 | ||
| 公正取引協議会 | (公社)首都圏不動産公正取引協議会加盟 | ||
| 取扱い物件情報 | 物件詳細へ | ||
※各種情報と現状に差異がある場合は、現状優先となります。問い合わせをすることで、より詳しい条件、情報を確認する事ができます。
提供:(株)クレアスレント上野店(SUUMO経由)
この物件が気になったら掲載期限まであと11日
グランヴァン水天宮に条件(家賃・エリア)が近い物件一覧
| 写真 | 家賃 管理費等 | 敷金 礼金 | 間取り 専有面積 | 築年数 | 最寄り駅 所在地 | キープ | 詳細 |
|---|---|---|---|---|---|---|---|
マンション クレストコート門前仲町(1DK/10階) | |||||||
![]() | 15.8万円 1.2万円 | 15.8万円 なし | 1DK 26.14m2 | 築1年 | 東京地下鉄東西線 門前仲町駅 徒歩7分 東京都江東区永代1丁目 | 詳細を見る | |
マンション メイクスデザイン住吉アジールコート(1K/4階) | |||||||
![]() | 11.6万円 1.1万円 | なし 11.6万円 | 1K 25.6m2 | 築12年 | 東京メトロ半蔵門線 住吉駅(東京) 徒歩8分 都営大江戸線 清澄白河駅 徒歩14分 都営新宿線 菊川駅(東京) 徒歩16分 東京都江東区扇橋 | 詳細を見る | |
マンション GENOVIA本所吾妻橋III(ワンルーム/10階) | |||||||
![]() | 11.8万円 1万円 | なし なし | ワンルーム 26.04m2 | 築3年 | 都営浅草線 本所吾妻橋駅 徒歩12分 JR総武線 錦糸町駅 徒歩17分 都営浅草線 浅草駅(東武・都営・メトロ) 徒歩20分 東京都墨田区石原 | 詳細を見る | |
マンション スカイコート東京ベイ 東雲(1K/5階) | |||||||
![]() | 11.1万円 1.1万円 | なし 11.1万円 | 1K 24.62m2 | 築19年 | 東京臨海高速鉄道 東雲駅(東京) 徒歩5分 東京地下鉄有楽町線 辰巳駅 徒歩14分 ゆりかもめ 有明テニスの森駅 徒歩16分 東京都江東区東雲2丁目 | 詳細を見る | |


/105x80-f1-q70-wp1)


