賃貸マンション
ヴィラスカイツリーパート2の賃貸物件情報(ワンルーム/4階)
| 家賃 | 管理費等 | 敷金 | 礼金 | 間取り | 専有面積 |
|---|---|---|---|---|---|
| 7.3万円 | 1.2万円 | なし | なし | ワンルーム | 15.13m2 |
入居決定でお祝い金最大100,000円
- 保証金
- 7.3万円
- 償却・敷引
- 7.3万円
- 築年数
- 築36年
- 所在階
- 4階
- 向き
- 南
- 交通
- つくばエクスプレス 浅草駅(つくばEXP) 徒歩9分
- 所在地
- 東京都台東区千束2丁目
ヴィラスカイツリーパート2
[地図を表示]
Point
まずはお問い合わせ!
不動産会社は街のプロ、あなたに合った物件がきっと見つかります。
提供:アパマンショップ蒲田東口店

詳細情報 ヴィラスカイツリーパート2
物件紹介
ヴィラスカイツリーパート2はつくばエクスプレス浅草駅から徒歩9分にあり、駅近で通勤通学に便利なマンションです。
このお部屋は2階以上に位置しているので通行人や周囲の住人からの視線が気になりにくく、建物のエントランスはオートロックがついているので防犯性が高くなっています。
人気の南向きのお部屋。また、フローリングなのでお掃除もラクラク。キッチンはシステムキッチン仕様になっていますので、お料理好きの方にもぴったり。
通信設備面では、インターネット接続が可能です(別途工事、契約料が必要な場合あり)。
建物にはエレベーターがついているので、重い荷物があっても安心。
このお部屋は2階以上に位置しているので通行人や周囲の住人からの視線が気になりにくく、建物のエントランスはオートロックがついているので防犯性が高くなっています。
人気の南向きのお部屋。また、フローリングなのでお掃除もラクラク。キッチンはシステムキッチン仕様になっていますので、お料理好きの方にもぴったり。
通信設備面では、インターネット接続が可能です(別途工事、契約料が必要な場合あり)。
建物にはエレベーターがついているので、重い荷物があっても安心。
お金・契約の情報
※「-」と表示されているものは、実際は料金が発生するものもございます。詳細はお問い合わせください。
| 家賃 | 7.3万円 | 管理費・共益費 | 1.2万円 |
|---|---|---|---|
| 敷金 | なし | 礼金 | なし |
| 入居決定でお祝い金最大100,000円 | |||
| 保証金 | 7.3万円 | 償却・敷引 | 7.3万円 |
| 住宅保険料 | 1.2万円(2年) | 更新料 | - |
| 保証会社利用 | 必須 | 保証会社名 | エムぞう君 |
| 保証会社費用 | - | 保証会社備考 | 初回:月額総賃料の50%(最低金額55000円)、更新料:11000円/年 |
| 契約形態 | - | 契約期間 | 1年 |
| 入居・引渡期間 | 2026年05月中旬 | 現況 | - |
| 入居可能条件 | 2人入居可 | ||
| 契約備考 | 鍵交換代 19800円/事務手数料 16500円/室内抗菌処理代 16500円/リテインシステム料 11000円 | ||
部屋の情報
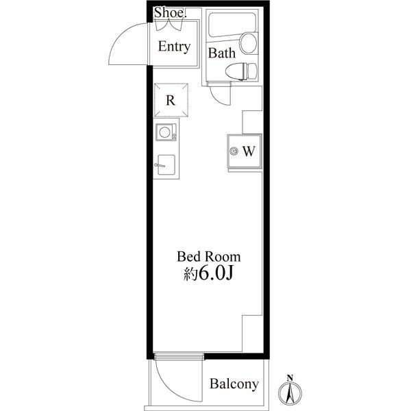
| 間取り | ワンルーム | 専有面積 | 15.13m2 |
|---|---|---|---|
| 間取り詳細 | 洋室(6帖) | ||
| 所在階 / 向き | 4階 / 南 | バルコニー面積 | - |
| 水道 / ガス | - | ||
| 設備 | オートロック、エレベーター、温水洗浄便座、フローリング、コンロ:電気、洗濯機:室内 | ||
| 当社物件ID | 13551697 | ||
建物の情報
| 建物名 | ヴィラスカイツリーパート2 | ||
|---|---|---|---|
| 所在地 | 東京都台東区千束2丁目 | ||
| 交通 | つくばエクスプレス 浅草駅(つくばEXP) 徒歩9分 | ||
| 階数 | 5階建 | 総戸数 | 14戸 |
| 築年月 | 1990年09月 / 築36年 | エレベーター | あり |
| 駐車場 | - | バイク置き場 | - |
| 駐輪場 | - | 管理人/管理会社 | - |
| 周辺環境 | 中学校 柏葉中学校 徒歩11分(834m) 小学校 金竜小学校 徒歩3分(189m) 幼稚園 金竜幼稚園 徒歩3分(189m) 病院 梅澤医院 徒歩3分(221m) その他 肉のハナマサ千束店 徒歩4分(306m) その他 ロイヤルホームセンター 徒歩38分(2998m) その他 上野学園中学校・高等学校 徒歩16分(1269m) その他 台東千束郵便局 徒歩3分(188m) | ||
| 建物種別 | マンション | 建物構造 | 鉄骨造 |
この部屋の取扱い不動産会社
| 会社名 | アパマンショップ神田秋葉原店(オンライン専門店) | ||
|---|---|---|---|
| 所在地 | 東京都千代田区神田須田町2丁目 6−1坂下ビル206 | 交通 | 東京都新宿線岩本町から徒歩2分 |
| 営業時間 | 10:00〜19:00(メール対応は朝8時〜夜9時半迄) | 定休日 | 水曜日 |
| 免許番号 | 東京都知事(3)96635 | 取引態様 | 仲介 |
| 不動産会社管理番号 | 77649160 | 当社管理番号 | 4 |
| 所属団体 | (公社) 東京都宅地建物取引業協会 | ||
| 公正取引協議会 | (公社) 首都圏不動産公正取引協議会加盟 | ||
| 取扱い物件情報 | 物件詳細へ | ||
※各種情報と現状に差異がある場合は、現状優先となります。問い合わせをすることで、より詳しい条件、情報を確認する事ができます。
提供:アパマンショップ神田秋葉原店(オンライン専門店)
この物件が気になったら掲載期限まであと13日
ヴィラスカイツリーパート2に条件(家賃・エリア)が近い物件一覧
| 写真 | 家賃 管理費等 | 敷金 礼金 | 間取り 専有面積 | 築年数 | 最寄り駅 所在地 | キープ | 詳細 |
|---|---|---|---|---|---|---|---|
マンション イクシオ熊野前駅(1DK/1階) | |||||||
![]() | 11.4万円 5,000円 | なし 11.4万円 | 1DK 30.25m2 | 築1年 | 東京都荒川線 東尾久三丁目駅 徒歩4分 日暮里舎人ライナー 熊野前駅 徒歩5分 東京地下鉄千代田線 町屋駅 徒歩13分 東京都荒川区町屋 六丁目 | 詳細を見る | |
マンション RIVER SIDE青山(2DK/2階) | |||||||
![]() | 4.9万円 6,000円 | 4.9万円 なし | 2DK 29m2 | 築53年 | 京阪本線 東福寺駅 徒歩12分 地下鉄烏丸線 九条駅(京都) 徒歩12分 地下鉄烏丸線 京都駅 徒歩14分 京都府京都市南区東九条北松ノ木町 | 詳細を見る | |


