賃貸マンション
ビレッジハウス三美1号棟の賃貸物件情報(3DK/2階)
| 家賃 | 管理費等 | 敷金 | 礼金 | 間取り | 専有面積 |
|---|---|---|---|---|---|
| 4.12万円 | なし | なし | なし | 3DK | 53.08m2 |
入居決定でお祝い金最大100,000円
Point
まずはお問い合わせ!
不動産会社は街のプロ、あなたに合った物件がきっと見つかります。
提供:ビレッジハウス・マネジメント株式会社 住まい相談センター

詳細情報 ビレッジハウス三美1号棟
物件紹介
ビレッジハウス三美1号棟は水郡線玉川村駅から徒歩65分にあるマンションです。
このお部屋は2階以上に位置しているので、通行人や周囲の住人からの視線が気になりにくく、防犯面でも安心です。
人気の南向きのお部屋。角部屋でもあるため、周囲の居住者の生活音も気になりにくい場所です。バス・トイレ別の仕様で、のんびりお風呂タイムも楽しめます。
ペット飼育の相談ができますので、あなたの大切な家族の一員も快適に暮らせるか、ぜひ確認してみてください。
このお部屋は2階以上に位置しているので、通行人や周囲の住人からの視線が気になりにくく、防犯面でも安心です。
人気の南向きのお部屋。角部屋でもあるため、周囲の居住者の生活音も気になりにくい場所です。バス・トイレ別の仕様で、のんびりお風呂タイムも楽しめます。
ペット飼育の相談ができますので、あなたの大切な家族の一員も快適に暮らせるか、ぜひ確認してみてください。
お金・契約の情報
※「-」と表示されているものは、実際は料金が発生するものもございます。詳細はお問い合わせください。
| 家賃 | 4.12万円 | 管理費・共益費 | なし |
|---|---|---|---|
| 敷金 | なし | 礼金 | なし |
| フリーレント | 1ヶ月 | ||
| 入居決定でお祝い金最大100,000円 | |||
| 保証金 | - | 償却・敷引 | - |
| 住宅保険料 | 1万円(2年) | 更新料 | - |
| 保証会社利用 | - | 保証会社名 | - |
| 保証会社費用 | - | 保証会社備考 | - |
| 契約形態 | - | 契約期間 | - |
| 入居・引渡期間 | - | 現況 | 空室 |
| 入居可能条件 | 2人入居可、高齢者相談、学生可、ペット相談 | ||
| 契約備考 | 契約種類:普通契約、24時間緊急対応 | ||
部屋の情報
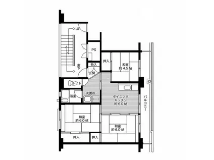
| 間取り | 3DK | 専有面積 | 53.08m2 |
|---|---|---|---|
| 所在階 / 向き | 2階 / 南 | バルコニー面積 | - |
| 水道 / ガス | - | ||
| 設備 | バス・トイレ別、追い焚き、エアコン、角部屋、バルコニー、給湯、洗濯機:室内 | ||
| 当社物件ID | 160471840 | ||
建物の情報
| 建物名 | ビレッジハウス三美1号棟 | ||
|---|---|---|---|
| 所在地 | 茨城県常陸大宮市三美2285-8 | ||
| 交通 | 水郡線 玉川村駅 徒歩65分 | ||
| 階数 | 5階建 | 総戸数 | - |
| 築年月 | 1996年05月 / 築30年 | エレベーター | - |
| 駐車場 | 空有 3,300円/月 円 | バイク置き場 | - |
| 駐輪場 | - | 管理人/管理会社 | 日勤 |
| 建物種別 | マンション | 建物構造 | RC(鉄筋コンクリート) |
この部屋の取扱い不動産会社
| 会社名 | ビレッジハウス・マネジメント株式会社 住まい相談センター | ||
|---|---|---|---|
| 所在地 | 東京都港区六本木6-10-1 六本木ヒルズ森タワー44階 | 交通 | 東京メトロ日比谷線「六本木駅」 直結 |
| 営業時間 | 平日:9:00-18:30/土日祝:9:00-18:00 | 定休日 | 年中無休(年末年始を除く) |
| 免許番号 | 東京都知事(2)第100758号 | 取引態様 | 貸主 |
| 不動産会社管理番号 | 00013887581 | 当社管理番号 | 459 |
| 所属団体 | 公益社団法人東京都宅地建物取引業協会会員 日本賃貸住宅管理協会会員 | ||
| 取扱い物件情報 | 物件詳細へ | ||
※各種情報と現状に差異がある場合は、現状優先となります。問い合わせをすることで、より詳しい条件、情報を確認する事ができます。
提供:ビレッジハウス・マネジメント株式会社 住まい相談センター
この物件が気になったら掲載期限まであと13日
ビレッジハウス三美1号棟に条件(家賃・エリア)が近い物件一覧
| 写真 | 家賃 管理費等 | 敷金 礼金 | 間取り 専有面積 | 築年数 | 最寄り駅 所在地 | キープ | 詳細 |
|---|---|---|---|---|---|---|---|
アパート レオパレスシェロス(1K/1階) | |||||||
![]() | 3.5万円 4,500円 | なし 3.5万円 | 1K 20.28m2 | 築28年 | 水郡線 下菅谷駅 徒歩14分 茨城県那珂市菅谷 | 詳細を見る | |
アパート ウィルモアEFU B棟(2LDK/2階) | |||||||
![]() | 6万円 4,000円 | なし なし | 2LDK 60.79m2 | 築25年 | JR水郡線 常陸大宮駅 徒歩29分 茨城県常陸大宮市石沢 | 詳細を見る | |
アパート ヒルズカトレア(ワンルーム/1階) | |||||||
![]() | 3.8万円 2,000円 | なし なし | ワンルーム 23.19m2 | 築32年 | JR水郡線 常陸鴻巣駅 徒歩30分 茨城県那珂市飯田 | 詳細を見る | |
アパート 富山マンション(2DK/1階) | |||||||
![]() | 3.5万円 なし | 3.5万円 なし | 2DK 39.7m2 | 築37年 | JR水郡線 常陸太田駅 徒歩9分 茨城県常陸太田市木崎二町 | 詳細を見る | |
アパート コーポ黒澤B(2DK/2階) | |||||||
![]() | 3.8万円 なし | 7.6万円 なし | 2DK 36.72m2 | 築43年 | JR水郡線 静駅 徒歩38分 JR水郡線 常陸大宮駅 徒歩41分 JR水郡線 瓜連駅 徒歩50分 茨城県常陸大宮市下村田 | 詳細を見る | |
アパート サンライトレジデンスIV(2LDK/2階) | |||||||
![]() | 5.8万円 1,800円 | なし 5.8万円 | 2LDK 62.45m2 | 築18年 | JR水郡線 常陸太田駅 徒歩9分 茨城県常陸太田市木崎一町 | 詳細を見る | |
アパート レオパレスエテルナ(1K/1階) | |||||||
![]() | 3.9万円 4,500円 | なし なし | 1K 31.05m2 | 築18年 | 水郡線 常陸大宮駅 徒歩19分 茨城県常陸大宮市栄町 | 詳細を見る | |
アパート レオネクストパトリ(1K/2階) | |||||||
![]() | 4.9万円 4,500円 | なし なし | 1K 30.8m2 | 築13年 | 水郡線 常陸大宮駅 徒歩12分 茨城県常陸大宮市栄町 | 詳細を見る | |









