賃貸マンション
パシフィックパレス駒沢公園の賃貸物件情報(3LDK/7階)
| 家賃 | 管理費等 | 敷金 | 礼金 | 間取り | 専有面積 |
|---|---|---|---|---|---|
| 30万円 | なし | 30万円 | 30万円 | 3LDK | 75.71m2 |
入居決定でお祝い金最大100,000円
- 保証金
- -
- 償却・敷引
- -
- 築年数
- 築30年
- 所在階
- 7階
- 向き
- 東
Point
まずはお問い合わせ!
不動産会社は街のプロ、あなたに合った物件がきっと見つかります。
提供:FRATELLO SARAN(株)(SUUMO経由)

詳細情報 パシフィックパレス駒沢公園
物件紹介
パシフィックパレス駒沢公園は東急田園都市線駒沢大学駅から徒歩13分にあるマンションです。
このお部屋は2階以上に位置しているので、通行人や周囲の住人からの視線が気になりにくく、防犯面でも安心。建物のエントランスはオートロックがついており、インターホンにはTVモニタもついているため、相手の顔を確認してから来客対応することができます。
おしゃれなデザイナーズ物件!人気の角部屋で周囲の居住者の生活音も気になりにくく、また、フローリングのお部屋なのでお掃除もラクラク。室内にはウォークインクローゼットがありますので、たくさんの荷物も効率的に収納ができます。キッチンはシステムキッチン仕様になっていますので、お料理好きの方にもぴったり。バス・トイレは別なので、のんびりお風呂タイムも楽しめるでしょう。また、雨の日でも浴室乾燥機を使えば、お洗濯も問題ありません。
通信設備面ではBSアンテナがありますので、おうち時間も充実するでしょう(別途工事、契約料が必要な場合あり)。
建物にはエレベーターがついているので、重い荷物があっても安心。また、ペット飼育の相談ができますので、あなたの大切な家族の一員も快適に暮らせるか、ぜひ確認してみてください。
このお部屋は2階以上に位置しているので、通行人や周囲の住人からの視線が気になりにくく、防犯面でも安心。建物のエントランスはオートロックがついており、インターホンにはTVモニタもついているため、相手の顔を確認してから来客対応することができます。
おしゃれなデザイナーズ物件!人気の角部屋で周囲の居住者の生活音も気になりにくく、また、フローリングのお部屋なのでお掃除もラクラク。室内にはウォークインクローゼットがありますので、たくさんの荷物も効率的に収納ができます。キッチンはシステムキッチン仕様になっていますので、お料理好きの方にもぴったり。バス・トイレは別なので、のんびりお風呂タイムも楽しめるでしょう。また、雨の日でも浴室乾燥機を使えば、お洗濯も問題ありません。
通信設備面ではBSアンテナがありますので、おうち時間も充実するでしょう(別途工事、契約料が必要な場合あり)。
建物にはエレベーターがついているので、重い荷物があっても安心。また、ペット飼育の相談ができますので、あなたの大切な家族の一員も快適に暮らせるか、ぜひ確認してみてください。
お金・契約の情報
※「-」と表示されているものは、実際は料金が発生するものもございます。詳細はお問い合わせください。
| 家賃 | 30万円 | 管理費・共益費 | なし |
|---|---|---|---|
| 敷金 | 30万円 | 礼金 | 30万円 |
| 入居決定でお祝い金最大100,000円 | |||
| 保証金 | - | 償却・敷引 | - |
| 住宅保険料 | 1円 | 更新料 | - |
| 保証会社利用 | 利用可 | 保証会社名 | - |
| 保証会社費用 | - | 保証会社備考 | オリコフォレントインシュア。契約時に賃料・共益費50%の初回保証料。また月々1%の継続保証料を御契約者様がご負担。 |
| 契約形態 | - | 契約期間 | 2年 |
| 入居・引渡期間 | 2026年02月下旬 | 現況 | - |
| 契約備考 | 鍵交換費用:46200 その他設備/条件:防犯カメラ、全居室収納、シューズボックス | ||
部屋の情報
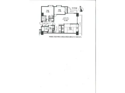
| 間取り | 3LDK | 専有面積 | 75.71m2 |
|---|---|---|---|
| 所在階 / 向き | 7階 / 東 | バルコニー面積 | 9m2 |
| 水道 / ガス | ガス【都市】 | ||
| 設備 | バス・トイレ別、追い焚き、エレベーター、角部屋、バルコニー、洗髪洗面化粧台、コンロ:ガス、タイル張り | ||
| 当社物件ID | 9874815 | ||
建物の情報
| 建物名 | パシフィックパレス駒沢公園 | ||
|---|---|---|---|
| 所在地 | 東京都世田谷区駒沢4丁目 | ||
| 交通 | 東急田園都市線 駒沢大学駅 徒歩13分 山手線 渋谷駅 バス乗車時間:20分 駒沢公園西口バス停で下車 徒歩1分 | ||
| 階数 | 8階建 | 総戸数 | - |
| 築年月 | 1996年03月 / 築30年 | エレベーター | あり |
| 駐車場 | 空無 | バイク置き場 | - |
| 駐輪場 | - | 管理人/管理会社 | - |
| 周辺環境 | その他 ドラッグストア その他 公園 その他 銀行 その他 * | ||
| 建物種別 | マンション | 建物構造 | RC(鉄筋コンクリート) |
この部屋の取扱い不動産会社
| 会社名 | ハウスコム西東京株式会社 祖師ヶ谷大蔵店 | ||
|---|---|---|---|
| 所在地 | 東京都世田谷区37-5振興会館ビル2階 | 交通 | - |
| 営業時間 | 10:00~18:00 | 定休日 | 水曜定休 |
| 免許番号 | 東京都知事(1)第108225号 | 取引態様 | 仲介 |
| 不動産会社管理番号 | HC4-5376766-701-0187 | 当社管理番号 | 468 |
| 所属団体 | 、 | ||
| 取扱い物件情報 | 物件詳細へ | ||
※各種情報と現状に差異がある場合は、現状優先となります。問い合わせをすることで、より詳しい条件、情報を確認する事ができます。
提供:ハウスコム西東京株式会社 祖師ヶ谷大蔵店
この物件が気になったら掲載期限まであと5日
パシフィックパレス駒沢公園に条件(家賃・エリア)が近い物件一覧
| 写真 | 家賃 管理費等 | 敷金 礼金 | 間取り 専有面積 | 築年数 | 最寄り駅 所在地 | キープ | 詳細 |
|---|---|---|---|---|---|---|---|
マンション LA PERLA MEGURO-HIGASHIYAMA(1LDK/4階) | |||||||
![]() | 26.5万円 1.5万円 | 26.5万円 なし | 1LDK 40.45m2 | 築2年 | 東急田園都市線 池尻大橋駅 徒歩8分 東京メトロ日比谷線 中目黒駅 徒歩13分 京王井の頭線 神泉駅 徒歩19分 東京都目黒区東山 | 詳細を見る | |
マンション シャンボール代々木(1LDK/4階) | |||||||
![]() | 19.8万円 2万円 | 19.8万円 19.8万円 | 1LDK 45m2 | 築55年 | 小田急線 代々木八幡駅 徒歩2分 東京メトロ千代田線 代々木公園駅 徒歩3分 小田急線 代々木上原駅 徒歩12分 東京都渋谷区代々木 | 詳細を見る | |
マンション アイビハイツ調布(3LDK/7階) | |||||||
![]() | 18万円 1万円 | 18万円 18万円 | 3LDK 82.08m2 | 築50年 | 京王線 国領駅 徒歩7分 京王線 布田駅 徒歩8分 東京都調布市国領町 | 詳細を見る | |
マンション COZY南馬込(2LDK/1階) | |||||||
![]() | 22.4万円 1万円 | 22.4万円 22.4万円 | 2LDK 69.61m2 | 築1年 | 東京都大田区南馬込5丁目 | 詳細を見る | |
マンション ドゥーエ西馬込(2LDK/3階) | |||||||
![]() | 20.3万円 1.2万円 | 20.3万円 なし | 2LDK 47.17m2 | 築7年 | 都営浅草線 西馬込駅 徒歩8分 都営浅草線 馬込駅 徒歩16分 東急池上線 長原駅(東京) 徒歩20分 東京都大田区中馬込 | 詳細を見る | |
マンション スプリングスクエア永福(2LDK/2階) | |||||||
![]() | 35.8万円 1.5万円 | 71.6万円 35.8万円 | 2LDK 56.06m2 | 築1年 | 京王井の頭線 永福町駅 徒歩7分 京王線 明大前駅 徒歩11分 東京都杉並区和泉 | 詳細を見る | |
マンション アビタシオンクレール(4DK/3階) | |||||||
![]() | 21万円 1万円 | なし なし | 4DK 75.78m2 | 築35年 | 京急空港線 糀谷駅 徒歩11分 京急本線 京急蒲田駅 徒歩13分 JR京浜東北線 蒲田駅 徒歩24分 東京都大田区西糀谷 | 詳細を見る | |
アパート THE PARK MAISON代々木上原 ザ・パークメゾン代々木上原(2LDK/1階) | |||||||
![]() | 29.5万円 5,000円 | 29.5万円 29.5万円 | 2LDK 64.38m2 | 築8年 | 小田急線 代々木上原駅 徒歩2分 小田急線 代々木八幡駅 徒歩10分 東京メトロ千代田線 代々木公園駅 徒歩10分 東京都渋谷区上原 | 詳細を見る | |









