賃貸マンション
ライオンズプラザ川崎Ⅱの賃貸物件情報(1K/2階)
| 家賃 | 管理費等 | 敷金 | 礼金 | 間取り | 専有面積 |
|---|---|---|---|---|---|
| 5.8万円 | なし | 5.8万円 | なし | 1K | 21.33m2 |
入居決定でお祝い金最大100,000円
Point
【ご予約無しのご来店も歓迎♪お気軽にお問い合わせください♪】
提供:アパマンショップ武蔵小杉JR口店

詳細情報 ライオンズプラザ川崎Ⅱ
物件紹介
ライオンズプラザ川崎Ⅱは南武線小田栄駅から徒歩9分にあり、駅近で通勤通学に便利なマンションです。
このお部屋は2階以上に位置しているので、通行人や周囲の住人からの視線が気になりにくく、防犯面でも安心。建物のエントランスはオートロックがついており、インターホンにはTVモニタもついているため、相手の顔を確認してから来客対応することができます。
人気の南向き・フローリングのお部屋。角部屋でもあるため、周囲の居住者の生活音も気になりにくい場所です。
通信設備面ではBSアンテナがありますので、おうち時間も充実するでしょう(別途工事、契約料が必要な場合あり)。
建物にはエレベーターがついているので、重い荷物があっても安心。共用部には宅配ボックスが設定されているので、不在の時にも荷物を受け取ることができます。
このお部屋は2階以上に位置しているので、通行人や周囲の住人からの視線が気になりにくく、防犯面でも安心。建物のエントランスはオートロックがついており、インターホンにはTVモニタもついているため、相手の顔を確認してから来客対応することができます。
人気の南向き・フローリングのお部屋。角部屋でもあるため、周囲の居住者の生活音も気になりにくい場所です。
通信設備面ではBSアンテナがありますので、おうち時間も充実するでしょう(別途工事、契約料が必要な場合あり)。
建物にはエレベーターがついているので、重い荷物があっても安心。共用部には宅配ボックスが設定されているので、不在の時にも荷物を受け取ることができます。
お金・契約の情報
※「-」と表示されているものは、実際は料金が発生するものもございます。詳細はお問い合わせください。
| 家賃 | 5.8万円 | 管理費・共益費 | なし |
|---|---|---|---|
| 敷金 | 5.8万円 | 礼金 | なし |
| 入居決定でお祝い金最大100,000円 | |||
| 保証金 | - | 償却・敷引 | - |
| 住宅保険料 | - | 更新料 | - |
| 保証会社利用 | 必須 | 保証会社名 | エポスカード |
| 保証会社費用 | - | 保証会社備考 | 初回保証委託料(家賃管理費生活安心パック)×50%月々総賃料×1.4% |
| 契約形態 | - | 契約期間 | 2年 |
| 入居・引渡期間 | 相談 | 現況 | - |
| 契約備考 | 鍵交換代 22000円/消火剤 5500円 | ||
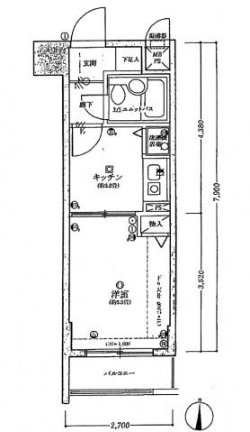
部屋の情報
| 間取り | 1K | 専有面積 | 21.33m2 |
|---|---|---|---|
| 間取り詳細 | 洋室(5.5帖) | ||
| 所在階 / 向き | 2階 / 南 | バルコニー面積 | - |
| 水道 / ガス | ガス【都市】 | ||
| 設備 | オートロック、宅配ボックス、エレベーター、バルコニー、コンロ:IH、BSアンテナ、冷蔵庫あり、洗濯機:室内 | ||
| 当社物件ID | 158396395 | ||
建物の情報
| 建物名 | ライオンズプラザ川崎Ⅱ | ||
|---|---|---|---|
| 所在地 | 神奈川県川崎市川崎区浅田2丁目 | ||
| 交通 | 南武線 小田栄駅 徒歩9分 | ||
| 階数 | 10階建 | 総戸数 | 100戸 |
| 築年月 | 1993年04月 / 築33年 | エレベーター | あり |
| 駐車場 | - | バイク置き場 | - |
| 駐輪場 | あり | 管理人/管理会社 | - |
| 周辺環境 | その他 サンドラッグ小田銀座店 徒歩4分(296m) その他 まいばすけっと(渡田山王店) 徒歩20分(1586m) その他 セブンイレブン 徒歩11分(835m) その他 ローソン 徒歩10分(783m) その他 イトーヨーカドー川崎店 徒歩16分(1280m) その他 ローソン鶴見平安町一丁目店 徒歩25分(1958m) その他 神奈川県立川崎高等学校 徒歩22分(1681m) その他 キッチンオリジン 徒歩19分(1473m) | ||
| 建物種別 | マンション | 建物構造 | SRC(鉄骨鉄筋コンクリート) |
この部屋の取扱い不動産会社
| 会社名 | アパマンショップ藤沢店 | ||
|---|---|---|---|
| 所在地 | 神奈川県藤沢市南藤沢 3-1KDビル7F | 交通 | 湘南新宿ライン高海藤沢から徒歩1分 |
| 営業時間 | 10:00〜19:00 | 定休日 | 水曜日 |
| 免許番号 | 神奈川県知事(10)13668 | 取引態様 | 仲介 |
| 不動産会社管理番号 | 104692615 | 当社管理番号 | 4 |
| 所属団体 | (公社)神奈川県宅地建物取引業協会 | ||
| 公正取引協議会 | (公社) 首都圏不動産公正取引協議会加盟 | ||
| 取扱い物件情報 | 物件詳細へ | ||
※各種情報と現状に差異がある場合は、現状優先となります。問い合わせをすることで、より詳しい条件、情報を確認する事ができます。
提供:アパマンショップ藤沢店
この物件が気になったら掲載期限まであと9日
ライオンズプラザ川崎Ⅱに条件(家賃・エリア)が近い物件一覧
| 写真 | 家賃 管理費等 | 敷金 礼金 | 間取り 専有面積 | 築年数 | 最寄り駅 所在地 | キープ | 詳細 |
|---|---|---|---|---|---|---|---|
アパート 瀬村ハウス(1K/2階) | |||||||
![]() | 4万円 なし | なし なし | 1K 16.68m2 | 築34年 | グリーンライン 日吉本町駅 徒歩18分 グリーンライン 高田駅(神奈川) 徒歩18分 東急東横線 日吉駅(神奈川) 徒歩24分 神奈川県横浜市港北区下田町 | 詳細を見る | |
マンション スクエア シティ ヨコハマ ネギシ(1K/6階) | |||||||
![]() | 7.6万円 1.5万円 | なし 7.6万円 | 1K 21.58m2 | 築1年 | JR京浜東北線 根岸駅(神奈川) 徒歩8分 JR京浜東北線 山手駅 徒歩19分 神奈川県横浜市中区根岸町 | 詳細を見る | |
アパート マルマン杉田(1K/2階) | |||||||
![]() | 5.2万円 なし | 5.2万円 なし | 1K 23.18m2 | 築54年 | 京浜東北・根岸線 新杉田駅 徒歩14分 京浜急行電鉄本線 杉田駅(神奈川) 徒歩15分 神奈川県横浜市金沢区富岡東1丁目 | 詳細を見る | |
アパート GAヒルズ弘明寺 B棟(1K/2階) | |||||||
![]() | 4.3万円 3,000円 | なし なし | 1K 16.55m2 | 築18年 | 京急本線 弘明寺駅(京急) 徒歩8分 ブルーライン 弘明寺駅(横浜市営) 徒歩17分 京急本線 井土ケ谷駅 徒歩24分 神奈川県横浜市南区中里 | 詳細を見る | |
マンション グリフィン横浜・ファーストステージ(1K/4階) | |||||||
![]() | 7万円 1万円 | なし 7万円 | 1K 20.16m2 | 築26年 | ブルーライン 高島町駅 徒歩3分 みなとみらい線 新高島駅 徒歩4分 JR京浜東北線 横浜駅 徒歩5分 神奈川県横浜市西区高島 | 詳細を見る | |
マンション アメイズ(ワンルーム/1階) | |||||||
![]() | 7.5万円 なし | 7.5万円 なし | ワンルーム 37.8m2 | 築36年 | 京急大師線 東門前駅 徒歩16分 京急大師線 川崎大師駅 徒歩16分 京急大師線 大師橋駅 徒歩17分 神奈川県川崎市川崎区四谷上町 | 詳細を見る | |
マンション 友野ビル(ワンルーム/3階) | |||||||
![]() | 5.9万円 3,000円 | なし なし | ワンルーム 26.18m2 | 築38年 | 京浜急行電鉄本線 南太田駅 徒歩2分 神奈川県横浜市南区南太田1丁目 | 詳細を見る | |
マンション AZEST阪東橋II(ワンルーム/7階) | |||||||
![]() | 9.15万円 1万円 | なし なし | ワンルーム 25.19m2 | 築1年 | ブルーライン 阪東橋駅 徒歩5分 京急本線 黄金町駅 徒歩11分 ブルーライン 伊勢佐木長者町駅 徒歩14分 神奈川県横浜市南区浦舟町 | 詳細を見る | |








