賃貸マンション
COCOFLAT東中野IIの賃貸物件情報(ワンルーム/2階)
| 家賃 | 管理費等 | 敷金 | 礼金 | 間取り | 専有面積 |
|---|---|---|---|---|---|
| 10.9万円 | 5,000円 | 10.9万円 | なし | ワンルーム | 23.1m2 |
入居決定でお祝い金最大100,000円
- 保証金
- -
- 償却・敷引
- -
- 築年数
- 築7年
- 所在階
- 2階
- 向き
- 南東
Point
暮らすほどに快適さを実感できる設備仕様!都心を身近に、ストレスフリーな暮らしを楽しむ!住むほどに愛着が深まる暮らしやすい街!!
提供:(株)タウンハウジング東京 高円寺店(SUUMO経由)

詳細情報 COCOFLAT東中野II
物件紹介
COCOFLAT東中野IIはJR中央線東中野駅から徒歩5分にあり、駅近で通勤通学に便利なマンションです。
このお部屋は2階以上に位置しているので、通行人や周囲の住人からの視線が気になりにくく、防犯面でも安心。建物のエントランスはオートロックがついており、インターホンにはTVモニタもついているため、相手の顔を確認してから来客対応することができます。
おしゃれなデザイナーズ物件!人気の南向き・フローリングのお部屋。角部屋でもあるため、周囲の居住者の生活音も気になりにくい場所です。室内にはウォークインクローゼットがありますので、たくさんの荷物も効率的に収納ができます。キッチンはシステムキッチン仕様になっていますので、お料理好きの方にもぴったり。バス・トイレは別なので、のんびりお風呂タイムも楽しめるでしょう。また、雨の日でも浴室乾燥機を使えば、お洗濯も問題ありません。
通信設備面ではCATVに対応しているので、おうち時間も充実するでしょう(別途工事、契約料が必要な場合あり)。
共用部には宅配ボックスが設定されているので、不在の時にも荷物を受け取ることができます。
このお部屋は2階以上に位置しているので、通行人や周囲の住人からの視線が気になりにくく、防犯面でも安心。建物のエントランスはオートロックがついており、インターホンにはTVモニタもついているため、相手の顔を確認してから来客対応することができます。
おしゃれなデザイナーズ物件!人気の南向き・フローリングのお部屋。角部屋でもあるため、周囲の居住者の生活音も気になりにくい場所です。室内にはウォークインクローゼットがありますので、たくさんの荷物も効率的に収納ができます。キッチンはシステムキッチン仕様になっていますので、お料理好きの方にもぴったり。バス・トイレは別なので、のんびりお風呂タイムも楽しめるでしょう。また、雨の日でも浴室乾燥機を使えば、お洗濯も問題ありません。
通信設備面ではCATVに対応しているので、おうち時間も充実するでしょう(別途工事、契約料が必要な場合あり)。
共用部には宅配ボックスが設定されているので、不在の時にも荷物を受け取ることができます。
お金・契約の情報
※「-」と表示されているものは、実際は料金が発生するものもございます。詳細はお問い合わせください。
| 家賃 | 10.9万円 | 管理費・共益費 | 5,000円 |
|---|---|---|---|
| 敷金 | 10.9万円 | 礼金 | なし |
| 入居決定でお祝い金最大100,000円 | |||
| 保証金 | - | 償却・敷引 | - |
| 住宅保険料 | - | 更新料 | - |
| 保証会社利用 | 必須 | 保証会社名 | - |
| 保証会社費用 | - | 保証会社備考 | 保証会社利用必 賃貸保証料:0.50ヶ月 初回契約時:50%、更新時:10000円、 |
| 契約形態 | - | 契約期間 | - |
| 入居・引渡期間 | 相談 | 現況 | - |
| 契約備考 | タウンハウジングは、200社以上の会社と取引があり、常に新着の情報を仕入れております。インターネット公開情報以外にも多くのご紹介が可能です。地域トップクラスの情報量・取扱い物件をお客様にご提案させていただきます。一部クレジット払いも対応しています♪♪ 合計4.4万円(内訳:鍵交換代:27500円/24時間安心サポート:16500円) 更新料新賃料(ヶ月):1.00ヶ月 ワンルーム 二人入居可 普通借家2年 バストイレ別、エアコン、クロゼット、フローリング、TVインターホン、浴室乾燥機、オートロック、室内洗濯置、陽当り良好、シューズボックス、システムキッチン、角住戸、温水洗浄便座、宅配ボックス、CATV、礼金不要、閑静な住宅地、2面採光、防犯カメラ、IHクッキングヒーター、照明付、ウォークインクロゼット、保証人不要、敷金1ヶ月、二人入居相談、オール電化、全居室フローリング、デザイナーズ、ディンプルキー、トランクルーム、ダブルロックキー、保証金不要、24時間換気システム、人感照明センサー、2駅利用可、3沿線以上利用可、駅徒歩5分以内、敷地内ごみ置き場、東南向き、室内物干機、IT重説対応物件 | ||
部屋の情報
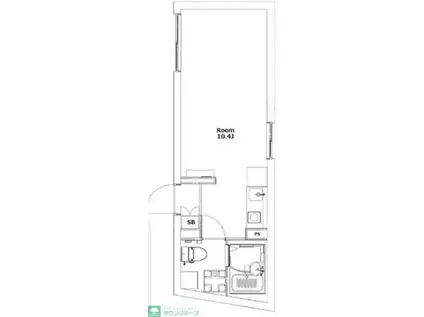
| 間取り | ワンルーム | 専有面積 | 23.1m2 |
|---|---|---|---|
| 所在階 / 向き | 2階 / 南東 | バルコニー面積 | - |
| 水道 / ガス | - | ||
| 設備 | バス・トイレ別、2階以上、オートロック、テレビドアホン、宅配ボックス、浴室乾燥機、ウォークインクローゼット、システムキッチン、エアコン、温水洗浄便座、南向き、角部屋、フローリング、トランクルーム、オール電化、コンロ:IH、デザイナーズ、CATV、洗濯機:室内 | ||
| 当社物件ID | 34958763 | ||
建物の情報
| 建物名 | COCOFLAT東中野II | ||
|---|---|---|---|
| 所在地 | 東京都中野区東中野 | ||
| 交通 | JR中央線 東中野駅 徒歩5分 都営大江戸線 東中野駅 徒歩5分 東京メトロ東西線 落合駅 徒歩5分 | ||
| 階数 | 4階建 | 総戸数 | 11戸 |
| 築年月 | 2019年10月 / 築7年 | エレベーター | - |
| 駐車場 | なし | バイク置き場 | - |
| 駐輪場 | - | 管理人/管理会社 | - |
| 周辺環境 | その他 目白駅(JR 山手線)(その他)まで3270m その他 コルモピア(ショッピングセンター)まで500m その他 業務スーパー(スーパー)まで50m その他 業務スーパー東中野店(コンビニ)まで50m その他 ココカラファイン東中野店(ドラッグストア)まで250m その他 島忠(ホームセンター)まで1110m | ||
| 建物種別 | マンション | 建物構造 | RC(鉄筋コンクリート) |
この部屋の取扱い不動産会社
| 会社名 | (株)タウンハウジング東京 中野店(SUUMO経由) | ||
|---|---|---|---|
| 所在地 | 東京都中野区中野2-30-8 立川ビル6階 | 交通 | - |
| 営業時間 | AM10:00~PM7:00 | 定休日 | 水曜日 |
| 免許番号 | 国土交通大臣9926 | 取引態様 | 仲介 |
| 不動産会社管理番号 | 100492021832 | 当社管理番号 | 89 |
| 所属団体 | (公社)東京都宅地建物取引業協会会員 | ||
| 公正取引協議会 | (公社)首都圏不動産公正取引協議会加盟 | ||
| 取扱い物件情報 | 物件詳細へ | ||
※各種情報と現状に差異がある場合は、現状優先となります。問い合わせをすることで、より詳しい条件、情報を確認する事ができます。
提供:(株)タウンハウジング東京 中野店(SUUMO経由)
この物件が気になったら掲載期限まであと10日
COCOFLAT東中野IIに条件(家賃・エリア)が近い物件一覧
| 写真 | 家賃 管理費等 | 敷金 礼金 | 間取り 専有面積 | 築年数 | 最寄り駅 所在地 | キープ | 詳細 |
|---|---|---|---|---|---|---|---|
マンション ジェノヴィア高円寺スカイガーデン(1LDK/4階) | |||||||
![]() | 17.9万円 1.8万円 | 17.9万円 17.9万円 | 1LDK 40.56m2 | 築10年 | 中央本線 高円寺駅 徒歩10分 東京都中野区大和町1丁目 | 詳細を見る | |
マンション AGLAIA要町(1DK/3階) | |||||||
![]() | 13万円 1万円 | なし なし | 1DK 27.06m2 | 築1年 | 東京メトロ有楽町線 要町駅 徒歩9分 東京メトロ副都心線 要町駅 徒歩9分 JR山手線 池袋駅 徒歩15分 東京都豊島区高松 | 詳細を見る | |
アパート パークアヴェニュー練馬北町(1K/3階) | |||||||
![]() | 8万円 3,000円 | 8万円 8万円 | 1K 18.18m2 | 築1年 | 東武東上線 東武練馬駅 徒歩6分 東武東上線 上板橋駅 徒歩13分 東京メトロ副都心線 平和台駅(東京) 徒歩21分 東京都練馬区北町 | 詳細を見る | |
マンション パークリュクス中野(1LDK/10階) | |||||||
![]() | 16.5万円 1.5万円 | 16.5万円 16.5万円 | 1LDK 33.52m2 | 築9年 | JR中央線 中野駅(東京) 徒歩7分 西武新宿線 新井薬師前駅 徒歩13分 西武新宿線 沼袋駅 徒歩16分 東京都中野区新井 | 詳細を見る | |
マンション ジュルイ市谷台町(1K/7階) | |||||||
![]() | 14.2万円 8,000円 | 14.2万円 なし | 1K 26.39m2 | 築1年 | 都営新宿線 曙橋駅 徒歩5分 都営大江戸線 若松河田駅 徒歩10分 東京メトロ丸ノ内線 四谷三丁目駅 徒歩13分 東京都新宿区市谷台町 | 詳細を見る | |
マンション レガリス新高円寺(1K/2階) | |||||||
![]() | 10.4万円 1.5万円 | なし なし | 1K 25.81m2 | 築3年 | 東京地下鉄丸ノ内線 新高円寺駅 徒歩9分 東京都杉並区松ノ木3丁目 | 詳細を見る | |
アパート コーポ升竹(3DK/1階) | |||||||
![]() | 15万円 4,000円 | 15万円 15万円 | 3DK 47.77m2 | 築62年 | 都営大江戸線 牛込柳町駅 徒歩3分 都営大江戸線 若松河田駅 徒歩8分 東京メトロ東西線 神楽坂駅 徒歩18分 東京都新宿区原町 | 詳細を見る | |
マンション ライトハウス大塚(1K/2階) | |||||||
![]() | 15.3万円 1.1万円 | なし 15.3万円 | 1K 25.79m2 | 築7年 | 東京メトロ丸ノ内線 新大塚駅 徒歩5分 JR山手線 大塚駅(東京) 徒歩5分 JR山手線 巣鴨駅 徒歩13分 東京都豊島区南大塚 | 詳細を見る | |

/105x80-f1-q70-wp1)




/105x80-f1-q70-wp1)

