賃貸アパート
ヒーリンググレース高槻高西町A棟の賃貸物件情報(1LDK/1階)
| 家賃 | 管理費等 | 敷金 | 礼金 | 間取り | 専有面積 |
|---|---|---|---|---|---|
| 9.9万円 | 5,800円 | なし | 19.8万円 | 1LDK | 34.72m2 |
入居決定でお祝い金最大100,000円
- 保証金
- -
- 償却・敷引
- -
- 築年数
- 築1年
- 所在階
- 1階
- 向き
- -
Point
洗濯機置場が室内なので、いつでも好きなタイミングで洗濯できます。追焚機能があるので、冬場はすぐに温め直せて、水道代も節約できます。浴室乾燥機付なので、雨の日や花粉が気になる季節も部屋干しできます。
提供:住む→ズ四ツ橋堀江店(株)谷山企画(SUUMO経由)

詳細情報 ヒーリンググレース高槻高西町A棟
物件紹介
ヒーリンググレース高槻高西町A棟は阪急京都線高槻市駅から徒歩18分にあるアパートです。
このお部屋のインターホンにはTVモニタがついているため、相手の顔を確認してから来客対応することができます。
フローリングのお部屋なのでお掃除もラクラク。キッチンはシステムキッチン仕様になっていますので、お料理好きの方にもぴったり。バス・トイレは別なので、のんびりお風呂タイムも楽しめるでしょう。また、雨の日でも浴室乾燥機を使えば、お洗濯も問題ありません。
通信設備面では、インターネット接続が可能です。また、BSアンテナ・CSアンテナがありCATVにも対応しているので、おうち時間も充実するでしょう(別途工事、契約料が必要な場合あり)。
このお部屋のインターホンにはTVモニタがついているため、相手の顔を確認してから来客対応することができます。
フローリングのお部屋なのでお掃除もラクラク。キッチンはシステムキッチン仕様になっていますので、お料理好きの方にもぴったり。バス・トイレは別なので、のんびりお風呂タイムも楽しめるでしょう。また、雨の日でも浴室乾燥機を使えば、お洗濯も問題ありません。
通信設備面では、インターネット接続が可能です。また、BSアンテナ・CSアンテナがありCATVにも対応しているので、おうち時間も充実するでしょう(別途工事、契約料が必要な場合あり)。
お金・契約の情報
※「-」と表示されているものは、実際は料金が発生するものもございます。詳細はお問い合わせください。
| 家賃 | 9.9万円 | 管理費・共益費 | 5,800円 |
|---|---|---|---|
| 敷金 | なし | 礼金 | 19.8万円 |
| 入居決定でお祝い金最大100,000円 | |||
| 保証金 | - | 償却・敷引 | - |
| 住宅保険料 | - | 更新料 | - |
| 保証会社利用 | 必須 | 保証会社名 | - |
| 保証会社費用 | - | 保証会社備考 | 保証会社利用必 保証会社エルズサポート加入 初回総賃料の50%・月額550円口座振替+月額保証料700円(年更新料無し) |
| 契約形態 | - | 契約期間 | - |
| 入居・引渡期間 | - | 現況 | - |
| 契約備考 | 阪急電鉄京都線富田駅徒歩37分/洗濯機置場が室内なので、いつでも好きなタイミングで洗濯できます。追焚機能があるので、冬場はすぐに温め直せて、水道代も節約できます。浴室乾燥機付なので、雨の日や花粉が気になる季節も部屋干しできます。 合計3万円(内訳:鍵交換代:29000円/ステッカー代:1000円) インターネット使用料:1200円/月 1LDK 普通借家2年 損保【要】 バストイレ別、エアコン、ガスコンロ対応、浴室乾燥機、室内洗濯置、システムキッチン、追焚機能浴室、温水洗浄便座、洗面所独立、敷金不要、防犯カメラ、照明付、2沿線利用可、仲手0.55ヶ月、保証金不要、築2年以内、礼金2ヶ月、初期費用カード決済可 入居日:'26年3月中旬 | ||
部屋の情報
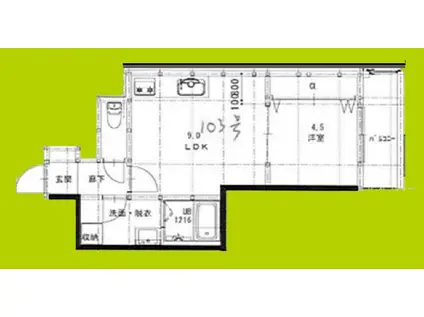
| 間取り | 1LDK | 専有面積 | 34.72m2 |
|---|---|---|---|
| 所在階 / 向き | 1階 / - | バルコニー面積 | 4m2 |
| 水道 / ガス | - | ||
| 設備 | バス・トイレ別、浴室乾燥機、追い焚き、システムキッチン、エアコン、温水洗浄便座、バルコニー、洗髪洗面化粧台、コンロ:ガス、洗濯機:室内 | ||
| 当社物件ID | 160207151 | ||
建物の情報
| 建物名 | ヒーリンググレース高槻高西町A棟 | ||
|---|---|---|---|
| 所在地 | 大阪府高槻市高西町 | ||
| 交通 | 阪急京都線 高槻市駅 徒歩18分 JR東海道本線 高槻駅 徒歩22分 JR東海道本線 摂津富田駅 徒歩36分 | ||
| 階数 | 3階建 | 総戸数 | 18戸 |
| 築年月 | 2026年03月 / 築1年 | エレベーター | - |
| 駐車場 | 空有 17600円 | バイク置き場 | - |
| 駐輪場 | - | 管理人/管理会社 | - |
| 周辺環境 | その他 セブンイレブン 高槻城南町2丁目店(コンビニ)まで490m その他 サンディ高槻高西店(スーパー)まで290m その他 茨木市役所(役所)まで6010m その他 大阪医科薬科大学病院(病院)まで2310m その他 高槻市駅(阪急 京都本線)(その他)まで1640m その他 ジャパン 高槻下田部店(ドラッグストア)まで650m | ||
| 建物種別 | アパート | 建物構造 | 木造 |
この部屋の取扱い不動産会社
| 会社名 | (株)エリッツ阪急淡路店(SUUMO経由) | ||
|---|---|---|---|
| 所在地 | 大阪府大阪市東淀川区淡路4-9-13 ハセガワビル1階 | 交通 | - |
| 営業時間 | 10:00~19:00 | 定休日 | 火曜日(祝日を除く)・年末年始 |
| 免許番号 | 国土交通大臣5206 | 取引態様 | 仲介 |
| 不動産会社管理番号 | 100482606686 | 当社管理番号 | 89 |
| 取扱い物件情報 | 物件詳細へ | ||
※各種情報と現状に差異がある場合は、現状優先となります。問い合わせをすることで、より詳しい条件、情報を確認する事ができます。
提供:(株)エリッツ阪急淡路店(SUUMO経由)
この物件が気になったら掲載期限まであと10日
ヒーリンググレース高槻高西町A棟に条件(家賃・エリア)が近い物件一覧
| 写真 | 家賃 管理費等 | 敷金 礼金 | 間取り 専有面積 | 築年数 | 最寄り駅 所在地 | キープ | 詳細 |
|---|---|---|---|---|---|---|---|
マンション ルノン茨木(3LDK/3階) | |||||||
| 7.3万円 7,000円 | なし 10万円 | 3LDK 75m2 | 築36年 | 大阪モノレール本線 沢良宜駅 徒歩22分 阪急電鉄京都線 南茨木駅 徒歩26分 東海道本線 茨木駅 徒歩43分 大阪府茨木市小柳町5-3 | 詳細を見る | ||
マンション リベルタ緑が丘(2DK/2階) | |||||||
| 6.5万円 なし | なし 6.5万円 | 2DK 47.04m2 | 築35年 | 東海道本線 高槻駅 徒歩27分 阪急電鉄京都線 高槻市駅 徒歩35分 東海道本線 摂津富田駅 徒歩41分 大阪府高槻市浦堂1丁目1-1 | 詳細を見る | ||
一戸建て 京阪電気鉄道京阪線 萱島駅 徒歩3分 築33年(3DK) | |||||||
![]() | 6.4万円 なし | なし なし | 3DK 65.52m2 | 築33年 | 京阪電気鉄道京阪線 萱島駅 徒歩3分 大阪府寝屋川市萱島信和町 | 詳細を見る | |
マンション ラジュニール春日丘(3LDK/1階) | |||||||
| 16万円 1万円 | 16万円 16万円 | 3LDK 85m2 | 築38年 | 大阪モノレール彩都 公園東口駅 徒歩13分 大阪モノレール彩都 阪大病院前駅 徒歩15分 東海道本線 茨木駅 徒歩27分 大阪府茨木市南春日丘3丁目1-35 | 詳細を見る | ||
アパート ALEGRIA香里園(1LDK/1階) | |||||||
![]() | 6.6万円 3,000円 | なし なし | 1LDK 29.86m2 | 築1年 | 京阪電気鉄道京阪線 香里園駅 徒歩13分 京阪電気鉄道京阪線 光善寺駅 徒歩34分 京阪電気鉄道京阪線 寝屋川市駅 徒歩37分 大阪府寝屋川市美井元町 | 詳細を見る | |
マンション 京阪電気鉄道交野線 星ケ丘駅(大阪) 徒歩11分 築39年(2LDK/1階) | |||||||
![]() | 7.5万円 5,000円 | なし 7.5万円 | 2LDK 61.2m2 | 築39年 | 京阪電気鉄道交野線 星ケ丘駅(大阪) 徒歩11分 京阪電気鉄道交野線 村野駅 徒歩13分 大阪府枚方市星丘2丁目 | 詳細を見る | |
マンション パトリアグランデ(1SLDK/2階) | |||||||
| 15.7万円 1.05万円 | なし 35万円 | 1SLDK 53.42m2 | 築1年 | 阪急電鉄京都線 高槻市駅 徒歩7分 東海道本線 高槻駅 徒歩12分 東海道本線 摂津富田駅 徒歩43分 大阪府高槻市大手町3-28 | 詳細を見る | ||


