賃貸アパート
ガーデンハイツ中前の賃貸物件情報(3DK/2階)
| 家賃 | 管理費等 | 敷金 | 礼金 | 間取り | 専有面積 |
|---|---|---|---|---|---|
| 4.2万円 | 3,000円 | なし | なし | 3DK | 44.24m2 |
入居決定でお祝い金最大100,000円
Point
南海本線「尾崎駅」(特急停車駅)より徒歩7分、3DKのハイツです。近くにスーパー・市役所・銀行・病院があり生活便利です♪ ■3DK(44.24m2)■プロパンガス
提供:(株)ファミリーハウス(SUUMO経由)

詳細情報 ガーデンハイツ中前
物件紹介
ガーデンハイツ中前は南海本線尾崎駅から徒歩7分にあり、駅近で通勤通学に便利なアパートです。
このお部屋は2階以上に位置しているので、通行人や周囲の住人からの視線が気になりにくく、防犯面でも安心です。
バス・トイレ別の仕様で、のんびりお風呂タイムも楽しめます。
通信設備面ではCATVに対応しているので、おうち時間も充実するでしょう(別途工事、契約料が必要な場合あり)。
このお部屋は2階以上に位置しているので、通行人や周囲の住人からの視線が気になりにくく、防犯面でも安心です。
バス・トイレ別の仕様で、のんびりお風呂タイムも楽しめます。
通信設備面ではCATVに対応しているので、おうち時間も充実するでしょう(別途工事、契約料が必要な場合あり)。
お金・契約の情報
※「-」と表示されているものは、実際は料金が発生するものもございます。詳細はお問い合わせください。
| 家賃 | 4.2万円 | 管理費・共益費 | 3,000円 |
|---|---|---|---|
| 敷金 | なし | 礼金 | なし |
| 入居決定でお祝い金最大100,000円 | |||
| 保証金 | - | 償却・敷引 | - |
| 住宅保険料 | - | 更新料 | - |
| 保証会社利用 | 必須 | 保証会社名 | 日本セーフティー |
| 保証会社費用 | - | 保証会社備考 | 日本セーフティー利用必 初回保証料:賃料総額の60% 更新料:1万円(1年毎) |
| 契約形態 | - | 契約期間 | - |
| 入居・引渡期間 | 即時 | 現況 | - |
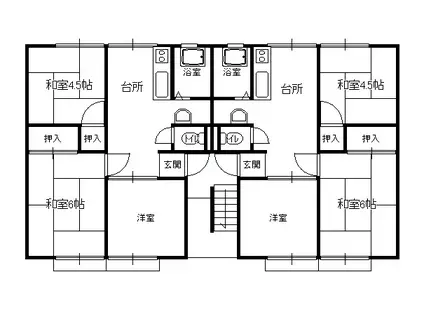
| 契約備考 | ※室内の間取・設備等はお部屋により異なる場合がございます 3DK 損保【2万円2年】 バストイレ別、室内洗濯置、追焚機能浴室、押入、CATV、駅まで平坦、駅徒歩10分以内、敷地内ごみ置き場 | ||
部屋の情報
| 間取り | 3DK | 専有面積 | 44.24m2 |
|---|---|---|---|
| 所在階 / 向き | 2階 / 東 | バルコニー面積 | - |
| 水道 / ガス | - | ||
| 設備 | バス・トイレ別、2階以上、追い焚き、CATV、洗濯機:室内 | ||
| 当社物件ID | 21101688 | ||
建物の情報
| 建物名 | ガーデンハイツ中前 | ||
|---|---|---|---|
| 所在地 | 大阪府阪南市黒田 | ||
| 交通 | 南海本線 尾崎駅 徒歩7分 南海本線 鳥取ノ荘駅 徒歩18分 | ||
| 階数 | 2階建 | 総戸数 | - |
| 築年月 | 1987年08月 / 築39年 | エレベーター | - |
| 駐車場 | 空有 5000円 | バイク置き場 | - |
| 駐輪場 | - | 管理人/管理会社 | - |
| 周辺環境 | その他 セブンイレブン阪南市役所前店(コンビニ)まで269m その他 万代尾崎店(スーパー)まで560m その他 阪南市民病院(病院)まで616m その他 阪南市立上荘小学校(小学校)まで1140m その他 阪南市立鳥取中学校(中学校)まで798m その他 阪南郵便局(郵便局)まで531m | ||
| 建物種別 | アパート | 建物構造 | 軽量鉄骨造 |
この部屋の取扱い不動産会社
| 会社名 | (株)ファミリーハウス(SUUMO経由) | ||
|---|---|---|---|
| 所在地 | 大阪府泉南市樽井2-1-9 | 交通 | - |
| 営業時間 | 午前10時~午後7時 | 定休日 | 火・水曜日 |
| 免許番号 | 大阪府知事41329 | 取引態様 | 仲介 |
| 不動産会社管理番号 | 000058430111 | 当社管理番号 | 89 |
| 所属団体 | (公社)全日本不動産協会大阪府本部会員 | ||
| 公正取引協議会 | (公社)近畿地区不動産公正取引協議会加盟 | ||
| 取扱い物件情報 | 物件詳細へ | ||
※各種情報と現状に差異がある場合は、現状優先となります。問い合わせをすることで、より詳しい条件、情報を確認する事ができます。
提供:(株)ファミリーハウス(SUUMO経由)
この物件が気になったら掲載期限まであと11日
ガーデンハイツ中前に条件(家賃・エリア)が近い物件一覧
| 写真 | 家賃 管理費等 | 敷金 礼金 | 間取り 専有面積 | 築年数 | 最寄り駅 所在地 | キープ | 詳細 |
|---|---|---|---|---|---|---|---|
アパート サンリット(3LDK/2階) | |||||||
![]() | 5.5万円 3,300円 | 11万円 なし | 3LDK 65.57m2 | 築22年 | 南海電鉄南海本線 樽井駅 徒歩13分 南海電鉄南海本線 尾崎駅 徒歩28分 大阪府泉南市男里5丁目 | 詳細を見る | |
アパート ヴェステン フォーゲル(1LDK/1階) | |||||||
![]() | 6.75万円 5,500円 | なし 6.75万円 | 1LDK 50.13m2 | 築4年 | 南海電鉄南海本線 鳥取ノ荘駅 徒歩2分 南海電鉄南海本線 尾崎駅 徒歩21分 南海電鉄南海本線 箱作駅 徒歩27分 大阪府阪南市鳥取 | 詳細を見る | |
アパート プチメゾンRINKU(1LDK/2階) | |||||||
![]() | 6.3万円 なし | なし 6.3万円 | 1LDK 42.93m2 | 築1年 | 南海電鉄南海本線 尾崎駅 徒歩19分 南海電鉄南海本線 樽井駅 徒歩24分 南海電鉄南海本線 鳥取ノ荘駅 徒歩31分 大阪府泉南市男里4丁目 | 詳細を見る | |
マンション ウエストヒルズ関空1(2LDK/14階) | |||||||
![]() | 5.7万円 5,000円 | なし なし | 2LDK 65.52m2 | 築30年 | 南海電鉄南海本線 岡田浦駅 徒歩20分 阪和線 和泉砂川駅 徒歩24分 阪和線 新家駅 徒歩28分 大阪府泉南市中小路2丁目 | 詳細を見る | |
アパート TABIYADO SENNAN(1K/2階) | |||||||
![]() | 5.6万円 3,000円 | なし なし | 1K 27.7m2 | 築7年 | 南海電鉄南海本線 岡田浦駅 徒歩7分 南海電鉄南海本線 吉見ノ里駅 徒歩22分 阪和線 新家駅 徒歩30分 大阪府泉南市北野1丁目 | 詳細を見る | |
一戸建て 南海電鉄南海本線 鳥取ノ荘駅 徒歩9分 築54年(5DK) | |||||||
![]() | 5.9万円 なし | なし 15万円 | 5DK 97m2 | 築54年 | 南海電鉄南海本線 鳥取ノ荘駅 徒歩9分 南海電鉄南海本線 箱作駅 徒歩20分 南海電鉄南海本線 尾崎駅 徒歩29分 大阪府阪南市舞1丁目 | 詳細を見る | |
マンション プチ・ソレール(ワンルーム/1階) | |||||||
![]() | 4.15万円 3,900円 | なし なし | ワンルーム 26.12m2 | 築22年 | 南海電鉄南海本線 岡田浦駅 徒歩2分 南海電鉄南海本線 吉見ノ里駅 徒歩23分 南海電鉄南海本線 樽井駅 徒歩26分 大阪府泉南市岡田3丁目 | 詳細を見る | |
アパート レオパレス光GARDEN(2DK/3階) | |||||||
![]() | 5.5万円 5,000円 | なし 5.5万円 | 2DK 49.68m2 | 築25年 | 南海電鉄南海本線 鳥取ノ荘駅 徒歩10分 南海電鉄南海本線 箱作駅 徒歩17分 南海電鉄南海本線 尾崎駅 徒歩30分 大阪府阪南市貝掛 | 詳細を見る | |









