賃貸マンション
BRIZZ品川大井DUEの賃貸物件情報(1K/2階)
| 家賃 | 管理費等 | 敷金 | 礼金 | 間取り | 専有面積 |
|---|---|---|---|---|---|
| 8.1万円 | 9,000円 | 8.1万円 | 8.1万円 | 1K | 20.86m2 |
入居決定でお祝い金最大100,000円
- 保証金
- -
- 償却・敷引
- -
- 築年数
- 築17年
- 所在階
- 2階
- 向き
- -
Point
オンラインでの対応も可能です。諸条件で気になることなど気軽にご相談ください。初期費用、入居時期、周辺環境(治安や買い物等)LINEのお友達追加で簡単お部屋探し。詳細はお問合せ下さい。
提供:(株)暮らすティ蒲田東口店(SUUMO経由)

詳細情報 BRIZZ品川大井DUE
物件紹介
BRIZZ品川大井DUEは京急本線立会川駅から徒歩3分にあり、駅近で通勤通学に便利なマンションです。
このお部屋は2階以上に位置しているので、通行人や周囲の住人からの視線が気になりにくく、防犯面でも安心。建物のエントランスはオートロックがついており、インターホンにはTVモニタもついているため、相手の顔を確認してから来客対応することができます。
フローリングのお部屋なのでお掃除もラクラク。キッチンはシステムキッチン仕様になっていますので、お料理好きの方にもぴったり。バス・トイレは別なので、のんびりお風呂タイムも楽しめるでしょう。また、雨の日でも浴室乾燥機を使えば、お洗濯も問題ありません。
通信設備面では、インターネット接続が可能です(別途工事、契約料が必要な場合あり)。
建物にはエレベーターがついているので、重い荷物があっても安心。共用部には宅配ボックスが設定されているので、不在の時にも荷物を受け取ることができます。
このお部屋は2階以上に位置しているので、通行人や周囲の住人からの視線が気になりにくく、防犯面でも安心。建物のエントランスはオートロックがついており、インターホンにはTVモニタもついているため、相手の顔を確認してから来客対応することができます。
フローリングのお部屋なのでお掃除もラクラク。キッチンはシステムキッチン仕様になっていますので、お料理好きの方にもぴったり。バス・トイレは別なので、のんびりお風呂タイムも楽しめるでしょう。また、雨の日でも浴室乾燥機を使えば、お洗濯も問題ありません。
通信設備面では、インターネット接続が可能です(別途工事、契約料が必要な場合あり)。
建物にはエレベーターがついているので、重い荷物があっても安心。共用部には宅配ボックスが設定されているので、不在の時にも荷物を受け取ることができます。
お金・契約の情報
※「-」と表示されているものは、実際は料金が発生するものもございます。詳細はお問い合わせください。
| 家賃 | 8.1万円 | 管理費・共益費 | 9,000円 |
|---|---|---|---|
| 敷金 | 8.1万円 | 礼金 | 8.1万円 |
| 入居決定でお祝い金最大100,000円 | |||
| 保証金 | - | 償却・敷引 | - |
| 住宅保険料 | - | 更新料 | - |
| 保証会社利用 | 必須 | 保証会社名 | - |
| 保証会社費用 | - | 保証会社備考 | 保証会社利用必 *初回保証料:総賃料の50%、継続保証料:¥10,000(1年毎) |
| 契約形態 | - | 契約期間 | - |
| 入居・引渡期間 | 相談 | 現況 | - |
| 契約備考 | 巡回管理/空室状況すぐに確認致します。室内写真や図面の送付・入居時期のご相談下さい。*短期解約違約金有:1年未満の場合総賃料の1か月分 合計3.25万円(内訳:鍵交換費用:¥27,000、通信事務費:¥5,500) 安心入居サポート(月額):¥1,100、口座振替手数料:¥330 1K 普通借家2年 損保【2.15万円2年】 バストイレ別、バルコニー、エアコン、ガスコンロ対応、クロゼット、フローリング、シャワー付洗面台、TVインターホン、浴室乾燥機、オートロック、室内洗濯置、シューズボックス、システムキッチン、温水洗浄便座、脱衣所、エレベーター、洗面所独立、洗面化粧台、2口コンロ、宅配ボックス、防犯カメラ、分譲賃貸、保証人不要、ガスレンジ付、2沿線利用可、ネット専用回線、駅まで平坦、24時間換気システム、耐震構造、2駅利用可、3駅以上利用可、3沿線以上利用可、駅徒歩5分以内、駅徒歩10分以内、24時間ゴミ出し可、敷地内ごみ置き場、都市ガス、玄関収納、保証会社利用可、IT重説対応物件、初期費用カード決済可 | ||
部屋の情報
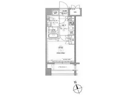
| 間取り | 1K | 専有面積 | 20.86m2 |
|---|---|---|---|
| 所在階 / 向き | 2階 / - | バルコニー面積 | - |
| 水道 / ガス | - | ||
| 設備 | バス・トイレ別、2階以上、オートロック、テレビドアホン、宅配ボックス、浴室乾燥機、インターネット対応、システムキッチン、エアコン、エレベーター、温水洗浄便座、バルコニー、フローリング、洗髪洗面化粧台、2口コンロ、コンロ:ガス、洗濯機:室内 | ||
| 当社物件ID | 160434068 | ||
建物の情報
| 建物名 | BRIZZ品川大井DUE | ||
|---|---|---|---|
| 所在地 | 東京都品川区南大井 | ||
| 交通 | 京急本線 立会川駅 徒歩3分 JR京浜東北線 大井町駅 徒歩13分 東京モノレール 大井競馬場前駅 徒歩16分 | ||
| 階数 | 5階建 | 総戸数 | - |
| 築年月 | 2009年03月 / 築17年 | エレベーター | あり |
| 駐車場 | なし | バイク置き場 | - |
| 駐輪場 | - | 管理人/管理会社 | - |
| 周辺環境 | その他 まいばすけっと立会川駅西店(スーパー)まで137m | ||
| 建物種別 | マンション | 建物構造 | RC(鉄筋コンクリート) |
この部屋の取扱い不動産会社
| 会社名 | (株)暮らすティ蒲田東口店(SUUMO経由) | ||
|---|---|---|---|
| 所在地 | 東京都大田区蒲田5-16-8 鵠沼ビル4階 | 交通 | - |
| 営業時間 | 10:00~19:00 | 定休日 | 水曜日 |
| 免許番号 | 東京都知事106353 | 取引態様 | 仲介 |
| 不動産会社管理番号 | 100489240879 | 当社管理番号 | 89 |
| 取扱い物件情報 | 物件詳細へ | ||
※各種情報と現状に差異がある場合は、現状優先となります。問い合わせをすることで、より詳しい条件、情報を確認する事ができます。
提供:(株)暮らすティ蒲田東口店(SUUMO経由)
この物件が気になったら掲載期限まであと10日
BRIZZ品川大井DUEに条件(家賃・エリア)が近い物件一覧
| 写真 | 家賃 管理費等 | 敷金 礼金 | 間取り 専有面積 | 築年数 | 最寄り駅 所在地 | キープ | 詳細 |
|---|---|---|---|---|---|---|---|
マンション エフプレスト大森東(ワンルーム/1階) | |||||||
![]() | 6.8万円 5,000円 | 6.8万円 6.8万円 | ワンルーム 16.04m2 | 築4年 | 東京モノレール羽田 昭和島駅 徒歩11分 京浜急行電鉄本線 大森町駅 徒歩18分 東京都大田区大森東5丁目 | 詳細を見る | |
マンション LASANTE木場公園(1K/7階) | |||||||
![]() | 12.9万円 1万円 | 12.9万円 12.9万円 | 1K 22.91m2 | 築25年 | 東京地下鉄東西線 木場駅 徒歩11分 東京都江東区平野3丁目 | 詳細を見る | |
マンション メゾンドボナール(1DK/2階) | |||||||
![]() | 11.8万円 3,000円 | 11.8万円 なし | 1DK 32.48m2 | 築29年 | JR京浜東北線 蒲田駅 徒歩10分 京急本線 京急蒲田駅 徒歩10分 京急本線 梅屋敷駅(東京) 徒歩11分 東京都大田区蒲田 | 詳細を見る | |
マンション パークフロント亀戸(ワンルーム/2階) | |||||||
![]() | 9.6万円 1万円 | 9.6万円 9.6万円 | ワンルーム 27.01m2 | 築7年 | 都営新宿線 大島駅(東京) 徒歩9分 JR総武線 亀戸駅 徒歩9分 東武亀戸線 東あずま駅 徒歩17分 東京都江東区亀戸 | 詳細を見る | |
マンション ラトレールエスポワール(1K/3階) | |||||||
![]() | 9.4万円 3,000円 | 9.4万円 なし | 1K 26.97m2 | 築23年 | 東急多摩川線 下丸子駅 徒歩4分 東急多摩川線 武蔵新田駅 徒歩14分 東京都大田区下丸子3丁目 | 詳細を見る | |
マンション ドゥーエ亀戸III(2K/7階) | |||||||
![]() | 12.1万円 1万円 | 12.1万円 12.1万円 | 2K 25.4m2 | 築4年 | 東武亀戸線 亀戸水神駅 徒歩5分 JR総武線 亀戸駅 徒歩6分 都営新宿線 大島駅(東京) 徒歩15分 東京都江東区亀戸 | 詳細を見る | |
マンション SEED JUST B-BASE COAST(1LDK/4階) | |||||||
![]() | 8.8万円 1.5万円 | 8.8万円 8.8万円 | 1LDK 23.07m2 | 築1年 | 東京モノレール羽田 昭和島駅 徒歩11分 京浜急行電鉄本線 梅屋敷駅(東京) 徒歩19分 東京都大田区大森南4丁目 | 詳細を見る | |
アパート SEED SAVE PETIRASU BREEZE(1LDK/2階) | |||||||
![]() | 10.6万円 1万円 | 21.2万円 10.6万円 | 1LDK 30.55m2 | 築1年 | 東京モノレール羽田 昭和島駅 徒歩12分 京浜急行電鉄本線 大森町駅 徒歩18分 東京都大田区大森東5丁目 | 詳細を見る | |









