賃貸アパート
レオパレス唐池公園の賃貸物件情報(1K/1階)
| 家賃 | 管理費等 | 敷金 | 礼金 | 間取り | 専有面積 |
|---|---|---|---|---|---|
| 5.7万円 | 5,000円 | なし | 5.7万円 | 1K | 22.35m2 |
入居決定でお祝い金最大100,000円
Point
まずはお問い合わせ!
不動産会社は街のプロ、あなたに合った物件がきっと見つかります。
提供:ハウスコム東海株式会社 刈谷店

詳細情報 レオパレス唐池公園
物件紹介
レオパレス唐池公園は名鉄名古屋本線新安城駅から徒歩17分にあるアパートです。
このお部屋のインターホンにはTVモニタがついているため、相手の顔を確認してから来客対応することができます。
人気の南向きのお部屋。バス・トイレ別の仕様で、のんびりお風呂タイムも楽しめます。また、浴室乾燥機を使えば、雨の日でもお洗濯は問題ありません。
通信設備面では、インターネット接続が可能です。また、CATVにも対応しているので、おうち時間も充実するでしょう(別途工事、契約料が必要な場合あり)。
共用部には宅配ボックスが設定されているので、不在の時にも荷物を受け取ることができます。
このお部屋のインターホンにはTVモニタがついているため、相手の顔を確認してから来客対応することができます。
人気の南向きのお部屋。バス・トイレ別の仕様で、のんびりお風呂タイムも楽しめます。また、浴室乾燥機を使えば、雨の日でもお洗濯は問題ありません。
通信設備面では、インターネット接続が可能です。また、CATVにも対応しているので、おうち時間も充実するでしょう(別途工事、契約料が必要な場合あり)。
共用部には宅配ボックスが設定されているので、不在の時にも荷物を受け取ることができます。
お金・契約の情報
※「-」と表示されているものは、実際は料金が発生するものもございます。詳細はお問い合わせください。
| 家賃 | 5.7万円 | 管理費・共益費 | 5,000円 |
|---|---|---|---|
| 敷金 | なし | 礼金 | 5.7万円 |
| 入居決定でお祝い金最大100,000円 | |||
| 保証金 | - | 償却・敷引 | - |
| 住宅保険料 | 1円 | 更新料 | - |
| その他費用 | 抗菌施工(任意):2.376万円 | ||
| 保証会社利用 | 必須 | 保証会社名 | - |
| 保証会社費用 | - | 保証会社備考 | 保証料:74990円(契約内容により100〜120%で変動有)※記載金額は120%の場合 |
| 契約形態 | - | 契約期間 | - |
| 入居・引渡期間 | 2026年03月上旬 | 現況 | - |
| 契約備考 | 月額(環境維持費 550円) 鍵交換費用:16500 室内清掃費用:41800 その他設備/条件:室内洗濯機置き場 | ||
部屋の情報
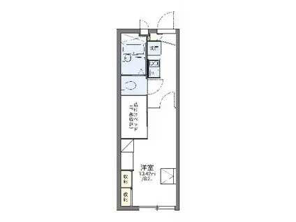
| 間取り | 1K | 専有面積 | 22.35m2 |
|---|---|---|---|
| 所在階 / 向き | 1階 / - | バルコニー面積 | - |
| 水道 / ガス | - | ||
| 設備 | バス・トイレ別、テレビドアホン、宅配ボックス、光ファイバー対応、エアコン、温水洗浄便座、コンロ:電気、CATV | ||
| 当社物件ID | 2966813 | ||
建物の情報
| 建物名 | レオパレス唐池公園 | ||
|---|---|---|---|
| 所在地 | 愛知県安城市住吉町5丁目 | ||
| 交通 | 名鉄名古屋本線 新安城駅 徒歩17分 | ||
| 階数 | 2階建 | 総戸数 | 32戸 |
| 築年月 | 2006年03月 / 築20年 | エレベーター | - |
| 駐車場 | なし | バイク置き場 | - |
| 駐輪場 | - | 管理人/管理会社 | - |
| 周辺環境 | その他 ドラッグストア その他 公園 その他 銀行 その他 * | ||
| 建物種別 | アパート | 建物構造 | 軽量鉄骨造 |
この部屋の取扱い不動産会社
| 会社名 | ハウスコム東海株式会社 新安城店 | ||
|---|---|---|---|
| 所在地 | 愛知県安城市2-13L-KLASSE1階 | 交通 | - |
| 営業時間 | 10:00~18:00 | 定休日 | - |
| 免許番号 | 国土交通大臣(1)第10227号 | 取引態様 | 仲介 |
| 不動産会社管理番号 | HC5-2224216-106-0146 | 当社管理番号 | 468 |
| 所属団体 | 、 | ||
| 取扱い物件情報 | 物件詳細へ | ||
※各種情報と現状に差異がある場合は、現状優先となります。問い合わせをすることで、より詳しい条件、情報を確認する事ができます。
提供:ハウスコム東海株式会社 新安城店
この物件が気になったら掲載期限まであと5日
レオパレス唐池公園に条件(家賃・エリア)が近い物件一覧
| 写真 | 家賃 管理費等 | 敷金 礼金 | 間取り 専有面積 | 築年数 | 最寄り駅 所在地 | キープ | 詳細 |
|---|---|---|---|---|---|---|---|
マンション グリーンハイツミユキ(3LDK/2階) | |||||||
![]() | 7.3万円 なし | 9.35万円 7.3万円 | 3LDK 67.2m2 | 築46年 | 名鉄西尾線 北安城駅 徒歩18分 名鉄名古屋本線 新安城駅 徒歩21分 JR東海道本線 安城駅 徒歩24分 愛知県安城市池浦町大山田上 | 詳細を見る | |
マンション ビレッジハウス西端 1号棟(1LDK/5階) | |||||||
![]() | 3.84万円 なし | なし なし | 1LDK 33.09m2 | 築55年 | 愛知県碧南市平山町3丁目 | 詳細を見る | |
マンション シャトーヨサミ(1LDK/3階) | |||||||
![]() | 9.2万円 6,000円 | なし なし | 1LDK 54.27m2 | 築23年 | JR東海道本線 刈谷駅 徒歩20分 JR東海道本線 野田新町駅 徒歩27分 名鉄三河線 刈谷市駅 徒歩29分 愛知県刈谷市半城土西町 | 詳細を見る | |
マンション ベルトップ石橋(2LDK/1階) | |||||||
![]() | 5.1万円 4,000円 | なし なし | 2LDK 51.94m2 | 築21年 | 名鉄三河線 碧南駅 徒歩11分 名鉄三河線 碧南中央駅 徒歩14分 名鉄三河線 新川町駅(愛知) 徒歩29分 愛知県碧南市石橋町 | 詳細を見る | |
マンション SHIPUEビル(2LDK/7階) | |||||||
![]() | 7万円 5,500円 | 21万円 7万円 | 2LDK 70m2 | 築36年 | 名鉄名古屋本線 東岡崎駅 徒歩17分 名鉄名古屋本線 岡崎公園前駅 徒歩17分 愛知県岡崎市材木町1丁目 | 詳細を見る | |
アパート レオネクスト吉良吉田(1K/2階) | |||||||
![]() | 4.2万円 5,000円 | なし なし | 1K 31.42m2 | 築12年 | 名鉄西尾線 吉良吉田駅 徒歩6分 愛知県西尾市吉良町吉田神明塚 | 詳細を見る | |
アパート アムール サヴァ(1K/1階) | |||||||
![]() | 6.3万円 4,000円 | なし 6.3万円 | 1K 30.95m2 | 新築 | 名鉄名古屋本線 一ツ木駅 徒歩21分 名鉄三河線 重原駅 徒歩25分 愛知県刈谷市青山町1丁目 | 詳細を見る | |








