賃貸マンション
コンフォリア・リヴ東中野の賃貸物件情報(1LDK/B1階)
| 家賃 | 管理費等 | 敷金 | 礼金 | 間取り | 専有面積 |
|---|---|---|---|---|---|
| 21.3万円 | 1.5万円 | 21.3万円 | なし | 1LDK | 38.01m2 |
入居決定でお祝い金最大100,000円
Point
当店では、このお部屋は仲介手数料不要です!
提供:アパマンショップ中野南口店
/424x317-f1-q70-wp1)
詳細情報 コンフォリア・リヴ東中野
物件紹介
コンフォリア・リヴ東中野は東京メトロ東西線落合駅から徒歩8分にあり、駅近で通勤通学に便利なマンションです。
建物のエントランスはオートロックがついており、インターホンにはTVモニタもついているため、相手の顔を確認してから来客対応することができます。
おしゃれなデザイナーズ物件!人気の角部屋で周囲の居住者の生活音も気になりにくく、また、フローリングのお部屋なのでお掃除もラクラク。室内にはウォークインクローゼットがありますので、たくさんの荷物も効率的に収納ができます。キッチンはシステムキッチン仕様になっていますので、お料理好きの方にもぴったり。バス・トイレは別なので、のんびりお風呂タイムも楽しめるでしょう。また、雨の日でも浴室乾燥機を使えば、お洗濯も問題ありません。
通信設備面では、インターネットが無料で使えるので、月々の出費を抑えられるのも魅力です。また、BSアンテナ・CSアンテナもありますので、おうち時間も充実するでしょう(別途工事、BS・CSの契約料等が必要な場合あり)。
床暖房があり、冬も足元から暖かく快適に過ごすことができます。建物にはエレベーターがついているので、重い荷物があっても安心。共用部には宅配ボックスが設定されているので、不在の時にも荷物を受け取ることができます。また、ペット飼育の相談ができますので、あなたの大切な家族の一員も快適に暮らせるか、ぜひ確認してみてください。
コンビニまで徒歩9分の場所にあり、日用品や食料品のお買い物にも便利です。
建物のエントランスはオートロックがついており、インターホンにはTVモニタもついているため、相手の顔を確認してから来客対応することができます。
おしゃれなデザイナーズ物件!人気の角部屋で周囲の居住者の生活音も気になりにくく、また、フローリングのお部屋なのでお掃除もラクラク。室内にはウォークインクローゼットがありますので、たくさんの荷物も効率的に収納ができます。キッチンはシステムキッチン仕様になっていますので、お料理好きの方にもぴったり。バス・トイレは別なので、のんびりお風呂タイムも楽しめるでしょう。また、雨の日でも浴室乾燥機を使えば、お洗濯も問題ありません。
通信設備面では、インターネットが無料で使えるので、月々の出費を抑えられるのも魅力です。また、BSアンテナ・CSアンテナもありますので、おうち時間も充実するでしょう(別途工事、BS・CSの契約料等が必要な場合あり)。
床暖房があり、冬も足元から暖かく快適に過ごすことができます。建物にはエレベーターがついているので、重い荷物があっても安心。共用部には宅配ボックスが設定されているので、不在の時にも荷物を受け取ることができます。また、ペット飼育の相談ができますので、あなたの大切な家族の一員も快適に暮らせるか、ぜひ確認してみてください。
コンビニまで徒歩9分の場所にあり、日用品や食料品のお買い物にも便利です。
お金・契約の情報
※「-」と表示されているものは、実際は料金が発生するものもございます。詳細はお問い合わせください。
| 家賃 | 21.3万円 | 管理費・共益費 | 1.5万円 |
|---|---|---|---|
| 敷金 | 21.3万円 | 礼金 | なし |
| 入居決定でお祝い金最大100,000円 | |||
| 保証金 | - | 償却・敷引 | - |
| 住宅保険料 | 1.655万円(2年) | 更新料 | - |
| 保証会社利用 | 必須 | 保証会社名 | エポスカード(RP) |
| 保証会社費用 | - | 保証会社備考 | 保証料:賃料等の50%(最低2万)、月額保証料:賃料等の1%(更新料無) |
| 契約形態 | - | 契約期間 | 2年 |
| 入居・引渡期間 | 相談 | 現況 | - |
| 入居可能条件 | ペット可 | ||
| 契約備考 | 敷金積み増し:ペット飼育 2.00カ月、小型犬:可、大型犬:不可、猫:可、その他:大型犬2匹または猫2匹迄 清掃費 58520円/エアコン清掃費 16500円 | ||
部屋の情報
| 間取り | 1LDK | 専有面積 | 38.01m2 |
|---|---|---|---|
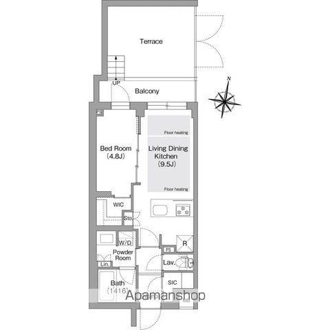
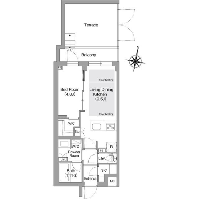
| 間取り詳細 | LDK(9.4帖)、洋室(4.8帖) | ||
| 所在階 / 向き | B1階 / 北 | バルコニー面積 | - |
| 水道 / ガス | - | ||
| 設備 | バス・トイレ別、オートロック、テレビドアホン、宅配ボックス、浴室乾燥機、ウォークインクローゼット、追い焚き、システムキッチン、エレベーター、床暖房、CSアンテナ、BSアンテナ、洗濯機:室内 | ||
| 当社物件ID | 159414701 | ||
建物の情報
| 建物名 | コンフォリア・リヴ東中野 | ||
|---|---|---|---|
| 所在地 | 東京都中野区上高田1丁目 | ||
| 交通 | 東京地下鉄東西線 落合駅 徒歩9分 | ||
| 階数 | 3階建 | 総戸数 | 35戸 |
| 築年月 | 2025年06月 / 築1年 | エレベーター | あり |
| 駐車場 | - | バイク置き場 | - |
| 駐輪場 | あり | 管理人/管理会社 | - |
| 周辺環境 | その他 業務スーパー東中野店 徒歩5分(345m) その他 ローソン東中野ギンザ通り店 徒歩6分(448m) その他 セブン−イレブン新宿上落合3丁目店 徒歩7分(510m) その他 ライフ東中野店 徒歩9分(663m) その他 セブン−イレブン東中野3丁目店 徒歩10分(755m) その他 ファミリーマート東中野ギンザ通り店 徒歩9分(716m) その他 ローソンストア100東中野店 徒歩11分(870m) その他 ファミリーマート東中野駅前店 徒歩10分(745m) | ||
| 建物種別 | マンション | 建物構造 | RC(鉄筋コンクリート) |
この部屋の取扱い不動産会社
| 会社名 | アパマンショップ東中野店 | ||
|---|---|---|---|
| 所在地 | 東京都中野区東中野3丁目 1-1寛栄ビル2F | 交通 | 総武・中央緩行線東中野から徒歩1分 |
| 営業時間 | 09:30〜19:00 | 定休日 | 水曜日 |
| 免許番号 | 東京都知事(4)89428 | 取引態様 | 仲介 |
| 不動産会社管理番号 | 110956056 | 当社管理番号 | 4 |
| 所属団体 | (公社)全日本不動産協会東京都本部 | ||
| 公正取引協議会 | (公社) 首都圏不動産公正取引協議会加盟 | ||
| 取扱い物件情報 | 物件詳細へ | ||
※各種情報と現状に差異がある場合は、現状優先となります。問い合わせをすることで、より詳しい条件、情報を確認する事ができます。
提供:アパマンショップ東中野店
この物件が気になったら掲載期限まであと9日
コンフォリア・リヴ東中野に条件(家賃・エリア)が近い物件一覧
| 写真 | 家賃 管理費等 | 敷金 礼金 | 間取り 専有面積 | 築年数 | 最寄り駅 所在地 | キープ | 詳細 |
|---|---|---|---|---|---|---|---|
マンション VISTA要町(1LDK/1階) | |||||||
![]() | 17.5万円 1万円 | なし なし | 1LDK 33.89m2 | 築1年 | 東京メトロ副都心線 要町駅 徒歩8分 東京メトロ副都心線 千川駅 徒歩8分 西武池袋線 椎名町駅 徒歩12分 東京都豊島区千早 | 詳細を見る | |
マンション SOLASIA RESIDENCE 荻窪(1LDK/1階) | |||||||
![]() | 13.8万円 1万円 | 13.8万円 なし | 1LDK 29.66m2 | 築1年 | JR中央線 荻窪駅 徒歩5分 JR総武線 荻窪駅 徒歩5分 東京メトロ丸ノ内線 荻窪駅 徒歩5分 東京都杉並区天沼 | 詳細を見る | |
マンション ルーブル中野本町(2DK/3階) | |||||||
![]() | 15.5万円 1.3万円 | 15.5万円 15.5万円 | 2DK 40.72m2 | 築11年 | 東京メトロ丸ノ内線 中野富士見町駅 徒歩6分 東京メトロ丸ノ内線 新中野駅 徒歩9分 東京メトロ丸ノ内線 中野新橋駅 徒歩11分 東京都中野区本町 | 詳細を見る | |
マンション PASEO明大前ーパセオ明大前ー(1LDK/2階) | |||||||
![]() | 13万円 1万円 | なし なし | 1LDK 26.82m2 | 築4年 | 京王線 明大前駅 徒歩5分 京王線 代田橋駅 徒歩10分 京王井の頭線 永福町駅 徒歩13分 東京都杉並区和泉 | 詳細を見る | |
アパート PRUNIER(1LDK/2階) | |||||||
![]() | 13.5万円 4,000円 | 13.5万円 13.5万円 | 1LDK 40.99m2 | 築1年 | 東京メトロ有楽町線 氷川台駅 徒歩6分 東京メトロ副都心線 平和台駅(東京) 徒歩13分 西武有楽町線 新桜台駅 徒歩20分 東京都練馬区氷川台 | 詳細を見る | |
アパート ROBOT HOME 阿佐谷北(1LDK/3階) | |||||||
![]() | 15.6万円 3,000円 | なし 15.6万円 | 1LDK 32.02m2 | 新築 | JR中央線 阿佐ケ谷駅 徒歩7分 JR中央線 高円寺駅 徒歩11分 東京メトロ丸ノ内線 南阿佐ケ谷駅 徒歩14分 東京都杉並区阿佐谷北 | 詳細を見る | |
マンション レジディア千川プレイス(2LDK/1階) | |||||||
![]() | 24万円 2.5万円 | なし 24万円 | 2LDK 63.3m2 | 築37年 | 東京メトロ有楽町線 千川駅 徒歩6分 東京メトロ副都心線 要町駅 徒歩9分 東京都豊島区千早 | 詳細を見る | |
マンション 飯田橋ガーデンフラッツ(ワンルーム/5階) | |||||||
![]() | 14.4万円 1.5万円 | 14.4万円 21.6万円 | ワンルーム 31.82m2 | 築8年 | JR中央線 飯田橋駅 徒歩6分 東京メトロ東西線 神楽坂駅 徒歩11分 東京メトロ丸ノ内線 後楽園駅 徒歩12分 東京都新宿区新小川町 | 詳細を見る | |








