賃貸アパート
シティハイム松田の賃貸物件情報(1K/2階)
| 家賃 | 管理費等 | 敷金 | 礼金 | 間取り | 専有面積 |
|---|---|---|---|---|---|
| 3万円 | 2,000円 | なし | なし | 1K | 19.44m2 |
入居決定でお祝い金最大100,000円
- 保証金
- -
- 償却・敷引
- -
- 築年数
- 築38年
- 所在階
- 2階
- 向き
- 南
Point
東武東上線高坂駅から徒歩圏の格安アパートです。このお値段で、バストイレ別、しかも室内洗濯機置き場は貴重です。更に24時間サポート対応物件なので安心。礼金敷金0で楽々ご入居可能です。
提供:(株)国際学生協会(SUUMO経由)

詳細情報 シティハイム松田
物件紹介
シティハイム松田は東武東上線高坂駅から徒歩6分にあり、駅近で通勤通学に便利なアパートです。
このお部屋は2階以上に位置しているので、通行人や周囲の住人からの視線が気になりにくく、防犯面でも安心です。
人気の南向きのお部屋。また、フローリングなのでお掃除もラクラク。バス・トイレ別の仕様で、のんびりお風呂タイムも楽しめます。
通信設備面ではBSアンテナ・CSアンテナがありますので、おうち時間も充実するでしょう(別途工事、契約料が必要な場合あり)。
このお部屋は2階以上に位置しているので、通行人や周囲の住人からの視線が気になりにくく、防犯面でも安心です。
人気の南向きのお部屋。また、フローリングなのでお掃除もラクラク。バス・トイレ別の仕様で、のんびりお風呂タイムも楽しめます。
通信設備面ではBSアンテナ・CSアンテナがありますので、おうち時間も充実するでしょう(別途工事、契約料が必要な場合あり)。
お金・契約の情報
※「-」と表示されているものは、実際は料金が発生するものもございます。詳細はお問い合わせください。
| 家賃 | 3万円 | 管理費・共益費 | 2,000円 |
|---|---|---|---|
| 敷金 | なし | 礼金 | なし |
| 入居決定でお祝い金最大100,000円 | |||
| 保証金 | - | 償却・敷引 | - |
| 住宅保険料 | - | 更新料 | - |
| 契約形態 | - | 契約期間 | - |
| 入居・引渡期間 | 即時 | 現況 | - |
| 契約備考 | 巡回管理 預り金30000円(退去時清掃費用、全額充当) 1K 学生限定 損保【1.8万円2年】 バストイレ別、エアコン、ガスコンロ対応、フローリング、室内洗濯置、陽当り良好、南向き、駐輪場、礼金不要、最上階、BS・CS、敷金不要、24時間緊急通報システム、初期費用10万円以下、雨戸、駅徒歩10分以内、敷地内ごみ置き場、当社管理物件、敷金・礼金不要、IT重説対応物件、全室照明付 | ||
部屋の情報
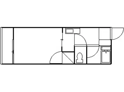
| 間取り | 1K | 専有面積 | 19.44m2 |
|---|---|---|---|
| 所在階 / 向き | 2階 / 南 | バルコニー面積 | - |
| 水道 / ガス | - | ||
| 設備 | バス・トイレ別、2階以上、エアコン、南向き、フローリング、コンロ:ガス、CSアンテナ、BSアンテナ、洗濯機:室内 | ||
| 当社物件ID | 160207680 | ||
建物の情報
| 建物名 | シティハイム松田 | ||
|---|---|---|---|
| 所在地 | 埼玉県東松山市元宿 | ||
| 交通 | 東武東上線 高坂駅 徒歩6分 東武東上線 北坂戸駅 徒歩47分 東武東上線 坂戸駅(埼玉) 徒歩69分 | ||
| 階数 | 2階建 | 総戸数 | 20戸 |
| 築年月 | 1988年02月 / 築38年 | エレベーター | - |
| 駐車場 | なし | バイク置き場 | - |
| 駐輪場 | あり | 管理人/管理会社 | - |
| 周辺環境 | その他 ファミリーマート大野高坂駅西口店(コンビニ)まで594m その他 シバタ薬品東松山店(ドラッグストア)まで248m その他 マクドナルド高坂駅前店(飲食店)まで404m その他 東松山市立高坂図書館(図書館)まで887m その他 マミーマート高坂店(スーパー)まで329m その他 クリエイトエス・ディー東松山高坂店(ドラッグストア)まで222m | ||
| 建物種別 | アパート | 建物構造 | 軽量鉄骨造 |
この部屋の取扱い不動産会社
| 会社名 | (株)国際学生協会(SUUMO経由) | ||
|---|---|---|---|
| 所在地 | 埼玉県東松山市元宿1-13-6 | 交通 | - |
| 営業時間 | AM9:00~PM6:00 | 定休日 | 水曜(4月~11月は水日祝) |
| 免許番号 | 埼玉県知事10127 | 取引態様 | 仲介 |
| 不動産会社管理番号 | 100482652977 | 当社管理番号 | 89 |
| 所属団体 | (公社)埼玉県宅地建物取引業協会会員 | ||
| 公正取引協議会 | (公社)首都圏不動産公正取引協議会加盟 | ||
| 取扱い物件情報 | 物件詳細へ | ||
※各種情報と現状に差異がある場合は、現状優先となります。問い合わせをすることで、より詳しい条件、情報を確認する事ができます。
提供:(株)国際学生協会(SUUMO経由)
この物件が気になったら掲載期限まであと5日
シティハイム松田に条件(家賃・エリア)が近い物件一覧
| 写真 | 家賃 管理費等 | 敷金 礼金 | 間取り 専有面積 | 築年数 | 最寄り駅 所在地 | キープ | 詳細 |
|---|---|---|---|---|---|---|---|
マンション 銀河鉄道21(1K/2階) | |||||||
![]() | 3.7万円 2,000円 | なし なし | 1K 21.7m2 | 築28年 | 東武東上線 東松山駅 徒歩13分 東武東上線 森林公園駅(埼玉) 徒歩41分 東武東上線 高坂駅 徒歩56分 埼玉県東松山市本町 | 詳細を見る | |
アパート I-HOUSE(ワンルーム/1階) | |||||||
![]() | 4.4万円 2,000円 | なし なし | ワンルーム 26.5m2 | 築22年 | 東武東上線 東松山駅 徒歩20分 東武東上線 森林公園駅(埼玉) 徒歩35分 東武東上線 つきのわ駅 徒歩75分 埼玉県東松山市美原町 | 詳細を見る | |
アパート レオパレスブランドミールII(1K/2階) | |||||||
![]() | 4.2万円 5,000円 | なし なし | 1K 20.28m2 | 築24年 | JR高崎線 熊谷駅 徒歩15分 埼玉県熊谷市戸出 | 詳細を見る | |
アパート レオパレスルチェンテ(1K/3階) | |||||||
![]() | 4.2万円 7,000円 | なし なし | 1K 20.54m2 | 築17年 | 東武東上線 北坂戸駅 徒歩19分 東武越生線 坂戸駅(埼玉) 徒歩33分 東武東上線 高坂駅 徒歩52分 埼玉県坂戸市伊豆の山町 | 詳細を見る | |
アパート ベルトピアクマガヤ9(1K/2階) | |||||||
![]() | 3万円 2,000円 | なし なし | 1K 16.21m2 | 築36年 | 湘南新宿ライン高海 籠原駅 徒歩11分 秩父鉄道 大麻生駅 徒歩61分 秩父鉄道 ひろせ野鳥の森駅 徒歩63分 埼玉県熊谷市別府 | 詳細を見る | |
アパート サンモール松崎(1K/2階) | |||||||
![]() | 4万円 2,000円 | なし 4万円 | 1K 24.18m2 | 築32年 | 東武東上線 高坂駅 徒歩3分 埼玉県東松山市元宿 | 詳細を見る | |
マンション BCASA熊谷IIRE-BORN(ワンルーム/2階) | |||||||
![]() | 4.3万円 5,000円 | なし なし | ワンルーム 16.46m2 | 築37年 | 秩父鉄道 上熊谷駅 徒歩4分 JR高崎線 熊谷駅 徒歩13分 埼玉県熊谷市本石 | 詳細を見る | |
アパート レオパレスけやき通ハイツ(1K/1階) | |||||||
![]() | 4.5万円 5,000円 | なし なし | 1K 23.18m2 | 築15年 | 東武東上線 北坂戸駅 徒歩6分 東武東上線 坂戸駅(埼玉) 徒歩25分 東武東上線 川越駅 徒歩31分 埼玉県坂戸市薬師町 | 詳細を見る | |









